New Homes » Kanto » Tokyo » Setagaya
 
| | Setagaya-ku, Tokyo 東京都世田谷区 |
| Keio Line "Osan Chitose" walk 13 minutes 京王線「千歳烏山」歩13分 |
| ◇ Keio Line 2 station within walking distance of the "Chitose Karasuyama Station" × "Sengawa Station"! Access to the city center is also good! ◇ ◇京王線『千歳烏山駅』×『仙川駅』の2駅徒歩圏内!都心へのアクセスも良好!◇ |
| ◆ Bright soft space LDK is that sunshine is inserted from south ◆ Also impetus conversation with popular even your family in your cooking in face-to-face kitchen ◆ Grenier is easy loading and unloading at a fixed stairs ◆ Elementary schools and convenience stores, Such as the clinic is close, Good living environment ○ For more details, [Document request] Please feel free to contact us more! ☆ ... ‥ - * - ‥ ■ Keio Line ・ Center line ・ To the property if the Company's Odakyu line! ■ HP only of information and non-public property is also a large number! ■ You can access from the Related Links ☆ "Customer dream to its previous ..." ‥ - * - ‥ ... ☆ ◆LDKは南面から陽ざしが差し込む明るくやわらかな空間◆人気の対面キッチンでお料理中もご家族との会話も弾みます◆グルニエは固定階段で出し入れ楽々◆小学校やコンビニ、クリニックなどが近く、良好な住環境○詳しくは【資料請求】よりお気軽にお問い合わせください!☆…‥―*―‥ ■京王線・中央線・小田急線の物件なら当社へ! ■HPのみの情報や未公開物件も多数! ■関連リンクよりアクセスできます☆ 『お客様の夢のその先へ…』 ‥―*―‥…☆ |
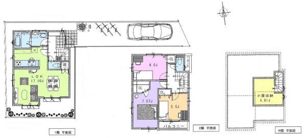
Features pickup 特徴ピックアップ | | Yang per good / All room storage / A quiet residential area / LDK15 tatami mats or more / garden / Face-to-face kitchen / Toilet 2 places / 2-story / South balcony / Nantei / The window in the bathroom / Walk-in closet / City gas / Flat terrain / Attic storage 陽当り良好 /全居室収納 /閑静な住宅地 /LDK15畳以上 /庭 /対面式キッチン /トイレ2ヶ所 /2階建 /南面バルコニー /南庭 /浴室に窓 /ウォークインクロゼット /都市ガス /平坦地 /屋根裏収納 | Price 価格 | | 51,800,000 yen 5180万円 | Floor plan 間取り | | 3LDK + S (storeroom) 3LDK+S(納戸) | Units sold 販売戸数 | | 1 units 1戸 | Total units 総戸数 | | 2 units 2戸 | Land area 土地面積 | | 107.55 sq m (registration) 107.55m2(登記) | Building area 建物面積 | | 85.98 sq m (registration) 85.98m2(登記) | Driveway burden-road 私道負担・道路 | | Nothing, East 4.5m width 無、東4.5m幅 | Completion date 完成時期(築年月) | | March 2014 2014年3月 | Address 住所 | | Setagaya-ku, Tokyo Kyuden 4 東京都世田谷区給田4 | Traffic 交通 | | Keio Line "Osan Chitose" walk 13 minutes Keio Line "Sengawa" walk 15 minutes Keio Line "Roka park" walk 24 minutes 京王線「千歳烏山」歩13分 京王線「仙川」歩15分 京王線「芦花公園」歩24分
| Related links 関連リンク | | [Related Sites of this company] 【この会社の関連サイト】 | Person in charge 担当者より | | Rep Kanazawa Ryo summer age: the 20's bright shop and a children's space. Please be needed in your family by all means! Pick you up at the proud smile ☆ We will help you with your happiness! 担当者金澤 涼夏年齢:20代明るい店内にはキッズスペースもあります。ぜひご家族でいらしてください!自慢の笑顔でお迎えします☆みなさんの幸せのお手伝いをさせていただきます! | Contact お問い合せ先 | | TEL: 0800-603-8577 [Toll free] mobile phone ・ Also available from PHS Caller ID is not notified Please contact the "saw SUUMO (Sumo)" If it does not lead, If the real estate company TEL:0800-603-8577【通話料無料】携帯電話・PHSからもご利用いただけます 発信者番号は通知されません 「SUUMO(スーモ)を見た」と問い合わせください つながらない方、不動産会社の方は
| Building coverage, floor area ratio 建ぺい率・容積率 | | 40% ・ 80% 40%・80% | Time residents 入居時期 | | Consultation 相談 | Land of the right form 土地の権利形態 | | Ownership 所有権 | Structure and method of construction 構造・工法 | | Wooden 2-story 木造2階建 | Use district 用途地域 | | One low-rise 1種低層 | Other limitations その他制限事項 | | Height district, Quasi-fire zones, Height ceiling Yes, Site area minimum Yes, Advanced district height maximum chromatic site area minimum chromatic quasi-fire zones 高度地区、準防火地域、高さ最高限度有、敷地面積最低限度有、高度地区 高さ最高限度有 敷地面積最低限度有 準防火地域 | Overview and notices その他概要・特記事項 | | Contact: Kanazawa Cool summer, Facilities: Public Water Supply, This sewage, City gas, Building confirmation number: GEA1311-20833, Parking: car space 担当者:金澤 涼夏、設備:公営水道、本下水、都市ガス、建築確認番号:GEA1311-20833、駐車場:カースペース | Company profile 会社概要 | | <Mediation> Governor of Tokyo (2) No. 089073 (Ltd.) Dream House Yubinbango182-0002 Chofu, Tokyo Sengawa cho 3-9-22 <仲介>東京都知事(2)第089073号(株)ドリームハウス〒182-0002 東京都調布市仙川町3-9-22 |
Rendering (appearance)完成予想図(外観)  Appearance construction cases
外観施工例
Local appearance photo現地外観写真  Local Photos
現地写真
Floor plan間取り図  51,800,000 yen, 3LDK+S, Land area 107.55 sq m , Building area 85.98 sq m floor plan
5180万円、3LDK+S、土地面積107.55m2、建物面積85.98m2 間取り図
Local appearance photo現地外観写真  Local Photos
現地写真
Livingリビング  Living example of construction
リビング施工例
Bathroom浴室  Bathroom construction cases
浴室施工例
Kitchenキッチン  Kitchen construction cases
キッチン施工例
Local photos, including front road前面道路含む現地写真  Local front road
現地前面道路
Primary school小学校  Kyuden until elementary school 270m 3-minute walk
給田小学校まで270m 徒歩3分
Compartment figure区画図  51,800,000 yen, 3LDK+S, Land area 107.55 sq m , Building area 85.98 sq m compartment view
5180万円、3LDK+S、土地面積107.55m2、建物面積85.98m2 区画図
Local photos, including front road前面道路含む現地写真  Local front road
現地前面道路
Junior high school中学校  Kamisoshigaya until junior high school 1400m walk 17 minutes
上祖師谷中学校まで1400m 徒歩17分
Other Environmental Photoその他環境写真  To Chitose Karasuyama Station 1200m walk 13 minutes
千歳烏山駅まで1200m 徒歩13分
 Sengawa 1300m 15-minute walk to the Train Station
仙川駅まで1300m 徒歩15分
Location
|