|
|
Setagaya-ku, Tokyo
東京都世田谷区
|
|
Odakyu line "Seijogakuen before" walk 10 minutes
小田急線「成城学園前」歩10分
|
|
■ Newly built single-family of Kitami Station 7-minute walk ■ Surrounding environment favorable ■ The completed property also together will guide you.
■喜多見駅徒歩7分の新築戸建 ■周辺環境良好 ■完成済み物件も合わせてご案内致します。
|
|
☆ What% interest rate of the mortgage .. ☆ The total included expenses How much .. I think the worry it is a lot, but I will answer all because, Please do not hesitate to contact us. In the case of ○ ∞∞∞∞∞∞∞∞∞∞∞∞∞∞∞∞∞∞∞∞∞∞∞∞∞∞∞∞∞∞∞ ○ o our alliance mortgage available, The entire period up to minus 1.75 percent preferential treatment. To o apply, conditions ・ There is a review. o weekdays ・ Saturday and Sunday ・ We will guide regardless of holiday. We can come to pick you up at o car. ○ ∞∞∞∞∞∞∞∞∞∞∞∞∞∞∞∞∞∞∞∞∞∞∞∞∞∞∞∞∞∞∞ ○
☆住宅ローンの金利は何%.. ☆諸費用込みの総額はいくら.. 心配事が沢山あると思いますが全てお答え致しますので、 お気軽にお問い合わせくださいませ。 ○∞∞∞∞∞∞∞∞∞∞∞∞∞∞∞∞∞∞∞∞∞∞∞∞∞∞∞∞∞∞∞○ o弊社の提携住宅ローン利用の場合、全期間最大マイナス1.75パーセント優遇。 o適用には、条件・審査がございます。o平日・土日・祝日問わずご案内致します。 oお車でお迎えに伺います。 ○∞∞∞∞∞∞∞∞∞∞∞∞∞∞∞∞∞∞∞∞∞∞∞∞∞∞∞∞∞∞∞○
|
Features pickup 特徴ピックアップ | | Corresponding to the flat-35S / 2 along the line more accessible / Fiscal year Available / Super close / It is close to the city / Facing south / System kitchen / Bathroom Dryer / Yang per good / All room storage / Flat to the station / A quiet residential area / LDK15 tatami mats or more / Around traffic fewer / Shaping land / Washbasin with shower / Face-to-face kitchen / Security enhancement / Wide balcony / 3 face lighting / Barrier-free / Toilet 2 places / Bathroom 1 tsubo or more / 2-story / South balcony / Zenshitsuminami direction / Otobasu / Warm water washing toilet seat / Underfloor Storage / The window in the bathroom / TV monitor interphone / High-function toilet / Leafy residential area / Urban neighborhood / Ventilation good / All living room flooring / Good view / Dish washing dryer / Or more ceiling height 2.5m / Water filter / Living stairs / A large gap between the neighboring house / Maintained sidewalk / Flat terrain / Attic storage / Floor heating フラット35Sに対応 /2沿線以上利用可 /年度内入居可 /スーパーが近い /市街地が近い /南向き /システムキッチン /浴室乾燥機 /陽当り良好 /全居室収納 /駅まで平坦 /閑静な住宅地 /LDK15畳以上 /周辺交通量少なめ /整形地 /シャワー付洗面台 /対面式キッチン /セキュリティ充実 /ワイドバルコニー /3面採光 /バリアフリー /トイレ2ヶ所 /浴室1坪以上 /2階建 /南面バルコニー /全室南向き /オートバス /温水洗浄便座 /床下収納 /浴室に窓 /TVモニタ付インターホン /高機能トイレ /緑豊かな住宅地 /都市近郊 /通風良好 /全居室フローリング /眺望良好 /食器洗乾燥機 /天井高2.5m以上 /浄水器 /リビング階段 /隣家との間隔が大きい /整備された歩道 /平坦地 /屋根裏収納 /床暖房 |
Price 価格 | | 68,800,000 yen 6880万円 |
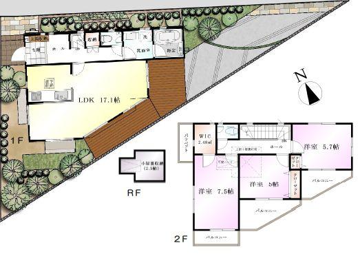
Floor plan 間取り | | 3LDK 3LDK |
Units sold 販売戸数 | | 1 units 1戸 |
Land area 土地面積 | | 133.75 sq m (measured) 133.75m2(実測) |
Building area 建物面積 | | 88.66 sq m (measured) 88.66m2(実測) |
Driveway burden-road 私道負担・道路 | | Nothing 無 |
Completion date 完成時期(築年月) | | February 2014 2014年2月 |
Address 住所 | | Setagaya-ku, Tokyo Seijo 4 東京都世田谷区成城4 |
Traffic 交通 | | Odakyu line "Seijogakuen before" walk 10 minutes Odakyu line "Kitami" walk 7 minutes Odakyu line "Soshiketani Finance" walk 22 minutes 小田急線「成城学園前」歩10分 小田急線「喜多見」歩7分 小田急線「祖師ヶ谷大蔵」歩22分
|
Related links 関連リンク | | [Related Sites of this company] 【この会社の関連サイト】 |
Person in charge 担当者より | | The person in charge Ono Masakazu Age: 20 Daigyokai experience: the secret of the success of the three-year real estate transactions I think reliable that it is accurate advice of professional. My best and my best try to speedy and accurate suggestions. Do not hesitate to tell us your worries. 担当者小野 正和年齢:20代業界経験:3年不動産取引の成功の秘訣は信頼できるプロの的確なアドバイスだと思います。スピーディーかつ的確なご提案を心がけて精一杯頑張ります。お気軽にお悩みをお聞かせ下さい。 |
Contact お問い合せ先 | | TEL: 0800-603-7130 [Toll free] mobile phone ・ Also available from PHS Caller ID is not notified Please contact the "saw SUUMO (Sumo)" If it does not lead, If the real estate company TEL:0800-603-7130【通話料無料】携帯電話・PHSからもご利用いただけます 発信者番号は通知されません 「SUUMO(スーモ)を見た」と問い合わせください つながらない方、不動産会社の方は
|
Building coverage, floor area ratio 建ぺい率・容積率 | | 40% ・ 80% 40%・80% |
Time residents 入居時期 | | February 2014 schedule 2014年2月予定 |
Land of the right form 土地の権利形態 | | Ownership 所有権 |
Structure and method of construction 構造・工法 | | Wooden 2-story 木造2階建 |
Use district 用途地域 | | One low-rise 1種低層 |
Overview and notices その他概要・特記事項 | | Contact: Ono Masakazu, Facilities: Public Water Supply, This sewage, City gas, Building confirmation number: 437685, Parking: car space 担当者:小野 正和、設備:公営水道、本下水、都市ガス、建築確認番号:437685、駐車場:カースペース |
Company profile 会社概要 | | <Mediation> Minister of Land, Infrastructure and Transport (2) No. 007684 + HOUSE Tokyo Office (Ltd.) propoxycarbonyl life Yubinbango104-0028, Chuo-ku, Tokyo Yaesu 2-5-12 Prairie Yaesu Building 5th floor <仲介>国土交通大臣(2)第007684号+HOUSE東京Office(株)プロポライフ〒104-0028 東京都中央区八重洲2-5-12 プレリー八重洲ビル5階 |