New Homes » Kanto » Tokyo » Setagaya
 
| | Setagaya-ku, Tokyo 東京都世田谷区 |
| Tokyu Toyoko Line "Jiyugaoka" walk 11 minutes 東急東横線「自由が丘」歩11分 |
| It became the price change! It is the introduction of new single-family venerable Okusawa address. Those looking at the Seongnam area, Please have a look once. Since the completed is a touching look at the eyes, Try sure. 価格変更となりました!由緒ある奥沢アドレスの新築戸建のご紹介です。城南エリアでお探しの方、是非一度御覧下さい。完成済みですので目で見て触れて、確かめてみて下さい。 |
| Corresponding to the flat-35S, Pre-ground survey, Immediate Available, 2 along the line more accessible, Super close, It is close to the city, System kitchen, Bathroom Dryer, Yang per good, All room storage, Flat to the station, LDK15 tatami mats or more, Around traffic fewer, Washbasin with shower, Face-to-face kitchen, Toilet 2 places, Warm water washing toilet seat, The window in the bathroom, TV monitor interphone, Ventilation good, All living room flooring, Dish washing dryer, City gas, Flat terrain, Floor heating フラット35Sに対応、地盤調査済、即入居可、2沿線以上利用可、スーパーが近い、市街地が近い、システムキッチン、浴室乾燥機、陽当り良好、全居室収納、駅まで平坦、LDK15畳以上、周辺交通量少なめ、シャワー付洗面台、対面式キッチン、トイレ2ヶ所、温水洗浄便座、浴室に窓、TVモニタ付インターホン、通風良好、全居室フローリング、食器洗乾燥機、都市ガス、平坦地、床暖房 |
Features pickup 特徴ピックアップ | | Corresponding to the flat-35S / Pre-ground survey / Immediate Available / 2 along the line more accessible / Super close / It is close to the city / System kitchen / Bathroom Dryer / Yang per good / All room storage / Flat to the station / LDK15 tatami mats or more / Around traffic fewer / Washbasin with shower / Face-to-face kitchen / Toilet 2 places / Warm water washing toilet seat / The window in the bathroom / TV monitor interphone / Ventilation good / All living room flooring / Dish washing dryer / City gas / Flat terrain / Floor heating フラット35Sに対応 /地盤調査済 /即入居可 /2沿線以上利用可 /スーパーが近い /市街地が近い /システムキッチン /浴室乾燥機 /陽当り良好 /全居室収納 /駅まで平坦 /LDK15畳以上 /周辺交通量少なめ /シャワー付洗面台 /対面式キッチン /トイレ2ヶ所 /温水洗浄便座 /浴室に窓 /TVモニタ付インターホン /通風良好 /全居室フローリング /食器洗乾燥機 /都市ガス /平坦地 /床暖房 | Price 価格 | | 58,800,000 yen ・ 62,800,000 yen 5880万円・6280万円 | Floor plan 間取り | | 3LDK 3LDK | Units sold 販売戸数 | | 2 units 2戸 | Total units 総戸数 | | 3 units 3戸 | Land area 土地面積 | | 55.5 sq m ・ 55.52 sq m (16.78 tsubo ・ 16.79 tsubo) (measured) 55.5m2・55.52m2(16.78坪・16.79坪)(実測) | Building area 建物面積 | | 83.49 sq m ・ 85.44 sq m (25.25 tsubo ・ 25.84 tsubo) (measured) 83.49m2・85.44m2(25.25坪・25.84坪)(実測) | Driveway burden-road 私道負担・道路 | | Road width: 5.45m, Asphaltic pavement 道路幅:5.45m、アスファルト舗装 | Completion date 完成時期(築年月) | | 2013 end of August 2013年8月末 | Address 住所 | | Setagaya-ku, Tokyo Okusawa 2 東京都世田谷区奥沢2 | Traffic 交通 | | Tokyu Toyoko Line "Jiyugaoka" walk 11 minutes Tokyu Meguro Line "Okusawa" walk 7 minutes Oimachi Line Tokyu "Midorigaoka" walk 5 minutes 東急東横線「自由が丘」歩11分 東急目黒線「奥沢」歩7分 東急大井町線「緑が丘」歩5分
| Related links 関連リンク | | [Related Sites of this company] 【この会社の関連サイト】 | Person in charge 担当者より | | Rep Yamazaki Naoki Age: 40 Daigyokai Experience: 10 years 担当者山崎 直樹年齢:40代業界経験:10年 | Contact お問い合せ先 | | TEL: 0800-603-1014 [Toll free] mobile phone ・ Also available from PHS Caller ID is not notified Please contact the "saw SUUMO (Sumo)" If it does not lead, If the real estate company TEL:0800-603-1014【通話料無料】携帯電話・PHSからもご利用いただけます 発信者番号は通知されません 「SUUMO(スーモ)を見た」と問い合わせください つながらない方、不動産会社の方は
| Building coverage, floor area ratio 建ぺい率・容積率 | | Kenpei rate: 60%, Volume ratio: 200% 建ペい率:60%、容積率:200% | Time residents 入居時期 | | Immediate available 即入居可 | Land of the right form 土地の権利形態 | | Ownership 所有権 | Use district 用途地域 | | One dwelling 1種住居 | Land category 地目 | | Residential land 宅地 | Overview and notices その他概要・特記事項 | | Contact: Yamazaki Naoki 担当者:山崎 直樹 | Company profile 会社概要 | | <Mediation> Governor of Tokyo (11) No. 027594 (Ltd.), Building Products housing Yubinbango164-0012 Honcho, Nakano-ku, Tokyo, 4-21-16 <仲介>東京都知事(11)第027594号(株)住建ハウジング〒164-0012 東京都中野区本町4-21-16 |
Local appearance photo現地外観写真  It boasts the B Building beautiful appearance
B号棟美しい外観を誇ります
Livingリビング  B Building Your family spacious living room that everyone is comfortable and welcoming
B号棟 ご家族みんながゆったりくつろげる広々リビング
Bathroom浴室  B Building With big success bathroom dryer in your laundry on a rainy day
B号棟 雨の日のお洗濯にも大活躍な浴室乾燥機付
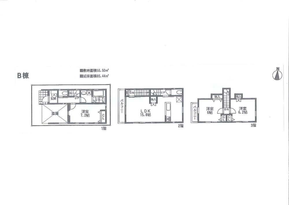
Floor plan間取り図  (B), Price 62,800,000 yen, 3LDK, Land area 55.5 sq m , Building area 84.55 sq m
(B)、価格6280万円、3LDK、土地面積55.5m2、建物面積84.55m2
Local appearance photo現地外観写真  C Building Accents of wood is a nice appearance.
C号棟 木目調のアクセントが素敵な外観です。
Livingリビング  C Building
C号棟
Bathroom浴室  C Building
C号棟
Kitchenキッチン  B Building
B号棟
Wash basin, toilet洗面台・洗面所  C Building
C号棟
 Local photos, including front road
前面道路含む現地写真
Station駅  880m to Jiyugaoka Station
自由が丘駅まで880m
Other introspectionその他内観  C Building
C号棟
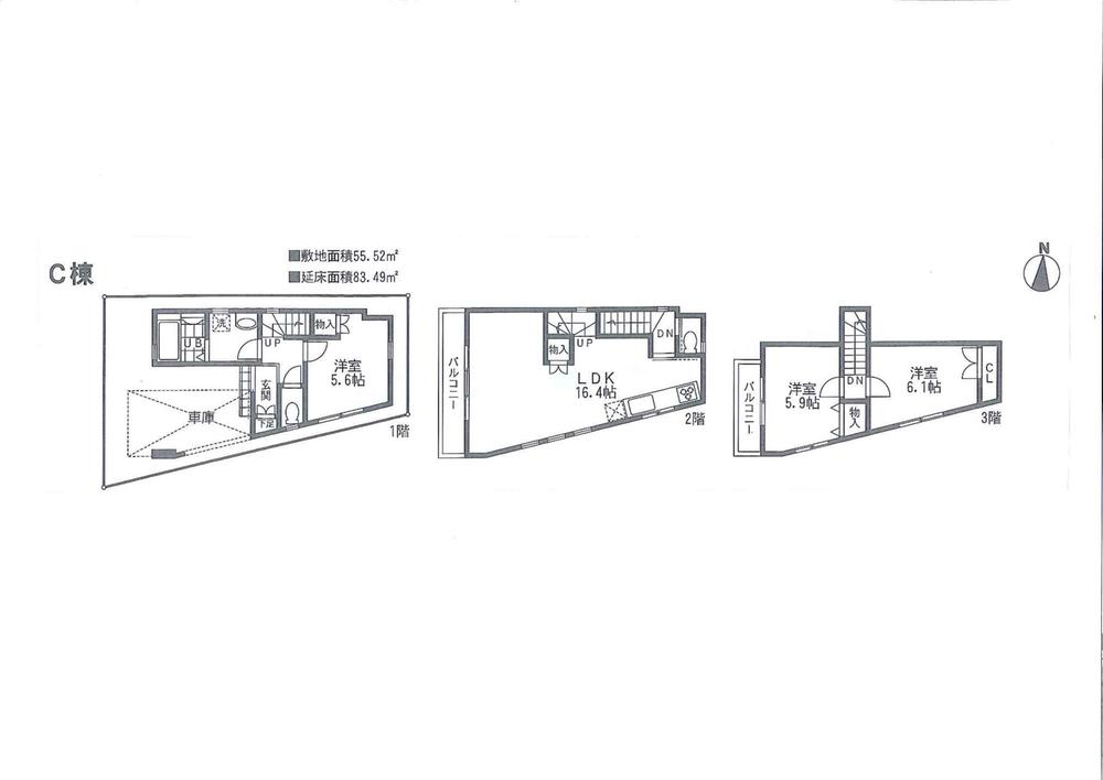
Floor plan間取り図  (C), Price 60,800,000 yen, 3LDK, Land area 55.52 sq m , Building area 83.49 sq m
(C)、価格6080万円、3LDK、土地面積55.52m2、建物面積83.49m2
Station駅  560m until Okusawa Station
奥沢駅まで560m
 400m to Midorigaoka Station
緑が丘駅まで400m
Location
|