New Homes » Kanto » Tokyo » Setagaya
 
| | Setagaya-ku, Tokyo 東京都世田谷区 |
| Odakyu line "Seijogakuen before" walk 18 minutes 小田急線「成城学園前」歩18分 |
| «Seijogakuen New construction design house LDK20 Pledge than! »Housing wealth, Shoes with cloak! ≪ 成城学園 新築デザイン住宅 LDK20帖超! ≫収納豊富、シューズクローク付! |
| ■ South road! Two parking-friendly car! Face-to-face with kitchen counter! ■ South side two-sided balcony! 38 square meters more than the land clear! Per yang ・ Ventilation is good! ■ The design of the peace of mind ・ Construction, Dairaito method adopted! Flat 35S ■ Please feel free to contact us. ■南道路!車2台駐車可!カウンター付対面キッチン!■南面2面バルコニー!土地ゆとりの38坪超!陽当たり・通風良好です!■安心の設計・施工、ダイライト工法採用!フラット35S■お気軽にお問合せ下さい。 |
Features pickup 特徴ピックアップ | | Corresponding to the flat-35S / Pre-ground survey / Parking two Allowed / LDK20 tatami mats or more / Super close / It is close to the city / Facing south / Bathroom Dryer / Yang per good / A quiet residential area / Around traffic fewer / Shaping land / Face-to-face kitchen / Security enhancement / Wide balcony / Bathroom 1 tsubo or more / 2-story / 2 or more sides balcony / South balcony / Double-glazing / The window in the bathroom / Leafy residential area / Dish washing dryer / Water filter / City gas / A large gap between the neighboring house / Attic storage / Floor heating フラット35Sに対応 /地盤調査済 /駐車2台可 /LDK20畳以上 /スーパーが近い /市街地が近い /南向き /浴室乾燥機 /陽当り良好 /閑静な住宅地 /周辺交通量少なめ /整形地 /対面式キッチン /セキュリティ充実 /ワイドバルコニー /浴室1坪以上 /2階建 /2面以上バルコニー /南面バルコニー /複層ガラス /浴室に窓 /緑豊かな住宅地 /食器洗乾燥機 /浄水器 /都市ガス /隣家との間隔が大きい /屋根裏収納 /床暖房 | Price 価格 | | 84,800,000 yen 8480万円 | Floor plan 間取り | | 3LDK 3LDK | Units sold 販売戸数 | | 1 units 1戸 | Total units 総戸数 | | 2 units 2戸 | Land area 土地面積 | | 127.25 sq m (38.49 tsubo) (measured) 127.25m2(38.49坪)(実測) | Building area 建物面積 | | 99.22 sq m (30.01 tsubo) (Registration) 99.22m2(30.01坪)(登記) | Driveway burden-road 私道負担・道路 | | Nothing, South 4m width (contact the road width 8.5m) 無、南4m幅(接道幅8.5m) | Completion date 完成時期(築年月) | | April 2014 2014年4月 | Address 住所 | | Setagaya-ku, Tokyo Seijo 9 東京都世田谷区成城9 | Traffic 交通 | | Odakyu line "Seijogakuen before" walk 18 minutes Odakyu line "Soshiketani Finance" walk 21 minutes Keio Line "Sengawa" walk 26 minutes 小田急線「成城学園前」歩18分 小田急線「祖師ヶ谷大蔵」歩21分 京王線「仙川」歩26分
| Person in charge 担当者より | | Rep Takeshi Sato 担当者佐藤剛史 | Contact お問い合せ先 | | TEL: 0800-603-3448 [Toll free] mobile phone ・ Also available from PHS Caller ID is not notified Please contact the "saw SUUMO (Sumo)" If it does not lead, If the real estate company TEL:0800-603-3448【通話料無料】携帯電話・PHSからもご利用いただけます 発信者番号は通知されません 「SUUMO(スーモ)を見た」と問い合わせください つながらない方、不動産会社の方は
| Building coverage, floor area ratio 建ぺい率・容積率 | | 40% ・ 80% 40%・80% | Time residents 入居時期 | | Consultation 相談 | Land of the right form 土地の権利形態 | | Ownership 所有権 | Structure and method of construction 構造・工法 | | Wooden 2-story 木造2階建 | Use district 用途地域 | | One low-rise 1種低層 | Overview and notices その他概要・特記事項 | | The person in charge: Takeshi Sato, Facilities: Public Water Supply, This sewage, City gas, Building confirmation number: 13UDI2S Ken 02290, Parking: car space 担当者:佐藤剛史、設備:公営水道、本下水、都市ガス、建築確認番号:13UDI2S建02290、駐車場:カースペース | Company profile 会社概要 | | <Mediation> Governor of Tokyo (2) No. 082920 (Corporation) Tokyo Metropolitan Government Building Lots and Buildings Transaction Business Association (Corporation) metropolitan area real estate Fair Trade Council member am tick (Ltd.) Kichijoji headquarters sales department Yubinbango180-0002 Musashino-shi, Tokyo Kichijojihigashi cho 1-19-21 <仲介>東京都知事(2)第082920号(公社)東京都宅地建物取引業協会会員 (公社)首都圏不動産公正取引協議会加盟アムティック(株)吉祥寺本社営業部〒180-0002 東京都武蔵野市吉祥寺東町1-19-21 |
Same specifications photos (appearance)同仕様写真(外観)  Enforcement example photo
施行例写真
Non-living roomリビング以外の居室  Enforcement example photo
施行例写真
Same specifications photos (living)同仕様写真(リビング)  Enforcement example photo
施行例写真
Floor plan間取り図  84,800,000 yen, 3LDK, Land area 127.25 sq m , Building area 99.22 sq m 1 Building
8480万円、3LDK、土地面積127.25m2、建物面積99.22m2 1号棟
Same specifications photos (appearance)同仕様写真(外観)  Enforcement example photo
施行例写真
Same specifications photos (living)同仕様写真(リビング)  Enforcement example photo
施行例写真
Same specifications photo (bathroom)同仕様写真(浴室)  Enforcement example photo
施行例写真
Same specifications photo (kitchen)同仕様写真(キッチン)  Enforcement example photo
施行例写真
 Local photos, including front road
前面道路含む現地写真
Kindergarten ・ Nursery幼稚園・保育園  1257m to Chitose nursery
千歳保育園まで1257m
 View photos from the dwelling unit
住戸からの眺望写真
 Compartment figure
区画図
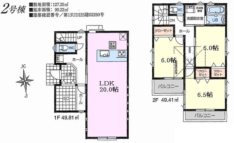
Floor plan間取り図  84,800,000 yen, 3LDK, Land area 127.25 sq m , Building area 99.22 sq m 2 Building
8480万円、3LDK、土地面積127.25m2、建物面積99.22m2 2号棟
 Local appearance photo
現地外観写真
 Local photos, including front road
前面道路含む現地写真
Primary school小学校  280m to Setagaya Ward Chitosedai Elementary School
世田谷区立千歳台小学校まで280m
 Local appearance photo
現地外観写真
 Local photos, including front road
前面道路含む現地写真
 1101m to Setagaya Tatsuzuka door elementary school
世田谷区立塚戸小学校まで1101m
 Local appearance photo
現地外観写真
Supermarketスーパー  Summit Soshigaya to the store 1046m
サミット 祖師谷店まで1046m
Location
|