New Homes » Kanto » Tokyo » Setagaya
 
| | Setagaya-ku, Tokyo 東京都世田谷区 |
| Denentoshi Tokyu "Komazawa" walk 7 minutes 東急田園都市線「駒沢大学」歩7分 |
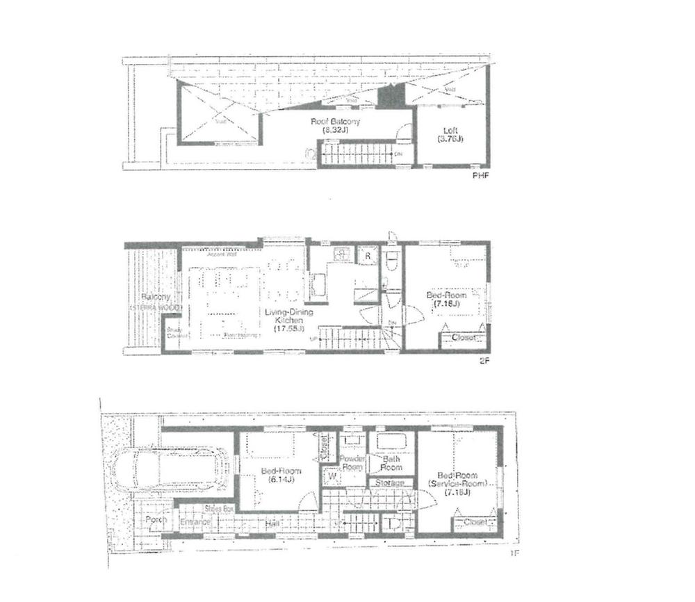
| 3LDK of two-story ideal About with a roof balcony to 3.7 Pledge of loft Living top open preeminent in the atrium Plans that take advantage of the space to the fullest Soon scheduled for completion! 理想の2階建ての3LDK 約3.7帖のロフトにルーフバルコニー付き リビング上部は吹抜けで開放感抜群 空間を最大限に活かしたプラン まもなく完成予定! |
| Denentoshi "Komazawa University" good location a 7-minute walk from the station Supermarkets and pharmacies, Enhance commercial facilities such as banks Green is also a lot livable living environment, such as Komazawa Olympic Park [Asahi Small ・ KomaTomechu] 田園都市線『駒沢大学』駅より徒歩7分の好立地 スーパーや薬局、銀行などの商業施設が充実 駒沢オリンピック公園など緑も多く暮らしやすい住環境です 【旭小・駒留中】 |
Features pickup 特徴ピックアップ | | 2 along the line more accessible / Super close / System kitchen / Yang per good / All room storage / A quiet residential area / LDK15 tatami mats or more / Shaping land / Washbasin with shower / Face-to-face kitchen / 3 face lighting / Barrier-free / Toilet 2 places / Bathroom 1 tsubo or more / 2-story / Double-glazing / Otobasu / Warm water washing toilet seat / loft / The window in the bathroom / Atrium / TV monitor interphone / Leafy residential area / Ventilation good / All living room flooring / Dish washing dryer / All room 6 tatami mats or more / Water filter / Living stairs / City gas / All rooms are two-sided lighting / roof balcony / Floor heating 2沿線以上利用可 /スーパーが近い /システムキッチン /陽当り良好 /全居室収納 /閑静な住宅地 /LDK15畳以上 /整形地 /シャワー付洗面台 /対面式キッチン /3面採光 /バリアフリー /トイレ2ヶ所 /浴室1坪以上 /2階建 /複層ガラス /オートバス /温水洗浄便座 /ロフト /浴室に窓 /吹抜け /TVモニタ付インターホン /緑豊かな住宅地 /通風良好 /全居室フローリング /食器洗乾燥機 /全居室6畳以上 /浄水器 /リビング階段 /都市ガス /全室2面採光 /ルーフバルコニー /床暖房 | Price 価格 | | 76,800,000 yen 7680万円 | Floor plan 間取り | | 3LDK 3LDK | Units sold 販売戸数 | | 1 units 1戸 | Land area 土地面積 | | 81.29 sq m 81.29m2 | Building area 建物面積 | | 81.29 sq m 81.29m2 | Driveway burden-road 私道負担・道路 | | Nothing, Northwest 4m width 無、北西4m幅 | Completion date 完成時期(築年月) | | December 2013 2013年12月 | Address 住所 | | Setagaya-ku, Tokyo Nozawa 4 東京都世田谷区野沢4 | Traffic 交通 | | Denentoshi Tokyu "Komazawa" walk 7 minutes Tokyu Toyoko Line "liberal arts college" walk 25 minutes Denentoshi Tokyu "Sangenjaya" walk 15 minutes 東急田園都市線「駒沢大学」歩7分 東急東横線「学芸大学」歩25分 東急田園都市線「三軒茶屋」歩15分
| Person in charge 担当者より | | [Regarding this property.] All rooms 6 quires more leeway! Seongnam ・ Josai area Please Leave! ! Local contact information by area limited! Unpublished Property number! ! Contact us, please call! 03-3797-3468 【この物件について】ゆとりの全室6帖以上! 城南・城西エリアはおまかせください!!エリア限定による地元密着情報!未公開物件多数!!お問い合わせはお電話下さい!03-3797-3468 | Contact お問い合せ先 | | TEL: 0800-601-5017 [Toll free] mobile phone ・ Also available from PHS Caller ID is not notified Please contact the "saw SUUMO (Sumo)" If it does not lead, If the real estate company TEL:0800-601-5017【通話料無料】携帯電話・PHSからもご利用いただけます 発信者番号は通知されません 「SUUMO(スーモ)を見た」と問い合わせください つながらない方、不動産会社の方は
| Building coverage, floor area ratio 建ぺい率・容積率 | | 60% ・ 150% 60%・150% | Time residents 入居時期 | | Consultation 相談 | Land of the right form 土地の権利形態 | | Ownership 所有権 | Structure and method of construction 構造・工法 | | Wooden 2-story 木造2階建 | Overview and notices その他概要・特記事項 | | Facilities: Public Water Supply, This sewage, City gas, Building confirmation number: No. BNV 確済 13-860, Parking: Garage 設備:公営水道、本下水、都市ガス、建築確認番号:第BNV確済13-860号、駐車場:車庫 | Company profile 会社概要 | | <Mediation> Governor of Tokyo (1) No. 095623 (stock) Tokyo House Yubinbango158-0098 Setagaya-ku, Tokyo Kamiyoga 5-4-5 <仲介>東京都知事(1)第095623号(株)東京ハウス〒158-0098 東京都世田谷区上用賀5-4-5 |
 Rendering (appearance)
完成予想図(外観)
Floor plan間取り図  76,800,000 yen, 3LDK, Land area 81.29 sq m , Building area 81.29 sq m
7680万円、3LDK、土地面積81.29m2、建物面積81.29m2
Station駅  Komazawa University to the station 560m
駒沢大学駅まで560m
 1500m to Sangenjaya Station
三軒茶屋駅まで1500m
Supermarketスーパー  500m to Maruetsu
マルエツまで500m
Drug storeドラッグストア  Until Seijo 480m
セイジョーまで480m
Bank銀行  Mizuho 1000m to Bank
みずほ銀行まで1000m
Park公園  800m to Komazawa Olympic Park
駒沢オリンピック公園まで800m
Kindergarten ・ Nursery幼稚園・保育園  Komazawa 240m to nursery school
駒沢保育園まで240m
Primary school小学校  500m to Asahi Elementary School
旭小学校まで500m
Junior high school中学校  KomaTome until junior high school 1400m
駒留中学校まで1400m
Location
|