2014February
53,800,000 yen, 3LDK + S (storeroom), 106.81 sq m
New Homes » Kanto » Tokyo » Setagaya
 
| | Setagaya-ku, Tokyo 東京都世田谷区 |
| Odakyu line "Chitosefunabashi" walk 7 minutes 小田急線「千歳船橋」歩7分 |
Features pickup 特徴ピックアップ | | Bathroom Dryer / Yang per good / All room storage / LDK15 tatami mats or more / Face-to-face kitchen / Bathroom 1 tsubo or more / South balcony / Ventilation good / All living room flooring / Dish washing dryer / Walk-in closet / All room 6 tatami mats or more / Water filter / Three-story or more / Floor heating / terrace 浴室乾燥機 /陽当り良好 /全居室収納 /LDK15畳以上 /対面式キッチン /浴室1坪以上 /南面バルコニー /通風良好 /全居室フローリング /食器洗乾燥機 /ウォークインクロゼット /全居室6畳以上 /浄水器 /3階建以上 /床暖房 /テラス | Property name 物件名 | | Funabashi House 船橋ハウス | Price 価格 | | 53,800,000 yen 5380万円 | Floor plan 間取り | | 3LDK + S (storeroom) 3LDK+S(納戸) | Units sold 販売戸数 | | 1 units 1戸 | Land area 土地面積 | | 70.41 sq m (21.29 tsubo) (Registration) 70.41m2(21.29坪)(登記) | Building area 建物面積 | | 106.81 sq m (32.30 tsubo) (Registration) 106.81m2(32.30坪)(登記) | Driveway burden-road 私道負担・道路 | | 22.72 sq m 22.72m2 | Completion date 完成時期(築年月) | | February 2014 2014年2月 | Address 住所 | | Setagaya-ku, Tokyo Funabashi 1 東京都世田谷区船橋1 | Traffic 交通 | | Odakyu line "Chitosefunabashi" walk 7 minutes 小田急線「千歳船橋」歩7分
| Person in charge 担当者より | | [Regarding this property.] Floor plan of a 7-minute walk from Chitosefunabashi Station 4LDK, Total floor area is 100 square meters recommended Property! 【この物件について】千歳船橋駅より徒歩7分の間取り4LDK、延床面積100平米のオススメ物件です! | Contact お問い合せ先 | | TEL: 0800-603-0049 [Toll free] mobile phone ・ Also available from PHS Caller ID is not notified Please contact the "saw SUUMO (Sumo)" If it does not lead, If the real estate company TEL:0800-603-0049【通話料無料】携帯電話・PHSからもご利用いただけます 発信者番号は通知されません 「SUUMO(スーモ)を見た」と問い合わせください つながらない方、不動産会社の方は
| Building coverage, floor area ratio 建ぺい率・容積率 | | 60% ・ 200% 60%・200% | Time residents 入居時期 | | February 2014 schedule 2014年2月予定 | Land of the right form 土地の権利形態 | | Ownership 所有権 | Structure and method of construction 構造・工法 | | Wooden three-story 木造3階建 | Overview and notices その他概要・特記事項 | | Building confirmation number: No. 1234, Parking: car space 建築確認番号:第1234、駐車場:カースペース | Company profile 会社概要 | | <Mediation> Minister of Land, Infrastructure and Transport (7) No. 003766 (Corporation) Tokyo Metropolitan Government Building Lots and Buildings Transaction Business Association (Corporation) metropolitan area real estate Fair Trade Council member Co., Ltd., Building Products housing business Lesson 3 Yubinbango151-0065 Shibuya-ku, Tokyo Oyama-cho, 18-6 <仲介>国土交通大臣(7)第003766号(公社)東京都宅地建物取引業協会会員 (公社)首都圏不動産公正取引協議会加盟(株)住建ハウジング営業3課〒151-0065 東京都渋谷区大山町18-6 |
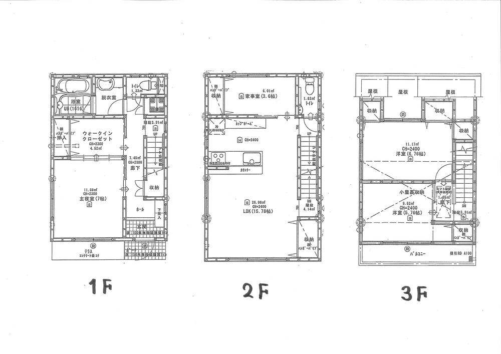
Floor plan間取り図  53,800,000 yen, 3LDK + S (storeroom), Land area 70.41 sq m , Also the day contains the building area 106.81 sq m 1 floor!
5380万円、3LDK+S(納戸)、土地面積70.41m2、建物面積106.81m2 1階も日が入ります!
Rendering (appearance)完成予想図(外観)  Exterior - Rendering
外観完成予想図
Location
|