New Homes » Kanto » Tokyo » Setagaya


Setagaya-ku, Tokyo
Oimachi Line Tokyu "Jiyugaoka" walk 7 minutes
Land frontage 8m shaping land, Will be newly built single-family of Kuhonbutsu. It becomes the unfinished property, There is another site so you can see such as the interior of the same specifications of the sale advertisers.
All room storage, System kitchen, Face-to-face kitchen, Dish washing dryer, Water filter, Stove 3-neck, Dishwasher, Wide balcony, South balcony, Toilet 2 places, Warm water washing toilet seat, Washbasin with shower, High-function toilet, Three-story or more, Around traffic fewer, Shaping land, Flat to the station, 2 along the line more accessible, Fiscal year Available
Features pickup
2 along the line more accessible / LDK18 tatami mats or more / Fiscal year Available / System kitchen / Bathroom Dryer / Yang per good / All room storage / Flat to the station / Around traffic fewer / Shaping land / Washbasin with shower / Face-to-face kitchen / Wide balcony / Barrier-free / Toilet 2 places / Bathroom 1 tsubo or more / South balcony / Otobasu / Warm water washing toilet seat / High-function toilet / All living room flooring / Dish washing dryer / Water filter / Three-story or more / Floor heating
Price
73,110,000 yen
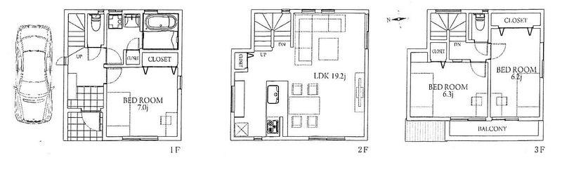
Floor plan
3LDK
Units sold
1 units
Total units
1 units
Land area
56.87 sq m (17.20 tsubo) (measured)
Building area
90.67 sq m (27.42 tsubo) (Registration)
Driveway burden-road
Nothing, West 4m width
Completion date
February 2016
Address
Setagaya-ku, Tokyo Okusawa 7
Traffic
Oimachi Line Tokyu "Jiyugaoka" walk 7 minutes
Oimachi Line Tokyu "Kuhonbutsu" walk 3 minutes
Tokyu Meguro Line "Okusawa" walk 11 minutes
Related links
[Related Sites of this company]
Contact
TEL: 0800-603-8969 [Toll free] mobile phone ・ Also available from PHS
Caller ID is not notified
Please contact the "saw SUUMO (Sumo)"
If it does not lead, If the real estate company
Building coverage, floor area ratio
60% ・ 160%
Time residents
March 2016 schedule
Land of the right form
Ownership
Structure and method of construction
Wooden three-story part RC
Use district
One middle and high
Other limitations
Set-back: already, Height district, Quasi-fire zones, Shade limit Yes
Overview and notices
Facilities: Public Water Supply, This sewage, City gas, Building confirmation number: H25A-BA.a00362-01, Parking: car space
Company profile
<Marketing alliance (mediated)> Governor of Tokyo (2) No. 089271 (Ltd.) planning Estate Yubinbango153-0063 Meguro-ku, Tokyo Meguro 1-6-17


Floor plan

Floor plan. 73,110,000 yen, 3LDK, Land area 56.87 sq m , Building area 90.67 sq m
73,110,000 yen, 3LDK, Land area 56.87 sq m , Building area 90.67 sq m

Local appearance photo

Local appearance photo. Example of construction
Example of construction

Bathroom

Bathroom. Example of construction
Example of construction

Living

Living. Example of construction
Example of construction

Kitchen

Kitchen. Example of construction
Example of construction

Non-living room

Non-living room. Example of construction
Example of construction

Wash basin, toilet

Wash basin, toilet. Example of construction
Example of construction

Receipt

Receipt. Example of construction
Example of construction

Toilet

Toilet. Example of construction
Example of construction

Living

Living. Example of construction
Example of construction

Local appearance photo

Local appearance photo. Example of construction
Example of construction

Kitchen

Kitchen. Example of construction
Example of construction

Living

Living. Example of construction
Example of construction

Toilet

Toilet. Example of construction
Example of construction

Non-living room

Non-living room. Example of construction
Example of construction

Bathroom

Bathroom. Example of construction
Example of construction

Wash basin, toilet

Wash basin, toilet. Example of construction
Example of construction



Location