New Homes » Kanto » Tokyo » Shinagawa
 
| | Shinagawa-ku, Tokyo 東京都品川区 |
| Tokyu Ikegami Line "Osaki Hirokoji" walk 6 minutes 東急池上線「大崎広小路」歩6分 |
| Will be newly built single-family of Osaki. It becomes the unfinished property, There is another site so you can see such as the interior of the same specifications of the sale advertisers. 大崎の新築戸建になります。 未完成の物件にはなりますが、分譲主様の同仕様での他現場がございますので内装などご覧いただけます。 |
| Floor heating, Flooring, All living room flooring 床暖房、フローリング、全居室フローリング |
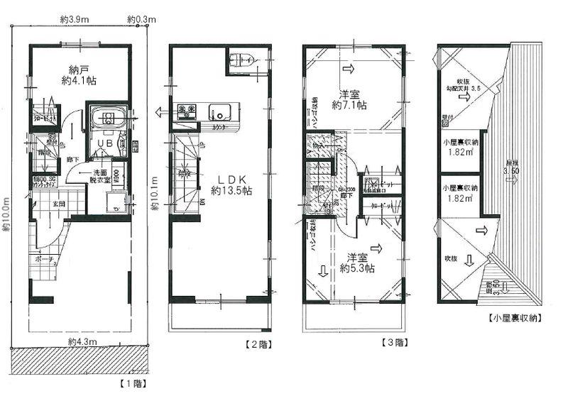
Features pickup 特徴ピックアップ | | 2 along the line more accessible / System kitchen / Yang per good / All room storage / A quiet residential area / Face-to-face kitchen / 2 or more sides balcony / All living room flooring / Southwestward / Three-story or more / Living stairs / Storeroom / All rooms are two-sided lighting / Attic storage / Floor heating 2沿線以上利用可 /システムキッチン /陽当り良好 /全居室収納 /閑静な住宅地 /対面式キッチン /2面以上バルコニー /全居室フローリング /南西向き /3階建以上 /リビング階段 /納戸 /全室2面採光 /屋根裏収納 /床暖房 | Price 価格 | | 49,800,000 yen 4980万円 | Floor plan 間取り | | 2LDK + S (storeroom) 2LDK+S(納戸) | Units sold 販売戸数 | | 1 units 1戸 | Total units 総戸数 | | 1 units 1戸 | Land area 土地面積 | | 43.13 sq m 43.13m2 | Building area 建物面積 | | 68.03 sq m (measured) 68.03m2(実測) | Driveway burden-road 私道負担・道路 | | Nothing, Southwest 2.2m width (contact the road width 4.3m) 無、南西2.2m幅(接道幅4.3m) | Completion date 完成時期(築年月) | | January 2014 2014年1月 | Address 住所 | | Osaki, Shinagawa-ku, Tokyo 4 東京都品川区大崎4 | Traffic 交通 | | Tokyu Ikegami Line "Osaki Hirokoji" walk 6 minutes JR Yamanote Line "Osaki" walk 9 minutes Toei Asakusa Line "Togoshi" walk 12 minutes 東急池上線「大崎広小路」歩6分 JR山手線「大崎」歩9分 都営浅草線「戸越」歩12分
| Related links 関連リンク | | [Related Sites of this company] 【この会社の関連サイト】 | Person in charge 担当者より | | Rep Tomita 担当者冨田 | Contact お問い合せ先 | | TEL: 0800-603-8969 [Toll free] mobile phone ・ Also available from PHS Caller ID is not notified Please contact the "saw SUUMO (Sumo)" If it does not lead, If the real estate company TEL:0800-603-8969【通話料無料】携帯電話・PHSからもご利用いただけます 発信者番号は通知されません 「SUUMO(スーモ)を見た」と問い合わせください つながらない方、不動産会社の方は
| Building coverage, floor area ratio 建ぺい率・容積率 | | 60% ・ 160% 60%・160% | Time residents 入居時期 | | February 2014 schedule 2014年2月予定 | Land of the right form 土地の権利形態 | | Ownership 所有権 | Structure and method of construction 構造・工法 | | Wooden three-story (framing method) 木造3階建(軸組工法) | Use district 用途地域 | | One dwelling 1種住居 | Other limitations その他制限事項 | | Set-back: already, Height district, Quasi-fire zones, Shade limit Yes セットバック:済、高度地区、準防火地域、日影制限有 | Overview and notices その他概要・特記事項 | | Contact: Tomita, Facilities: Public Water Supply, This sewage, City gas, Building confirmation number: BNV 確済 13-1172, Parking: car space 担当者:冨田、設備:公営水道、本下水、都市ガス、建築確認番号:BNV確済13-1172、駐車場:カースペース | Company profile 会社概要 | | <Marketing alliance (mediated)> Governor of Tokyo (2) No. 089271 (Ltd.) planning Estate Yubinbango153-0063 Meguro-ku, Tokyo Meguro 1-6-17 <販売提携(媒介)>東京都知事(2)第089271号(株)プランニングエステート〒153-0063 東京都目黒区目黒1-6-17 |
Rendering (appearance)完成予想図(外観)  Rendering
完成予想図
Floor plan間取り図  49,800,000 yen, 2LDK+S, Land area 43.13 sq m , Building area 68.03 sq m
4980万円、2LDK+S、土地面積43.13m2、建物面積68.03m2
 Local appearance photo
現地外観写真
 Local photos, including front road
前面道路含む現地写真
Primary school小学校  Ward Hohsui Corporation until elementary school 375m
区立芳水小学校まで375m
 View photos from the dwelling unit
住戸からの眺望写真
Junior high school中学校  Municipal 500m to Osaki junior high school
区立大崎中学校まで500m
 View photos from the dwelling unit
住戸からの眺望写真
Location
|