New Homes » Kanto » Tokyo » Shinagawa
 
| | Shinagawa-ku, Tokyo 東京都品川区 |
| JR Keihin Tohoku Line "Oimachi" walk 13 minutes JR京浜東北線「大井町」歩13分 |
| Keikyu main line "Sameshu" Station 6-minute walk! It is a sunny location facing the southwest road. small ・ And within a 7-minute walk is junior high school and parks, It is child-rearing in the happy environment. 京急本線「鮫洲」駅徒歩6分!南西道路に面した日当たりのよい立地です。小・中学校や公園が徒歩7分以内と、子育てに嬉しい環境です。 |
| 2 along the line more accessible, Shaping land, City gas, Corner lot (B Building), System kitchen, Bathroom 1 tsubo or more (B Building), Warm water washing toilet seat, The window in the bathroom, Dish washing dryer, Water filter, Three-story or more, All rooms are two-sided lighting, Attic storage, Underfloor ventilation system, 24-hour ventilation system 2沿線以上利用可、整形地、都市ガス、角地(B号棟)、システムキッチン、浴室1坪以上(B号棟)、温水洗浄便座、浴室に窓、食器洗乾燥機、浄水器、3階建以上、全室2面採光、屋根裏収納、床下換気システム、24時間換気システム |
Features pickup 特徴ピックアップ | | 2 along the line more accessible / System kitchen / Corner lot / Shaping land / Bathroom 1 tsubo or more / Warm water washing toilet seat / The window in the bathroom / Dish washing dryer / Water filter / Three-story or more / City gas / All rooms are two-sided lighting / Attic storage 2沿線以上利用可 /システムキッチン /角地 /整形地 /浴室1坪以上 /温水洗浄便座 /浴室に窓 /食器洗乾燥機 /浄水器 /3階建以上 /都市ガス /全室2面採光 /屋根裏収納 | Property name 物件名 | | [Grace Wood Blanche] "Sameshu" Station 6-minute walk! Higashioi 2 (Ōimachi Station) from 41.8 million yen 【グレイスウッドブランシェ】「鮫洲」駅徒歩6分! 東大井2(大井町駅) 4180万円より | Price 価格 | | 41,800,000 yen ・ 43,800,000 yen 4180万円・4380万円 | Floor plan 間取り | | 1LDK + 2S (storeroom) ・ 2LDK + S (storeroom) 1LDK+2S(納戸)・2LDK+S(納戸) | Units sold 販売戸数 | | 2 units 2戸 | Total units 総戸数 | | 2 units 2戸 | Land area 土地面積 | | 40.16 sq m ・ 41.06 sq m (measured) 40.16m2・41.06m2(実測) | Building area 建物面積 | | 65.39 sq m ・ 67.53 sq m (measured) 65.39m2・67.53m2(実測) | Driveway burden-road 私道負担・道路 | | Road width: 3.4m ~ 4.0m, Setback requirements (A Building: 3.79m2, B Building 9.61m2), including the corner cutting 1.02m2 (B Building) 道路幅:3.4m ~ 4.0m、セットバック要(A号棟:3.79m2、B号棟9.61m2),隅切り1.02m2含む(B号棟) | Completion date 完成時期(築年月) | | 2014 end of February schedule 2014年2月末予定 | Address 住所 | | Shinagawa-ku, Tokyo Higashioi 2 東京都品川区東大井2 | Traffic 交通 | | JR Keihin Tohoku Line "Oimachi" walk 13 minutes Keikyu main line "Sameshu" walk 6 minutes Keikyu main line "Tachiaigawa" walk 10 minutes JR京浜東北線「大井町」歩13分 京急本線「鮫洲」歩6分 京急本線「立会川」歩10分
| Related links 関連リンク | | [Related Sites of this company] 【この会社の関連サイト】 | Person in charge 担当者より | | Responsible Shataku Kenichi will correspond age in the team for the people of our customers: 30 Daigyokai experience: For one of the customers in the 11 years our company, Sales staff ・ team leader ・ Contract Division ・ Constitute a team of four people at the lowest loan Division, Each making full use of professional knowledge, In order to do our best to meet the needs of our customers 担当者宅建一人のお客様に対してチームで対応致します年齢:30代業界経験:11年当社では一人のお客様に対し、営業スタッフ・チームリーダー・契約課・ローン課の最低でも4名によるチームを構成し、それぞれプロフェッショナルな知識を駆使し、お客様のご要望にお応えすべく全力を尽くします | Contact お問い合せ先 | | TEL: 0800-603-1505 [Toll free] mobile phone ・ Also available from PHS Caller ID is not notified Please contact the "saw SUUMO (Sumo)" If it does not lead, If the real estate company TEL:0800-603-1505【通話料無料】携帯電話・PHSからもご利用いただけます 発信者番号は通知されません 「SUUMO(スーモ)を見た」と問い合わせください つながらない方、不動産会社の方は
| Building coverage, floor area ratio 建ぺい率・容積率 | | Kenpei rate: 60% ・ 70%, Volume ratio: 200% 建ペい率:60%・70%、容積率:200% | Time residents 入居時期 | | 2014 end of February schedule 2014年2月末予定 | Land of the right form 土地の権利形態 | | Ownership 所有権 | Structure and method of construction 構造・工法 | | Wooden three-story 木造3階建 | Use district 用途地域 | | Semi-industrial 準工業 | Land category 地目 | | Residential land 宅地 | Other limitations その他制限事項 | | Height district, Quasi-fire zones 高度地区、準防火地域 | Overview and notices その他概要・特記事項 | | Contact: we will correspond team against one of the customers, Building confirmation number: No. H25A-JK e.X00983-01 other 担当者:一人のお客様に対してチームで対応致します、建築確認番号:第H25A-JK e.X00983-01号 他 | Company profile 会社概要 | | <Mediation> Minister of Land, Infrastructure and Transport (2) No. 007124 (Corporation) All Japan Real Estate Association (Corporation) metropolitan area real estate Fair Trade Council member (Ltd.) living life Kamata branch Yubinbango144-0051 Ota-ku, Tokyo Nishikamata 8-11-11 <仲介>国土交通大臣(2)第007124号(公社)全日本不動産協会会員 (公社)首都圏不動産公正取引協議会加盟(株)リビングライフ蒲田支店〒144-0051 東京都大田区西蒲田8-11-11 |
Exhibition hall / Showroom展示場/ショウルーム  showroom
ショールーム
 Rendering (appearance)
完成予想図(外観)
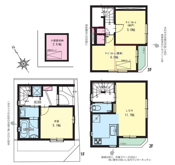
Floor plan間取り図  (A Building), Price 41,800,000 yen, 2LDK+S, Land area 41.06 sq m , Building area 65.39 sq m
(A号棟)、価格4180万円、2LDK+S、土地面積41.06m2、建物面積65.39m2
Shopping centreショッピングセンター  Atre 970m to Oimachi
アトレ大井町まで970m
Floor plan間取り図  (B Building), Price 43,800,000 yen, 1LDK+2S, Land area 40.16 sq m , Building area 67.53 sq m
(B号棟)、価格4380万円、1LDK+2S、土地面積40.16m2、建物面積67.53m2
Supermarketスーパー  Ito-Yokado 1000m until Oimachi shop
イトーヨーカドー大井町店まで1000m
 850m to Super Bunkado Minamioi shop
スーパー文化堂南大井店まで850m
Junior high school中学校  430m to Shinagawa Tachihama River Junior High School
品川区立浜川中学校まで430m
Primary school小学校  80m to Shinagawa Tatsusame beach elementary school
品川区立鮫浜小学校まで80m
Hospital病院  720m to Toshiba hospital
東芝病院まで720m
Park公園  530m to Oi park
大井公園まで530m
Location
|