New Homes » Kanto » Tokyo » Shinagawa
 
| | Shinagawa-ku, Tokyo 東京都品川区 |
| Toei Asakusa Line "Nakanobu" walk 5 minutes 都営浅草線「中延」歩5分 |
| Two routes available, "Nakanobu" station walk 5 minutes! All six buildings newly built single-family project! Effortlessly mall also near shopping! ! Contact us [0800-603-7798 Toll free] Co., Ltd. to Comfort 二路線利用可能な「中延」駅徒歩5分!全6棟新築戸建プロジェクト!商店街も近くお買い物も楽々!!お問い合わせは【0800-603-7798 通話料無料】株式会社コンフォートまで |
Features pickup 特徴ピックアップ | | 2 along the line more accessible / LDK20 tatami mats or more / System kitchen / Bathroom Dryer / Shaping land / Face-to-face kitchen / Toilet 2 places / Bathroom 1 tsubo or more / 2 or more sides balcony / Mu front building / All living room flooring / Dish washing dryer / All room 6 tatami mats or more / Three-story or more / Flat terrain 2沿線以上利用可 /LDK20畳以上 /システムキッチン /浴室乾燥機 /整形地 /対面式キッチン /トイレ2ヶ所 /浴室1坪以上 /2面以上バルコニー /前面棟無 /全居室フローリング /食器洗乾燥機 /全居室6畳以上 /3階建以上 /平坦地 | Price 価格 | | 60,800,000 yen 6080万円 | Floor plan 間取り | | 3LDK 3LDK | Units sold 販売戸数 | | 1 units 1戸 | Total units 総戸数 | | 6 units 6戸 | Land area 土地面積 | | 61.79 sq m 61.79m2 | Building area 建物面積 | | 105.31 sq m (measured) 105.31m2(実測) | Driveway burden-road 私道負担・道路 | | Nothing, North 4m width (contact the road width 5.8m) 無、北4m幅(接道幅5.8m) | Completion date 完成時期(築年月) | | January 2014 2014年1月 | Address 住所 | | Shinagawa-ku, Tokyo Futaba 4 東京都品川区二葉4 | Traffic 交通 | | Toei Asakusa Line "Nakanobu" walk 5 minutes Oimachi Line Tokyu "Nakanobu" walk 6 minutes 都営浅草線「中延」歩5分 東急大井町線「中延」歩6分
| Related links 関連リンク | | [Related Sites of this company] 【この会社の関連サイト】 | Person in charge 担当者より | | Person in charge of Shibuya 担当者渋谷 | Contact お問い合せ先 | | (Ltd.) Comfort TEL: 0800-603-7798 [Toll free] mobile phone ・ Also available from PHS Caller ID is not notified Please contact the "saw SUUMO (Sumo)" If it does not lead, If the real estate company (株)コンフォートTEL:0800-603-7798【通話料無料】携帯電話・PHSからもご利用いただけます 発信者番号は通知されません 「SUUMO(スーモ)を見た」と問い合わせください つながらない方、不動産会社の方は
| Building coverage, floor area ratio 建ぺい率・容積率 | | 60% ・ 200% 60%・200% | Time residents 入居時期 | | February 2014 schedule 2014年2月予定 | Land of the right form 土地の権利形態 | | Ownership 所有権 | Structure and method of construction 構造・工法 | | Wooden three-story 木造3階建 | Use district 用途地域 | | Semi-industrial 準工業 | Overview and notices その他概要・特記事項 | | Contact: Shibuya, Facilities: Public Water Supply, This sewage, City gas, Building confirmation number: 13UDI2T0015, Parking: Garage 担当者:渋谷、設備:公営水道、本下水、都市ガス、建築確認番号:13UDI2T0015、駐車場:車庫 | Company profile 会社概要 | | <Mediation> Governor of Tokyo (3) No. 078763 (Corporation) All Japan Real Estate Association (Corporation) metropolitan area real estate Fair Trade Council member (Ltd.) Comfort Yubinbango166-0001 Suginami-ku, Tokyo Asagayakita 1-35-7 <仲介>東京都知事(3)第078763号(公社)全日本不動産協会会員 (公社)首都圏不動産公正取引協議会加盟(株)コンフォート〒166-0001 東京都杉並区阿佐谷北1-35-7 |
Local appearance photo現地外観写真  Local (September 2013) Shooting
現地(2013年9月)撮影
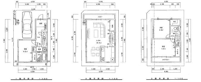
Floor plan間取り図  60,800,000 yen, 3LDK, Land area 61.79 sq m , Building area 105.31 sq m
6080万円、3LDK、土地面積61.79m2、建物面積105.31m2
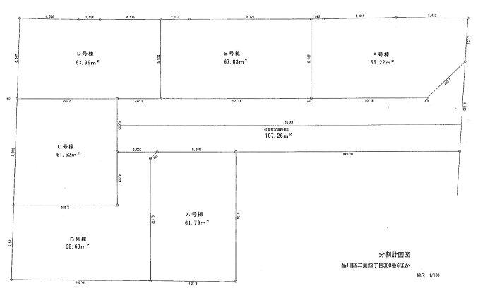
Compartment figure区画図  60,800,000 yen, 3LDK, Land area 61.79 sq m , Building area 105.31 sq m
6080万円、3LDK、土地面積61.79m2、建物面積105.31m2
Station駅  Toei Asakusa Line "Nakanobu" 400m to the station
都営浅草線「中延」駅まで400m
Location
|