New Homes » Kanto » Tokyo » Shinagawa


Shinagawa-ku, Tokyo
Toei Asakusa Line "Togoshi" walk 5 minutes
Two routes available, "Nakanobu" station walk 5 minutes! Southeast of the corner lot! Effortlessly mall also near shopping! ! Contact us [0800-603-7798 Toll free] Co., Ltd. to Comfort
Features pickup
2 along the line more accessible / LDK20 tatami mats or more / Facing south / System kitchen / Yang per good / Corner lot / Toilet 2 places / Bathroom 1 tsubo or more / 2 or more sides balcony / All living room flooring / Three-story or more
Price
67,800,000 yen
Floor plan
4LDK
Units sold
1 units
Total units
6 units
Land area
66.22 sq m
Building area
119.15 sq m
Driveway burden-road
Nothing, South 4m width (contact the road width 8.7m), East 4m width (contact the road width 7.2m)
Completion date
February 2014
Address
Shinagawa-ku, Tokyo Futaba 4
Traffic
Toei Asakusa Line "Togoshi" walk 5 minutes
Oimachi Line Tokyu "Nakanobu" walk 6 minutes
Related links
[Related Sites of this company]
Person in charge
Person in charge of Shibuya
Contact
(Ltd.) Comfort TEL: 0800-603-7798 [Toll free] mobile phone ・ Also available from PHS
Caller ID is not notified
Please contact the "saw SUUMO (Sumo)"
If it does not lead, If the real estate company
Building coverage, floor area ratio
60% ・ 200%
Time residents
February 2014 schedule
Land of the right form
Ownership
Structure and method of construction
Wooden three-story
Use district
Semi-industrial
Overview and notices
Contact: Shibuya, Facilities: Public Water Supply, This sewage, City gas, Building confirmation number: 13UDI2T789, Parking: Garage
Company profile
<Mediation> Governor of Tokyo (3) No. 078763 (Corporation) All Japan Real Estate Association (Corporation) metropolitan area real estate Fair Trade Council member (Ltd.) Comfort Yubinbango166-0001 Suginami-ku, Tokyo Asagayakita 1-35-7


Local appearance photo

Local appearance photo. Local (September 2013) Shooting
Local (September 2013) Shooting

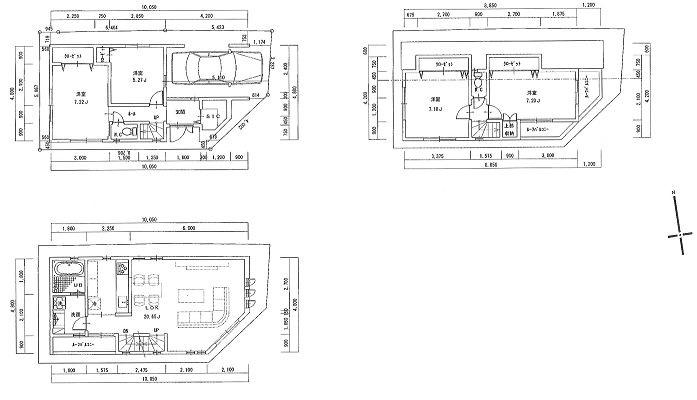
Floor plan

Floor plan. 67,800,000 yen, 4LDK, Land area 66.22 sq m , Building area 119.15 sq m
67,800,000 yen, 4LDK, Land area 66.22 sq m , Building area 119.15 sq m

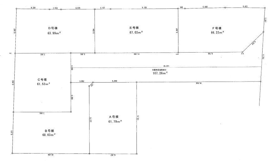
The entire compartment Figure

The entire compartment Figure. Compartment figure
Compartment figure

Local photos, including front road

Local photos, including front road. Local (September 2013) Shooting
Local (September 2013) Shooting

Station

station. Toei Asakusa Line "Nakanobu" 400m to the station
Toei Asakusa Line "Nakanobu" 400m to the station



Location