New Homes » Kanto » Tokyo » Shinjuku ward
 
| | Shinjuku-ku, Tokyo 東京都新宿区 |
| Seibu Shinjuku Line "Shimoochiai" walk 4 minutes 西武新宿線「下落合」歩4分 |
| Stylish mansion floating profound feeling. Ground warranty for peace of mind 4 line 4 Station Available 重厚感漂うお洒落な邸宅。 安心の地盤保証 4路線4駅利用可 |
| Seibu Shinjuku Line [Shimoochiai] Good location of station 4 minutes walk. Situated on a hill, Since there is not even the car of traffic, You can also worry for children. LDK16 Pledge than the atrium design ・ A feeling of opening is attractive in the roof balcony. Ground guarantee 10 years, Offer we live peace of mind in the security system adopted. Come once, Please visit the Why. 西武新宿線【下落合】駅徒歩4分の好立地。 高台に立地しており、車の往来もございませんので、お子様にもご安心頂けます。 LDK16帖超の吹抜け設計・ルーフバルコニーで開放感が魅力です。 地盤保証10年、防犯システム採用で安心のお住まいをご提供。 是非一度、ご見学はいかがでしょうか。 |
Features pickup 特徴ピックアップ | | Corresponding to the flat-35S / Vibration Control ・ Seismic isolation ・ Earthquake resistant / 2 along the line more accessible / Energy-saving water heaters / System kitchen / Bathroom Dryer / Yang per good / All room storage / A quiet residential area / LDK15 tatami mats or more / Around traffic fewer / Shaping land / Washbasin with shower / Face-to-face kitchen / Security enhancement / Toilet 2 places / 2 or more sides balcony / Double-glazing / Warm water washing toilet seat / loft / TV monitor interphone / Mu front building / Ventilation good / All living room flooring / Good view / Built garage / Dish washing dryer / All room 6 tatami mats or more / Water filter / City gas / Storeroom / Located on a hill / roof balcony / Attic storage / Floor heating フラット35Sに対応 /制震・免震・耐震 /2沿線以上利用可 /省エネ給湯器 /システムキッチン /浴室乾燥機 /陽当り良好 /全居室収納 /閑静な住宅地 /LDK15畳以上 /周辺交通量少なめ /整形地 /シャワー付洗面台 /対面式キッチン /セキュリティ充実 /トイレ2ヶ所 /2面以上バルコニー /複層ガラス /温水洗浄便座 /ロフト /TVモニタ付インターホン /前面棟無 /通風良好 /全居室フローリング /眺望良好 /ビルトガレージ /食器洗乾燥機 /全居室6畳以上 /浄水器 /都市ガス /納戸 /高台に立地 /ルーフバルコニー /屋根裏収納 /床暖房 | Price 価格 | | 68,800,000 yen 6880万円 | Floor plan 間取り | | 2LDK + S (storeroom) 2LDK+S(納戸) | Units sold 販売戸数 | | 1 units 1戸 | Total units 総戸数 | | 2 units 2戸 | Land area 土地面積 | | 78.74 sq m (measured) 78.74m2(実測) | Building area 建物面積 | | 101.97 sq m (measured) 101.97m2(実測) | Driveway burden-road 私道負担・道路 | | Nothing, East 4m width (contact the road width 5.9m) 無、東4m幅(接道幅5.9m) | Completion date 完成時期(築年月) | | January 2014 2014年1月 | Address 住所 | | Shinjuku-ku, Tokyo Nakaochiai 2 東京都新宿区中落合2 | Traffic 交通 | | Seibu Shinjuku Line "Shimoochiai" walk 4 minutes JR Yamanote Line "Takadanobaba" walk 15 minutes Toei Oedo Line "Nakai" walk 12 minutes 西武新宿線「下落合」歩4分 JR山手線「高田馬場」歩15分 都営大江戸線「中井」歩12分
| Related links 関連リンク | | [Related Sites of this company] 【この会社の関連サイト】 | Person in charge 担当者より | | Rep Sugimoto Daiki Age: real estate purchase is the largest shopping in their 20s life, Dreams also large although, I think that there is also a doubt and anxiety. In order to be a small question does not become a big anxiety later, We try that to answer accurately listened to their customers of voice. 担当者杉本 大輝年齢:20代人生において最も大きな買い物である不動産購入は、夢も大きい反面、疑問や不安もあると思います。小さな疑問でも後々大きな不安とならない為に、しっかりお客様の声に耳を傾け正確にお答えする事を心掛けています。 | Contact お問い合せ先 | | TEL: 0800-603-0575 [Toll free] mobile phone ・ Also available from PHS Caller ID is not notified Please contact the "saw SUUMO (Sumo)" If it does not lead, If the real estate company TEL:0800-603-0575【通話料無料】携帯電話・PHSからもご利用いただけます 発信者番号は通知されません 「SUUMO(スーモ)を見た」と問い合わせください つながらない方、不動産会社の方は
| Building coverage, floor area ratio 建ぺい率・容積率 | | 60% ・ 150% 60%・150% | Time residents 入居時期 | | Consultation 相談 | Land of the right form 土地の権利形態 | | Ownership 所有権 | Structure and method of construction 構造・工法 | | Wooden second floor underground 1 story 木造2階地下1階建 | Use district 用途地域 | | One low-rise 1種低層 | Overview and notices その他概要・特記事項 | | Contact: Sugimoto Daiki, Facilities: Public Water Supply, This sewage, City gas, Building confirmation number: H25A-JKeY00090-01 No., Parking: Garage 担当者:杉本 大輝、設備:公営水道、本下水、都市ガス、建築確認番号:H25A-JKeY00090-01号、駐車場:車庫 | Company profile 会社概要 | | <Mediation> Minister of Land, Infrastructure and Transport (3) No. 006,185 (one company) National Housing Industry Association (Corporation) metropolitan area real estate Fair Trade Council member Asahi Housing Corporation Shinjuku 160-0023 Tokyo Nishi-Shinjuku, Shinjuku-ku, 1-19-6 Shinjuku Yamate building 7th floor <仲介>国土交通大臣(3)第006185号(一社)全国住宅産業協会会員 (公社)首都圏不動産公正取引協議会加盟朝日住宅(株)新宿店〒160-0023 東京都新宿区西新宿1-19-6 山手新宿ビル7階 |
Rendering (appearance)完成予想図(外観)  Building Rendering
建物完成予想図
Rendering (introspection)完成予想図(内観)  Indoor Rendering
室内完成予想図
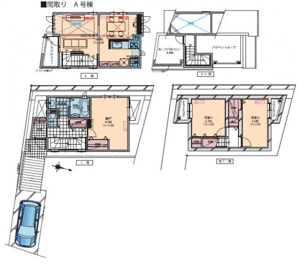
Floor plan間取り図  68,800,000 yen, 2LDK+S, Land area 78.74 sq m , Building area 101.97 sq m floor plan
6880万円、2LDK+S、土地面積78.74m2、建物面積101.97m2 間取図
Local appearance photo現地外観写真  Under construction
建築中
Same specifications photos (living)同仕様写真(リビング)  Example of construction
施工例
Bathroom浴室  Example of construction
施工例
Same specifications photo (kitchen)同仕様写真(キッチン)  Example of construction
施工例
Non-living roomリビング以外の居室  Example of construction
施工例
Toiletトイレ  Example of construction
施工例
 Local photos, including front road
前面道路含む現地写真
Same specifications photos (Other introspection)同仕様写真(その他内観)  Example of construction
施工例
Local appearance photo現地外観写真  Under construction
建築中
Livingリビング  Example of construction
施工例
Same specifications photo (bathroom)同仕様写真(浴室)  Example of construction
施工例
Kitchenキッチン  Example of construction
施工例
Non-living roomリビング以外の居室  Example of construction
施工例
Other introspectionその他内観  Example of construction
施工例
 Local appearance photo
現地外観写真
Non-living roomリビング以外の居室  Example of construction
施工例
 Local appearance photo
現地外観写真
Location
|