New Homes » Kanto » Tokyo » Suginami
 
| | Suginami-ku, Tokyo 東京都杉並区 |
| Inokashira "Eifukucho" walk 9 minutes 京王井の頭線「永福町」歩9分 |
| □ Inokashira "Eifukucho" station walk 9 minutes. Keio main line ・ Setagaya Line Tokyu "Shimotakaido" station walk 9 minutes. 2 station 3 lines Available! □ Convenience and rich mansion district in the natural environment both □ Published by the not satisfied replacement Building 2 Offer □京王井の頭線「永福町」駅徒歩9分。京王本線・東急世田谷線「下高井戸」駅徒歩9分。2駅3路線利用可!□利便性と自然環境ともに豊かな邸宅街□2号棟買替不成立により公開 |
| □ Solar power generation system equipped + high thermal insulation saving Eneeko housing □ Long-term quality housing certification in energy-saving grade 4+ seismic grade 3 □太陽光発電システム搭載+高断熱で省エネエコ住宅□省エネ等級4+耐震等級3で長期優良住宅認定 |
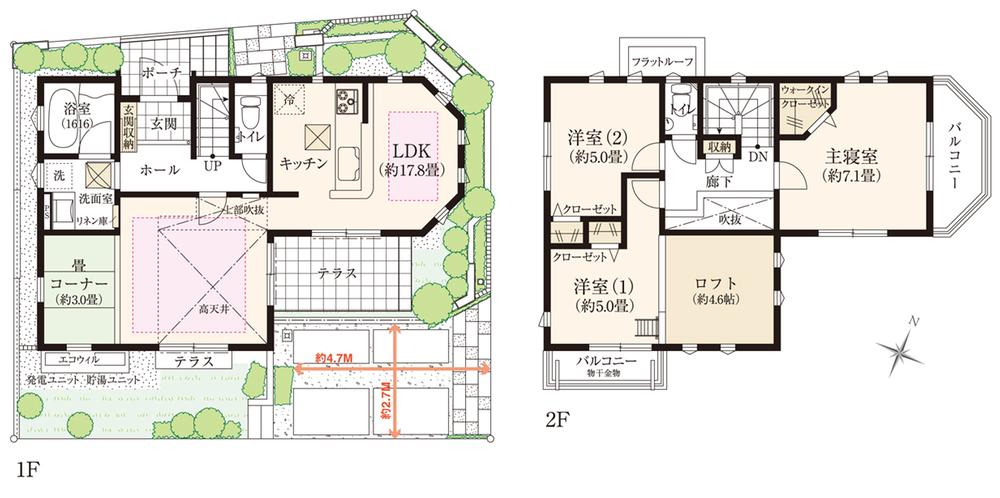
Seller comments 売主コメント | | Building 2 2号棟 | Local guide map 現地案内図 | | Local guide map 現地案内図 | Features pickup 特徴ピックアップ | | Construction housing performance with evaluation / Design house performance with evaluation / Measures to conserve energy / Long-term high-quality housing / Corresponding to the flat-35S / Solar power system / Airtight high insulated houses / Year Available / Parking two Allowed / 2 along the line more accessible / Energy-saving water heaters / System kitchen / Bathroom Dryer / All room storage / Siemens south road / A quiet residential area / LDK15 tatami mats or more / Corner lot / Shaping land / Mist sauna / Washbasin with shower / Face-to-face kitchen / Security enhancement / 3 face lighting / Barrier-free / Toilet 2 places / Bathroom 1 tsubo or more / 2-story / South balcony / Double-glazing / Warm water washing toilet seat / Nantei / Leafy residential area / Urban neighborhood / Ventilation good / All living room flooring / Wood deck / Dish washing dryer / Walk-in closet / Or more ceiling height 2.5m / Water filter / City gas / Floor heating 建設住宅性能評価付 /設計住宅性能評価付 /省エネルギー対策 /長期優良住宅 /フラット35Sに対応 /太陽光発電システム /高気密高断熱住宅 /年内入居可 /駐車2台可 /2沿線以上利用可 /省エネ給湯器 /システムキッチン /浴室乾燥機 /全居室収納 /南側道路面す /閑静な住宅地 /LDK15畳以上 /角地 /整形地 /ミストサウナ /シャワー付洗面台 /対面式キッチン /セキュリティ充実 /3面採光 /バリアフリー /トイレ2ヶ所 /浴室1坪以上 /2階建 /南面バルコニー /複層ガラス /温水洗浄便座 /南庭 /緑豊かな住宅地 /都市近郊 /通風良好 /全居室フローリング /ウッドデッキ /食器洗乾燥機 /ウォークインクロゼット /天井高2.5m以上 /浄水器 /都市ガス /床暖房 | Event information イベント情報 | | Local sales meetings (Please be sure to ask in advance) schedule / Every Saturday, Sunday and public holidays time / 10:00 ~ 18:00 guests tour the actual building, Please feel free to contact us. 現地販売会(事前に必ずお問い合わせください)日程/毎週土日祝時間/10:00 ~ 18:00実際の建物をご見学いただけます、お気軽にお問い合わせください。 | Property name 物件名 | | Runeterasu Eifukucho Solar power generation W + long-term high-quality housing ルネテラス永福町 太陽光W発電+長期優良住宅 | Price 価格 | | 79,900,000 yen ・ 82,800,000 yen 7990万円・8280万円 | Floor plan 間取り | | 3LDK + S (storeroom) 3LDK+S(納戸) | Units sold 販売戸数 | | 2 units 2戸 | Total units 総戸数 | | 5 units 5戸 | Land area 土地面積 | | 110.46 sq m ・ 110.49 sq m (measured) 110.46m2・110.49m2(実測) | Building area 建物面積 | | 88.18 sq m ・ 88.36 sq m (measured) 88.18m2・88.36m2(実測) | Driveway burden-road 私道負担・道路 | | Road width: 5m, Asphaltic pavement, Public road 道路幅:5m、アスファルト舗装、公道 | Completion date 完成時期(築年月) | | 2013 end of March 2013年3月末 | Address 住所 | | Suginami-ku, Tokyo Yongfu 1-17-1 東京都杉並区永福1-17-1 | Traffic 交通 | | Inokashira "Eifukucho" walk 9 minutes Keio Line "Shimotakaido" walk 9 minutes Setagaya Line Tokyu "Shimotakaido" walk 9 minutes 京王井の頭線「永福町」歩9分 京王線「下高井戸」歩9分 東急世田谷線「下高井戸」歩9分
| Related links 関連リンク | | [Related Sites of this company] 【この会社の関連サイト】 | Person in charge 担当者より | | [Regarding this property.] Solar W power generation system all building standard equipment + proposes saving Eneeko housing in the long-term high-quality housing. 【この物件について】太陽光W発電システム全棟標準装備+長期優良住宅で省エネエコ住宅を提案します。 | Contact お問い合せ先 | | Runeterasu Eifukucho Local sales center TEL: 0120-515-081 [Toll free] (mobile phone ・ Also available from PHS. ) Please contact the "saw SUUMO (Sumo)" ルネテラス永福町 現地販売センターTEL:0120-515-081【通話料無料】(携帯電話・PHSからもご利用いただけます。)「SUUMO(スーモ)を見た」と問い合わせください | Sale schedule 販売スケジュール | | Building 2 (northeast corner lot) Emergency public by not satisfied replacement purchase! ! First-come-first-served basis application being accepted! ! ※ When you sign up, Private seal, 2012 years of income proof, Your identification documents (driver's license ・ Please bring your health insurance card, etc.). ※ Others For more information, Please consult your sales representative. 2号棟(北東角地) 買替不成立により緊急公開!!先着順申込受付中!!※お申込みの際は、認印、平成24年分収入証明、ご本人確認書類(運転免許証・健康保険証等)をご持参ください。※その他詳細に関しては、営業担当までご相談ください。 | Expenses 諸費用 | | Other expenses: town fee: 50 yen / Month, Secom Home Security use fee: 3150 yen / Month その他諸費用:町内会費:50円/月、セコムホームセキュリティー利用料:3150円/月 | Building coverage, floor area ratio 建ぺい率・容積率 | | Building coverage: 40%, Volume of 80% 建ぺい率:40%、容積率80% | Time residents 入居時期 | | Consultation 相談 | Land of the right form 土地の権利形態 | | Ownership 所有権 | Structure and method of construction 構造・工法 | | Wooden 2-story (framing method) 木造2階建(軸組工法) | Construction 施工 | | Toei house Co., Ltd. 東栄住宅株式会社 | Use district 用途地域 | | One low-rise 1種低層 | Land category 地目 | | Residential land 宅地 | Other limitations その他制限事項 | | Quasi-fire zones, Site area minimum Yes 準防火地域、敷地面積最低限度有 | Overview and notices その他概要・特記事項 | | Building confirmation number: No. H24SHC114276 (2012 November 2, 2008) 建築確認番号:H24SHC114276号(平成24年11月2日) | Company profile 会社概要 | | <Seller> Minister of Land, Infrastructure and Transport (2) the first 006,814 No. comprehensive estate Ltd. Yubinbango105-0011 Tokyo, Minato-ku, Shiba 2-4-1 Shiba Park Building A Museum 7th floor <marketing alliance (agency)> Minister of Land, Infrastructure and Transport ( (Corporation) metropolitan area real estate Fair Trade Council member Nomura brokerage + head office sales department Nomura Real Estate Urban Net Co., Ltd. 160-0023 Tokyo Nishi-Shinjuku, Shinjuku-ku, 1-26-2 Shinjuku Nomura Building B2 floor <売主>国土交通大臣(2)第006814号総合地所(株)〒105-0011 東京都港区芝公園2-4-1 芝パークビルA館7階<販売提携(代理)>国土交通大臣(3)第006101号(一社)不動産流通経営協会会員 (公社)首都圏不動産公正取引協議会加盟野村の仲介+本店営業部野村不動産アーバンネット(株)〒160-0023 東京都新宿区西新宿1-26-2 新宿野村ビルB2階 |
Aerial photograph航空写真  Radius of action spread in the 2 station 3 lines Available. "Shibuya", "Shinjuku", "Kichijoji" to "Sangenjaya" can be accessed without a transfer. (May 2013) Shooting
2駅3路線利用可で広がる行動半径。「渋谷」「新宿」「吉祥寺」「三軒茶屋」に乗り換え無しでアクセス可能。(2013年5月)撮影
Model house photoモデルハウス写真  5 Building semi model open interior Cody Noether was Settings (September 2013) Shooting
5号棟セミモデルオープンコーディーネーターがセッティングしたインテリア(2013年9月)撮影
Local appearance photo現地外観写真  2 Building local appearance photo. There is a sense of open northeast corner lot. (July 2013) Shooting
2号棟現地外観写真。開放感ある北東角地。(2013年7月)撮影
Streets around周辺の街並み  Green road along the Kanda River, which can feel the 240m four seasons until the Kanda River green road, walk ・ Or jogging is Why?
神田川緑道まで240m 四季が感じられる神田川沿いの緑道で、散歩・ジョギングはいかがでしょうか?
Otherその他  Kanda River promenade ~ Part 1 ~ (A 3-minute walk ・ About than local 240m)
神田川遊歩道 ~ その1 ~ (徒歩3分・現地より約240m)
Power generation ・ Hot water equipment発電・温水設備  Solar power and gas ・ The choice of W My home power generation (all building standard) not as much as possible to use the electricity from the power company by energy. (July 2013) Shooting
太陽光発電とガス・エネルギーによるWマイホーム発電(全棟標準装備)電力会社からの電気を極力使わないという選択。(2013年7月)撮影
 A warm feet in hot water floor heating, It warms to wrap around the entire room. Difficult to further dry and clean air.
温水式床暖房で足元ぽかぽかで、お部屋全体を包み込むように温まります。さらに空気がきれいで乾燥しにくい。
Construction ・ Construction method ・ specification構造・工法・仕様  "Seismic grade 3" ・ "Energy-saving 4 grade" ・ "Deterioration countermeasure grade 3" ・ "Maintaining control measures grade 3" is the highest grade. High durability ・ High seismic ・ Airtight ・ It has achieved a high thermal insulation structure.
「耐震等級3」・「省エネ4等級」・「劣化対策等級3」・「維持管理対策等級3」は最高等級。高耐久・高耐震・高気密・高断熱構造を実現しました。
 Provisions of the dignity method as the "earthquake-resistant grade 3", It has been established so as to have a (not collapse against Tokyo in the seismic intensity 6 Tsuyokara 7 about the earthquake force is once generated in the hundreds of years), 1.5 times the performance of the seismic performance of the Building Standards Law.
品格法の定める「耐震等級3」とは、建築基準法の耐震性能の1.5倍の性能(数百年に一度発生する東京では震度6強から7程度の地震力に対して倒壊しない)を有するように定められています。
Route map路線図  Living area spread in 2 station 3 lines Available. 8 minutes to Shinjuku Station. 9 minutes to Shibuya Station. To Kichijoji Station 9 minutes. Has been excellent transport access is formed.
2駅3路線利用可で広がる生活圏。新宿駅まで8分。渋谷駅まで9分。吉祥寺駅まで9分。優れた交通アクセスが形成されています。
Otherその他  Acorn green space
どんぐり緑地
 Kanda River promenade ~ No. 2 ~ (A 3-minute walk ・ About than local 240m)
神田川遊歩道 ~ その2 ~ (徒歩3分・現地より約240m)
Park公園  Tamagawa Yongkang Izumidera to green space 550m
玉川上水永泉寺緑地まで550m
Otherその他  Yongfu Inari Shrine
永福稲荷神社
The entire compartment Figure全体区画図  The entire subdivision
全体区画割り
Livingリビング  5 Building Semi model open
5号棟セミモデルオープン
Garden庭  Building 2 living ・ Wood deck that connects the dining.
2号棟 リビング・ダイニングを繋ぐウッドデッキ。
Non-living roomリビング以外の居室  Building 2 About 4.6 Pledge super loft of.
2号棟 約4.6帖のスーパーロフト。
Livingリビング  Building 2 living. High ceiling of about 3.5m.
2号棟 リビング。約3.5mの高天井。
Other Equipmentその他設備  With a fine of micro-sized mist, Also gently body to the skin you will be able to enjoy a little sauna load at home.
マイクロサイズの細かいミストで、肌にやさしく身体にも負荷の少ないサウナをご家庭で満喫していただけます。
Local appearance photo現地外観写真  5 Building local appearance photo (July 2013) Shooting
5号棟現地外観写真(2013年7月)撮影
Other Environmental Photoその他環境写真  Kanda River promenade
神田川遊歩道
Floor plan間取り図  Until Eifukucho Station is a 720m "Shibuya" 8 minutes direct to the station.
永福町駅まで720m 「渋谷」駅まで直通8分です。
 (5 Building), Price 82,800,000 yen, 3LDK+S, Land area 110.49 sq m , Building area 88.36 sq m
(5号棟)、価格8280万円、3LDK+S、土地面積110.49m2、建物面積88.36m2
Station駅  Until Eifukucho Station is a 720m "Shibuya" 8 minutes direct to the station.
永福町駅まで720m 「渋谷」駅まで直通8分です。
 Until Shimotakaido is 710m 8 minutes direct to "Shinjuku". Also substantial shopping district.
下高井戸駅まで710m 「新宿」まで直通8分です。商店街も充実しています。
 Until Meidaimae Station walk also 1260m "Meidaimae" station.
明大前駅まで1260m 「明大前」駅も歩けます。
Local guide map現地案内図  Rich convenience of Inokashira and Keio Line is in the familiar. Kanda River flows to the center, Mansion moisture is felt land.
京王井の頭線と京王線が身近にある豊かな利便性。その中央に神田川が流れる、潤いが感じられる邸宅地。
Other Equipmentその他設備  Glass top stove ・ Dishwasher ・ Standard equipment disposer a built-in water filter is also attached as an option (4 Building only standard equipment).
ガラストップコンロ・食洗機・ビルトイン浄水器を標準装備ディスポーザーもオプションで付けられます(4号棟のみ標準装備)。
Security equipment防犯設備  Secom home security is available in the standard monthly 3150 yen.
セコムホームセキュリティーを標準装備月額3150円で利用可能です。
 Peace of mind because the absence at the time also there is a recording function. Wide type of left and right angle of about 170 degrees.
不在時も録画機能があるから安心。約170度の左右画角のワイドタイプ。
Park公園  300m to Sunflower Park
ひまわり公園まで300m
 Yongfu to Central Park 240m
永福中央公園まで240m
Location
|