|
|
Suginami-ku, Tokyo
東京都杉並区
|
|
Seibu Shinjuku Line "Iogi" walk 7 minutes
西武新宿線「井荻」歩7分
|
|
[Attractiveness of goods] Easy-to-use floor plan / Stylish design / Simple appearance timeless / Strong long-lasting structure to earthquake = Is the charm of the Nordic House!
【商品の魅力】使いやすい間取り/おしゃれなデザイン/飽きのこないシンプルな外観/地震に強い長持ち構造 = 北欧ハウスの魅力です!
|
|
[Subdivision of charm] Only one of the condominiums in the world. In consideration the relationship between the neighbor, Ya comfortably next to Building interval, Consideration of the overlap between the window and the window. The shape of the land ・ 1 building 1 buildings of planning to match the orientation, Create a live-friendliness. It is a valuable first floor living plan is in Tokyo for the south-facing development projects, All building day is good. [Charm of KI] Seller direct sales. Future important thing also, such as after-sales maintenance and warranty, We firmly .. explanation.
【分譲地の魅力】世界にたった一つの分譲住宅。お隣との関係を配慮した、ゆったり隣棟間隔や、窓と窓との重なりへの配慮。土地の形状・向きに合わせた1棟1棟のプランニングが、住みやすさをつくります。都内では貴重な1階リビングプランです南向きの開発物件のため、全棟日当たり良好です。【KIの魅力】売主直売。アフターメンテナンスや保証などの将来大切なことも、 しっかりとご説明しています。
|
Features pickup 特徴ピックアップ | | Measures to conserve energy / Corresponding to the flat-35S / Pre-ground survey / Year Available / LDK18 tatami mats or more / Energy-saving water heaters / Super close / It is close to the city / System kitchen / Bathroom Dryer / All room storage / Flat to the station / Siemens south road / A quiet residential area / Corner lot / Shaping land / garden / Washbasin with shower / Face-to-face kitchen / Barrier-free / Toilet 2 places / Bathroom 1 tsubo or more / 2-story / South balcony / Double-glazing / Otobasu / Warm water washing toilet seat / Underfloor Storage / The window in the bathroom / TV monitor interphone / Leafy residential area / Ventilation good / All living room flooring / Dish washing dryer / Walk-in closet / Water filter / Living stairs / City gas / A large gap between the neighboring house / Maintained sidewalk / All rooms southwestward / Flat terrain / Development subdivision in 省エネルギー対策 /フラット35Sに対応 /地盤調査済 /年内入居可 /LDK18畳以上 /省エネ給湯器 /スーパーが近い /市街地が近い /システムキッチン /浴室乾燥機 /全居室収納 /駅まで平坦 /南側道路面す /閑静な住宅地 /角地 /整形地 /庭 /シャワー付洗面台 /対面式キッチン /バリアフリー /トイレ2ヶ所 /浴室1坪以上 /2階建 /南面バルコニー /複層ガラス /オートバス /温水洗浄便座 /床下収納 /浴室に窓 /TVモニタ付インターホン /緑豊かな住宅地 /通風良好 /全居室フローリング /食器洗乾燥機 /ウォークインクロゼット /浄水器 /リビング階段 /都市ガス /隣家との間隔が大きい /整備された歩道 /全室南西向き /平坦地 /開発分譲地内 |
Property name 物件名 | | Nordic House - an easy-to-use Mato. Stylish interior. Suginami rush Phase 1 北欧ハウス-使いやすい間取。お洒落な内装。杉並区井草1期 |
Price 価格 | | 61,900,000 yen ~ 66,600,000 yen 6190万円 ~ 6660万円 |
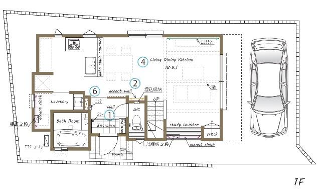
Floor plan 間取り | | 3LDK ~ 4LDK 3LDK ~ 4LDK |
Units sold 販売戸数 | | 3 units 3戸 |
Total units 総戸数 | | 6 units 6戸 |
Land area 土地面積 | | 93.2 sq m ~ 100.01 sq m (registration) 93.2m2 ~ 100.01m2(登記) |
Building area 建物面積 | | 91.08 sq m ~ 99.78 sq m 91.08m2 ~ 99.78m2 |
Driveway burden-road 私道負担・道路 | | Yes あり |
Completion date 完成時期(築年月) | | August 1, 2013 2013年8月1日 |
Address 住所 | | Suginami-ku, Tokyo rush 3-89-7, 東京都杉並区井草3-89-7、他 |
Traffic 交通 | | Seibu Shinjuku Line "Iogi" walk 7 minutes Seibu Shinjuku Line "Shimo Igusa" walk 12 minutes Seibu Shinjuku Line "Kamiigusa" walk 18 minutes 西武新宿線「井荻」歩7分 西武新宿線「下井草」歩12分 西武新宿線「上井草」歩18分
|
Related links 関連リンク | | [Related Sites of this company] 【この会社の関連サイト】 |
Person in charge 担当者より | | Person in charge of real-estate and building Nakano Koji 担当者宅建中野 浩二 |
Contact お問い合せ先 | | TEL: 0800-808-9935 [Toll free] mobile phone ・ Also available from PHS Caller ID is not notified Please contact the "saw SUUMO (Sumo)" If it does not lead, If the real estate company TEL:0800-808-9935【通話料無料】携帯電話・PHSからもご利用いただけます 発信者番号は通知されません 「SUUMO(スーモ)を見た」と問い合わせください つながらない方、不動産会社の方は
|
Sale schedule 販売スケジュール | | First-come-first-served basis application being accepted 先着順申込受付中 |
Building coverage, floor area ratio 建ぺい率・容積率 | | Building coverage 50% 60% volume rate of 100% 建ぺい率50% 60% 容積率100% |
Time residents 入居時期 | | Immediate available 即入居可 |
Land of the right form 土地の権利形態 | | Ownership 所有権 |
Structure and method of construction 構造・工法 | | Wooden 2-story (conventional method) 木造2階建(在来工法) |
Construction 施工 | | KI Star Real Estate Co., Ltd. ケイアイスター不動産株式会社 |
Use district 用途地域 | | One low-rise 1種低層 |
Land category 地目 | | Residential land, Hybrid land, Public roads, [Current state] Residential land 宅地、雑種地、公衆用道路、【現況】宅地 |
Other limitations その他制限事項 | | ※ Driveway burden: each 1 as the road portion of the 89-3 (141m2) / 6 by equity Yes, 89-1 one of (2m2) / 6 by equity Yes ※ Development permit number: No. 2427 (2013 January 8, 2009) ※ Development inspection certificate of: No. 2427 (2013 March 8, 2008) ※ Quasi-fire zones ※ The first kind altitude district ※私道負担:89-3(141m2)のうち道路部分として各々1/6ずつ持分有、89-1(2m2)のうち1/6ずつ持分有 ※開発許可番号:第2427号(平成25年1月8日) ※開発検査済証:第2427号(平成25年3月8日) ※準防火地域 ※第一種高度地区 |
Overview and notices その他概要・特記事項 | | Contact: Nakano Koji, Building confirmation number: No. 12UDI3C Ken 02419 (2013 April 4, 2009), other 担当者:中野 浩二、建築確認番号:第12UDI3C建02419号(平成25年4月4日)、他 |
Company profile 会社概要 | | <Seller> Minister of Land, Infrastructure and Transport (4) The 005,508 No. KI Star Real Estate Co., Ltd. Ogikubo store Yubinbango167-0043 Suginami-ku, Tokyo Kamiogi 1-20-6 star field second floor -d <売主>国土交通大臣(4)第005508号ケイアイスター不動産(株)荻窪店〒167-0043 東京都杉並区上荻1-20-6 スターフィールド2階-d |
北欧のしあわせな暮らしのエッセンスを形にした住まいが「北欧ハウス」です。東京の都市に適した機能性と心癒される居心地のいい空間。北欧のしあわせを東京で感じてみませんか。