New Homes » Kanto » Tokyo » Suginami
 
| | Suginami-ku, Tokyo 東京都杉並区 |
| Tokyo Metro Marunouchi Line "Shin Koenji" walk 7 minutes 東京メトロ丸ノ内線「新高円寺」歩7分 |
| Floor plan is firmly take large-scale properties of 4LDK was. Breadth of the housing and the living room is also firmly reserved property. I would like all means actually seeing the balance of location and price and breadth. 間取りがしっかりと取れた大型の4LDKの物件です。収納と居室の広さもしっかりと確保された物件です。立地と価格と広さのバランスを是非実際にご覧頂きたいと思います。 |
| Fine ・ and ・ Partners specializing in high popular area in Tokyo, We specializes in information. If the customer is in the Looking to become a dwelling in this area, Please also look at certainly once our home page. Customer information is not that you have a look to this, "Large number" I am allowed to guide you. This information is generally not "information out on the table as a non-public" often heard, It will still be the "information that has been warmed under water.". Specializing in those areas, Precisely because we are allowed to guide you to so many of our customers to this, We preferentially obtained such "information of underwater". I'd love to, Fine ・ and ・ Not please leave it to partners. ファイン・アンド・パートナーは都内でも人気の高いエリアに特化した、情報を専門に扱っております。お客様が当エリアで住まいをお探しになるのであれば、是非一度当社のホームページもご覧ください。お客様がこれまでご覧になったことが無い情報を、“多数”ご案内させていただいております。これらの情報は一般的によく耳にする『未公開として表に出る情報』ではなく、まだ『水面下で温められている情報』となります。当エリアに特化し、これまで本当に多くのお客様にご案内させていただいたからこそ、このような『水面下の情報』を優先的に得られるのです。是非、ファイン・アンド・パートナーにお任せくださいませ。 |
Features pickup 特徴ピックアップ | | Measures to conserve energy / Corresponding to the flat-35S / Pre-ground survey / Year Available / 2 along the line more accessible / LDK20 tatami mats or more / Energy-saving water heaters / Super close / Facing south / System kitchen / Bathroom Dryer / Yang per good / All room storage / Flat to the station / Siemens south road / A quiet residential area / Or more before road 6m / Corner lot / Shaping land / Washbasin with shower / Face-to-face kitchen / Barrier-free / Toilet 2 places / Bathroom 1 tsubo or more / South balcony / Double-glazing / Zenshitsuminami direction / Warm water washing toilet seat / The window in the bathroom / TV monitor interphone / Ventilation good / All living room flooring / Dish washing dryer / Water filter / Three-story or more / City gas / All rooms are two-sided lighting / Flat terrain / Attic storage / Floor heating 省エネルギー対策 /フラット35Sに対応 /地盤調査済 /年内入居可 /2沿線以上利用可 /LDK20畳以上 /省エネ給湯器 /スーパーが近い /南向き /システムキッチン /浴室乾燥機 /陽当り良好 /全居室収納 /駅まで平坦 /南側道路面す /閑静な住宅地 /前道6m以上 /角地 /整形地 /シャワー付洗面台 /対面式キッチン /バリアフリー /トイレ2ヶ所 /浴室1坪以上 /南面バルコニー /複層ガラス /全室南向き /温水洗浄便座 /浴室に窓 /TVモニタ付インターホン /通風良好 /全居室フローリング /食器洗乾燥機 /浄水器 /3階建以上 /都市ガス /全室2面採光 /平坦地 /屋根裏収納 /床暖房 | Price 価格 | | 46,800,000 yen ~ 50,800,000 yen 4680万円 ~ 5080万円 | Floor plan 間取り | | 4LDK 4LDK | Units sold 販売戸数 | | 2 units 2戸 | Total units 総戸数 | | 4 units 4戸 | Land area 土地面積 | | 54.08 sq m (measured) 54.08m2(実測) | Building area 建物面積 | | 95.1 sq m ~ 103.97 sq m (registration) 95.1m2 ~ 103.97m2(登記) | Driveway burden-road 私道負担・道路 | | Road width: west 3.7m ・ South side 11m, Asphaltic pavement 道路幅:西側3.7m・南側11m、アスファルト舗装 | Completion date 完成時期(築年月) | | Early September 2013 2013年9月上旬 | Address 住所 | | Suginami-ku, Tokyo Umezato 2 東京都杉並区梅里2 | Traffic 交通 | | Tokyo Metro Marunouchi Line "Shin Koenji" walk 7 minutes Tokyo Metro Marunouchi Line "Minami Asagaya" walk 14 minutes JR Chuo Line "Koenji" walk 19 minutes 東京メトロ丸ノ内線「新高円寺」歩7分 東京メトロ丸ノ内線「南阿佐ヶ谷」歩14分 JR中央線「高円寺」歩19分
| Related links 関連リンク | | [Related Sites of this company] 【この会社の関連サイト】 | Person in charge 担当者より | | The person in charge Shinohara Takafumi Age: 30 Daigyokai Experience: 11 years to your firm grasp your request we always try to introduce some of the assets worth. As it is to look for you live, First, do not hesitate to, Please tell your hope. 担当者篠原 高文年齢:30代業界経験:11年お客様のご要望をしっかり把握して資産価値のあるものをご紹介することを常に心がけています。お住まいを探される際には、まずはお気軽に、お客様のご希望をお伝え下さい。 | Contact お問い合せ先 | | TEL: 0800-602-6053 [Toll free] mobile phone ・ Also available from PHS Caller ID is not notified Please contact the "saw SUUMO (Sumo)" If it does not lead, If the real estate company TEL:0800-602-6053【通話料無料】携帯電話・PHSからもご利用いただけます 発信者番号は通知されません 「SUUMO(スーモ)を見た」と問い合わせください つながらない方、不動産会社の方は
| Building coverage, floor area ratio 建ぺい率・容積率 | | Kenpei rate: 80%, Volume ratio: 300% 建ペい率:80%、容積率:300% | Time residents 入居時期 | | Consultation 相談 | Land of the right form 土地の権利形態 | | Ownership 所有権 | Structure and method of construction 構造・工法 | | Wooden three-story 木造3階建 | Use district 用途地域 | | Residential 近隣商業 | Other limitations その他制限事項 | | Height district, Quasi-fire zones 高度地区、準防火地域 | Overview and notices その他概要・特記事項 | | Contact: Shinohara Takafumi, Building confirmation number: No. GEA1211-13428 other 担当者:篠原 高文、建築確認番号:第GEA1211-13428号 他 | Company profile 会社概要 | | <Mediation> Governor of Tokyo (1) No. 093121 (Ltd.) Fine ・ and ・ Partner Yubinbango166-0003 Suginami-ku, Tokyo Koenjiminami 4-23-5 <仲介>東京都知事(1)第093121号(株)ファイン・アンド・パートナー〒166-0003 東京都杉並区高円寺南4-23-5 |
Local appearance photo現地外観写真  Local (12 May 2013) Shooting
現地(2013年12月)撮影
 Local (12 May 2013) Shooting
現地(2013年12月)撮影
Livingリビング  Indoor (September 2013) Shooting
室内(2013年9月)撮影
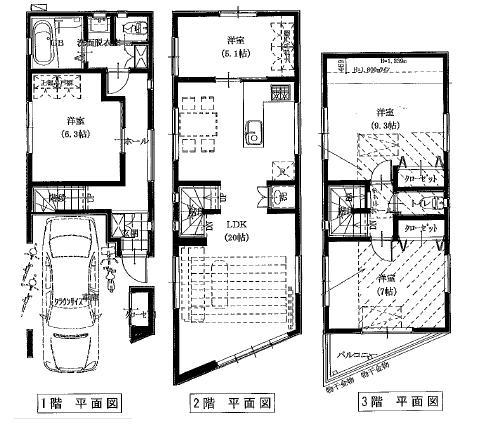
Floor plan間取り図  (C Building), Price 50,800,000 yen, 4LDK, Land area 54.08 sq m , Building area 103.97 sq m
(C号棟)、価格5080万円、4LDK、土地面積54.08m2、建物面積103.97m2
Livingリビング  Indoor (September 2013) Shooting
室内(2013年9月)撮影
Bathroom浴室  Indoor (September 2013) Shooting
室内(2013年9月)撮影
Kitchenキッチン  Indoor (September 2013) Shooting
室内(2013年9月)撮影
Wash basin, toilet洗面台・洗面所  Indoor (September 2013) Shooting
室内(2013年9月)撮影
Receipt収納  Indoor (September 2013) Shooting
室内(2013年9月)撮影
Toiletトイレ  Indoor (September 2013) Shooting
室内(2013年9月)撮影
Local photos, including front road前面道路含む現地写真  Local (12 May 2013) Shooting
現地(2013年12月)撮影
Supermarketスーパー  421m until Inageya Suginami new Koenji shop
いなげや杉並新高円寺店まで421m
Floor plan間取り図  (B Building), Price 46,800,000 yen, 4LDK, Land area 54.08 sq m , Building area 95.1 sq m
(B号棟)、価格4680万円、4LDK、土地面積54.08m2、建物面積95.1m2
Livingリビング  Indoor (September 2013) Shooting
室内(2013年9月)撮影
Wash basin, toilet洗面台・洗面所  Indoor (September 2013) Shooting
室内(2013年9月)撮影
Local photos, including front road前面道路含む現地写真  Local (12 May 2013) Shooting
現地(2013年12月)撮影
Supermarketスーパー  650m to Summit Naritahigashi shop
サミット成田東店まで650m
 650m until the Queen's Isetan new Koenji shop
クイーンズ伊勢丹新高円寺店まで650m
Junior high school中学校  956m to Suginami Ward pine tree junior high school
杉並区立松ノ木中学校まで956m
Primary school小学校  524m to Suginami Ward Horinouchi Elementary School
杉並区立堀之内小学校まで524m
Kindergarten ・ Nursery幼稚園・保育園  Pine trees 571m to nursery school
松ノ木保育園まで571m
Location
|