New Homes » Kanto » Tokyo » Suginami
 
| | Suginami-ku, Tokyo 東京都杉並区 |
| JR Chuo Line "Asagaya" walk 7 minutes JR中央線「阿佐ヶ谷」歩7分 |
| Popular "Asagaya" Station 7-minute walk of the large 4LDK! It is also useful to the shopping street is also within easy reach of shopping. Contact us Ltd. Comfort [0800-603-7798 This call is free] 人気の「阿佐ヶ谷」駅徒歩7分の大型4LDK!商店街もほど近くお買い物にも便利です。お問い合わせは 株式会社コンフォート 【0800-603-7798 通話無料】 |
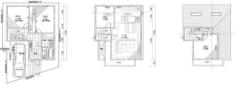
Features pickup 特徴ピックアップ | | LDK18 tatami mats or more / System kitchen / Yang per good / Flat to the station / A quiet residential area / Shaping land / Washbasin with shower / Face-to-face kitchen / Bathroom 1 tsubo or more / Southeast direction / The window in the bathroom / Ventilation good / All living room flooring / Dish washing dryer / Water filter / Three-story or more / Flat terrain LDK18畳以上 /システムキッチン /陽当り良好 /駅まで平坦 /閑静な住宅地 /整形地 /シャワー付洗面台 /対面式キッチン /浴室1坪以上 /東南向き /浴室に窓 /通風良好 /全居室フローリング /食器洗乾燥機 /浄水器 /3階建以上 /平坦地 | Event information イベント情報 | | Local guide meeting schedule / Every Saturday, Sunday and public holidays time / 10:00 ~ 18:00 現地案内会日程/毎週土日祝時間/10:00 ~ 18:00 | Price 価格 | | 71,800,000 yen 7180万円 | Floor plan 間取り | | 4LDK 4LDK | Units sold 販売戸数 | | 1 units 1戸 | Land area 土地面積 | | 80.09 sq m (measured) 80.09m2(実測) | Building area 建物面積 | | 109.29 sq m (measured) 109.29m2(実測) | Driveway burden-road 私道負担・道路 | | Nothing, Southeast 4m width (contact the road width 7.7m) 無、南東4m幅(接道幅7.7m) | Completion date 完成時期(築年月) | | November 2013 2013年11月 | Address 住所 | | Suginami-ku, Tokyo Asagayakita 2 東京都杉並区阿佐谷北2 | Traffic 交通 | | JR Chuo Line "Asagaya" walk 7 minutes JR中央線「阿佐ヶ谷」歩7分
| Related links 関連リンク | | [Related Sites of this company] 【この会社の関連サイト】 | Person in charge 担当者より | | Person in charge of Shibuya 担当者渋谷 | Contact お問い合せ先 | | (Ltd.) Comfort TEL: 0800-603-7798 [Toll free] mobile phone ・ Also available from PHS Caller ID is not notified Please contact the "saw SUUMO (Sumo)" If it does not lead, If the real estate company (株)コンフォートTEL:0800-603-7798【通話料無料】携帯電話・PHSからもご利用いただけます 発信者番号は通知されません 「SUUMO(スーモ)を見た」と問い合わせください つながらない方、不動産会社の方は
| Building coverage, floor area ratio 建ぺい率・容積率 | | 60% ・ 150% 60%・150% | Time residents 入居時期 | | Consultation 相談 | Land of the right form 土地の権利形態 | | Ownership 所有権 | Structure and method of construction 構造・工法 | | Wooden three-story (framing method) 木造3階建(軸組工法) | Use district 用途地域 | | One low-rise 1種低層 | Overview and notices その他概要・特記事項 | | Contact: Shibuya, Facilities: Public Water Supply, This sewage, City gas, Building confirmation number: 13UDI2T Ken 00775, Parking: Garage 担当者:渋谷、設備:公営水道、本下水、都市ガス、建築確認番号:13UDI2T建00775、駐車場:車庫 | Company profile 会社概要 | | <Mediation> Governor of Tokyo (3) No. 078763 (Corporation) All Japan Real Estate Association (Corporation) metropolitan area real estate Fair Trade Council member (Ltd.) Comfort Yubinbango166-0001 Suginami-ku, Tokyo Asagayakita 1-35-7 <仲介>東京都知事(3)第078763号(公社)全日本不動産協会会員 (公社)首都圏不動産公正取引協議会加盟(株)コンフォート〒166-0001 東京都杉並区阿佐谷北1-35-7 |
Compartment figure区画図  71,800,000 yen, 4LDK, Land area 80.09 sq m , Building area 109.29 sq m
7180万円、4LDK、土地面積80.09m2、建物面積109.29m2
Local appearance photo現地外観写真  Local (August 2013) Shooting
現地(2013年8月)撮影
Floor plan間取り図  71,800,000 yen, 4LDK, Land area 80.09 sq m , Building area 109.29 sq m
7180万円、4LDK、土地面積80.09m2、建物面積109.29m2
Local photos, including front road前面道路含む現地写真  Local (August 2013) Shooting
現地(2013年8月)撮影
Other Environmental Photoその他環境写真  200m to the shopping street
商店街まで200m
Location
|