New Homes » Kanto » Tokyo » Suginami
 
| | Suginami-ku, Tokyo 東京都杉並区 |
| Seibu Shinjuku Line "Shimo Igusa" walk 5 minutes 西武新宿線「下井草」歩5分 |
| Seibu Shinjuku Line "Shimo Igusa" station walk 5 minutes ○ living 18 pledge greater leeway there 4LDK ○ station a 5-minute walk, Commute ・ Commute, Conveniently located in shopping 西武新宿線「下井草」駅徒歩5分○リビング18帖超のゆとりある4LDK○駅徒歩5分、通勤・通学、お買い物に便利な立地 |
| LDK18 tatami mats or more, Super close, Facing south, System kitchen, Yang per good, All room storage, A quiet residential area, Face-to-face kitchen, Toilet 2 places, 2-story, South balcony, Warm water washing toilet seat, The window in the bathroom, City gas LDK18畳以上、スーパーが近い、南向き、システムキッチン、陽当り良好、全居室収納、閑静な住宅地、対面式キッチン、トイレ2ヶ所、2階建、南面バルコニー、温水洗浄便座、浴室に窓、都市ガス |
Features pickup 特徴ピックアップ | | LDK18 tatami mats or more / Super close / Facing south / System kitchen / Yang per good / All room storage / A quiet residential area / Face-to-face kitchen / Toilet 2 places / 2-story / South balcony / Warm water washing toilet seat / The window in the bathroom / City gas LDK18畳以上 /スーパーが近い /南向き /システムキッチン /陽当り良好 /全居室収納 /閑静な住宅地 /対面式キッチン /トイレ2ヶ所 /2階建 /南面バルコニー /温水洗浄便座 /浴室に窓 /都市ガス | Price 価格 | | 59,800,000 yen ・ 65,800,000 yen 5980万円・6580万円 | Floor plan 間取り | | 4LDK 4LDK | Units sold 販売戸数 | | 2 units 2戸 | Total units 総戸数 | | 2 units 2戸 | Land area 土地面積 | | 98.51 sq m ・ 100 sq m (measured) 98.51m2・100m2(実測) | Building area 建物面積 | | 91.08 sq m ・ 99.96 sq m (measured) 91.08m2・99.96m2(実測) | Driveway burden-road 私道負担・道路 | | Road width: West 5.45m 道路幅:西5.45m | Completion date 完成時期(築年月) | | December 2013 2013年12月 | Address 住所 | | Suginami-ku, Tokyo rush 2 東京都杉並区井草2 | Traffic 交通 | | Seibu Shinjuku Line "Shimo Igusa" walk 5 minutes Seibu Shinjuku Line "Iogi" walk 7 minutes Seibu Ikebukuro Line "Fujimidai" walk 23 minutes 西武新宿線「下井草」歩5分 西武新宿線「井荻」歩7分 西武池袋線「富士見台」歩23分
| Related links 関連リンク | | [Related Sites of this company] 【この会社の関連サイト】 | Person in charge 担当者より | | Person in charge of real-estate and building Nishioka Seondeok Age: 30s firmly ask the request of the Building Lots and Buildings Transaction chief qualified customers, Looking for the best of my home together. 担当者宅建西岡 善徳年齢:30代宅地建物取引主任資格者お客様のご要望をしっかり伺い、最高のマイホームを一緒にお探しします。 | Contact お問い合せ先 | | TEL: 0800-603-0512 [Toll free] mobile phone ・ Also available from PHS Caller ID is not notified Please contact the "saw SUUMO (Sumo)" If it does not lead, If the real estate company TEL:0800-603-0512【通話料無料】携帯電話・PHSからもご利用いただけます 発信者番号は通知されません 「SUUMO(スーモ)を見た」と問い合わせください つながらない方、不動産会社の方は
| Building coverage, floor area ratio 建ぺい率・容積率 | | Kenpei rate: 50%, Volume ratio: 100% 建ペい率:50%、容積率:100% | Time residents 入居時期 | | Consultation 相談 | Land of the right form 土地の権利形態 | | Ownership 所有権 | Structure and method of construction 構造・工法 | | Wooden 2-story 木造2階建 | Use district 用途地域 | | One low-rise 1種低層 | Land category 地目 | | Residential land 宅地 | Overview and notices その他概要・特記事項 | | Contact: Nishioka Virtue, Building confirmation number: No. 64 No. other 担当者:西岡 善徳、建築確認番号:第64号他 | Company profile 会社概要 | | <Mediation> Governor of Tokyo (9) No. 041553 (Corporation) All Japan Real Estate Association (Corporation) metropolitan area real estate Fair Trade Council member Showa building (Ltd.) Yubinbango167-0053 Suginami-ku, Tokyo Nishiogiminami 3-18-15 <仲介>東京都知事(9)第041553号(公社)全日本不動産協会会員 (公社)首都圏不動産公正取引協議会加盟昭和建物(株)〒167-0053 東京都杉並区西荻南3-18-15 |
 Local appearance photo
現地外観写真
Same specifications photos (living)同仕様写真(リビング)  Seller construction cases _ living
売主施工例_リビング
Same specifications photo (kitchen)同仕様写真(キッチン)  Seller construction cases _ Kitchen
売主施工例_キッチン
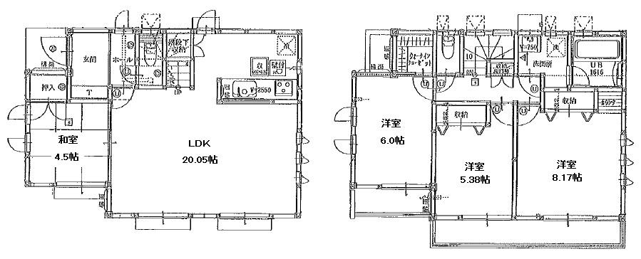
Floor plan間取り図  (A Building), Price 65,800,000 yen, 4LDK, Land area 100 sq m , Building area 99.96 sq m
(A号棟)、価格6580万円、4LDK、土地面積100m2、建物面積99.96m2
 Rendering (appearance)
完成予想図(外観)
Same specifications photo (bathroom)同仕様写真(浴室)  Seller construction cases _ bathroom
売主施工例_浴室
 Local photos, including front road
前面道路含む現地写真
Supermarketスーパー  586m until Seiyu Shimo Igusa shop
西友下井草店まで586m
Same specifications photos (Other introspection)同仕様写真(その他内観)  Seller construction cases _ Japanese-style room
売主施工例_和室
 The entire compartment Figure
全体区画図
Floor plan間取り図  (B Building), Price 59,800,000 yen, 4LDK, Land area 98.51 sq m , Building area 91.08 sq m
(B号棟)、価格5980万円、4LDK、土地面積98.51m2、建物面積91.08m2
 Local appearance photo
現地外観写真
 Local photos, including front road
前面道路含む現地写真
Supermarketスーパー  Daimarupikokku Iogi 648m to shop
大丸ピーコック井荻店まで648m
Same specifications photos (Other introspection)同仕様写真(その他内観)  _ Vanity seller construction cases
売主施工例_洗面化粧台
 Local photos, including front road
前面道路含む現地写真
Junior high school中学校  784m to Suginami Ward Nakase Junior High School
杉並区立中瀬中学校まで784m
Primary school小学校  619m to Suginami Ward HachiNaru Elementary School
杉並区立八成小学校まで619m
Kindergarten ・ Nursery幼稚園・保育園  Nakase 351m to nursery school
中瀬保育園まで351m
 Rush 378m to nursery school
井草保育園まで378m
 Nakase 570m to kindergarten
中瀬幼稚園まで570m
Location
|