New Homes » Kanto » Tokyo » Suginami
 
| | Suginami-ku, Tokyo 東京都杉並区 |
| Tokyo Metro Marunouchi Line "Honancho" walk 13 minutes 東京メトロ丸ノ内線「方南町」歩13分 |
| Lush, A quiet residential area. It became the final 1 buildings sale of the two buildings. Year occupancy is also available. For more information, Inc. Lives Please feel free to contact us to 03-6454-0050. 緑豊かな、閑静な住宅街。2棟のうち最終1棟の販売となりました。年内入居も可能です。詳細は株式会社ライヴス 03-6454-0050までお気軽にお問合せ下さい。 |
| ■ Around, Wada moat park ・ Sumibi park ・ There are a lot of such as already Miyama playground such as leafy park. ■ Living environment for the scenic area is also good. ■ It will be the last 1 buildings sale of the two buildings. ■ You can preview any time per building completed. Please do not hesitate to offer. ■周辺には、和田堀公園・済美公園・済美山運動場など緑の多い公園などがたくさんあります。■風致地区のため住環境も良好です。■2棟のうち最終1棟の販売となります。■建物完成につき随時内覧可能です。お気軽にお申出下さい。 |
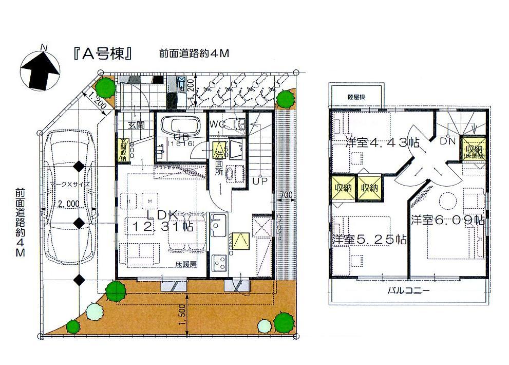
Features pickup 特徴ピックアップ | | 2 along the line more accessible / Energy-saving water heaters / System kitchen / Bathroom Dryer / A quiet residential area / Corner lot / Starting station / Shaping land / Washbasin with shower / Face-to-face kitchen / Bathroom 1 tsubo or more / 2-story / Double-glazing / Warm water washing toilet seat / Underfloor Storage / TV monitor interphone / Leafy residential area / Floor heating 2沿線以上利用可 /省エネ給湯器 /システムキッチン /浴室乾燥機 /閑静な住宅地 /角地 /始発駅 /整形地 /シャワー付洗面台 /対面式キッチン /浴室1坪以上 /2階建 /複層ガラス /温水洗浄便座 /床下収納 /TVモニタ付インターホン /緑豊かな住宅地 /床暖房 | Price 価格 | | 44,800,000 yen 4480万円 | Floor plan 間取り | | 3LDK 3LDK | Units sold 販売戸数 | | 1 units 1戸 | Total units 総戸数 | | 2 units 2戸 | Land area 土地面積 | | 80 sq m (measured) 80m2(実測) | Building area 建物面積 | | 63.98 sq m 63.98m2 | Driveway burden-road 私道負担・道路 | | Share equity 59 sq m × (1 / 2), North 4m width, West 4m width 共有持分59m2×(1/2)、北4m幅、西4m幅 | Completion date 完成時期(築年月) | | October 2013 2013年10月 | Address 住所 | | Suginami-ku, Tokyo Horinouchi 1 東京都杉並区堀ノ内1 | Traffic 交通 | | Tokyo Metro Marunouchi Line "Honancho" walk 13 minutes Inokashira "Eifukucho" walk 18 minutes Tokyo Metro Marunouchi Line "Shin Koenji" walk 17 minutes 東京メトロ丸ノ内線「方南町」歩13分 京王井の頭線「永福町」歩18分 東京メトロ丸ノ内線「新高円寺」歩17分
| Related links 関連リンク | | [Related Sites of this company] 【この会社の関連サイト】 | Contact お問い合せ先 | | (Ltd.) Lives TEL: 0800-603-9048 [Toll free] mobile phone ・ Also available from PHS Caller ID is not notified Please contact the "saw SUUMO (Sumo)" If it does not lead, If the real estate company (株)ライヴスTEL:0800-603-9048【通話料無料】携帯電話・PHSからもご利用いただけます 発信者番号は通知されません 「SUUMO(スーモ)を見た」と問い合わせください つながらない方、不動産会社の方は
| Building coverage, floor area ratio 建ぺい率・容積率 | | 40% ・ 80% 40%・80% | Time residents 入居時期 | | Immediate available 即入居可 | Land of the right form 土地の権利形態 | | Ownership 所有権 | Structure and method of construction 構造・工法 | | Wooden 2-story 木造2階建 | Use district 用途地域 | | One low-rise 1種低層 | Other limitations その他制限事項 | | Scenic zone 風致地区 | Overview and notices その他概要・特記事項 | | Facilities: Public Water Supply, This sewage, City gas, Building confirmation number: 0188, Parking: car space 設備:公営水道、本下水、都市ガス、建築確認番号:0188、駐車場:カースペース | Company profile 会社概要 | | <Mediation> Governor of Tokyo (2) No. 086913 (Ltd.) Lives Yubinbango164-0001 Nakano-ku, Tokyo Nakano 4-5-1 Nakano KI building the third floor <仲介>東京都知事(2)第086913号(株)ライヴス〒164-0001 東京都中野区中野4-5-1 中野KIビル3階 |
 Local appearance photo
現地外観写真
Floor plan間取り図  44,800,000 yen, 3LDK, Land area 80 sq m , Building area 63.98 sq m
4480万円、3LDK、土地面積80m2、建物面積63.98m2
 Local appearance photo
現地外観写真
 Living
リビング
 Bathroom
浴室
 Kitchen
キッチン
 Entrance
玄関
 Toilet
トイレ
 Local photos, including front road
前面道路含む現地写真
 Balcony
バルコニー
Primary school小学校  Sumibi until elementary school 160m
済美小学校まで160m
 Other introspection
その他内観
 Living
リビング
Junior high school中学校  240m to Omiya Junior High School
大宮中学校まで240m
 Other introspection
その他内観
Park公園  80m to already Miyama Park
済美山公園まで80m
Location
|