New Homes » Kanto » Tokyo » Suginami
 
| | Suginami-ku, Tokyo 東京都杉並区 |
| Tokyo Metro Marunouchi Line "Honancho" walk 7 minutes 東京メトロ丸ノ内線「方南町」歩7分 |
| Premium Field ~ Seek clear to you ~ 4km area from Shinjuku, Inokashira "Eifukucho" station such as a two-station 2 routes available, The average land area 40 square meters more than the mansion of that birth in a quiet residential area Premium Field ~ ゆとりを求めるあなたへ ~ 新宿から4km圏、京王井の頭線「永福町」駅など2駅2路線利用可能、閑静な住宅街に誕生する平均敷地面積40坪超の邸宅 |
| ■ 2 Station 2 routes available, Nimble access to the city center, such as Shinjuku and Shibuya ■ Yet the city center adjacent, Planning of the average site area 40 square meters more than the room ■ Long-term quality housing certification <seismic grade 3 Energy-saving grade 4 Fit> ■ Including the lush park in the surrounding area, Fulfilling life convenience facilities ■2駅2路線利用可能で、新宿や渋谷など都心に軽快なアクセス■都心隣接でありながら、平均敷地面積40坪超のゆとりの計画■長期優良住宅認定〈耐震等級3 省エネ等級4 適合〉■周辺には緑豊かな公園をはじめ、生活利便施設が充実 |
Local guide map 現地案内図 | | Local guide map 現地案内図 | Features pickup 特徴ピックアップ | | Long-term high-quality housing / Seismic fit / Year Available / 2 along the line more accessible / LDK18 tatami mats or more / Facing south / System kitchen / Bathroom Dryer / All room storage / Flat to the station / A quiet residential area / Japanese-style room / Starting station / garden / Face-to-face kitchen / Security enhancement / Wide balcony / Toilet 2 places / 2-story / 2 or more sides balcony / South balcony / Double-glazing / Warm water washing toilet seat / Nantei / Underfloor Storage / The window in the bathroom / Atrium / Walk-in closet / Living stairs / Storeroom / roof balcony / Flat terrain / terrace 長期優良住宅 /耐震適合 /年内入居可 /2沿線以上利用可 /LDK18畳以上 /南向き /システムキッチン /浴室乾燥機 /全居室収納 /駅まで平坦 /閑静な住宅地 /和室 /始発駅 /庭 /対面式キッチン /セキュリティ充実 /ワイドバルコニー /トイレ2ヶ所 /2階建 /2面以上バルコニー /南面バルコニー /複層ガラス /温水洗浄便座 /南庭 /床下収納 /浴室に窓 /吹抜け /ウォークインクロゼット /リビング階段 /納戸 /ルーフバルコニー /平坦地 /テラス | Event information イベント情報 | | All mansion published in (reservations required) funds Consultation ・ FP Consultation ・ Tax Consultation accepted in the streets unveiled meeting held in! 全邸公開中(ご予約制)資金相談会・FP相談会・税務相談会受付中街並お披露目会開催中! | Property name 物件名 | | Ha peer Garden Suginami Izumi First-come-first-served basis application being accepted ハピアガーデン杉並和泉 先着順申込受付中 | Price 価格 | | 84 million yen ~ 98 million yen 8400万円 ~ 9800万円 | Floor plan 間取り | | 3LDK 3LDK | Units sold 販売戸数 | | 3 units 3戸 | Total units 総戸数 | | 7 units 7戸 | Land area 土地面積 | | 124.17 sq m ~ 138.4 sq m (37.56 tsubo ~ 41.86 tsubo) (Registration) 124.17m2 ~ 138.4m2(37.56坪 ~ 41.86坪)(登記) | Building area 建物面積 | | 98.84 sq m ~ 107.83 sq m (29.89 tsubo ~ 32.61 tsubo) (Registration) 98.84m2 ~ 107.83m2(29.89坪 ~ 32.61坪)(登記) | Driveway burden-road 私道負担・道路 | | Driveway burden: 137 sq m × 1 / 8 私道負担:137m2×1/8 | Completion date 完成時期(築年月) | | 2013 in early October 2013年10月上旬 | Address 住所 | | Suginami-ku, Tokyo Izumi 4-294 No. 40 東京都杉並区和泉4-294番40他(地番) | Traffic 交通 | | Tokyo Metro Marunouchi Line "Honancho" walk 7 minutes Inokashira "Eifukucho" walk 15 minutes 東京メトロ丸ノ内線「方南町」歩7分 京王井の頭線「永福町」歩15分
| Related links 関連リンク | | [Related Sites of this company] 【この会社の関連サイト】 | Contact お問い合せ先 | | Ha peer Garden Suginami Izumi model house Salon TEL: 0120-828-109 (mobile phone ・ Also available from PHS. ) Please contact the "saw SUUMO (Sumo)" ハピアガーデン杉並和泉 モデルハウスサロンTEL:0120-828-109(携帯電話・PHSからもご利用いただけます。)「SUUMO(スーモ)を見た」と問い合わせください | Sale schedule 販売スケジュール | | First-come-first-served basis application being accepted 先着順申込受付中 | Building coverage, floor area ratio 建ぺい率・容積率 | | Building coverage 40%, Volume of 80% 建ぺい率40%、容積率80% | Time residents 入居時期 | | 2013 end of December schedule 2013年12月末予定 | Land of the right form 土地の権利形態 | | Ownership 所有権 | Structure and method of construction 構造・工法 | | Wooden 2-story (2 × 4 construction method) 木造2階建(2×4工法) | Construction 施工 | | Tokyu Construction Co., Ltd. 東急建設株式会社 | Use district 用途地域 | | One low-rise 1種低層 | Land category 地目 | | Residential land 宅地 | Overview and notices その他概要・特記事項 | | Building confirmation number: No. BVJ-R13-10-0126 other 建築確認番号:第BVJ-R13-10-0126号 他 | Company profile 会社概要 | | <Seller> Minister of Land, Infrastructure and Transport (14) No. 265 (company) Osaka Building Lots and Buildings Transaction Business Association, (Corporation) Kinki district Real Estate Fair Trade Council member Hanshin Electric Railway Co., Ltd., the Tokyo metropolitan area office Yubinbango104-0031, Chuo-ku, Tokyo Kyobashi 2-6-20 Hanshin second Greenville second floor <marketing alliance (agency)> Land, <売主>国土交通大臣(14)第265号(社)大阪府宅地建物取引業協会会員、(公社)近畿地区不動産公正取引協議会加盟 阪神電気鉄道(株)首都圏営業所〒104-0031 東京都中央区京橋2-6-20 阪神第2グリーンビル2階<販売提携(代理)>国土交通大臣(10)第2611号(一社)不動産協会会員(一社)不動産流通経営協会会員(公社)首都圏不動産公正取引協議会加盟東急リバブル(株)住宅営業本部〒150-0043 東京都渋谷区道玄坂1-2-2 渋谷東急プラザ6F |
Cityscape Rendering街並完成予想図  Exterior Photos
外観写真
Livingリビング  Model house living ・ Dining (1 Building ・ 2013 September shooting)
モデルハウスリビング・ダイニング(1号棟・平成25年9月撮影)
 Model house living ・ Dining (1 Building ・ 2013 September shooting)
モデルハウスリビング・ダイニング(1号棟・平成25年9月撮影)
Non-living roomリビング以外の居室  Model house bedroom (1 Building ・ 2013 September shooting)
モデルハウスベッドルーム(1号棟・平成25年9月撮影)
Park公園  820m to Metropolitan Wada moat park ※ Walk a fraction of the articles and is calculated in 1 minute = 80m. ※ Surrounding environment photo of me is what was taken in April 2013.
都立和田堀公園まで820m ※掲載の徒歩分数は1分=80mで算出しております。※掲載の周辺環境写真は平成25年4月に撮影したものです。
 route map
路線図
Otherその他  Shinjuku (image)
新宿(イメージ)
 Shibuya (image)
渋谷(イメージ)
Supermarketスーパー  Summit 410m until Izumi shop ※ Walk a fraction of the articles and is calculated in 1 minute = 80m. ※ Surrounding environment photo of me is what was taken in April 2013.
サミット 和泉店まで410m ※掲載の徒歩分数は1分=80mで算出しております。※掲載の周辺環境写真は平成25年4月に撮影したものです。
 Kitchen Court Eifukucho to the store 1200m ※ Walk a fraction of the articles and is calculated in 1 minute = 80m. ※ Surrounding environment photo of me is what was taken in April 2013.
キッチンコート 永福町店まで1200m ※掲載の徒歩分数は1分=80mで算出しております。※掲載の周辺環境写真は平成25年4月に撮影したものです。
Park公園  410m to Metropolitan Wada moat park (east district) ※ Walk a fraction of the articles and is calculated in 1 minute = 80m. ※ Surrounding environment photo of me is what was taken in April 2013.
都立和田堀公園(東地区)まで410m ※掲載の徒歩分数は1分=80mで算出しております。※掲載の周辺環境写真は平成25年4月に撮影したものです。
Home centerホームセンター  Shimachu Co., Ltd. Holmes 970m until Nakano head office ※ Walk a fraction of the articles and is calculated in 1 minute = 80m. ※ Surrounding environment photo of me is what was taken in April 2013.
島忠ホームズ 中野本店まで970m ※掲載の徒歩分数は1分=80mで算出しております。※掲載の周辺環境写真は平成25年4月に撮影したものです。
Other Environmental Photoその他環境写真  820m to Omiya Hachiman ※ Walk a fraction of the articles and is calculated in 1 minute = 80m. ※ Surrounding environment photo of me is what was taken in April 2013.
大宮八幡宮まで820m ※掲載の徒歩分数は1分=80mで算出しております。※掲載の周辺環境写真は平成25年4月に撮影したものです。
Livingリビング  Model house living (1 Building ・ 2013 September shooting)
モデルハウスリビング(1号棟・平成25年9月撮影)
Bathroom浴室  Model house bathroom (1 Building ・ 2013 September shooting)
モデルハウス浴室(1号棟・平成25年9月撮影)
Kitchenキッチン  Model house kitchen (1 Building ・ 2013 September shooting)
モデルハウスキッチン(1号棟・平成25年9月撮影)
Wash basin, toilet洗面台・洗面所  Model house lavatory (1 Building ・ 2013 September shooting)
モデルハウス洗面所(1号棟・平成25年9月撮影)
Cooling and heating ・ Air conditioning冷暖房・空調設備  Produce a comfortable bath time in the four functions
4つの機能で快適なバスタイムを演出
Other Equipmentその他設備  To save precious water without waste wisely
大切な水をムダなく賢く節約する
Security equipment防犯設備  Allowing one-touch opening and closing
ワンタッチで開閉可能
 With recording function with color monitor
カラーモニターで録画機能付き
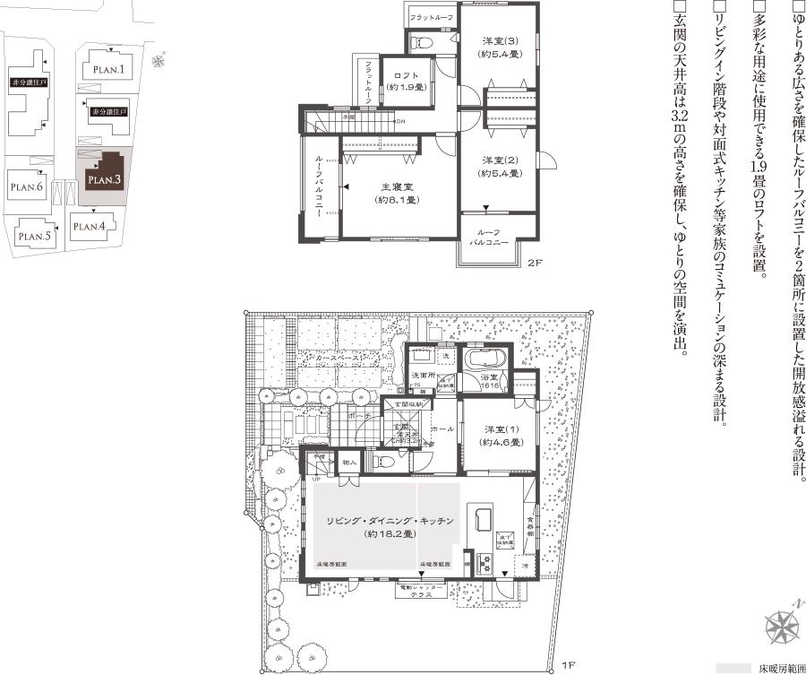
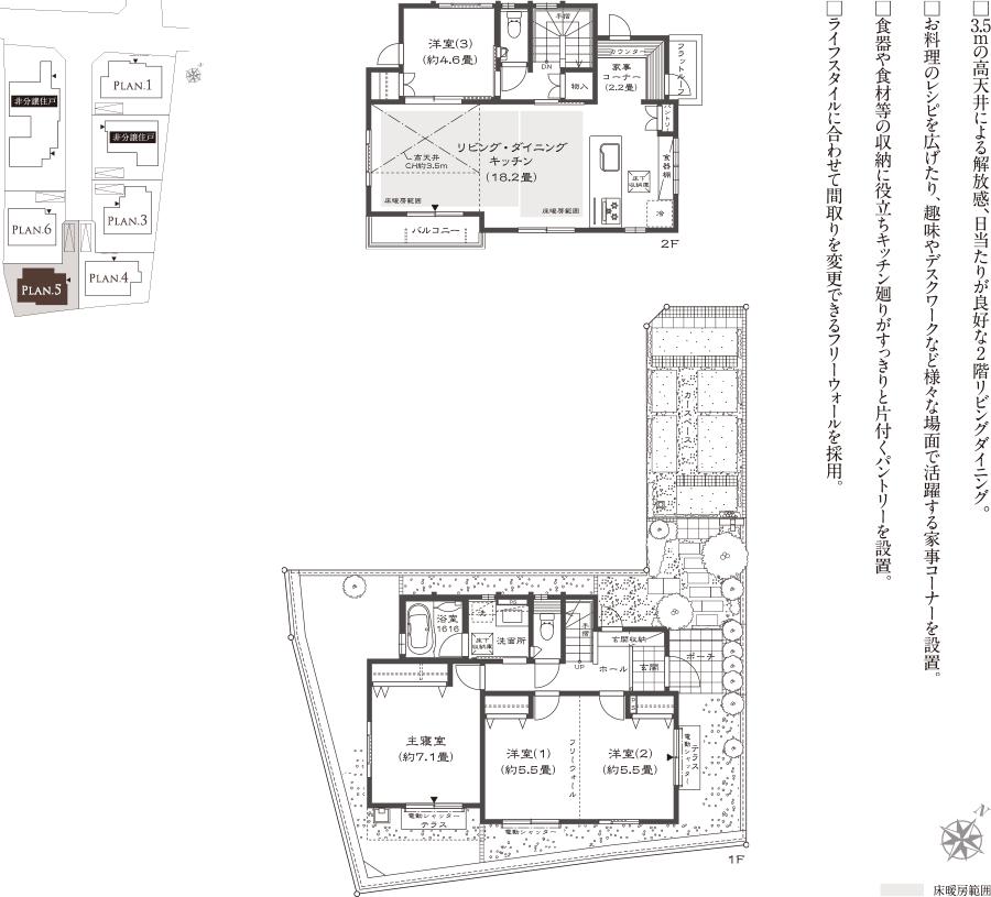
Floor plan間取り図  820m to Metropolitan Wada moat park ※ Walk a fraction of the articles and is calculated in 1 minute = 80m. ※ Surrounding environment photo of me is what was taken in April 2013.
都立和田堀公園まで820m ※掲載の徒歩分数は1分=80mで算出しております。※掲載の周辺環境写真は平成25年4月に撮影したものです。
 820m to Metropolitan Wada moat park ※ Walk a fraction of the articles and is calculated in 1 minute = 80m. ※ Surrounding environment photo of me is what was taken in April 2013.
都立和田堀公園まで820m ※掲載の徒歩分数は1分=80mで算出しております。※掲載の周辺環境写真は平成25年4月に撮影したものです。
 (5 Building), Price 84 million yen, 3LDK, Land area 124.17 sq m , Building area 98.84 sq m
(5号棟)、価格8400万円、3LDK、土地面積124.17m2、建物面積98.84m2
 Local guide map
現地案内図
Security equipment防犯設備  Attention to crime prevention
防犯性に配慮
Other Equipmentその他設備  Labor-saving household chores, High water-saving effect
家事の省力化、節水効果も高い
Station駅  1200m to Eifukuchō Station ※ Walk a fraction of the articles and is calculated in 1 minute = 80m. ※ Surrounding environment photo of me is what was taken in April 2013.
永福町駅まで1200m ※掲載の徒歩分数は1分=80mで算出しております。※掲載の周辺環境写真は平成25年4月に撮影したものです。
Park公園  380m until Izumi children amusement ※ Walk a fraction of the articles and is calculated in 1 minute = 80m. ※ Surrounding environment photo of me is what was taken in April 2013.
和泉児童遊園まで380m ※掲載の徒歩分数は1分=80mで算出しております。※掲載の周辺環境写真は平成25年4月に撮影したものです。
Location
|