New Homes » Kanto » Tokyo » Suginami
 
| | Suginami-ku, Tokyo 東京都杉並区 |
| Inokashira "Hamadayama" walk 7 minutes 京王井の頭線「浜田山」歩7分 |
| Pre-ground survey, Immediate Available, 2 along the line more accessible, Energy-saving water heaters, Super close, Facing south, System kitchen, Bathroom Dryer, Yang per good, All room storage, Flat to the station, Siemens south road, A quiet residential 地盤調査済、即入居可、2沿線以上利用可、省エネ給湯器、スーパーが近い、南向き、システムキッチン、浴室乾燥機、陽当り良好、全居室収納、駅まで平坦、南側道路面す、閑静な住宅 |
| Pre-ground survey, Immediate Available, 2 along the line more accessible, Energy-saving water heaters, Super close, Facing south, System kitchen, Bathroom Dryer, Yang per good, All room storage, Flat to the station, Siemens south road, A quiet residential area, LDK15 tatami mats or more, Around traffic fewer, Washbasin with shower, Face-to-face kitchen, Wide balcony, Toilet 2 places, Bathroom 1 tsubo or more, 2-story, South balcony, Zenshitsuminami direction, Otobasu, Warm water washing toilet seat, loft, The window in the bathroom, TV monitor interphone, High-function toilet, Leafy residential area, Ventilation good, Dish washing dryer, Water filter, City gas, Located on a hill, Floor heating, Movable partition 地盤調査済、即入居可、2沿線以上利用可、省エネ給湯器、スーパーが近い、南向き、システムキッチン、浴室乾燥機、陽当り良好、全居室収納、駅まで平坦、南側道路面す、閑静な住宅地、LDK15畳以上、周辺交通量少なめ、シャワー付洗面台、対面式キッチン、ワイドバルコニー、トイレ2ヶ所、浴室1坪以上、2階建、南面バルコニー、全室南向き、オートバス、温水洗浄便座、ロフト、浴室に窓、TVモニタ付インターホン、高機能トイレ、緑豊かな住宅地、通風良好、食器洗乾燥機、浄水器、都市ガス、高台に立地、床暖房、可動間仕切り |
Features pickup 特徴ピックアップ | | Pre-ground survey / 2 along the line more accessible / Energy-saving water heaters / Super close / Facing south / System kitchen / Bathroom Dryer / Yang per good / All room storage / Flat to the station / Siemens south road / A quiet residential area / LDK15 tatami mats or more / Around traffic fewer / Washbasin with shower / Face-to-face kitchen / Wide balcony / Toilet 2 places / Bathroom 1 tsubo or more / 2-story / South balcony / Zenshitsuminami direction / Otobasu / Warm water washing toilet seat / loft / The window in the bathroom / TV monitor interphone / High-function toilet / Leafy residential area / Ventilation good / Dish washing dryer / Water filter / City gas / Located on a hill / Floor heating / Movable partition 地盤調査済 /2沿線以上利用可 /省エネ給湯器 /スーパーが近い /南向き /システムキッチン /浴室乾燥機 /陽当り良好 /全居室収納 /駅まで平坦 /南側道路面す /閑静な住宅地 /LDK15畳以上 /周辺交通量少なめ /シャワー付洗面台 /対面式キッチン /ワイドバルコニー /トイレ2ヶ所 /浴室1坪以上 /2階建 /南面バルコニー /全室南向き /オートバス /温水洗浄便座 /ロフト /浴室に窓 /TVモニタ付インターホン /高機能トイレ /緑豊かな住宅地 /通風良好 /食器洗乾燥機 /浄水器 /都市ガス /高台に立地 /床暖房 /可動間仕切り | Price 価格 | | 61,800,000 yen 6180万円 | Floor plan 間取り | | 4LDK 4LDK | Units sold 販売戸数 | | 1 units 1戸 | Total units 総戸数 | | 1 units 1戸 | Land area 土地面積 | | 97.55 sq m (29.50 tsubo) (Registration) 97.55m2(29.50坪)(登記) | Building area 建物面積 | | 94.39 sq m (28.55 tsubo) (measured) 94.39m2(28.55坪)(実測) | Driveway burden-road 私道負担・道路 | | Nothing, South 4m width 無、南4m幅 | Completion date 完成時期(築年月) | | December 2013 2013年12月 | Address 住所 | | Suginami-ku, Tokyo Hamadayama 1 東京都杉並区浜田山1 | Traffic 交通 | | Inokashira "Hamadayama" walk 7 minutes Inokashira "Nishieifuku" walk 6 minutes Keio Line "Sakurajosui" walk 16 minutes 京王井の頭線「浜田山」歩7分 京王井の頭線「西永福」歩6分 京王線「桜上水」歩16分
| Person in charge 担当者より | | Rep Shingo Shintani 担当者新谷慎吾 | Contact お問い合せ先 | | TEL: 0800-603-1517 [Toll free] mobile phone ・ Also available from PHS Caller ID is not notified Please contact the "saw SUUMO (Sumo)" If it does not lead, If the real estate company TEL:0800-603-1517【通話料無料】携帯電話・PHSからもご利用いただけます 発信者番号は通知されません 「SUUMO(スーモ)を見た」と問い合わせください つながらない方、不動産会社の方は
| Building coverage, floor area ratio 建ぺい率・容積率 | | Fifty percent ・ Hundred percent 50%・100% | Time residents 入居時期 | | Consultation 相談 | Land of the right form 土地の権利形態 | | Ownership 所有権 | Structure and method of construction 構造・工法 | | Wooden 2-story 木造2階建 | Use district 用途地域 | | One low-rise 1種低層 | Overview and notices その他概要・特記事項 | | Contact: Shingo Shintani, Facilities: Public Water Supply, This sewage, City gas, Building confirmation number: BNV 確済 13-02056, Parking: car space 担当者:新谷慎吾、設備:公営水道、本下水、都市ガス、建築確認番号:BNV確済13-02056、駐車場:カースペース | Company profile 会社概要 | | <Mediation> Governor of Tokyo (7) No. 046472 (Ltd.), Building Products community Shinjuku 160-0023 Tokyo Nishi-Shinjuku, Shinjuku-ku, 4-2-18 <仲介>東京都知事(7)第046472号(株)住建コミュニティ新宿店〒160-0023 東京都新宿区西新宿4-2-18 |
 Same specifications photos (appearance)
同仕様写真(外観)
 Same specifications photos (living)
同仕様写真(リビング)
 Same specifications photo (kitchen)
同仕様写真(キッチン)
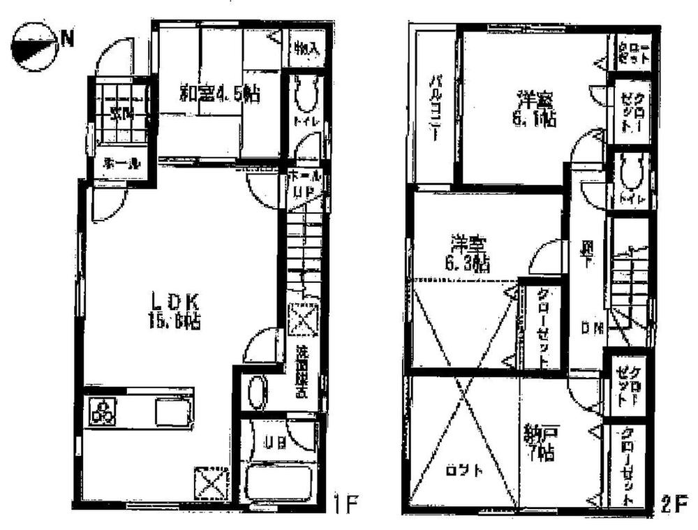
Floor plan間取り図  61,800,000 yen, 4LDK, Land area 97.55 sq m , Building area 94.39 sq m
6180万円、4LDK、土地面積97.55m2、建物面積94.39m2
 Same specifications photos (living)
同仕様写真(リビング)
 Same specifications photo (bathroom)
同仕様写真(浴室)
 Same specifications photo (kitchen)
同仕様写真(キッチン)
 Same specifications photos (Other introspection)
同仕様写真(その他内観)
 Same specifications photos (living)
同仕様写真(リビング)
 Same specifications photo (bathroom)
同仕様写真(浴室)
 Same specifications photos (Other introspection)
同仕様写真(その他内観)
 Same specifications photos (Other introspection)
同仕様写真(その他内観)
Location
|