New Homes » Kanto » Tokyo » Suginami
 
| | Suginami-ku, Tokyo 東京都杉並区 |
| Inokashira "Takaido" walk 6 minutes 京王井の頭線「高井戸」歩6分 |
| Inokashira "Fujimigaoka" station walk 6 minutes ○ 1 floor living, And a clean living space with abundant storage, such as south-facing bright 3LDK ○ all room storage 井の頭線「富士見ヶ丘」駅徒歩6分○1階リビング、南向きの明るい3LDK○全居室収納など豊富な収納ですっきりとした住空間 |
| Energy-saving water heaters, Super close, Facing south, System kitchen, Bathroom Dryer, Yang per good, All room storage, A quiet residential area, LDK15 tatami mats or more, Shaping land, Mist sauna, Face-to-face kitchen, Toilet 2 places, Bathroom 1 tsubo or more, 2-story, South balcony, Warm water washing toilet seat, The window in the bathroom, TV monitor interphone, Dish washing dryer, Living stairs, City gas, Floor heating 省エネ給湯器、スーパーが近い、南向き、システムキッチン、浴室乾燥機、陽当り良好、全居室収納、閑静な住宅地、LDK15畳以上、整形地、ミストサウナ、対面式キッチン、トイレ2ヶ所、浴室1坪以上、2階建、南面バルコニー、温水洗浄便座、浴室に窓、TVモニタ付インターホン、食器洗乾燥機、リビング階段、都市ガス、床暖房 |
Features pickup 特徴ピックアップ | | Energy-saving water heaters / Super close / Facing south / System kitchen / Bathroom Dryer / Yang per good / All room storage / A quiet residential area / LDK15 tatami mats or more / Shaping land / Mist sauna / Face-to-face kitchen / Toilet 2 places / Bathroom 1 tsubo or more / 2-story / South balcony / Warm water washing toilet seat / The window in the bathroom / TV monitor interphone / Dish washing dryer / Living stairs / City gas / Floor heating 省エネ給湯器 /スーパーが近い /南向き /システムキッチン /浴室乾燥機 /陽当り良好 /全居室収納 /閑静な住宅地 /LDK15畳以上 /整形地 /ミストサウナ /対面式キッチン /トイレ2ヶ所 /浴室1坪以上 /2階建 /南面バルコニー /温水洗浄便座 /浴室に窓 /TVモニタ付インターホン /食器洗乾燥機 /リビング階段 /都市ガス /床暖房 | Price 価格 | | 62,800,000 yen 6280万円 | Floor plan 間取り | | 3LDK 3LDK | Units sold 販売戸数 | | 2 units 2戸 | Total units 総戸数 | | 2 units 2戸 | Land area 土地面積 | | 104.95 sq m (measured) 104.95m2(実測) | Building area 建物面積 | | 82.21 sq m ・ 83.2 sq m (measured) 82.21m2・83.2m2(実測) | Driveway burden-road 私道負担・道路 | | Road width: southeast 4m, Driveway equity: 1690m2 × 1 / 64 道路幅:南東4m、私道持分:1690m2×1/64 | Completion date 完成時期(築年月) | | February 2014 schedule 2014年2月予定 | Address 住所 | | Suginami-ku, Tokyo Takaidonishi 1 東京都杉並区高井戸西1 | Traffic 交通 | | Inokashira "Takaido" walk 6 minutes Inokashira "Fujimigaoka" walk 8 minutes Keio Line "Roka park" walk 22 minutes 京王井の頭線「高井戸」歩6分 京王井の頭線「富士見ヶ丘」歩8分 京王線「芦花公園」歩22分
| Related links 関連リンク | | [Related Sites of this company] 【この会社の関連サイト】 | Person in charge 担当者より | | Responsible Shataku Ken'yoko this Yasunobu Age: creed that I am allowed to guide you so that you can respond to the 40s your needs. We handle various types of properties. First of all, please let us know what you wish. 担当者宅建横本 泰伸年齢:40代お客様のニーズに応える事ができるようご案内させて頂くのが信条です。様々なタイプの物件を取り扱っております。先ずはご希望をお聞かせください。 | Contact お問い合せ先 | | TEL: 0800-603-0512 [Toll free] mobile phone ・ Also available from PHS Caller ID is not notified Please contact the "saw SUUMO (Sumo)" If it does not lead, If the real estate company TEL:0800-603-0512【通話料無料】携帯電話・PHSからもご利用いただけます 発信者番号は通知されません 「SUUMO(スーモ)を見た」と問い合わせください つながらない方、不動産会社の方は
| Building coverage, floor area ratio 建ぺい率・容積率 | | Kenpei rate: 40%, Volume ratio: 80% 建ペい率:40%、容積率:80% | Time residents 入居時期 | | Consultation 相談 | Land of the right form 土地の権利形態 | | Ownership 所有権 | Structure and method of construction 構造・工法 | | Wooden 2-story 木造2階建 | Use district 用途地域 | | One low-rise 1種低層 | Land category 地目 | | Residential land 宅地 | Overview and notices その他概要・特記事項 | | The person in charge: Side this Yasunobu, Building confirmation number: 201402 担当者:横本 泰伸、建築確認番号:201402 | Company profile 会社概要 | | <Mediation> Governor of Tokyo (9) No. 041553 (Corporation) All Japan Real Estate Association (Corporation) metropolitan area real estate Fair Trade Council member Showa building (Ltd.) Yubinbango167-0053 Suginami-ku, Tokyo Nishiogiminami 3-18-15 <仲介>東京都知事(9)第041553号(公社)全日本不動産協会会員 (公社)首都圏不動産公正取引協議会加盟昭和建物(株)〒167-0053 東京都杉並区西荻南3-18-15 |
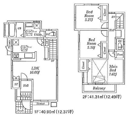
Floor plan間取り図  (A Building), Price 62,800,000 yen, 3LDK, Land area 104.95 sq m , Building area 83.2 sq m
(A号棟)、価格6280万円、3LDK、土地面積104.95m2、建物面積83.2m2
 Local appearance photo
現地外観写真
Supermarketスーパー  642m until Seiyu Fujimigaoka shop
西友富士見ケ丘店まで642m
 The entire compartment Figure
全体区画図
Floor plan間取り図  (B Building), Price 62,800,000 yen, 3LDK, Land area 104.95 sq m , Building area 82.21 sq m
(B号棟)、価格6280万円、3LDK、土地面積104.95m2、建物面積82.21m2
Supermarketスーパー  826m to Super Ozeki Takaido shop
スーパーオオゼキ高井戸店まで826m
Junior high school中学校  477m to Suginami Ward Fujimi hill junior high school
杉並区立富士見丘中学校まで477m
Primary school小学校  470m to Suginami Ward Fujimi hill Elementary School
杉並区立富士見丘小学校まで470m
Kindergarten ・ Nursery幼稚園・保育園  Takaido 559m to nursery school
高井戸保育園まで559m
 TakaraYo to kindergarten 765m
宝陽幼稚園まで765m
 510m until the horn kindergarten
角笛幼稚園まで510m
Hospital病院  Social welfare corporation Yokufukai Yokufukai to hospital 225m
社会福祉法人浴風会浴風会病院まで225m
 1232m to social welfare corporation Yasushi Kazue Kugayama hospital
社会福祉法人康和会久我山病院まで1232m
 Local photos, including front road
前面道路含む現地写真
Location
|