New Homes » Kanto » Tokyo » Suginami
 
| | Suginami-ku, Tokyo 東京都杉並区 |
| Inokashira "Takaido" walk 14 minutes 京王井の頭線「高井戸」歩14分 |
| Center line ・ Inokashira available and commuting is convenient abode. Each room in the making of Zenshitsuminami facing, we have produce a bright space. LDK More of the Japanese-style room is ideal as a playground for small children. 中央線・井の頭線利用可能で通勤通学が便利な住まいです。全室南向きの創りで各居室は明るい空間を演出しております。LDK続きの和室は小さいお子様の遊び場としては最適です。 |
| The Company offers a staff loaded with experience in a wide range of area centered on the center line. First, More good quality services ・ ・ More fresh information ・ ・ There in the major premise is, And real estate transactions that we think, Customers peace of mind and satisfaction to be said that how much is given we believe that the most important. Are also available lot listing for new properties are also available from our own route as the one. Come Please visit our boast of information. We look forward to inquiries from everyone. 当社は中央線を中心とした幅広いエリアで実績を積んだスタッフをご用意しています。まず、より質の良いサービスを・・より新鮮な情報を・・は大前提であり、私たちが考える不動産取引とは、お客様に安心と満足をどれだけ与えられるかということが最も重要と考えています。その一つとして新規物件も当社独自のルートから入手している為物件情報もたくさん取り揃えています。是非当社自慢の情報をご覧下さい。皆様からのお問合わせを心よりお待ちしております。 |
Features pickup 特徴ピックアップ | | Corresponding to the flat-35S / Pre-ground survey / Immediate Available / 2 along the line more accessible / Super close / It is close to the city / System kitchen / Bathroom Dryer / Yang per good / All room storage / Flat to the station / A quiet residential area / LDK15 tatami mats or more / Around traffic fewer / Japanese-style room / Shaping land / Washbasin with shower / Wide balcony / Barrier-free / Toilet 2 places / Bathroom 1 tsubo or more / 2-story / South balcony / Double-glazing / Zenshitsuminami direction / Warm water washing toilet seat / Underfloor Storage / The window in the bathroom / TV monitor interphone / Ventilation good / All living room flooring / Dish washing dryer / Water filter / City gas / Flat terrain / Attic storage / Floor heating フラット35Sに対応 /地盤調査済 /即入居可 /2沿線以上利用可 /スーパーが近い /市街地が近い /システムキッチン /浴室乾燥機 /陽当り良好 /全居室収納 /駅まで平坦 /閑静な住宅地 /LDK15畳以上 /周辺交通量少なめ /和室 /整形地 /シャワー付洗面台 /ワイドバルコニー /バリアフリー /トイレ2ヶ所 /浴室1坪以上 /2階建 /南面バルコニー /複層ガラス /全室南向き /温水洗浄便座 /床下収納 /浴室に窓 /TVモニタ付インターホン /通風良好 /全居室フローリング /食器洗乾燥機 /浄水器 /都市ガス /平坦地 /屋根裏収納 /床暖房 | Price 価格 | | 58,800,000 yen 5880万円 | Floor plan 間取り | | 4LDK 4LDK | Units sold 販売戸数 | | 1 units 1戸 | Total units 総戸数 | | 5 units 5戸 | Land area 土地面積 | | 100.01 sq m (measured) 100.01m2(実測) | Building area 建物面積 | | 96.05 sq m (measured) 96.05m2(実測) | Driveway burden-road 私道負担・道路 | | Nothing, East 5m width 無、東5m幅 | Completion date 完成時期(築年月) | | October 2013 2013年10月 | Address 住所 | | Suginami-ku, Tokyo Miyamae 2 東京都杉並区宮前2 | Traffic 交通 | | Inokashira "Takaido" walk 14 minutes JR Chuo Line "Ogikubo" walk 22 minutes Inokashira "Fujimigaoka" walk 17 minutes 京王井の頭線「高井戸」歩14分 JR中央線「荻窪」歩22分 京王井の頭線「富士見ヶ丘」歩17分
| Related links 関連リンク | | [Related Sites of this company] 【この会社の関連サイト】 | Person in charge 担当者より | | Rep Watabiki Yuta Age: 30 Daigyokai experience: we are working in the thought that one year "I want to continue to the best of services in the real estate industry.". Also resolve Neba' to stickiness is what you have a problem that in order to smile the "Customer". Please call also trivial. 担当者綿引 裕太年齢:30代業界経験:1年「不動産業界で最高のサービスをしていきたい」という想いで取り組んでおります。「お客様」を笑顔にするためどんなお困り事でも粘りに粘って解決します。些細なことでもお電話下さい。 | Contact お問い合せ先 | | TEL: 0800-603-2426 [Toll free] mobile phone ・ Also available from PHS Caller ID is not notified Please contact the "saw SUUMO (Sumo)" If it does not lead, If the real estate company TEL:0800-603-2426【通話料無料】携帯電話・PHSからもご利用いただけます 発信者番号は通知されません 「SUUMO(スーモ)を見た」と問い合わせください つながらない方、不動産会社の方は
| Building coverage, floor area ratio 建ぺい率・容積率 | | Fifty percent ・ Hundred percent 50%・100% | Time residents 入居時期 | | Immediate available 即入居可 | Land of the right form 土地の権利形態 | | Ownership 所有権 | Structure and method of construction 構造・工法 | | Wooden 2-story 木造2階建 | Use district 用途地域 | | One low-rise 1種低層 | Other limitations その他制限事項 | | Regulations have by the Landscape Act, Height district, Quasi-fire zones, Height ceiling Yes, Site area minimum Yes, Shade limit Yes 景観法による規制有、高度地区、準防火地域、高さ最高限度有、敷地面積最低限度有、日影制限有 | Overview and notices その他概要・特記事項 | | Contact: Watabiki Yuta, Facilities: Public Water Supply, This sewage, City gas, Parking: car space 担当者:綿引 裕太、設備:公営水道、本下水、都市ガス、駐車場:カースペース | Company profile 会社概要 | | <Mediation> Governor of Tokyo (5) No. 070367 (Corporation) All Japan Real Estate Association (Corporation) metropolitan area real estate Fair Trade Council member (Ltd.) Aquos business part Yubinbango166-0001 Suginami-ku, Tokyo Asagayakita 4-10-8 <仲介>東京都知事(5)第070367号(公社)全日本不動産協会会員 (公社)首都圏不動産公正取引協議会加盟(株)アクオス営業一部〒166-0001 東京都杉並区阿佐谷北4-10-8 |
Local appearance photo現地外観写真  Local (11 May 2013) Shooting
現地(2013年11月)撮影
Local photos, including front road前面道路含む現地写真  Local (11 May 2013) Shooting
現地(2013年11月)撮影
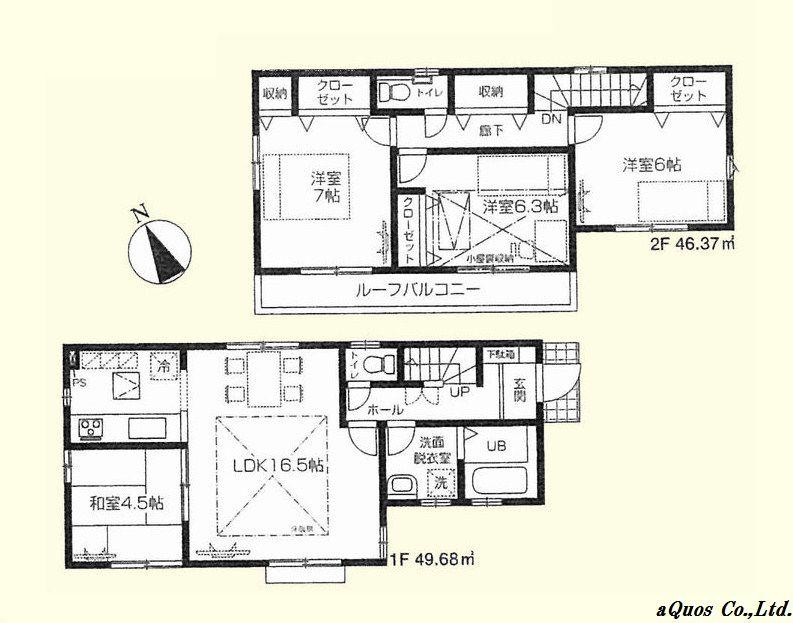
Floor plan間取り図  58,800,000 yen, 4LDK, Land area 100.01 sq m , Building area 96.05 sq m
5880万円、4LDK、土地面積100.01m2、建物面積96.05m2
Livingリビング  Indoor (11 May 2013) Shooting
室内(2013年11月)撮影
Bathroom浴室  Indoor (11 May 2013) Shooting
室内(2013年11月)撮影
Kitchenキッチン  Indoor (11 May 2013) Shooting
室内(2013年11月)撮影
Non-living roomリビング以外の居室  Indoor (11 May 2013) Shooting
室内(2013年11月)撮影
Wash basin, toilet洗面台・洗面所  Indoor (11 May 2013) Shooting
室内(2013年11月)撮影
Toiletトイレ  Indoor (11 May 2013) Shooting
室内(2013年11月)撮影
Supermarketスーパー  499m until Seiyu Takaidohigashi shop
西友高井戸東店まで499m
Livingリビング  Indoor (11 May 2013) Shooting
室内(2013年11月)撮影
Bathroom浴室  Indoor (11 May 2013) Shooting
室内(2013年11月)撮影
Kitchenキッチン  Indoor (11 May 2013) Shooting
室内(2013年11月)撮影
Non-living roomリビング以外の居室  Indoor (11 May 2013) Shooting
室内(2013年11月)撮影
Wash basin, toilet洗面台・洗面所  Indoor (11 May 2013) Shooting
室内(2013年11月)撮影
Junior high school中学校  512m to Suginami Miyamae junior high school
杉並区立宮前中学校まで512m
Primary school小学校  568m to Suginami Ward Ogikubo Elementary School
杉並区立荻窪小学校まで568m
Kindergarten ・ Nursery幼稚園・保育園  Miyamae 398m to nursery school
宮前保育園まで398m
Park公園  439m to Miyamae park
宮前公園まで439m
Supermarketスーパー  547m to Super arrow in Miyamae shop
スーパーナカヤ宮前店まで547m
 Ozeki until Takaido shop 823m
オオゼキ高井戸店まで823m
Location
|