New Homes » Kanto » Tokyo » Suginami
 
| | Suginami-ku, Tokyo 東京都杉並区 |
| JR Chuo Line "Koenji" walk 9 minutes JR中央線「高円寺」歩9分 |
| Corner lot, LDK15 tatami mats or more, 2 along the line more accessible, Floor heating, Face-to-face kitchen, Bathroom Dryer, Pre-ground survey, System kitchen, A quiet residential area, Warm water washing toilet seat, The window in the bathroom, With a TV monitor Intaho 角地、LDK15畳以上、2沿線以上利用可、床暖房、対面式キッチン、浴室乾燥機、地盤調査済、システムキッチン、閑静な住宅地、温水洗浄便座、浴室に窓、TVモニタ付インターホ |
Features pickup 特徴ピックアップ | | Pre-ground survey / 2 along the line more accessible / System kitchen / Bathroom Dryer / A quiet residential area / LDK15 tatami mats or more / Corner lot / Face-to-face kitchen / Warm water washing toilet seat / The window in the bathroom / TV monitor interphone / All living room flooring / Built garage / Southwestward / Dish washing dryer / Water filter / Living stairs / Storeroom / Floor heating 地盤調査済 /2沿線以上利用可 /システムキッチン /浴室乾燥機 /閑静な住宅地 /LDK15畳以上 /角地 /対面式キッチン /温水洗浄便座 /浴室に窓 /TVモニタ付インターホン /全居室フローリング /ビルトガレージ /南西向き /食器洗乾燥機 /浄水器 /リビング階段 /納戸 /床暖房 | Event information イベント情報 | | Local sales meetings (Please be sure to ask in advance) schedule / Every Saturday, Sunday and public holidays time / 10:00 ~ 17:00 so we also guide you on weekdays, Please contact us at any time. 現地販売会(事前に必ずお問い合わせください)日程/毎週土日祝時間/10:00 ~ 17:00平日もご案内しておりますので、いつでもお問い合わせください。 | Price 価格 | | 54,800,000 yen ~ 56,800,000 yen 5480万円 ~ 5680万円 | Floor plan 間取り | | 1LDK + 2S (storeroom) ~ 3LDK + S (storeroom) 1LDK+2S(納戸) ~ 3LDK+S(納戸) | Units sold 販売戸数 | | 4 units 4戸 | Total units 総戸数 | | 4 units 4戸 | Land area 土地面積 | | 50.07 sq m ~ 50.18 sq m 50.07m2 ~ 50.18m2 | Building area 建物面積 | | 90.84 sq m ~ 93.95 sq m 90.84m2 ~ 93.95m2 | Driveway burden-road 私道負担・道路 | | Road width: 4m, Southeast side road width about 4m set back already, Southwest side road width about 4m set back already 道路幅:4m、東南側公道幅員約4mセットバック済、南西側公道幅員約4mセットバック済 | Completion date 完成時期(築年月) | | March 2014 in late schedule 2014年3月下旬予定 | Address 住所 | | Suginami-ku, Tokyo Koenjiminami 5-30 東京都杉並区高円寺南5-30 | Traffic 交通 | | JR Chuo Line "Koenji" walk 9 minutes Tokyo Metro Marunouchi Line "Higashi Koenji" walk 9 minutes Tokyo Metro Tozai Line "Nakano" walk 11 minutes JR中央線「高円寺」歩9分 東京メトロ丸ノ内線「東高円寺」歩9分 東京メトロ東西線「中野」歩11分
| Related links 関連リンク | | [Related Sites of this company] 【この会社の関連サイト】 | Person in charge 担当者より | | Rep Yokokura Sachiko bright has risked mind a cheerful service! (It is in the study day-to-day expertise! ! ) Local guidance, Billing, etc. More Information, At any time please feel free to contact us 担当者横倉 佐知子明るく元気な接客を心懸けています!(専門知識も日々勉強中です!!)現地のご案内、詳細資料のご請求等、いつでもお気軽にご相談ください | Contact お問い合せ先 | | TEL: 0800-603-4657 [Toll free] mobile phone ・ Also available from PHS Caller ID is not notified Please contact the "saw SUUMO (Sumo)" If it does not lead, If the real estate company TEL:0800-603-4657【通話料無料】携帯電話・PHSからもご利用いただけます 発信者番号は通知されません 「SUUMO(スーモ)を見た」と問い合わせください つながらない方、不動産会社の方は
| Building coverage, floor area ratio 建ぺい率・容積率 | | Kenpei rate: 80% ・ 60%, Volume ratio: 300% ・ Minimum site area is 200% (building coverage 60% 60 sq m , Building coverage 80% to 20M from the southeast side of the road end. After the subsequent 20M) 建ペい率:80%・60%、容積率:300%・200%(建蔽率60%は最低敷地面積60m2、建蔽率80%は東南側道路端より20Mまで。あとは20M以降) | Time residents 入居時期 | | Three months after the contract 契約後3ヶ月 | Land of the right form 土地の権利形態 | | Ownership 所有権 | Structure and method of construction 構造・工法 | | Wooden three-story 木造3階建 | Use district 用途地域 | | Residential, One middle and high 近隣商業、1種中高 | Land category 地目 | | Residential land 宅地 | Other limitations その他制限事項 | | Quasi-fire zones, Site area minimum Yes 準防火地域、敷地面積最低限度有 | Overview and notices その他概要・特記事項 | | Contact: Yokokura Sachiko, Building confirmation number: first BNV 確済 13-1083 Nos BNV 確済 13-1084 first BNV 確済 13-1085 Building No. BNV 確済 13-1085 担当者:横倉 佐知子、建築確認番号:第BNV確済13-1083号第BNV確済13-1084号第BNV確済13-1085号棟第BNV確済13-1085号 | Company profile 会社概要 | | <Mediation> Governor of Tokyo (1) No. 094444 (Ltd.) Marvelous Yubinbango151-0053, Shibuya-ku, Tokyo Yoyogi 5-67-5 <仲介>東京都知事(1)第094444号(株)マーベラス〒151-0053 東京都渋谷区代々木5-67-5 |
Rendering (appearance)完成予想図(外観)  Rendering
完成予想図
Local photos, including front road前面道路含む現地写真  Local (11 May 2013) Shooting
現地(2013年11月)撮影
 Local (11 May 2013) Shooting
現地(2013年11月)撮影
Floor plan間取り図  (1 Building), Price 56,800,000 yen, 3LDK+S, Land area 50.18 sq m , Building area 93.95 sq m
(1号棟)、価格5680万円、3LDK+S、土地面積50.18m2、建物面積93.95m2
Local photos, including front road前面道路含む現地写真  Local (11 May 2013) Shooting
現地(2013年11月)撮影
Park公園  And 290m spacious to Koenji East Park is a park that is felt more season of trees
高円寺東公園まで290m 広々して木々の多い季節を感じられる公園です
Otherその他  Floor plan
間取り
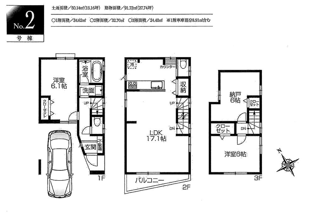
Floor plan間取り図  (Building 2), Price 55,800,000 yen, 2LDK+S, Land area 50.14 sq m , Building area 91.72 sq m
(2号棟)、価格5580万円、2LDK+S、土地面積50.14m2、建物面積91.72m2
Kindergarten ・ Nursery幼稚園・保育園  400m to the light salt Joshigakuin kindergarten
光塩女子学院幼稚園まで400m
Floor plan間取り図  (3 Building), Price 55,800,000 yen, 1LDK+2S, Land area 50.14 sq m , Building area 90.84 sq m
(3号棟)、価格5580万円、1LDK+2S、土地面積50.14m2、建物面積90.84m2
Convenience storeコンビニ  420m to Seven-Eleven
セブンイレブンまで420m
Floor plan間取り図  (4 Building), Price 54,800,000 yen, 2LDK+S, Land area 50.07 sq m , Building area 92.38 sq m
(4号棟)、価格5480万円、2LDK+S、土地面積50.07m2、建物面積92.38m2
Location
|