New Homes » Kanto » Tokyo » Suginami


Suginami-ku, Tokyo
Inokashira "Kugayama" walk 1 minute
Inokashira "Kugayama" station Shintei two-story 4LDK of living of 1 minute relaxed walk up to
In equipment specifications 〇_LDK of enhancement, such as one minute of access 〇 of development subdivision 〇_LDK20 Pledge of south terraced two-storey 4LDK_〇 all room counter kitchen Yes floor bouncing of storage space Yes conversation heating and dish washing and drying machine walk to 〇 Station
Features pickup
Pre-ground survey / LDK20 tatami mats or more / Super close / Facing south / Bathroom Dryer / Yang per good / Flat to the station / A quiet residential area / Around traffic fewer / Japanese-style room / Shaping land / Face-to-face kitchen / Wide balcony / Bathroom 1 tsubo or more / 2-story / South balcony / Double-glazing / Nantei / Underfloor Storage / The window in the bathroom / Leafy residential area / Ventilation good / Dish washing dryer / Water filter / City gas / All rooms are two-sided lighting / A large gap between the neighboring house / Floor heating
Price
80 million yen
Floor plan
4LDK
Units sold
1 units
Total units
9 units
Land area
100.1 sq m (30.28 tsubo) (measured)
Building area
98.13 sq m (29.68 tsubo) (Registration)
Driveway burden-road
Share equity 138.44 sq m × (1 / 9), West 4.5m width
Completion date
March 2014
Address
Suginami-ku, Tokyo Kugayama 5
Traffic
Inokashira "Kugayama" walk 1 minute
Inokashira "Fujimigaoka" walk 12 minutes
Inokashira "Mitakadai" walk 18 minutes
Person in charge
Rep Takami Kurokawa
Contact
TEL: 0800-603-3448 [Toll free] mobile phone ・ Also available from PHS
Caller ID is not notified
Please contact the "saw SUUMO (Sumo)"
If it does not lead, If the real estate company
Building coverage, floor area ratio
Fifty percent ・ Hundred percent
Time residents
March 2014 schedule
Land of the right form
Ownership
Structure and method of construction
Wooden 2-story
Use district
One low-rise
Overview and notices
Contact: Takami Kurokawa, Facilities: Public Water Supply, This sewage, City gas, Building confirmation number: H25SHC118578, Parking: car space
Company profile
<Mediation> Governor of Tokyo (2) No. 082920 (Corporation) Tokyo Metropolitan Government Building Lots and Buildings Transaction Business Association (Corporation) metropolitan area real estate Fair Trade Council member am tick (Ltd.) Kichijoji headquarters sales department Yubinbango180-0002 Musashino-shi, Tokyo Kichijojihigashi cho 1-19-21


Same specifications photos (appearance)
Same specifications photos (appearance)

Same specifications photos (Other introspection)
Same specifications photos (Other introspection)

Floor plan

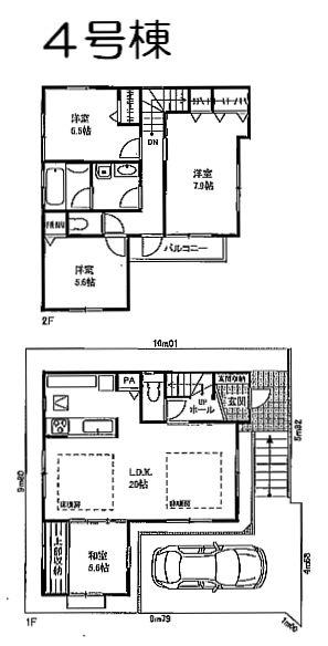
Floor plan. 80 million yen, 4LDK, Land area 100.1 sq m , Building area 98.13 sq m 4 Building Floor plan
80 million yen, 4LDK, Land area 100.1 sq m , Building area 98.13 sq m 4 Building Floor plan

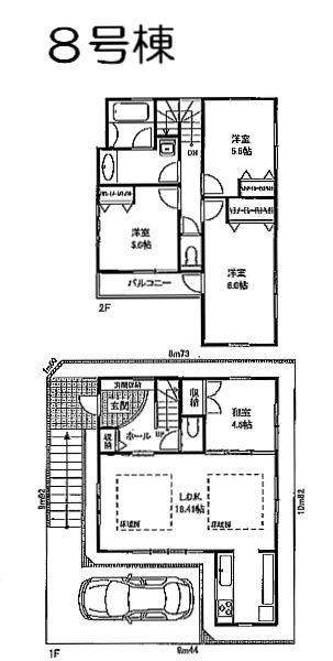
Floor plan. 80 million yen, 4LDK, Land area 100.1 sq m , Building area 98.13 sq m 8 Building Floor plan
80 million yen, 4LDK, Land area 100.1 sq m , Building area 98.13 sq m 8 Building Floor plan

Local appearance photo
Local appearance photo

Local photos, including front road
Local photos, including front road

Kindergarten ・ Nursery

kindergarten ・ Nursery. Kugayama 493m to kindergarten
Kugayama 493m to kindergarten

Same specifications photos (Other introspection)
Same specifications photos (Other introspection)

Other
Other

Local appearance photo
Local appearance photo

kindergarten ・ Nursery. Municipal Takaidonishi until kindergarten 1016m
Municipal Takaidonishi until kindergarten 1016m

Same specifications photos (Other introspection)
Same specifications photos (Other introspection)

Other
Other

kindergarten ・ Nursery. Kokugakuindaigaku 1124m until included kindergarten
Kokugakuindaigaku 1124m until included kindergarten

Same specifications photos (Other introspection)
Same specifications photos (Other introspection)

Other
Other

kindergarten ・ Nursery. Kugayama 70m to nursery school
Kugayama 70m to nursery school

Same specifications photos (Other introspection)
Same specifications photos (Other introspection)

Other
Other

kindergarten ・ Nursery. Kugayama 633m to east nursery school
Kugayama 633m to east nursery school

Same specifications photos (Other introspection)
Same specifications photos (Other introspection)



Location