New Homes » Kanto » Tokyo » Suginami


Suginami-ku, Tokyo
Keio Line "Sakurajosui" walk 12 minutes
■ LDK15 quires more ■ With loft ■ Flat parking ■ Flat 35S corresponding housing
Site is a newly built detached houses of 30 square meters more than the room. This quiet residential area is located in the first-class low-rise exclusive residential area. Within walking distance of Tamagawa second park is ideal for a walk. Please feel free to contact us.
Features pickup
System kitchen / A quiet residential area / LDK15 tatami mats or more / 2-story / loft / TV monitor interphone
Price
51,800,000 yen
Floor plan
3LDK
Units sold
1 units
Total units
1 units
Land area
106.04 sq m (registration), Alley-like portion: 37.2 sq m including
Building area
80.21 sq m (registration)
Driveway burden-road
Nothing, East 4m width
Completion date
December 2013
Address
Suginami-ku, Tokyo Shimotakaido 4
Traffic
Keio Line "Sakurajosui" walk 12 minutes
Keio Line "Kamikitazawa" walk 10 minutes
Inokashira "Nishieifuku" walk 16 minutes
Related links
[Related Sites of this company]
Person in charge
Person in charge of real-estate and building Hirasawa Tomoyuki Age: let me I squeezed take is important your assets real estate for 40's customers, I feel a very challenging job. Because expensive items we want to take care of communication with customers.
Contact
TEL: 0800-603-0575 [Toll free] mobile phone ・ Also available from PHS
Caller ID is not notified
Please contact the "saw SUUMO (Sumo)"
If it does not lead, If the real estate company
Building coverage, floor area ratio
40% ・ 80%
Time residents
Consultation
Land of the right form
Ownership
Structure and method of construction
Wooden 2-story
Use district
One low-rise
Other limitations
Set-back: already
Overview and notices
Contact: Hirasawa Tomoyuki, Facilities: Public Water Supply, This sewage, City gas, Building confirmation number: 05503-1, Parking: car space
Company profile
<Mediation> Minister of Land, Infrastructure and Transport (3) No. 006,185 (one company) National Housing Industry Association (Corporation) metropolitan area real estate Fair Trade Council member Asahi Housing Corporation Shinjuku 160-0023 Tokyo Nishi-Shinjuku, Shinjuku-ku, 1-19-6 Shinjuku Yamate building 7th floor


Local appearance photo
Local appearance photo

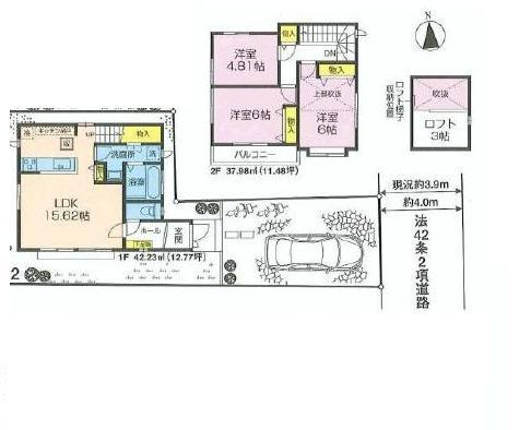
Floor plan

Floor plan. 51,800,000 yen, 3LDK, Land area 106.04 sq m , Building area 80.21 sq m
51,800,000 yen, 3LDK, Land area 106.04 sq m , Building area 80.21 sq m

Local photos, including front road
Local photos, including front road

Primary school

Primary school. Takaido 290m to the third elementary school
Takaido 290m to the third elementary school

Junior high school

Junior high school. Koyo 700m until junior high school
Koyo 700m until junior high school

Supermarket

Supermarket. 800m until Inageya Sakurajosui shop
800m until Inageya Sakurajosui shop

Supermarket. 1100m to Super Value Suginami Takaido shop
1100m to Super Value Suginami Takaido shop

Kindergarten ・ Nursery

kindergarten ・ Nursery. 1900m to Buddy sports kindergarten
1900m to Buddy sports kindergarten

Hospital

Hospital. 350m to the Royal Hospital
350m to the Royal Hospital

Hospital. Kabashima 1600m to the hospital
Kabashima 1600m to the hospital



Location