|
|
Suginami-ku, Tokyo
東京都杉並区
|
|
Seibu Shinjuku Line "Iogi" walk 11 minutes
西武新宿線「井荻」歩11分
|
|
[Group companies seller properties] 3 line 3 station available! Lush park near! Living environment favorable!
【グループ会社売主物件】3路線3駅利用可能!緑豊かな公園近く!住環境良好!
|
|
[Group companies seller properties] Electric train ・ bus ・ Car traffic is very convenient location! There is a large park is in a 1-minute walk, Life is the environment is well livable area by all means, please contact us!
【グループ会社売主物件】電車・バス・車の交通が大変便利な立地です!徒歩1分には大型公園があり、生活環境が良く住みやすいエリアです是非お問合せ下さい!
|
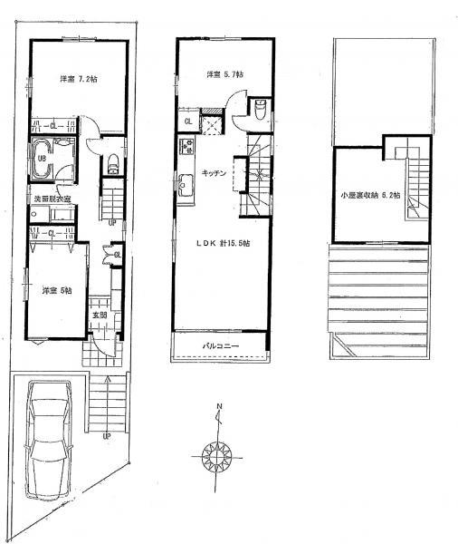
Features pickup 特徴ピックアップ | | 2 along the line more accessible / Yang per good / All room storage / Siemens south road / A quiet residential area / LDK15 tatami mats or more / Toilet 2 places / 2-story / Leafy residential area / All rooms are two-sided lighting 2沿線以上利用可 /陽当り良好 /全居室収納 /南側道路面す /閑静な住宅地 /LDK15畳以上 /トイレ2ヶ所 /2階建 /緑豊かな住宅地 /全室2面採光 |
Price 価格 | | 57,800,000 yen 5780万円 |
Floor plan 間取り | | 3LDK 3LDK |
Units sold 販売戸数 | | 1 units 1戸 |
Total units 総戸数 | | 1 units 1戸 |
Land area 土地面積 | | 82.64 sq m (measured) 82.64m2(実測) |
Building area 建物面積 | | 81.4 sq m (measured) 81.4m2(実測) |
Driveway burden-road 私道負担・道路 | | Nothing, Southeast 5.4m width 無、南東5.4m幅 |
Completion date 完成時期(築年月) | | March 2014 2014年3月 |
Address 住所 | | Suginami-ku, Tokyo Shimizu 3 東京都杉並区清水3 |
Traffic 交通 | | Seibu Shinjuku Line "Iogi" walk 11 minutes Seibu Shinjuku Line "Shimo Igusa" walk 14 minutes JR Chuo Line "Ogikubo" bus 15 Bunmyosei Teraike walk 3 minutes 西武新宿線「井荻」歩11分 西武新宿線「下井草」歩14分 JR中央線「荻窪」バス15分妙正寺池歩3分
|
Person in charge 担当者より | | Person in charge of real-estate and building Hirose Also tell neat place also bad place good Taro property. Because I will do my best hard as delight customers, Humbly thank you. 担当者宅建広瀬 太郎物件の良いところも悪いところもきちんとお伝えします。お客様に喜んで頂けるよう一生懸命頑張りますので、何卒よろしくお願い致します。 |
Contact お問い合せ先 | | TEL: 0800-603-1421 [Toll free] mobile phone ・ Also available from PHS Caller ID is not notified Please contact the "saw SUUMO (Sumo)" If it does not lead, If the real estate company TEL:0800-603-1421【通話料無料】携帯電話・PHSからもご利用いただけます 発信者番号は通知されません 「SUUMO(スーモ)を見た」と問い合わせください つながらない方、不動産会社の方は
|
Building coverage, floor area ratio 建ぺい率・容積率 | | Fifty percent ・ Hundred percent 50%・100% |
Time residents 入居時期 | | Consultation 相談 |
Land of the right form 土地の権利形態 | | Ownership 所有権 |
Structure and method of construction 構造・工法 | | Wooden 2-story 木造2階建 |
Use district 用途地域 | | One low-rise 1種低層 |
Other limitations その他制限事項 | | Height district, Quasi-fire zones 高度地区、準防火地域 |
Overview and notices その他概要・特記事項 | | Contact: Hirose Taro, Facilities: Public Water Supply, This sewage, City gas, Building confirmation number: No. 170, Parking: car space 担当者:広瀬 太郎、設備:公営水道、本下水、都市ガス、建築確認番号:第170号、駐車場:カースペース |
Company profile 会社概要 | | <Mediation> Governor of Tokyo (5) No. 071012 (Corporation) All Japan Real Estate Association (Corporation) metropolitan area real estate Fair Trade Council member (Ltd.) living living 販本 shop Yubinbango167-0022 Suginami-ku, Tokyo Shimo Igusa 3-39-17 <仲介>東京都知事(5)第071012号(公社)全日本不動産協会会員 (公社)首都圏不動産公正取引協議会加盟(株)リビング住販本店〒167-0022 東京都杉並区下井草3-39-17 |