New Homes » Kanto » Tokyo » Suginami
 
| | Suginami-ku, Tokyo 東京都杉並区 |
| Keio Line "Hachimanyama" walk 2 minutes 京王線「八幡山」歩2分 |
| Why not celebrate the New Year in a new house. Building completed already! There are immediately Available. Please feel free to contact the toll-free number "0800-602-7872" 新年を新居で迎えてはいかがでしょうか。建物完成済!即入居可でございます。お気軽にフリーダイヤル「0800-602-7872」までお問い合わせください |
| Corresponding to the flat-35S, Immediate Available, 2 along the line more accessible, LDK20 tatami mats or more, It is close to the city, System kitchen, Bathroom Dryer, Yang per good, All room storage, Flat to the station, A quiet residential area, Shaping land, Washbasin with shower, Face-to-face kitchen, Toilet 2 places, Bathroom 1 tsubo or more, Double-glazing, Warm water washing toilet seat, The window in the bathroom, TV monitor interphone, Urban neighborhood, Ventilation good, All living room flooring, Good view, Dish washing dryer, Water filter, Three-story or more, Living stairs, City gas, Flat terrain, Floor heating フラット35Sに対応、即入居可、2沿線以上利用可、LDK20畳以上、市街地が近い、システムキッチン、浴室乾燥機、陽当り良好、全居室収納、駅まで平坦、閑静な住宅地、整形地、シャワー付洗面台、対面式キッチン、トイレ2ヶ所、浴室1坪以上、複層ガラス、温水洗浄便座、浴室に窓、TVモニタ付インターホン、都市近郊、通風良好、全居室フローリング、眺望良好、食器洗乾燥機、浄水器、3階建以上、リビング階段、都市ガス、平坦地、床暖房 |
Features pickup 特徴ピックアップ | | Corresponding to the flat-35S / Immediate Available / 2 along the line more accessible / LDK20 tatami mats or more / It is close to the city / System kitchen / Bathroom Dryer / Yang per good / All room storage / Flat to the station / A quiet residential area / Shaping land / Washbasin with shower / Face-to-face kitchen / Toilet 2 places / Bathroom 1 tsubo or more / Double-glazing / Warm water washing toilet seat / The window in the bathroom / TV monitor interphone / Urban neighborhood / Ventilation good / All living room flooring / Good view / Dish washing dryer / Water filter / Three-story or more / Living stairs / City gas / Flat terrain / Floor heating フラット35Sに対応 /即入居可 /2沿線以上利用可 /LDK20畳以上 /市街地が近い /システムキッチン /浴室乾燥機 /陽当り良好 /全居室収納 /駅まで平坦 /閑静な住宅地 /整形地 /シャワー付洗面台 /対面式キッチン /トイレ2ヶ所 /浴室1坪以上 /複層ガラス /温水洗浄便座 /浴室に窓 /TVモニタ付インターホン /都市近郊 /通風良好 /全居室フローリング /眺望良好 /食器洗乾燥機 /浄水器 /3階建以上 /リビング階段 /都市ガス /平坦地 /床暖房 | Event information イベント情報 | | Local guide Board (Please be sure to ask in advance) schedule / Now open 現地案内会(事前に必ずお問い合わせください)日程/公開中 | Price 価格 | | 64,800,000 yen 6480万円 | Floor plan 間取り | | 4LDK 4LDK | Units sold 販売戸数 | | 1 units 1戸 | Total units 総戸数 | | 3 units 3戸 | Land area 土地面積 | | 72.25 sq m (registration) 72.25m2(登記) | Building area 建物面積 | | 108.68 sq m (registration) 108.68m2(登記) | Driveway burden-road 私道負担・道路 | | Nothing, East 4m width 無、東4m幅 | Completion date 完成時期(築年月) | | October 2013 2013年10月 | Address 住所 | | Suginami-ku, Tokyo Kamitakaido 1 東京都杉並区上高井戸1 | Traffic 交通 | | Keio Line "Hachimanyama" walk 2 minutes Inokashira "Takaido" walk 20 minutes 京王線「八幡山」歩2分 京王井の頭線「高井戸」歩20分
| Related links 関連リンク | | [Related Sites of this company] 【この会社の関連サイト】 | Person in charge 担当者より | | Person in charge of real-estate and building Saito Age: 40 Daigyokai experience: we will comfortably be offered a wealth of property information as you are able to find the property in 12 years our customers. 担当者宅建斉藤年齢:40代業界経験:12年お客様に快適に物件探しをして頂けるように豊富な物件情報をご提供させていただきます。 | Contact お問い合せ先 | | TEL: 0800-602-7872 [Toll free] mobile phone ・ Also available from PHS Caller ID is not notified Please contact the "saw SUUMO (Sumo)" If it does not lead, If the real estate company TEL:0800-602-7872【通話料無料】携帯電話・PHSからもご利用いただけます 発信者番号は通知されません 「SUUMO(スーモ)を見た」と問い合わせください つながらない方、不動産会社の方は
| Building coverage, floor area ratio 建ぺい率・容積率 | | 60% ・ 200% 60%・200% | Time residents 入居時期 | | Immediate available 即入居可 | Land of the right form 土地の権利形態 | | Ownership 所有権 | Structure and method of construction 構造・工法 | | Wooden three-story (2 × 4 construction method) 木造3階建(2×4工法) | Use district 用途地域 | | One middle and high 1種中高 | Overview and notices その他概要・特記事項 | | Contact: Saito, Facilities: Public Water Supply, This sewage, City gas, Parking: car space 担当者:斉藤、設備:公営水道、本下水、都市ガス、駐車場:カースペース | Company profile 会社概要 | | <Mediation> Governor of Tokyo (1) No. 092449 (Ltd.) Setagaya real estate Yubinbango168-0074 Suginami-ku, Tokyo Kamitakaido 1-8-4 <仲介>東京都知事(1)第092449号(株)世田谷不動産〒168-0074 東京都杉並区上高井戸1-8-4 |
Local appearance photo現地外観写真  Appearance (11 May 2011) Shooting
外観(2011年11月)撮影
Livingリビング  Indoor (11 May 2011) Shooting
室内(2011年11月)撮影
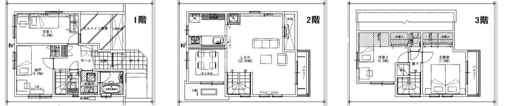
Floor plan間取り図  64,800,000 yen, 4LDK, Land area 72.25 sq m , Building area 108.68 sq m
6480万円、4LDK、土地面積72.25m2、建物面積108.68m2
Local appearance photo現地外観写真  Appearance (11 May 2011) Shooting
外観(2011年11月)撮影
Livingリビング  Indoor (11 May 2011) Shooting
室内(2011年11月)撮影
Bathroom浴室  Indoor (11 May 2011) Shooting
室内(2011年11月)撮影
Kitchenキッチン  Indoor (11 May 2011) Shooting
室内(2011年11月)撮影
Non-living roomリビング以外の居室  Indoor (11 May 2011) Shooting
室内(2011年11月)撮影
Entrance玄関  Indoor (11 May 2011) Shooting
室内(2011年11月)撮影
Wash basin, toilet洗面台・洗面所  Indoor (11 May 2011) Shooting
室内(2011年11月)撮影
Toiletトイレ  Indoor (11 May 2011) Shooting
室内(2011年11月)撮影
Other introspectionその他内観  Indoor (11 May 2011) Shooting
室内(2011年11月)撮影
View photos from the dwelling unit住戸からの眺望写真  (11 May 2011) Shooting
(2011年11月)撮影
Local appearance photo現地外観写真  Appearance (11 May 2011) Shooting
外観(2011年11月)撮影
Livingリビング  Indoor (11 May 2011) Shooting
室内(2011年11月)撮影
Kitchenキッチン  Indoor (11 May 2011) Shooting
室内(2011年11月)撮影
Non-living roomリビング以外の居室  Indoor (11 May 2011) Shooting
室内(2011年11月)撮影
Other introspectionその他内観  Indoor (11 May 2011) Shooting
室内(2011年11月)撮影
Local appearance photo現地外観写真  Appearance (11 May 2011) Shooting
外観(2011年11月)撮影
Kitchenキッチン  Indoor (11 May 2011) Shooting
室内(2011年11月)撮影
Location
|