New Homes » Kanto » Tokyo » Suginami


Suginami-ku, Tokyo
Keio Line "Sasazuka" walk 9 minutes
Keio Line "Sasazuka" It is a good location of the convenience of the station 9 minutes Fukinuki ceiling bright LDK shoes with cloak
○ Keio Line "Sasazuka" station 9 minutes ○ Keio walk "Daitabashi" station 9 minute walk
Features pickup
Three-story or more / City gas
Price
57,800,000 yen
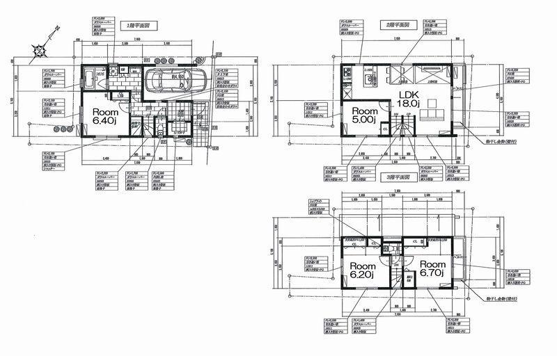
Floor plan
4LDK
Units sold
1 units
Land area
67.84 sq m (20.52 tsubo) (measured)
Building area
100.68 sq m (30.45 tsubo) (Registration)
Driveway burden-road
Nothing, Northeast 3.7m width (contact the road width 6.4m)
Completion date
May 2014
Address
Suginami-ku, Tokyo Honan 1
Traffic
Keio Line "Sasazuka" walk 9 minutes
Keio Line "Daitabashi" walk 9 minutes
Inokashira "Meidaimae" walk 20 minutes
Person in charge
Rep Takami Kurokawa
Contact
TEL: 0800-603-3448 [Toll free] mobile phone ・ Also available from PHS
Caller ID is not notified
Please contact the "saw SUUMO (Sumo)"
If it does not lead, If the real estate company
Building coverage, floor area ratio
60% ・ 150%
Time residents
May 2014 plans
Land of the right form
Ownership
Structure and method of construction
Wooden three-story
Use district
One low-rise
Overview and notices
Contact: Takami Kurokawa, Facilities: Public Water Supply, This sewage, City gas, Building confirmation number: H25SHC119587, Parking: Garage
Company profile
<Mediation> Governor of Tokyo (2) No. 082920 (Corporation) Tokyo Metropolitan Government Building Lots and Buildings Transaction Business Association (Corporation) metropolitan area real estate Fair Trade Council member am tick (Ltd.) Kichijoji headquarters sales department Yubinbango180-0002 Musashino-shi, Tokyo Kichijojihigashi cho 1-19-21


Rendering (appearance)
Rendering (appearance)

Floor plan

Floor plan. 57,800,000 yen, 4LDK, Land area 67.84 sq m , Building area 100.68 sq m
57,800,000 yen, 4LDK, Land area 67.84 sq m , Building area 100.68 sq m

Local appearance photo
Local appearance photo

Local appearance photo
Local appearance photo

Local photos, including front road
Local photos, including front road

Kindergarten ・ Nursery

kindergarten ・ Nursery. Resutonakku until kindergarten 1060m
Resutonakku until kindergarten 1060m

Compartment figure
Compartment figure

Local appearance photo
Local appearance photo

Local photos, including front road
Local photos, including front road

kindergarten ・ Nursery. 1029m until kindergarten Izumi-cho
1029m until kindergarten Izumi-cho

kindergarten ・ Nursery. Honan settlement house 104m to nursery school
Honan settlement house 104m to nursery school

kindergarten ・ Nursery. Musashino nursery 553m until Honan minute Gardens
Musashino nursery 553m until Honan minute Gardens

Primary school

Primary school. 560m to Suginami Ward Shin'izumi Elementary School
560m to Suginami Ward Shin'izumi Elementary School

Primary school. Sasazuka until elementary school 807m
Sasazuka until elementary school 807m

Primary school. Niiyama until elementary school 1159m
Niiyama until elementary school 1159m

Junior high school

Junior high school. Nakano Ward Minaminakano until junior high school 1086m
Nakano Ward Minaminakano until junior high school 1086m

Junior high school. Municipal Kitazawa until junior high school 1223m
Municipal Kitazawa until junior high school 1223m



Location