New Homes » Kanto » Tokyo » Suginami
 
| | Suginami-ku, Tokyo 東京都杉並区 |
| Tokyo Metro Marunouchi Line "Nakanofujimicho" walk 10 minutes 東京メトロ丸ノ内線「中野富士見町」歩10分 |
| Immediate Available, Facing south, Bathroom Dryer, Yang per good, All living room flooring, Good view 即入居可、南向き、浴室乾燥機、陽当り良好、全居室フローリング、眺望良好 |
| Flat 35 fit Property フラット35適合物件 |
Features pickup 特徴ピックアップ | | Immediate Available / Facing south / Bathroom Dryer / Yang per good / Toilet 2 places / TV monitor interphone / All living room flooring / Good view / Dish washing dryer 即入居可 /南向き /浴室乾燥機 /陽当り良好 /トイレ2ヶ所 /TVモニタ付インターホン /全居室フローリング /眺望良好 /食器洗乾燥機 | Price 価格 | | 49,800,000 yen 4980万円 | Floor plan 間取り | | 4LDK 4LDK | Units sold 販売戸数 | | 1 units 1戸 | Land area 土地面積 | | 83.24 sq m (measured) 83.24m2(実測) | Building area 建物面積 | | 125.03 sq m (measured) 125.03m2(実測) | Driveway burden-road 私道負担・道路 | | 10.32 sq m , South 4m width 10.32m2、南4m幅 | Completion date 完成時期(築年月) | | December 2013 2013年12月 | Address 住所 | | Suginami-ku, Tokyo Wada 2 東京都杉並区和田2 | Traffic 交通 | | Tokyo Metro Marunouchi Line "Nakanofujimicho" walk 10 minutes 東京メトロ丸ノ内線「中野富士見町」歩10分
| Contact お問い合せ先 | | (Ltd.) network TEL: 0800-600-6794 [Toll free] mobile phone ・ Also available from PHS Caller ID is not notified Please contact the "saw SUUMO (Sumo)" If it does not lead, If the real estate company (株)ネットワークTEL:0800-600-6794【通話料無料】携帯電話・PHSからもご利用いただけます 発信者番号は通知されません 「SUUMO(スーモ)を見た」と問い合わせください つながらない方、不動産会社の方は
| Expenses 諸費用 | | Rent: 18,260 yen / Month 地代:1万8260円/月 | Building coverage, floor area ratio 建ぺい率・容積率 | | 60% ・ 200% 60%・200% | Time residents 入居時期 | | Immediate available 即入居可 | Land of the right form 土地の権利形態 | | Leasehold (Old), Leasehold period new 20 years 賃借権(旧)、借地期間新規20年 | Structure and method of construction 構造・工法 | | Wooden three-story 木造3階建 | Use district 用途地域 | | One middle and high 1種中高 | Overview and notices その他概要・特記事項 | | Building confirmation number: 13130106, Parking: car space 建築確認番号:13130106、駐車場:カースペース | Company profile 会社概要 | | <Mediation> Governor of Tokyo (7) No. 055372 (Ltd.) network Yubinbango151-0073 Shibuya-ku, Tokyo Sasazuka 2-19-3 Taisei building 8th floor <仲介>東京都知事(7)第055372号(株)ネットワーク〒151-0073 東京都渋谷区笹塚2-19-3 大成ビル8階 |
Local appearance photo現地外観写真  Local (12 May 2013) Shooting
現地(2013年12月)撮影
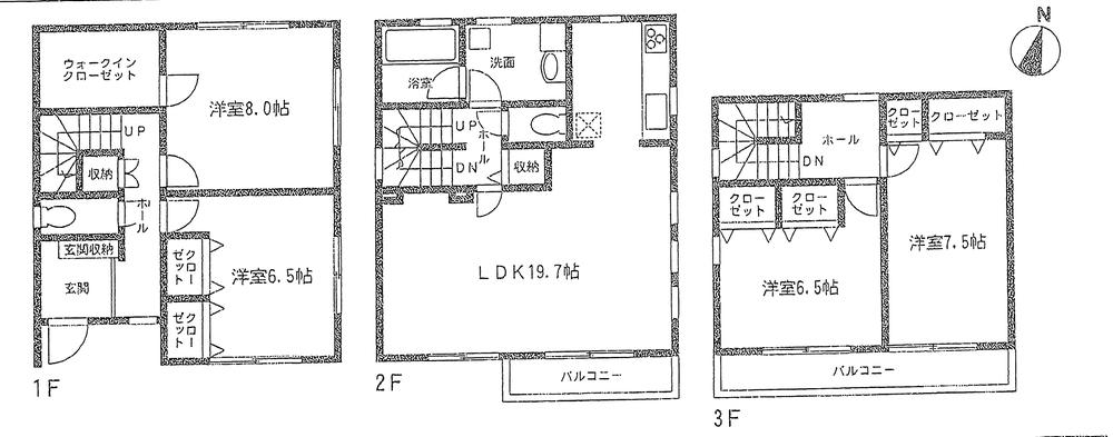
Floor plan間取り図  49,800,000 yen, 4LDK, Land area 83.24 sq m , Building area 125.03 sq m
4980万円、4LDK、土地面積83.24m2、建物面積125.03m2
Livingリビング  Indoor (12 May 2013) Shooting
室内(2013年12月)撮影
Bathroom浴室  Indoor (12 May 2013) Shooting
室内(2013年12月)撮影
Kitchenキッチン  Indoor (12 May 2013) Shooting
室内(2013年12月)撮影
Wash basin, toilet洗面台・洗面所  Indoor (12 May 2013) Shooting
室内(2013年12月)撮影
Toiletトイレ  Indoor (12 May 2013) Shooting
室内(2013年12月)撮影
Receipt収納  Indoor (12 May 2013) Shooting
室内(2013年12月)撮影
Location
|