New Homes » Kanto » Tokyo » Sumida
 
| | Sumida-ku, Tokyo 東京都墨田区 |
| JR Sobu Line "Hirai" walk 10 minutes JR総武線「平井」歩10分 |
| [Major sense of security! ] [Century 21 Professional net City] Copula. New Property ・ Stocks many information to become a non-public property care. Whether Please feel free to contact us. 【大手の安心感!】【センチュリー21 プロネットシティ】 でございます。新物件・未公開物件 気になる情報を多数取り揃えております。どうかお気軽にお問合せ下さい。 |
| ◆ Housing loan ・ Assembly of funds and budget plans, etc., Available upon consultation by expert staff. ◆ Tokyo's 23 wards It is also available corresponding limit property. ◆ Your conditions applicable Listing to efficiently speedy All will guide. System kitchen, Bathroom Dryer, Corner lot, Face-to-face kitchen, Double-glazing, Three-story or more, City gas, roof balcony ◆住宅ローン・資金やご予算の組み立て計画等、専門スタッフによりご相談承ります。◆東京23区 対応する限定物件も取り揃えております。◆ご条件該当物件を効率よくスピーディに 全てご案内致します。システムキッチン、浴室乾燥機、角地、対面式キッチン、複層ガラス、3階建以上、都市ガス、ルーフバルコニー |
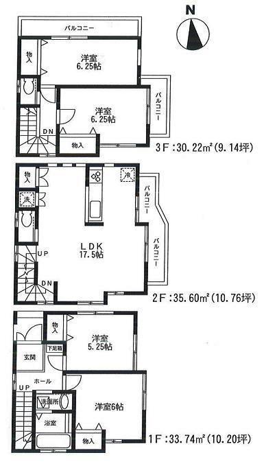
Features pickup 特徴ピックアップ | | System kitchen / Bathroom Dryer / Corner lot / Face-to-face kitchen / Double-glazing / Three-story or more / City gas / roof balcony システムキッチン /浴室乾燥機 /角地 /対面式キッチン /複層ガラス /3階建以上 /都市ガス /ルーフバルコニー | Event information イベント情報 | | Local guide Board (Please be sure to ask in advance) schedule / Now open ◆ Please tell us you're looking for your condition ◆ On the review of the property to be appropriate for your condition you are looking for I heard, We will send you all. ◆ Mortgage and financial planning, Such as a tax on real estate ◆ Reasonable suggestions to suit your, And we will carry out appropriate advice. ◆ Local of your tour ・ Your description ◆ Property corresponding to the property and your conditions to be worried about, Also the comparison can you property in the vicinity of efficiently speedy All will guide. Unfinished newly built properties, If you are looking for in the land it will be an appropriate description in the example of construction. Looking for house ・ Regard to a variety of questions, We have held a "consultation fair of you live.". Such as consultation Nikanshimasu you live, Whether please feel free to contact. Saturdays, Sundays, and holidays, Regardless of the weekday The good is convenient for you date and time in advance please feel free to contact! We look forward to the professional staff. "Major sense of security" Century 21 Professional net City toll-free Until 0120-577-827, Whether Please feel free to contact us. 現地案内会(事前に必ずお問い合わせください)日程/公開中◆お探しのご条件をお教え下さい◆伺いましたお探しのご条件に該当する物件を精査の上、全てお送り致します。◆住宅ローンや資金計画、不動産に係る税金など◆お客様に合った無理のないご提案、そして適切なアドバイスをさせて頂きます。◆現地のご見学・ご説明◆気になる物件やご条件に該当する物件、また付近の比較できます物件を効率よくスピーディに 全てご案内致します。 未完成新築物件、土地でお探しの場合は施工例にて適切な説明をさせて頂きます。お住まい探し・種々の疑問に関しまして、「お住まいの相談フェアー」を開催しております。お住まいに関しますご相談など、どうかお気軽にご連絡下さい。土日祝日、平日を問わず ご都合の良い日時を事前にお気軽にご連絡下さい!専門のスタッフがお待ちしております。「大手の安心感」センチュリー21 プロネットシティフリーダイヤル 0120-577-827まで、どうかお気軽にお問合せ下さい。 | Price 価格 | | 38,800,000 yen 3880万円 | Floor plan 間取り | | 4LDK 4LDK | Units sold 販売戸数 | | 1 units 1戸 | Land area 土地面積 | | 60.17 sq m (measured) 60.17m2(実測) | Building area 建物面積 | | 99.56 sq m (measured) 99.56m2(実測) | Driveway burden-road 私道負担・道路 | | Nothing, East 4m width, North 4m width 無、東4m幅、北4m幅 | Completion date 完成時期(築年月) | | December 2013 2013年12月 | Address 住所 | | Sumida-ku, Tokyo Tachibana 6 東京都墨田区立花6 | Traffic 交通 | | JR Sobu Line "Hirai" walk 10 minutes JR総武線「平井」歩10分 | Related links 関連リンク | | [Related Sites of this company] 【この会社の関連サイト】 | Person in charge 担当者より | | The person in charge Yamaguchi Ata Kisugu Age: 30 Daigyokai Experience: 7 years, "but you want to rent escape, Impossible to make quite time busy with work ... "" I want to see various, Colet! If you have your worries, such as meet and not ... "to the property that, Please contact us once! We will support with the best of intentions our best! 担当者山口 阿生直年齢:30代業界経験:7年『賃貸脱出したいが、仕事が忙しくなかなか時間が取れない…』『いろいろ見たいけど、コレ!という物件に出会えていない…』などのお悩みがございましたら、是非一度ご相談下さい!誠心誠意全力でサポート致します! | Contact お問い合せ先 | | TEL: 0800-603-3582 [Toll free] mobile phone ・ Also available from PHS Caller ID is not notified Please contact the "saw SUUMO (Sumo)" If it does not lead, If the real estate company TEL:0800-603-3582【通話料無料】携帯電話・PHSからもご利用いただけます 発信者番号は通知されません 「SUUMO(スーモ)を見た」と問い合わせください つながらない方、不動産会社の方は
| Building coverage, floor area ratio 建ぺい率・容積率 | | 80% ・ 200% 80%・200% | Time residents 入居時期 | | Consultation 相談 | Land of the right form 土地の権利形態 | | Ownership 所有権 | Structure and method of construction 構造・工法 | | Wooden three-story 木造3階建 | Use district 用途地域 | | Semi-industrial 準工業 | Other limitations その他制限事項 | | Regulations have by the Landscape Act, Quasi-fire zones 景観法による規制有、準防火地域 | Overview and notices その他概要・特記事項 | | Contact: Yamaguchi Asin Kisugu, Facilities: Public Water Supply, This sewage, City gas, Building confirmation number: No. 00395-1, Parking: car space 担当者:山口 阿生直、設備:公営水道、本下水、都市ガス、建築確認番号:00395-1号、駐車場:カースペース | Company profile 会社概要 | | <Mediation> Governor of Tokyo (2) No. 083471 (Corporation) All Japan Real Estate Association (Corporation) metropolitan area real estate Fair Trade Council member Century 21 (Ltd.) pro-net City 150-0002 Shibuya, Shibuya-ku, Tokyo 2-12-9 Estee Aoyama Building 7th floor <仲介>東京都知事(2)第083471号(公社)全日本不動産協会会員 (公社)首都圏不動産公正取引協議会加盟センチュリー21(株)プロネットシティ〒150-0002 東京都渋谷区渋谷2-12-9 エスティ青山ビル7階 |
Floor plan間取り図  38,800,000 yen, 4LDK, Land area 60.17 sq m , Building area 99.56 sq m
3880万円、4LDK、土地面積60.17m2、建物面積99.56m2
Compartment figure区画図  38,800,000 yen, 4LDK, Land area 60.17 sq m , Building area 99.56 sq m
3880万円、4LDK、土地面積60.17m2、建物面積99.56m2
 Local photos, including front road
前面道路含む現地写真
Location
|