2013October
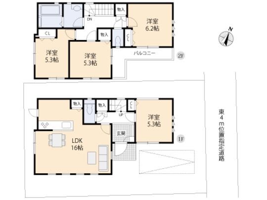
40,800,000 yen, 4LDK, 87.66 sq m
New Homes » Kanto » Tokyo » Tachikawa
 
| | Tokyo Tachikawa 東京都立川市 |
| Tama Monorail "Izumi Gymnasium" walk 11 minutes 多摩都市モノレール「泉体育館」歩11分 |
Price 価格 | | 40,800,000 yen 4080万円 | Floor plan 間取り | | 4LDK 4LDK | Units sold 販売戸数 | | 1 units 1戸 | Land area 土地面積 | | 110.9 sq m (measured) 110.9m2(実測) | Building area 建物面積 | | 87.66 sq m (measured) 87.66m2(実測) | Driveway burden-road 私道負担・道路 | | 16.09 sq m 16.09m2 | Completion date 完成時期(築年月) | | October 2013 2013年10月 | Address 住所 | | Tokyo Tachikawa Kashiwamachi 1 東京都立川市柏町1 | Traffic 交通 | | Tama Monorail "Izumi Gymnasium" walk 11 minutes Tama Monorail "Takamatsu" walk 12 minutes 多摩都市モノレール「泉体育館」歩11分 多摩都市モノレール「高松」歩12分
| Contact お問い合せ先 | | TEL: 0800-805-6263 [Toll free] mobile phone ・ Also available from PHS Caller ID is not notified Please contact the "saw SUUMO (Sumo)" If it does not lead, If the real estate company TEL:0800-805-6263【通話料無料】携帯電話・PHSからもご利用いただけます 発信者番号は通知されません 「SUUMO(スーモ)を見た」と問い合わせください つながらない方、不動産会社の方は
| Building coverage, floor area ratio 建ぺい率・容積率 | | 40% ・ 80% 40%・80% | Time residents 入居時期 | | Consultation 相談 | Land of the right form 土地の権利形態 | | Ownership 所有権 | Structure and method of construction 構造・工法 | | Wooden 2-story 木造2階建 | Use district 用途地域 | | One low-rise 1種低層 | Overview and notices その他概要・特記事項 | | Facilities: Public Water Supply, This sewage, City gas, Building confirmation number: No. 20130057, Parking: No 設備:公営水道、本下水、都市ガス、建築確認番号:20130057号、駐車場:無 | Company profile 会社概要 | | <Mediation> Minister of Land, Infrastructure and Transport (3) The 006,183 No. housing information Museum Tachikawa Seongnam Construction (Ltd.) Yubinbango190-0002 Tokyo Tachikawa Saiwaicho 4-39-19 <仲介>国土交通大臣(3)第006183号住宅情報館 立川店城南建設(株)〒190-0002 東京都立川市幸町4-39-19 |
Local photos, including front road前面道路含む現地写真  Frontal road
前面道路
Local appearance photo現地外観写真  Local Photos
現地写真
 Local Photos
現地写真
Floor plan間取り図  40,800,000 yen, 4LDK, Land area 110.9 sq m , Building area 87.66 sq m floor plan
4080万円、4LDK、土地面積110.9m2、建物面積87.66m2 間取り図
Local appearance photo現地外観写真  Local Photos
現地写真
 Local Photos
現地写真
Location
|