|
|
Taito-ku, Tokyo
東京都台東区
|
|
Isesaki Tobu "Asakusa" walk 11 minutes
東武伊勢崎線「浅草」歩11分
|
|
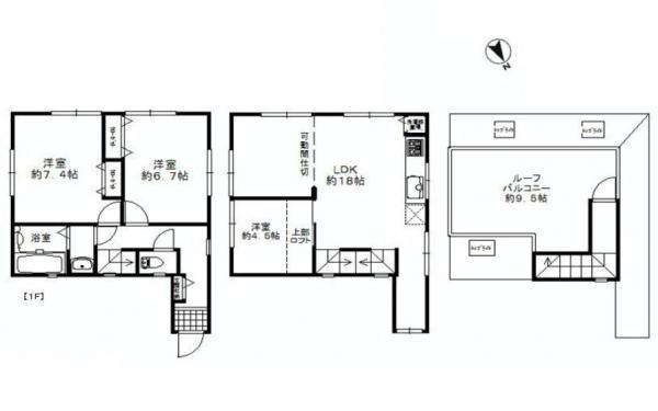
roof balcony Top light loft To Sensoji Temple 8 minutes
ルーフバルコニー トップライト ロフト 浅草寺まで8分
|
Features pickup 特徴ピックアップ | | 2 along the line more accessible / LDK18 tatami mats or more / System kitchen / Bathroom Dryer / Flat to the station / A quiet residential area / Or more before road 6m / Starting station / 2-story / loft / The window in the bathroom / TV monitor interphone / All living room flooring / Dish washing dryer / City gas / roof balcony / Flat terrain / Movable partition 2沿線以上利用可 /LDK18畳以上 /システムキッチン /浴室乾燥機 /駅まで平坦 /閑静な住宅地 /前道6m以上 /始発駅 /2階建 /ロフト /浴室に窓 /TVモニタ付インターホン /全居室フローリング /食器洗乾燥機 /都市ガス /ルーフバルコニー /平坦地 /可動間仕切り |
Price 価格 | | 43,800,000 yen 4380万円 |
Floor plan 間取り | | 3LDK 3LDK |
Units sold 販売戸数 | | 1 units 1戸 |
Total units 総戸数 | | 1 units 1戸 |
Land area 土地面積 | | 65.65 sq m (measured) 65.65m2(実測) |
Building area 建物面積 | | 85.55 sq m (measured) 85.55m2(実測) |
Driveway burden-road 私道負担・道路 | | Nothing, North 8m width 無、北8m幅 |
Completion date 完成時期(築年月) | | September 2013 2013年9月 |
Address 住所 | | Taito-ku, Tokyo Asakusa 5 東京都台東区浅草5 |
Traffic 交通 | | Isesaki Tobu "Asakusa" walk 11 minutes Toei Asakusa Line "Asakusa" walk 11 minutes Tsukuba Express "Asakusa" walk 11 minutes 東武伊勢崎線「浅草」歩11分 都営浅草線「浅草」歩11分 つくばエクスプレス「浅草」歩11分
|
Related links 関連リンク | | [Related Sites of this company] 【この会社の関連サイト】 |
Person in charge 担当者より | | Person in charge of real-estate and building FP Hexi Keiji Age: 30 Daigyokai experience: I will do my best to enjoy the looking Listing to a 12-year customer. 担当者宅建FP河西 慶治年齢:30代業界経験:12年お客様に物件探しを楽しんでいただけるように頑張ります。 |
Contact お問い合せ先 | | TEL: 0800-603-0565 [Toll free] mobile phone ・ Also available from PHS Caller ID is not notified Please contact the "saw SUUMO (Sumo)" If it does not lead, If the real estate company TEL:0800-603-0565【通話料無料】携帯電話・PHSからもご利用いただけます 発信者番号は通知されません 「SUUMO(スーモ)を見た」と問い合わせください つながらない方、不動産会社の方は
|
Building coverage, floor area ratio 建ぺい率・容積率 | | 80% ・ 400% 80%・400% |
Time residents 入居時期 | | Consultation 相談 |
Land of the right form 土地の権利形態 | | Ownership 所有権 |
Structure and method of construction 構造・工法 | | Wooden 2-story 木造2階建 |
Use district 用途地域 | | Commerce 商業 |
Overview and notices その他概要・特記事項 | | Contact: Hexi Keiji, Facilities: Public Water Supply, This sewage, City gas, Building confirmation number: 02079, Parking: Garage 担当者:河西 慶治、設備:公営水道、本下水、都市ガス、建築確認番号:02079、駐車場:車庫 |
Company profile 会社概要 | | <Mediation> Minister of Land, Infrastructure and Transport (3) No. 006,185 (one company) National Housing Industry Association (Corporation) metropolitan area real estate Fair Trade Council member Asahi housing (stock) Ueno shop Yubinbango110-0005, Taito-ku, Tokyo Ueno 2-13-10 Asahi Seimei Building 6th floor <仲介>国土交通大臣(3)第006185号(一社)全国住宅産業協会会員 (公社)首都圏不動産公正取引協議会加盟朝日住宅(株)上野店〒110-0005 東京都台東区上野2-13-10 朝日生命ビル6階 |