New Homes » Kanto » Tokyo » Taito
 
| | Taito-ku, Tokyo 東京都台東区 |
| Tokyo Metro Hibiya Line "Minowa" walk 6 minutes 東京メトロ日比谷線「三ノ輪」歩6分 |
| Mist sauna standard equipment, Southeast 6m public road! ミストサウナ標準装備、東南6m公道! |
| Currently under construction, You can even local guidance when. Please feel free to contact us. 現在建築中、現地ご案内いつでも出来ます。お気軽にお問い合わせ下さい。 |
Features pickup 特徴ピックアップ | | System kitchen / All room storage / Siemens south road / LDK15 tatami mats or more / Or more before road 6m / Mist sauna / Face-to-face kitchen / Toilet 2 places / Bathroom 1 tsubo or more / Built garage / Dish washing dryer / Water filter / Three-story or more / City gas / Floor heating システムキッチン /全居室収納 /南側道路面す /LDK15畳以上 /前道6m以上 /ミストサウナ /対面式キッチン /トイレ2ヶ所 /浴室1坪以上 /ビルトガレージ /食器洗乾燥機 /浄水器 /3階建以上 /都市ガス /床暖房 | Price 価格 | | 56,900,000 yen 5690万円 | Floor plan 間取り | | 4LDK 4LDK | Units sold 販売戸数 | | 1 units 1戸 | Total units 総戸数 | | 3 units 3戸 | Land area 土地面積 | | 69.36 sq m (measured) 69.36m2(実測) | Building area 建物面積 | | 115.09 sq m (measured) 115.09m2(実測) | Driveway burden-road 私道負担・道路 | | Nothing, Southeast 6m width 無、南東6m幅 | Completion date 完成時期(築年月) | | March 2014 2014年3月 | Address 住所 | | Taito-ku, Tokyo Negishi 5 東京都台東区根岸5 | Traffic 交通 | | Tokyo Metro Hibiya Line "Minowa" walk 6 minutes 東京メトロ日比谷線「三ノ輪」歩6分
| Person in charge 担当者より | | Rep Marui Daisuke Age: 30 Daigyokai experience: I will do my best in all sincerity for the 10-year customer of a dream realized. 担当者丸井 大介年齢:30代業界経験:10年お客様の夢実現の為に誠心誠意頑張ります。 | Contact お問い合せ先 | | TEL: 0800-603-0565 [Toll free] mobile phone ・ Also available from PHS Caller ID is not notified Please contact the "saw SUUMO (Sumo)" If it does not lead, If the real estate company TEL:0800-603-0565【通話料無料】携帯電話・PHSからもご利用いただけます 発信者番号は通知されません 「SUUMO(スーモ)を見た」と問い合わせください つながらない方、不動産会社の方は
| Building coverage, floor area ratio 建ぺい率・容積率 | | 60% ・ 300% 60%・300% | Time residents 入居時期 | | Consultation 相談 | Land of the right form 土地の権利形態 | | Ownership 所有権 | Structure and method of construction 構造・工法 | | Wooden three-story 木造3階建 | Use district 用途地域 | | One dwelling 1種住居 | Overview and notices その他概要・特記事項 | | Contact: Marui Daisuke, Facilities: Public Water Supply, This sewage, City gas, Building confirmation number: 01007, Parking: Garage 担当者:丸井 大介、設備:公営水道、本下水、都市ガス、建築確認番号:01007、駐車場:車庫 | Company profile 会社概要 | | <Mediation> Minister of Land, Infrastructure and Transport (3) No. 006,185 (one company) National Housing Industry Association (Corporation) metropolitan area real estate Fair Trade Council member Asahi housing (stock) Ueno shop Yubinbango110-0005, Taito-ku, Tokyo Ueno 2-13-10 Asahi Seimei Building 6th floor <仲介>国土交通大臣(3)第006185号(一社)全国住宅産業協会会員 (公社)首都圏不動産公正取引協議会加盟朝日住宅(株)上野店〒110-0005 東京都台東区上野2-13-10 朝日生命ビル6階 |
 Rendering (appearance)
完成予想図(外観)
 Rendering (introspection)
完成予想図(内観)
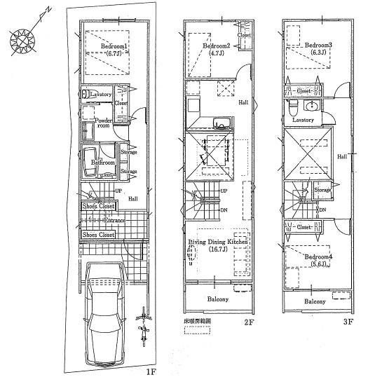
Floor plan間取り図  56,900,000 yen, 4LDK, Land area 69.36 sq m , Building area 115.09 sq m
5690万円、4LDK、土地面積69.36m2、建物面積115.09m2
 Local appearance photo
現地外観写真
 Local photos, including front road
前面道路含む現地写真
Primary school小学校  Gold stripped to elementary school 160m
金曽木小学校まで160m
 Local appearance photo
現地外観写真
 Local photos, including front road
前面道路含む現地写真
Junior high school中学校  Kashiwaba 320m until junior high school
柏葉中学校まで320m
Location
|