New Homes » Kanto » Tokyo » Tama City
 
| | Tama, Tokyo 東京都多摩市 |
| Keio Line "Seiseki Sakuragaoka" walk 20 minutes 京王線「聖蹟桜ヶ丘」歩20分 |
| ◎ LDK18 Pledge or more with floor heating ◎ loft ・ Cafe style kitchen ◎ All rooms southwestward ◎ ground 10 years guarantee ◎LDK18帖以上床暖房付き ◎ロフト・カフェスタイルキッチン ◎全室南西向き ◎地盤10年保障 |
| Corresponding to the flat-35S, LDK18 tatami mats or more, Fiscal year Available, System kitchen, Bathroom Dryer, Yang per good, All room storage, A quiet residential areaese-style room, Shaping land, Washbasin with shower, Face-to-face kitchen, Wide balcony, Barrier-free, Toilet 2 places, Bathroom 1 tsubo or more, 2-story, Double-glazing, Otobasu, Warm water washing toilet seat, loft, Underfloor Storage, The window in the bathroom, TV monitor interphone, Leafy residential area, Ventilation good, Water filter, Living stairs, City gas, Maintained sidewalk, All rooms southwestward, Flat terrain, Floor heating フラット35Sに対応、LDK18畳以上、年度内入居可、システムキッチン、浴室乾燥機、陽当り良好、全居室収納、閑静な住宅地、和室、整形地、シャワー付洗面台、対面式キッチン、ワイドバルコニー、バリアフリー、トイレ2ヶ所、浴室1坪以上、2階建、複層ガラス、オートバス、温水洗浄便座、ロフト、床下収納、浴室に窓、TVモニタ付インターホン、緑豊かな住宅地、通風良好、浄水器、リビング階段、都市ガス、整備された歩道、全室南西向き、平坦地、床暖房 |
Features pickup 特徴ピックアップ | | Corresponding to the flat-35S / LDK18 tatami mats or more / Fiscal year Available / System kitchen / Bathroom Dryer / Yang per good / All room storage / A quiet residential area / Japanese-style room / Shaping land / Washbasin with shower / Face-to-face kitchen / Wide balcony / Barrier-free / Toilet 2 places / Bathroom 1 tsubo or more / 2-story / Double-glazing / Otobasu / Warm water washing toilet seat / loft / Underfloor Storage / The window in the bathroom / TV monitor interphone / Leafy residential area / Ventilation good / Water filter / Living stairs / City gas / Maintained sidewalk / All rooms southwestward / Flat terrain / Floor heating フラット35Sに対応 /LDK18畳以上 /年度内入居可 /システムキッチン /浴室乾燥機 /陽当り良好 /全居室収納 /閑静な住宅地 /和室 /整形地 /シャワー付洗面台 /対面式キッチン /ワイドバルコニー /バリアフリー /トイレ2ヶ所 /浴室1坪以上 /2階建 /複層ガラス /オートバス /温水洗浄便座 /ロフト /床下収納 /浴室に窓 /TVモニタ付インターホン /緑豊かな住宅地 /通風良好 /浄水器 /リビング階段 /都市ガス /整備された歩道 /全室南西向き /平坦地 /床暖房 | Price 価格 | | 34,800,000 yen 3480万円 | Floor plan 間取り | | 4LDK 4LDK | Units sold 販売戸数 | | 1 units 1戸 | Total units 総戸数 | | 1 units 1戸 | Land area 土地面積 | | 105.26 sq m (31.84 tsubo) (measured) 105.26m2(31.84坪)(実測) | Building area 建物面積 | | 92.74 sq m (28.05 tsubo) (measured) 92.74m2(28.05坪)(実測) | Driveway burden-road 私道負担・道路 | | Road width: 4.2m, Asphaltic pavement, Driveway equity Yes: 72.67 sq m × 1 / 4 道路幅:4.2m、アスファルト舗装、私道持分有:72.67m2×1/4 | Completion date 完成時期(築年月) | | 2013 late December 2013年12月下旬 | Address 住所 | | Tokyo Tama Renkoji 3 東京都多摩市連光寺3 | Traffic 交通 | | Keio Line "Seiseki Sakuragaoka" walk 20 minutes Odakyū Tama Line "Odakyu Nagayama" bus 22 minutes versus Kamomesho before walk 3 minutes Keio Sagamihara Line "Keio Nagayama" bus 22 minutes versus Kamomesho before walk 3 minutes 京王線「聖蹟桜ヶ丘」歩20分 小田急多摩線「小田急永山」バス22分対鴎荘前歩3分 京王相模原線「京王永山」バス22分対鴎荘前歩3分
| Related links 関連リンク | | [Related Sites of this company] 【この会社の関連サイト】 | Person in charge 担当者より | | Person in charge of the South FutoshiTatsuki Age: 20 Daigyokai Experience: 1 year your question ・ I will my best answer to anxiety. Let me help you to happiness. 担当者南 太樹年齢:20代業界経験:1年お客様の質問・不安に精一杯お答え致します。幸せへのお手伝いをさせて下さい。 | Contact お問い合せ先 | | TEL: 0800-603-0794 [Toll free] mobile phone ・ Also available from PHS Caller ID is not notified Please contact the "saw SUUMO (Sumo)" If it does not lead, If the real estate company TEL:0800-603-0794【通話料無料】携帯電話・PHSからもご利用いただけます 発信者番号は通知されません 「SUUMO(スーモ)を見た」と問い合わせください つながらない方、不動産会社の方は
| Sale schedule 販売スケジュール | | Will be sold on a first come, first served basis. Please feel free to contact us for more information. 先着順での販売となります。詳細はお気軽にお問合せ下さい。 | Building coverage, floor area ratio 建ぺい率・容積率 | | Kenpei rate: 40% ・ 60%, Volume ratio: 80% ・ 200% 建ペい率:40%・60%、容積率:80%・200% | Time residents 入居時期 | | January 2014 early schedule 2014年1月上旬予定 | Land of the right form 土地の権利形態 | | Ownership 所有権 | Structure and method of construction 構造・工法 | | Wooden 2-story 木造2階建 | Use district 用途地域 | | One low-rise, Two mid-high 1種低層、2種中高 | Land category 地目 | | Residential land 宅地 | Other limitations その他制限事項 | | Regulations have by the Law for the Protection of Cultural Properties, Height district, Quasi-fire zones, Natural Parks Law 文化財保護法による規制有、高度地区、準防火地域、自然公園法 | Overview and notices その他概要・特記事項 | | Person in charge: South FutoshiTatsuki, Building confirmation number: No. 13UDI3T Ken 00999 担当者:南 太樹、建築確認番号:第13UDI3T建00999号 | Company profile 会社概要 | | <Mediation> Minister of Land, Infrastructure and Transport (7) No. 003744 No. Asahi Land and Building Co., Ltd. Hachioji business 2 Division Yubinbango192-0083 Hachioji, Tokyo Asahi-cho, 10-3 <仲介>国土交通大臣(7)第003744号朝日土地建物(株)八王子店営業2課〒192-0083 東京都八王子市旭町10-3 |
Local appearance photo現地外観写真  "Seisekisakuragaoka" walk 20 minutes
『聖蹟桜ヶ丘駅』歩20分
 "Seisekisakuragaoka" a 20-minute walk
『聖蹟桜ヶ丘駅』徒歩20分
Livingリビング  Spacious 18 Pledge of living
広々18帖のリビング
 Coming season Thankfully with floor heating
これからの季節にありがたい床暖房付き
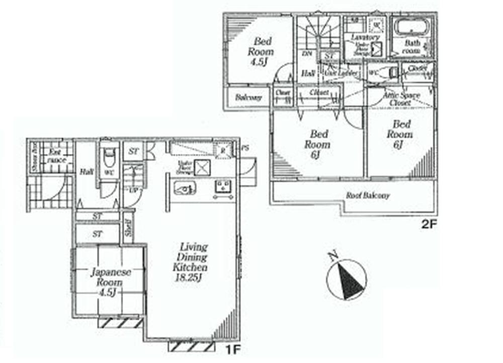
Floor plan間取り図  (1 Building), Price 34,800,000 yen, 4LDK, Land area 105.26 sq m , Building area 92.74 sq m
(1号棟)、価格3480万円、4LDK、土地面積105.26m2、建物面積92.74m2
Bathroom浴室  With dry heating function, It is your laundry also safe on a rainy day.
乾燥暖房機能付き、雨の日のお洗濯も安心ですね。
Kitchenキッチン  There is a convenient back door kitchen
便利な勝手口の有るキッチン
Non-living roomリビング以外の居室  South-facing bright rooms.
南向きの明るいお部屋。
Wash basin, toilet洗面台・洗面所  Three-sided mirror with shampoo dresser
三面鏡付きシャンプードレッサー
Local photos, including front road前面道路含む現地写真  Ground support system
地盤サポートシステム
Balconyバルコニー  Is a tree living MinamiMuko.
南向のきリビングです。
Supermarketスーパー  1500m to Keio Store
京王ストアまで1500m
 The entire compartment Figure
全体区画図
Otherその他  Children's Playground ・ Also equipped with crib. Please join us feel free to even small children.
キッズスペース・ベビーベッドも完備。小さなお子様連れでもお気軽にお越しください。
Non-living roomリビング以外の居室  Indoor (12 May 2013) Shooting
室内(2013年12月)撮影
Junior high school中学校  Hijirigaoka 1690m until junior high school
聖ケ丘中学校まで1690m
Otherその他  Immediately exiting the north exit of Hachioji Station ☆ Also equipped with tie-up parking lot ☆
八王子駅の北口を出たすぐ☆提携駐車場も完備☆
Primary school小学校  Renkoji 600m up to elementary school
連光寺小学校まで600m
Otherその他  Hachioji Bazaar venue
八王子店バザール会場
Kindergarten ・ Nursery幼稚園・保育園  650m until the green nursery
みどりの保育園まで650m
Park公園  1140m to Sakuragaoka park
桜ヶ丘公園まで1140m
Presentプレゼント ![Present. [Your sale support campaign] The customers who got the request of the sale to the customer's wish "Asahi affection rice 2kg gift" is, It will be posted to your sale Listing to Sumo. ・ The customer contracts concluded "Asahi affection rice 5Kg gift" ・ soil ・ Day ・ In Bazaar venue for coming to the holiday "season of the bouquet" gift ※ The Bazaar venue, Ya baby bed We offer a Children's Playground. Even in young children, Please your coming in peace.](/images/tokyo/tama/378d860009.jpg) [Your sale support campaign] The customers who got the request of the sale to the customer's wish "Asahi affection rice 2kg gift" is, It will be posted to your sale Listing to Sumo. ・ The customer contracts concluded "Asahi affection rice 5Kg gift" ・ soil ・ Day ・ In Bazaar venue for coming to the holiday "season of the bouquet" gift ※ The Bazaar venue, Ya baby bed We offer a Children's Playground. Even in young children, Please your coming in peace.
【ご売却応援キャンペーン】 売却のご依頼を頂いたお客様には『朝日あいじょう米2kgプレゼント』ご希望のお客様には、スーモにご売却物件を掲載いたします。・ご成約のお客様には『朝日あいじょう米5Kgプレゼント』・土・日・祝日にバザール会場ご来場で『季節の花束』プレゼント※バザール会場には、ベビーベッドや キッズスペースをご用意しております。 小さなお子様連れでも、安心してご来場ください。
Location
|