New Homes » Kanto » Tokyo » Tama City
 
| | Tama, Tokyo 東京都多摩市 |
| Keio Sagamihara Line "Keio Tama Center" walk 25 minutes 京王相模原線「京王多摩センター」歩25分 |
| Idasangyo will introduce 飯田産業がご紹介します |
Features pickup 特徴ピックアップ | | Construction housing performance with evaluation / Design house performance with evaluation / Corresponding to the flat-35S / Pre-ground survey / Vibration Control ・ Seismic isolation ・ Earthquake resistant / Seismic fit / Energy-saving water heaters / Super close / Facing south / System kitchen / Yang per good / Flat to the station / Siemens south road / LDK15 tatami mats or more / Corner lot / Japanese-style room / Shaping land / Washbasin with shower / Face-to-face kitchen / Toilet 2 places / 2-story / Double-glazing / Warm water washing toilet seat / loft / Atrium / TV monitor interphone / Leafy residential area / Urban neighborhood / Mu front building / Ventilation good / Water filter / City gas / Flat terrain / Movable partition 建設住宅性能評価付 /設計住宅性能評価付 /フラット35Sに対応 /地盤調査済 /制震・免震・耐震 /耐震適合 /省エネ給湯器 /スーパーが近い /南向き /システムキッチン /陽当り良好 /駅まで平坦 /南側道路面す /LDK15畳以上 /角地 /和室 /整形地 /シャワー付洗面台 /対面式キッチン /トイレ2ヶ所 /2階建 /複層ガラス /温水洗浄便座 /ロフト /吹抜け /TVモニタ付インターホン /緑豊かな住宅地 /都市近郊 /前面棟無 /通風良好 /浄水器 /都市ガス /平坦地 /可動間仕切り | Event information イベント情報 | | (Please be sure to ask in advance) nobody wants to in such a society where the norm to buy a house. 2013 November Iida Group Holdings birth! Idasangyo only direct sales specialty store Kichijoji office is method of direct selling high-quality and inexpensive house condominiums to customers, We have to offer. On this occasion, Make the sale of group companies of detached houses built for sale. Own design ・ Construction ・ Taking advantage of know-how and experience of Idasangyo that have stuck to the sale sale, More and more customers, From professional manufacturing with professional detached condominiums to allow suggestions of better housing, We the future of your family to suggestions can the company will continue to challenge. (事前に必ずお問い合わせください)誰もが当たり前に家を買えるそんな社会にしたい。2013年11月飯田グループホールディングス誕生!飯田産業唯一の直売専門店 吉祥寺営業所は良質で安価な自社分譲住宅をお客様に直接販売という方法で、ご提供してきました。この度、グループ各社の戸建分譲住宅の販売を行います。自社設計・施工・分譲販売にこだわってきた飯田産業のノウハウや経験を生かして、より一層お客様に、よりよい住宅のご提案ができるように戸建分譲住宅のプロがいるモノづくりのプロから、ご家族の未来をご提案できる会社へわれわれは挑戦を続けていきます。 | Price 価格 | | 36,800,000 yen ~ 39,800,000 yen 3680万円 ~ 3980万円 | Floor plan 間取り | | 4LDK 4LDK | Units sold 販売戸数 | | 5 units 5戸 | Total units 総戸数 | | 5 units 5戸 | Land area 土地面積 | | 132.64 sq m ~ 156.8 sq m (measured) 132.64m2 ~ 156.8m2(実測) | Building area 建物面積 | | 99.63 sq m ~ 104.49 sq m (measured) 99.63m2 ~ 104.49m2(実測) | Driveway burden-road 私道負担・道路 | | Road width: 6m, Asphaltic pavement, Public road 道路幅:6m、アスファルト舗装、公道 | Completion date 完成時期(築年月) | | March 2014 schedule 2014年3月予定 | Address 住所 | | Tokyo Tama Wada 2110-5 東京都多摩市和田2110-5 | Traffic 交通 | | Keio Sagamihara Line "Keio Tama Center" walk 25 minutes Tamasen Odakyu "Odakyu Tama Center" walk 25 minutes Tama Monorail "Matsugaya" walk 16 minutes 京王相模原線「京王多摩センター」歩25分 小田急多摩線「小田急多摩センター」歩25分 多摩都市モノレール「松が谷」歩16分 | Related links 関連リンク | | [Related Sites of this company] 【この会社の関連サイト】 | Person in charge 担当者より | | Person in charge of real-estate and building Kurosaki Fumie Age: 20 Daigyokai Experience: 2 years from now, Residential a smart buy era! My name is Kurosaki of Idasangyo Kichijoji office. Idasangyo is the only direct sales specialty store. Our heart full Town is home to long-lasting and strong strong earthquake. 担当者宅建黒崎 史恵年齢:20代業界経験:2年これからは、住宅をかしこく買う時代です!飯田産業吉祥寺営業所の黒崎と申します。飯田産業唯一の直売専門店です。当社のハートフルタウンは地震に強い丈夫で長持ちする住宅です。 | Contact お問い合せ先 | | TEL: 0800-808-5143 [Toll free] mobile phone ・ Also available from PHS Caller ID is not notified Please contact the "saw SUUMO (Sumo)" If it does not lead, If the real estate company TEL:0800-808-5143【通話料無料】携帯電話・PHSからもご利用いただけます 発信者番号は通知されません 「SUUMO(スーモ)を見た」と問い合わせください つながらない方、不動産会社の方は
| Sale schedule 販売スケジュール | | ~ Cradle garden series of Iida Group Holdings! ~ New release Yes commute ・ Convenient to go to school Keio ・ Odakyu line " Tama Center " Walk 25 minutes Tama city monorail line " Matsugaya "station 16-minute walk ○ around in the quiet residential area, Environment is good Since the front road is a 6m width, Garage happy ○ living 16 quires more than 4LDK Mu Japanese-style room with ○ bonus repayment to the popular face-to-face kitchen adopt further first floor Even 100% loan It is available for purchase at 110,000 yen. Try as compared to now rent + parking Badai document request ・ Because of local your tour do not hesitate busy season, Thank you accepted by phone. Kichijoji office 0120-15-8848 until ~ 飯田グループホールディングスのクレイドルガーデンシリーズ! ~ 新発売〇通勤・通学に便利な京王・小田急線 『 多摩センター 』 徒歩25分 多摩都市モノレール線 『 松が谷 』駅 徒歩16分○周辺は閑静な住宅街で、環境良好です 前面道路は6m幅なので、車庫入れもラクラク○リビング16帖超の4LDK 人気の対面キッチン採用さらに1階に和室付き○ボーナス返済無 100%ローンでも 11万円台で購入可能です。 今の家賃+駐車場代と比べてみて下さい資料請求・現地ご見学はお気軽に繁忙期のため、お電話にて受付をお願いします。吉祥寺営業所 0120‐15‐8848迄 | Building coverage, floor area ratio 建ぺい率・容積率 | | Kenpei rate: 50%, Volume ratio: 150% 建ペい率:50%、容積率:150% | Time residents 入居時期 | | March 2014 schedule 2014年3月予定 | Land of the right form 土地の権利形態 | | Ownership 所有権 | Construction 施工 | | (Iida GHD) Ernest One (飯田GHD)アーネストワン | Use district 用途地域 | | One middle and high 1種中高 | Land category 地目 | | Residential land 宅地 | Other limitations その他制限事項 | | Height district 高度地区 | Overview and notices その他概要・特記事項 | | Contact: Kurosaki Fumie, Building confirmation number: No. 13UDI1W Ken 02,889 other 担当者:黒崎 史恵、建築確認番号:第13UDI1W建02889号他 | Company profile 会社概要 | | <Marketing alliance (mediated)> Minister of Land, Infrastructure and Transport (8) No. 003306 (Ltd.) Idasangyo Kichijoji office Information Center Yubinbango180-0004 Musashino-shi, Tokyo Kichijojihon cho 1-13-9 Daiei Building 1F <販売提携(媒介)>国土交通大臣(8)第003306号(株)飯田産業吉祥寺営業所インフォメーションセンター〒180-0004 東京都武蔵野市吉祥寺本町1-13-9大栄ビル1F |
Local photos, including front road前面道路含む現地写真  Vantage this land of Tama Hills are local (December 2013) that has me the sun is watching the growth of children shooting
多摩丘陵の見晴らしのよいこの地は子どもたちの成長を太陽が見守ってくれています現地(2013年12月)撮影
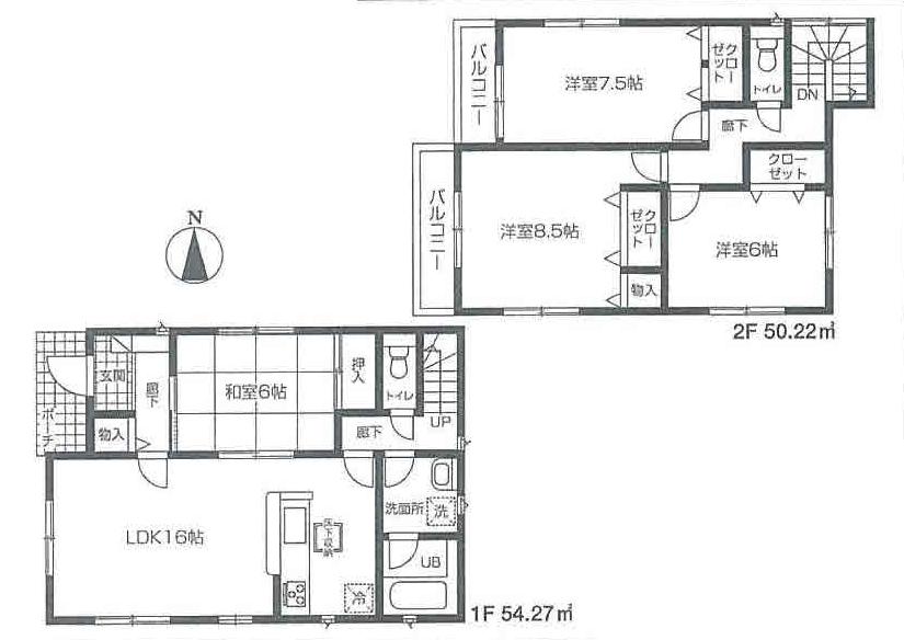
Floor plan間取り図  (5 Building), Price 36,800,000 yen, 4LDK, Land area 138.88 sq m , Building area 99.63 sq m
(5号棟)、価格3680万円、4LDK、土地面積138.88m2、建物面積99.63m2
 (4 Building), Price 37,800,000 yen, 4LDK, Land area 138.63 sq m , Building area 104.49 sq m
(4号棟)、価格3780万円、4LDK、土地面積138.63m2、建物面積104.49m2
Model house photoモデルハウス写真  Model house
モデルハウス
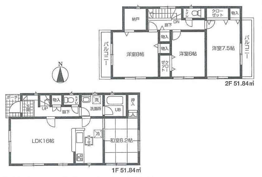
Floor plan間取り図  (Building 2), Price 37,800,000 yen, 4LDK, Land area 132.64 sq m , Building area 103.68 sq m
(2号棟)、価格3780万円、4LDK、土地面積132.64m2、建物面積103.68m2
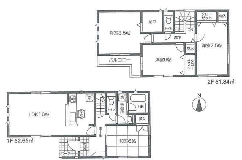
 (1 Building), Price 39,800,000 yen, 4LDK, Land area 156.8 sq m , Building area 104.49 sq m
(1号棟)、価格3980万円、4LDK、土地面積156.8m2、建物面積104.49m2
 The entire compartment Figure
全体区画図
Local photos, including front road前面道路含む現地写真  Local (12 May 2013) Shooting
現地(2013年12月)撮影
 Local (12 May 2013) Shooting
現地(2013年12月)撮影
 Local (12 May 2013) Shooting
現地(2013年12月)撮影
Model house photoモデルハウス写真  Model house
モデルハウス
 Rendering (appearance)
完成予想図(外観)
 Please feel free to contact us that there is very close to the model house of available
すぐ近くにモデルハウスのご用意がありますお気軽にお問合せ下さい
 Model house photo
モデルハウス写真
 Model house photo
モデルハウス写真
 Model house
モデルハウス
 Model house photo
モデルハウス写真
Supermarketスーパー  905m until Keiosutoa Atago shop
京王ストアあたご店まで905m
Primary school小学校  765m until Tama Municipal Higashiatago Elementary School
多摩市立東愛宕小学校まで765m
Kindergarten ・ Nursery幼稚園・保育園  Midorigaoka 302m to kindergarten
緑ケ丘幼稚園まで302m
Junior high school中学校  853m until Tama Municipal Higashiatago junior high school
多摩市立東愛宕中学校まで853m
Otherその他  The it is now housing, Smart is the age to buy! Idasangyo is a member of the Kichijoji office. Heart full Town of the Group (the seller) is the house that long-lasting and strong strong earthquake.
これからは住宅を、かしこく買う時代です!飯田産業吉祥寺営業所のメンバーです。当社グループ(売主)のハートフルタウンは地震に強い丈夫で長持ちする住宅です。
 Thanks to Tokyo number one !!
おかげさまで東京都ナンバーワン!!
 Flat 35S (interest rate Plan A) is available!
フラット35S(金利Aプラン)利用可能です!
Construction ・ Construction method ・ specification構造・工法・仕様  Earthquake resistance is on the outer wall ・ Fire-safety, Durable, Excellent further health-conscious, Use the Dairaito of Daiken Corporation
外壁には耐震性・防火性、耐久性に優れ、さらに健康に配慮した優れた、大建工業のダイライトを使用
Otherその他  Everyone is granted to buy a house
誰もが当たり前に家を買える
Location
|