New Homes » Kanto » Tokyo » Toshima ward
 
| | Toshima-ku, Tokyo 東京都豊島区 |
| Tokyo Metro Yurakucho Line "Senkawa" walk 11 minutes 東京メトロ有楽町線「千川」歩11分 |
| «Clean public road 6M Design new construction condominiums » ■ TES floor heating, Specification of enhancement, such as dishwasher ・ Facility ≪ すっきり公道6M デザイン新築分譲住宅 ≫■TES床暖房、食洗機など充実の仕様・設備 |
| ■ Takamatsu Elementary School 3-minute walk, Senkawa junior high school 11 minutes' walk, Super 5-minute walk ■ Quiet living environment! , Commute ・ Convenient good access to go to school! ■ Since your local are also available, such as showrooms, You can see in conjunction with the local. ■ To feel free to tick am! Please contact us. If you are looking for a real estate in Toshima, Please leave it to the am tick rich amount of information in the community. Introducing the property with the image in the center of the real estate in Toshima. Residential home (new construction ・ second hand), You can easily search from the rich amount of information in the land each Advanced search. ※ In land area, Including alley-like portion (more than 30%) ■高松小学校徒歩3分、千川中学校徒歩11分、スーパー徒歩5分■閑静な住環境!、通勤・通学に便利な好アクセス!■お近くにショールームなどもございますので、現地と合わせてご覧いただけます。■お気軽にアムティックまで!お問合せ下さい。豊島区で不動産をお探しなら、地域密着で豊富な情報量のアムティックにお任せください。豊島区の不動産を中心に画像付きで物件をご紹介。一戸建て(新築・中古)、土地それぞれ詳細条件検索で豊富な情報量から楽々検索が可能です。※土地面積に、路地状部分含む(30%以上) |
Features pickup 特徴ピックアップ | | Pre-ground survey / 2 along the line more accessible / LDK20 tatami mats or more / Super close / It is close to the city / Bathroom Dryer / A quiet residential area / Around traffic fewer / Security enhancement / Bathroom 1 tsubo or more / 2 or more sides balcony / South balcony / The window in the bathroom / Leafy residential area / Dish washing dryer / Water filter / Three-story or more / City gas / Floor heating 地盤調査済 /2沿線以上利用可 /LDK20畳以上 /スーパーが近い /市街地が近い /浴室乾燥機 /閑静な住宅地 /周辺交通量少なめ /セキュリティ充実 /浴室1坪以上 /2面以上バルコニー /南面バルコニー /浴室に窓 /緑豊かな住宅地 /食器洗乾燥機 /浄水器 /3階建以上 /都市ガス /床暖房 | Price 価格 | | 53,800,000 yen 5380万円 | Floor plan 間取り | | 3LDK 3LDK | Units sold 販売戸数 | | 1 units 1戸 | Total units 総戸数 | | 2 units 2戸 | Land area 土地面積 | | 83.07 sq m (25.12 tsubo) (measured) 83.07m2(25.12坪)(実測) | Building area 建物面積 | | 92.51 sq m (27.98 tsubo) (Registration) 92.51m2(27.98坪)(登記) | Driveway burden-road 私道負担・道路 | | Nothing, North 6.3m width (contact the road width 2.5m), South 3.4m width (contact the road width 3m) 無、北6.3m幅(接道幅2.5m)、南3.4m幅(接道幅3m) | Completion date 完成時期(築年月) | | December 2013 2013年12月 | Address 住所 | | Toshima-ku, Tokyo Takamatsu 3 東京都豊島区高松3 | Traffic 交通 | | Tokyo Metro Yurakucho Line "Senkawa" walk 11 minutes Tokyo Metro Yurakucho Line "Kanamecho" walk 17 minutes Tobu Tojo Line "Oyama" walk 15 minutes 東京メトロ有楽町線「千川」歩11分 東京メトロ有楽町線「要町」歩17分 東武東上線「大山」歩15分
| Person in charge 担当者より | | Rep Takeshi Sato 担当者佐藤剛史 | Contact お問い合せ先 | | TEL: 0800-603-3448 [Toll free] mobile phone ・ Also available from PHS Caller ID is not notified Please contact the "saw SUUMO (Sumo)" If it does not lead, If the real estate company TEL:0800-603-3448【通話料無料】携帯電話・PHSからもご利用いただけます 発信者番号は通知されません 「SUUMO(スーモ)を見た」と問い合わせください つながらない方、不動産会社の方は
| Building coverage, floor area ratio 建ぺい率・容積率 | | 60% ・ 200% 60%・200% | Time residents 入居時期 | | Consultation 相談 | Land of the right form 土地の権利形態 | | Ownership 所有権 | Structure and method of construction 構造・工法 | | Wooden three-story 木造3階建 | Use district 用途地域 | | One middle and high 1種中高 | Overview and notices その他概要・特記事項 | | The person in charge: Takeshi Sato, Facilities: Public Water Supply, This sewage, City gas, Building confirmation number: BVJ-Z13-10-0408, Parking: car space 担当者:佐藤剛史、設備:公営水道、本下水、都市ガス、建築確認番号:BVJ-Z13-10-0408、駐車場:カースペース | Company profile 会社概要 | | <Mediation> Governor of Tokyo (2) No. 082920 (Corporation) Tokyo Metropolitan Government Building Lots and Buildings Transaction Business Association (Corporation) metropolitan area real estate Fair Trade Council member am tick (Ltd.) Kichijoji headquarters sales department Yubinbango180-0002 Musashino-shi, Tokyo Kichijojihigashi cho 1-19-21 <仲介>東京都知事(2)第082920号(公社)東京都宅地建物取引業協会会員 (公社)首都圏不動産公正取引協議会加盟アムティック(株)吉祥寺本社営業部〒180-0002 東京都武蔵野市吉祥寺東町1-19-21 |
Same specifications photos (appearance)同仕様写真(外観)  Enforcement example photo
施行例写真
Same specifications photos (living)同仕様写真(リビング)  Enforcement example photo
施行例写真
Same specifications photo (bathroom)同仕様写真(浴室)  Enforcement example photo
施行例写真
Floor plan間取り図  53,800,000 yen, 3LDK, Land area 83.07 sq m , Building area 92.51 sq m A Building
5380万円、3LDK、土地面積83.07m2、建物面積92.51m2 A号棟
Same specifications photos (appearance)同仕様写真(外観)  Enforcement example photo
施行例写真
Same specifications photo (kitchen)同仕様写真(キッチン)  Enforcement example photo
施行例写真
 Compartment figure
区画図
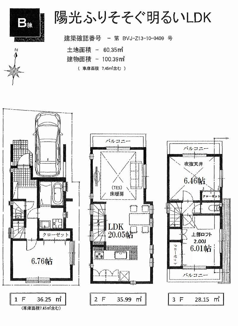
Floor plan間取り図  B Building
B号棟
Location
|