New Homes » Kanto » Tokyo » Toshima ward
 
| | Toshima-ku, Tokyo 東京都豊島区 |
| Seibu Ikebukuro Line "Shiinamachi" walk 9 minutes 西武池袋線「椎名町」歩9分 |
| ・ It is the announcement of the newly built detached from the comics in the famous "Shiinamachi". ・ The building of more than 90 square meters, LDK 18 Pledge, It is a spacious building. ・マンガで有名な「椎名町」から新築戸建の発表です。・90平米を超える建物、LDKは18帖、ゆったりとした建物です。 |
| ■ ■ Not just car space, Bicycle three bicycle parking space also because it is reserved, Bicycle life of one to one family also possible. Second floor of the LDK is with a door to the stairs part, Air conditioning ・ I There is also a heating effect. The main bedroom is 7.6 Pledge, It further becomes a with a walk-in closet. If you have any other any questions, Please feel free to contact us. ■ ■ ■■カースペースだけでなく、自転車3台の駐輪スペースも確保されていますので、ご家族1人に1台の自転車ライフも可能。2階のLDKは階段部分にドアがついており、冷房・暖房効果もありますね。主寝室は7.6帖、さらにウォークインクローゼット付きとなっています。その他何かご不明な点などございましたら、ご気軽にお問い合わせくださいませ。■■ |
Features pickup 特徴ピックアップ | | 2 along the line more accessible / LDK18 tatami mats or more / System kitchen / All room storage / A quiet residential area / Shaping land / Face-to-face kitchen / Ventilation good / All living room flooring / Dish washing dryer / Walk-in closet / Three-story or more / City gas / Floor heating 2沿線以上利用可 /LDK18畳以上 /システムキッチン /全居室収納 /閑静な住宅地 /整形地 /対面式キッチン /通風良好 /全居室フローリング /食器洗乾燥機 /ウォークインクロゼット /3階建以上 /都市ガス /床暖房 | Event information イベント情報 | | Local guide Board (Please be sure to ask in advance) schedule / During the public time / 10:00 ~ 18:00 I will guide the local If you are interested. Please feel free to contact us at 0120-917-197. 現地案内会(事前に必ずお問い合わせください)日程/公開中時間/10:00 ~ 18:00ご興味がありましたら現地をご案内いたします。お気軽に0120-917-197までお問い合わせください。 | Price 価格 | | 39,800,000 yen 3980万円 | Floor plan 間取り | | 3LDK 3LDK | Units sold 販売戸数 | | 1 units 1戸 | Total units 総戸数 | | 2 units 2戸 | Land area 土地面積 | | 57.93 sq m (17.52 square meters) 57.93m2(17.52坪) | Building area 建物面積 | | 101.53 sq m (30.71 square meters), Among the first floor garage 8.86 sq m 101.53m2(30.71坪)、うち1階車庫8.86m2 | Driveway burden-road 私道負担・道路 | | Nothing, North 4m width 無、北4m幅 | Completion date 完成時期(築年月) | | December 2013 2013年12月 | Address 住所 | | Toshima-ku, Tokyo Minaminagasaki 3 東京都豊島区南長崎3 | Traffic 交通 | | Seibu Ikebukuro Line "Shiinamachi" walk 9 minutes Toei Oedo Line "Ochiaiminami Nagasaki" walk 9 minutes 西武池袋線「椎名町」歩9分 都営大江戸線「落合南長崎」歩9分
| Related links 関連リンク | | [Related Sites of this company] 【この会社の関連サイト】 | Person in charge 担当者より | | Rep FP Fujisaki Kenta Age: 20 Daigyokai Experience: 1 year to enter this industry, It has passed one year in the early ones. It was variously learn about real estate. Be able to properly advise customers, We will also continue to study the future. 担当者FP藤崎 健太年齢:20代業界経験:1年この業界に入り、早いもので1年経ちました。不動産についていろいろ勉強しました。お客様にきちんとアドバイスできるよう、これからも勉強を続けていきます。 | Contact お問い合せ先 | | TEL: 0800-603-7095 [Toll free] mobile phone ・ Also available from PHS Caller ID is not notified Please contact the "saw SUUMO (Sumo)" If it does not lead, If the real estate company TEL:0800-603-7095【通話料無料】携帯電話・PHSからもご利用いただけます 発信者番号は通知されません 「SUUMO(スーモ)を見た」と問い合わせください つながらない方、不動産会社の方は
| Expenses 諸費用 | | Rent: 16,000 yen / Month 地代:1万6000円/月 | Building coverage, floor area ratio 建ぺい率・容積率 | | 60% ・ 160% 60%・160% | Time residents 入居時期 | | December 2013 2013年12月 | Land of the right form 土地の権利形態 | | Leasehold (Old), Leasehold period new 20 years 賃借権(旧)、借地期間新規20年 | Structure and method of construction 構造・工法 | | Wooden three-story 木造3階建 | Overview and notices その他概要・特記事項 | | Contact: Fujisaki Kenta, Facilities: Public Water Supply, This sewage, City gas, Building confirmation number: JCIA confirmed 13 No. 00670, Parking: car space 担当者:藤崎 健太、設備:公営水道、本下水、都市ガス、建築確認番号:JCIA 確認 13 第 00670 号、駐車場:カースペース | Company profile 会社概要 | | <Mediation> Governor of Tokyo (2) No. 086581 (Ltd.) ad cast Komagome branch Yubinbango113-0021, Bunkyo-ku, Tokyo Honkomagome 6-15-8 Erupisubiru fifth floor <仲介>東京都知事(2)第086581号(株)アドキャスト駒込支店〒113-0021 東京都文京区本駒込6-15-8 エルピスビル5階 |
Rendering (appearance)完成予想図(外観)  Building Rendering
建物完成予想図
Local photos, including front road前面道路含む現地写真  December scheduled for completion. It is possible your move before the end of the year.
12月完成予定。年内のご入居可能です。
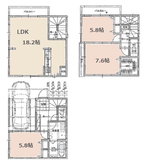
Floor plan間取り図  39,800,000 yen, 3LDK, Land area 57.93 sq m , Building area 101.53 sq m floor plan
3980万円、3LDK、土地面積57.93m2、建物面積101.53m2 間取り図
Same specifications photos (living)同仕様写真(リビング)  The company example of construction (living)
同社施工例(リビング)
Same specifications photo (bathroom)同仕様写真(浴室)  The company example of construction (bathroom)
同社施工例(浴室)
Same specifications photo (kitchen)同仕様写真(キッチン)  The company example of construction (kitchen)
同社施工例(キッチン)
Station駅  Seibu Ikebukuro Line "Shiinamachi" station up to 720m Seibu Ikebukuro Line "Shiinamachi" a 9-minute walk to the station
西武池袋線「椎名町」駅まで720m 西武池袋線「椎名町」駅まで徒歩9分
Same specifications photos (Other introspection)同仕様写真(その他内観)  The company example of construction (toilet)
同社施工例(トイレ)
Station駅  Oedo Line "Ochiaiminami Nagasaki" 720m Oedo Line to the station "Ochiaiminami Nagasaki" a 9-minute walk to the station
大江戸線「落合南長崎」駅まで720m 大江戸線「落合南長崎」駅まで徒歩9分
Same specifications photos (Other introspection)同仕様写真(その他内観)  The company construction cases (room)
同社施工例(居室)
Primary school小学校  Shiinamachi a 4-minute walk from the 270m Shiinamachi elementary school to elementary school
椎名町小学校まで270m 椎名町小学校まで徒歩4分
Location
|