|
|
Toshima-ku, Tokyo
東京都豊島区
|
|
Tokyo Metro Marunouchi Line "Shin'otsuka" walk 3 minutes
東京メトロ丸ノ内線「新大塚」歩3分
|
|
Year Available, 2 along the line more accessible, System kitchen, LDK15 tatami mats or more, Shaping land, Three-story or more, Flat terrain
年内入居可、2沿線以上利用可、システムキッチン、LDK15畳以上、整形地、3階建以上、平坦地
|
Features pickup 特徴ピックアップ | | Year Available / 2 along the line more accessible / System kitchen / LDK15 tatami mats or more / Shaping land / Three-story or more / Flat terrain 年内入居可 /2沿線以上利用可 /システムキッチン /LDK15畳以上 /整形地 /3階建以上 /平坦地 |
Price 価格 | | 51,800,000 yen 5180万円 |
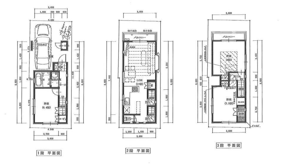
Floor plan 間取り | | 3LDK 3LDK |
Units sold 販売戸数 | | 1 units 1戸 |
Land area 土地面積 | | 53.39 sq m (measured) 53.39m2(実測) |
Building area 建物面積 | | 83.16 sq m (registration) 83.16m2(登記) |
Driveway burden-road 私道負担・道路 | | Nothing, North 3.7m width 無、北3.7m幅 |
Completion date 完成時期(築年月) | | September 2013 2013年9月 |
Address 住所 | | Toshima-ku, Tokyo Minamiotsuka 2 東京都豊島区南大塚2 |
Traffic 交通 | | Tokyo Metro Marunouchi Line "Shin'otsuka" walk 3 minutes Toden Arakawa Line "Otsukaekimae" walk 10 minutes JR Yamanote line "Otsuka" walk 8 minutes 東京メトロ丸ノ内線「新大塚」歩3分 都電荒川線「大塚駅前」歩10分 JR山手線「大塚」歩8分
|
Related links 関連リンク | | [Related Sites of this company] 【この会社の関連サイト】 |
Person in charge 担当者より | | [Regarding this property.] Please feel free to contact us. 【この物件について】お気軽にお問合せください。 |
Contact お問い合せ先 | | TEL: 0800-603-3429 [Toll free] mobile phone ・ Also available from PHS Caller ID is not notified Please contact the "saw SUUMO (Sumo)" If it does not lead, If the real estate company TEL:0800-603-3429【通話料無料】携帯電話・PHSからもご利用いただけます 発信者番号は通知されません 「SUUMO(スーモ)を見た」と問い合わせください つながらない方、不動産会社の方は
|
Building coverage, floor area ratio 建ぺい率・容積率 | | 60% ・ 300% 60%・300% |
Time residents 入居時期 | | Consultation 相談 |
Land of the right form 土地の権利形態 | | Ownership 所有権 |
Structure and method of construction 構造・工法 | | Wooden three-story 木造3階建 |
Use district 用途地域 | | One middle and high 1種中高 |
Overview and notices その他概要・特記事項 | | Facilities: Public Water Supply, This sewage, City gas, Building confirmation number: GEA1311-10387 設備:公営水道、本下水、都市ガス、建築確認番号:GEA1311-10387 |
Company profile 会社概要 | | <Mediation> Governor of Tokyo (2) No. 082902 (Corporation) All Japan Real Estate Association (Corporation) metropolitan area real estate Fair Trade Council member (Ltd.) Oedo real estate Yubinbango135-0024 Koto-ku, Tokyo fining 3-4-12 <仲介>東京都知事(2)第082902号(公社)全日本不動産協会会員 (公社)首都圏不動産公正取引協議会加盟(株)大江戸不動産〒135-0024 東京都江東区清澄3-4-12 |