New Homes » Kanto » Tokyo » Toshima ward
 
| | Toshima-ku, Tokyo 東京都豊島区 |
| Tokyo Metro Fukutoshin line "Zōshigaya" walk 3 minutes 東京メトロ副都心線「雑司が谷」歩3分 |
| Yang per good, Super close, 2 along the line more accessible, Building plan example there, It is close to the city, Immediate delivery Allowed, Flat to the station, A quiet residential area, Around traffic fewer, City gas, Flat terrain 陽当り良好、スーパーが近い、2沿線以上利用可、建物プラン例有り、市街地が近い、即引渡し可、駅まで平坦、閑静な住宅地、周辺交通量少なめ、都市ガス、平坦地 |
| ◆ With building conditions sold land ◆ You Yes available Reference Plan. ◆ Station within a 5-minute walk ◆建築条件付売地◆参考プランご用意してあります。◆駅徒歩5分圏内 |
Features pickup 特徴ピックアップ | | 2 along the line more accessible / Immediate delivery Allowed / Super close / It is close to the city / Yang per good / Flat to the station / A quiet residential area / Around traffic fewer / City gas / Flat terrain / Building plan example there 2沿線以上利用可 /即引渡し可 /スーパーが近い /市街地が近い /陽当り良好 /駅まで平坦 /閑静な住宅地 /周辺交通量少なめ /都市ガス /平坦地 /建物プラン例有り | Price 価格 | | 35,900,000 yen 3590万円 | Building coverage, floor area ratio 建ぺい率・容積率 | | 60% ・ 300% 60%・300% | Sales compartment 販売区画数 | | 1 compartment 1区画 | Total number of compartments 総区画数 | | 7 compartment 7区画 | Land area 土地面積 | | 63.88 sq m 63.88m2 | Driveway burden-road 私道負担・道路 | | Nothing, Northeast 4m width 無、北東4m幅 | Land situation 土地状況 | | Vacant lot 更地 | Address 住所 | | Toshima-ku, Tokyo Zōshigaya 2 東京都豊島区雑司が谷2 | Traffic 交通 | | Tokyo Metro Fukutoshin line "Zōshigaya" walk 3 minutes Toden Arakawa Line "Toden Zōshigaya" walk 2 minutes 東京メトロ副都心線「雑司が谷」歩3分 都電荒川線「都電雑司ヶ谷」歩2分
| Contact お問い合せ先 | | TEL: 0800-603-1287 [Toll free] mobile phone ・ Also available from PHS Caller ID is not notified Please contact the "saw SUUMO (Sumo)" If it does not lead, If the real estate company TEL:0800-603-1287【通話料無料】携帯電話・PHSからもご利用いただけます 発信者番号は通知されません 「SUUMO(スーモ)を見た」と問い合わせください つながらない方、不動産会社の方は
| Land of the right form 土地の権利形態 | | Ownership 所有権 | Building condition 建築条件 | | With 付 | Time delivery 引き渡し時期 | | Immediate delivery allowed 即引渡し可 | Land category 地目 | | Residential land 宅地 | Use district 用途地域 | | One middle and high 1種中高 | Overview and notices その他概要・特記事項 | | Facilities: Public Water Supply, This sewage, City gas 設備:公営水道、本下水、都市ガス | Company profile 会社概要 | | <Mediation> Minister of Land, Infrastructure and Transport (1) No. 007428 (Corporation) Prefecture Building Lots and Buildings Transaction Business Association (Corporation) metropolitan area real estate Fair Trade Council member Century 21 (Ltd.) Fukushima construction Itabashi office Yubinbango174-0076 Itabashi-ku, Tokyo Kamiitabashi 2-40-10 <仲介>国土交通大臣(1)第007428号(公社)埼玉県宅地建物取引業協会会員 (公社)首都圏不動産公正取引協議会加盟センチュリー21(株)フクシマ建設板橋営業所〒174-0076 東京都板橋区上板橋2-40-10 |
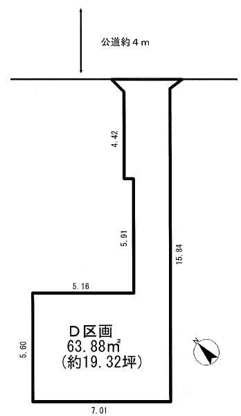
Compartment figure区画図  Land price 35,900,000 yen, Land area 63.88 sq m
土地価格3590万円、土地面積63.88m2
Building plan example (floor plan)建物プラン例(間取り図)  Building plan example (D No. land), Building price 13,900,000 yen, Building area 77.82 sq m
建物プラン例(D号地)、建物価格1390万円、建物面積77.82m2
 Local land photo
現地土地写真
 Local land photo
現地土地写真
 Local land photo
現地土地写真
Location
|