New Homes » Kanto » Tokyo » Toshima ward


Toshima-ku, Tokyo
Tokyo Metro Fukutoshin line "Zōshigaya" walk 5 minutes
Popular «Ikebukuro Station» than walk 13 minutes a good location !! flat 35 fit property! Car Space Available ・ Counter Kitchen ・ With floor heating
Features pickup
2 along the line more accessible / It is close to the city / System kitchen / All room storage / Japanese-style room / Starting station / Face-to-face kitchen / Wide balcony / Bathroom 1 tsubo or more / 2-story / The window in the bathroom / Living stairs / City gas / Maintained sidewalk / Floor heating
Price
51,800,000 yen ・ 54,800,000 yen
Floor plan
2LDK + 2S (storeroom) ・ 4LDK
Units sold
2 units
Total units
2 units
Land area
80.95 sq m ・ 85.08 sq m
Building area
79.57 sq m ・ 93.55 sq m
Driveway burden-road
North 4.0m position designated road, Southeast side 2.4m, 1 Building: position specified road equity 124.3 sq m × 1 / 6 Available, Building 2: SB1.90 sq m Yes
Completion date
March 2014 in late schedule
Address
Toshima-ku, Tokyo Minamiikebukuro 3
Traffic
Tokyo Metro Fukutoshin line "Zōshigaya" walk 5 minutes
JR Yamanote Line "Ikebukuro" walk 13 minutes
Related links
[Related Sites of this company]
Contact
TEL: 0800-809-8522 [Toll free] mobile phone ・ Also available from PHS
Caller ID is not notified
Please contact the "saw SUUMO (Sumo)"
If it does not lead, If the real estate company
Building coverage, floor area ratio
Building coverage: 60%, Volume ratio: 300%
Time residents
March 2014 in late schedule
Land of the right form
Ownership
Structure and method of construction
Wooden 2-story
Use district
One middle and high
Land category
Residential land
Other limitations
Advanced use district, Fire zones, Building 2 parking car restriction Yes
Overview and notices
Building confirmation number: 1 Building: No. KBI-TKN13-10-0791, Building 2: No. KBI-TKN13-10-0792
Company profile
<Mediation> Governor of Tokyo (1) No. 095150 smart housing Realty Co. Yubinbango171-0043 Toshima-ku, Tokyo Kanamecho 2-12-9


Rendering (appearance)

Rendering (appearance). Rendering
Rendering

Floor plan

Floor plan. (1 Building), Price 54,800,000 yen, 4LDK, Land area 80.95 sq m , Building area 93.55 sq m
(1 Building), Price 54,800,000 yen, 4LDK, Land area 80.95 sq m , Building area 93.55 sq m

Station

station. Until Zōshigaya 400m
Until Zōshigaya 400m

The entire compartment Figure
The entire compartment Figure

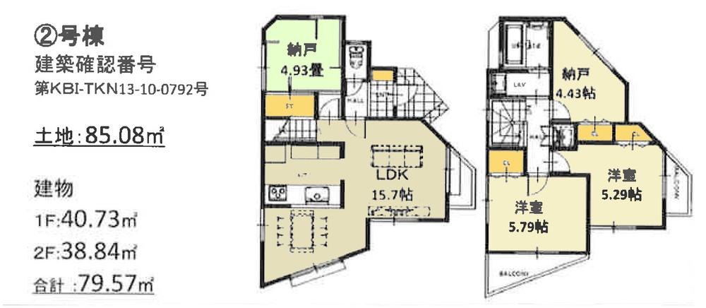
Floor plan

Floor plan. (Building 2), Price 51,800,000 yen, 2LDK+2S, Land area 85.08 sq m , Building area 79.57 sq m
(Building 2), Price 51,800,000 yen, 2LDK+2S, Land area 85.08 sq m , Building area 79.57 sq m

Station

station. 1040m to Ikebukuro
1040m to Ikebukuro

Primary school

Primary school. 346m to Toshima Ward Minamiikebukuro Elementary School
346m to Toshima Ward Minamiikebukuro Elementary School

Junior high school

Junior high school. 960m to Chitose Bridge Junior High School
960m to Chitose Bridge Junior High School



Location