New Homes » Kanto » Tokyo » Toshima ward


Toshima-ku, Tokyo
Tokyo Metro Yurakucho Line "Senkawa" walk 3 minutes
Property number published in the website! Please contact toll-free number "0800-602-7872" in the listing at any time delivery
Limited Building 1! In a quiet residential area There a beautiful shaping areas of the northeast corner lot. "Senkawa" Station 3-minute walk of a good location City is near there a convenience preeminent, System kitchen, Bathroom Dryer, Yang per good, Flat to the station, A quiet residential area, Corner lot, Shaping land, Washbasin with shower, Bathroom 1 tsubo or more, Warm water washing toilet seat, The window in the bathroom, TV monitor interphone, Leafy residential area, Urban neighborhood, Ventilation good all living room flooring, Three-story or more, Flat terrain, Floor heating
Features pickup
It is close to the city / System kitchen / Bathroom Dryer / Yang per good / Flat to the station / A quiet residential area / Corner lot / Shaping land / Washbasin with shower / Bathroom 1 tsubo or more / Warm water washing toilet seat / The window in the bathroom / TV monitor interphone / Leafy residential area / Urban neighborhood / Ventilation good / All living room flooring / Three-story or more / Flat terrain / Floor heating
Event information
Local guide Board (please make a reservation beforehand) schedule / Now open
Price
42,800,000 yen
Floor plan
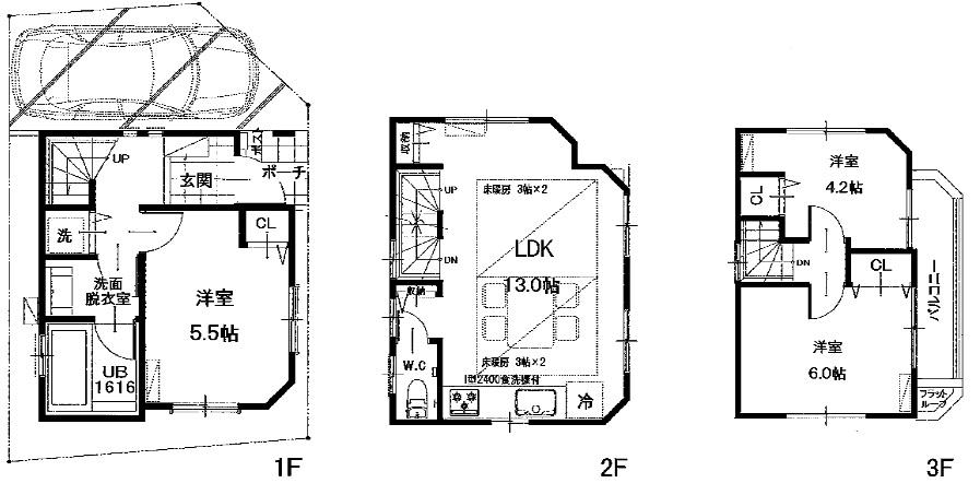
3LDK
Units sold
1 units
Land area
43.42 sq m (registration)
Building area
67.07 sq m (registration)
Driveway burden-road
Nothing, East 4m width, North 4m width
Completion date
March 2014
Address
Toshima-ku, Tokyo Chihaya 4
Traffic
Tokyo Metro Yurakucho Line "Senkawa" walk 3 minutes
Tokyo Metro Yurakucho Line "Kotake Mukaihara" walk 7 minutes
Related links
[Related Sites of this company]
Person in charge
Rep Yamamoto Age: 30 Daigyokai experience: There a dad of 10 years 1 pups. Children have purchased a home at the timing which is for children in kindergarten. Motivation of real estate purchase is subject a people who 其. Suggestions while I would like to ask a lot of talk ・ We will carry out support.
Contact
TEL: 0800-602-7872 [Toll free] mobile phone ・ Also available from PHS
Caller ID is not notified
Please contact the "saw SUUMO (Sumo)"
If it does not lead, If the real estate company
Building coverage, floor area ratio
60% ・ 200%
Time residents
March 2014 schedule
Land of the right form
Ownership
Structure and method of construction
Wooden three-story
Use district
One middle and high
Overview and notices
Contact: Yamamoto, Facilities: Public Water Supply, This sewage, City gas, Building confirmation number , Parking: Garage
Company profile
<Mediation> Governor of Tokyo (1) No. 092449 (Ltd.) Setagaya real estate Yubinbango168-0074 Suginami-ku, Tokyo Kamitakaido 1-8-4


Rendering (appearance)
Rendering (appearance)

Same specifications photos (appearance)

Same specifications photos (appearance). Example of construction
Example of construction

Floor plan

Floor plan. 42,800,000 yen, 3LDK, Land area 43.42 sq m , Building area 67.07 sq m
42,800,000 yen, 3LDK, Land area 43.42 sq m , Building area 67.07 sq m

Local appearance photo

Local appearance photo. Local (11 May 2013) Shooting
Local (11 May 2013) Shooting

Same specifications photo (bathroom)

Same specifications photo (bathroom). Example of construction
Example of construction

Same specifications photo (kitchen)

Same specifications photo (kitchen). Example of construction
Example of construction

Local photos, including front road

Local photos, including front road. Local (11 May 2013) Shooting
Local (11 May 2013) Shooting

Same specifications photos (Other introspection)

Same specifications photos (Other introspection). Example of construction
Example of construction

Sale already cityscape photo

Sale already cityscape photo. Local (11 May 2013) Shooting
Local (11 May 2013) Shooting

Other local

Other local. Local (11 May 2013) Shooting
Local (11 May 2013) Shooting

Local appearance photo

Local appearance photo. Local (11 May 2013) Shooting
Local (11 May 2013) Shooting

Local appearance photo. Local (11 May 2013) Shooting
Local (11 May 2013) Shooting



Location