|
|
Yamaguchi Prefecture Hofu
山口県防府市
|
|
Bocho bus "north bus stop" walk 7 minutes
防長バス「北側バス停」歩7分
|
|
It will guide you at any time if you can connect
ご連絡頂ければいつでもご案内致します
|
|
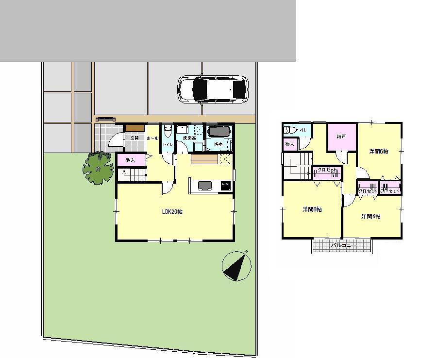
Please refer to the wide LDK
広いLDKをご覧ください
|
Features pickup 特徴ピックアップ | | Long-term high-quality housing / Pre-ground survey / Parking three or more possible / Immediate Available / LDK20 tatami mats or more / Land 50 square meters or more / System kitchen / A quiet residential area / Or more before road 6m / Shaping land / Garden more than 10 square meters / Washbasin with shower / Face-to-face kitchen / Barrier-free / Toilet 2 places / Bathroom 1 tsubo or more / 2-story / South balcony / Warm water washing toilet seat / The window in the bathroom / TV monitor interphone / Ventilation good / All living room flooring / IH cooking heater / All room 6 tatami mats or more / All rooms are two-sided lighting / Flat terrain / Development subdivision in 長期優良住宅 /地盤調査済 /駐車3台以上可 /即入居可 /LDK20畳以上 /土地50坪以上 /システムキッチン /閑静な住宅地 /前道6m以上 /整形地 /庭10坪以上 /シャワー付洗面台 /対面式キッチン /バリアフリー /トイレ2ヶ所 /浴室1坪以上 /2階建 /南面バルコニー /温水洗浄便座 /浴室に窓 /TVモニタ付インターホン /通風良好 /全居室フローリング /IHクッキングヒーター /全居室6畳以上 /全室2面採光 /平坦地 /開発分譲地内 |
Price 価格 | | 26.5 million yen 2650万円 |
Floor plan 間取り | | 3LDK + S (storeroom) 3LDK+S(納戸) |
Units sold 販売戸数 | | 1 units 1戸 |
Total units 総戸数 | | 1 units 1戸 |
Land area 土地面積 | | 227.88 sq m (registration) 227.88m2(登記) |
Building area 建物面積 | | 227.88 sq m (registration) 227.88m2(登記) |
Driveway burden-road 私道負担・道路 | | Nothing, Northwest 6m width (contact the road width 13m) 無、北西6m幅(接道幅13m) |
Completion date 完成時期(築年月) | | December 2012 2012年12月 |
Address 住所 | | Yamaguchi Prefecture Hofu Oaza Tajima 山口県防府市大字田島 |
Traffic 交通 | | Bocho bus "north bus stop" walk 7 minutes 防長バス「北側バス停」歩7分 |
Related links 関連リンク | | [Related Sites of this company] 【この会社の関連サイト】 |
Contact お問い合せ先 | | TEL: 0800-601-4711 [Toll free] mobile phone ・ Also available from PHS Caller ID is not notified Please contact the "saw SUUMO (Sumo)" If it does not lead, If the real estate company TEL:0800-601-4711【通話料無料】携帯電話・PHSからもご利用いただけます 発信者番号は通知されません 「SUUMO(スーモ)を見た」と問い合わせください つながらない方、不動産会社の方は
|
Building coverage, floor area ratio 建ぺい率・容積率 | | 60% ・ Hundred percent 60%・100% |
Time residents 入居時期 | | Immediate available 即入居可 |
Land of the right form 土地の権利形態 | | Ownership 所有権 |
Structure and method of construction 構造・工法 | | Wooden 2-story (framing method) 木造2階建(軸組工法) |
Construction 施工 | | Misawa Homes China Co., Ltd. ミサワホーム中国(株) |
Use district 用途地域 | | Urbanization control area, Unspecified 市街化調整区域、無指定 |
Overview and notices その他概要・特記事項 | | Facilities: Public Water Supply, Individual septic tank, Building Permits reason: land sale by the development permit, etc., Building confirmation number: No. ERI12044980, Parking: car space 設備:公営水道、個別浄化槽、建築許可理由:開発許可等による分譲地、建築確認番号:ERI12044980号、駐車場:カースペース |
Company profile 会社概要 | | <Seller> Minister of Land, Infrastructure and Transport (5) Article 005154 No. Misawa Homes China Co., Ltd. Yamaguchi branch Yubinbango754-0031 Yamaguchi Prefecture Yamaguchi Ogori Shinmachi 4-1-1 <売主>国土交通大臣(5)第005154号ミサワホーム中国(株)山口支店〒754-0031 山口県山口市小郡新町4-1-1 |