New Homes » Chugoku » Yamaguchi Prefecture » Shimonoseki
 
| | Shimonoseki, Yamaguchi Prefecture 山口県下関市 |
| JR San-in Main Line "Ayaragi" walk 10 minutes JR山陰本線「綾羅木」歩10分 |
| Carefully selected from the Land Information of thousands per year "rich" 年間数千件の土地情報から選び抜かれた「立地」 |
Features pickup 特徴ピックアップ | | Parking two Allowed / Energy-saving water heaters / System kitchen / Yang per good / All room storage / LDK15 tatami mats or more / Face-to-face kitchen / 2-story / Double-glazing / Warm water washing toilet seat / Underfloor Storage / The window in the bathroom / TV monitor interphone / All living room flooring / Dish washing dryer / Walk-in closet / Or more ceiling height 2.5m / Water filter / Living stairs 駐車2台可 /省エネ給湯器 /システムキッチン /陽当り良好 /全居室収納 /LDK15畳以上 /対面式キッチン /2階建 /複層ガラス /温水洗浄便座 /床下収納 /浴室に窓 /TVモニタ付インターホン /全居室フローリング /食器洗乾燥機 /ウォークインクロゼット /天井高2.5m以上 /浄水器 /リビング階段 | Price 価格 | | 19,800,000 yen 1980万円 | Floor plan 間取り | | 4LDK 4LDK | Units sold 販売戸数 | | 2 units 2戸 | Total units 総戸数 | | 2 units 2戸 | Land area 土地面積 | | 115.75 sq m ・ 119.34 sq m 115.75m2・119.34m2 | Building area 建物面積 | | 81.98 sq m 81.98m2 | Completion date 完成時期(築年月) | | Mid-September 2013 2013年9月中旬 | Address 住所 | | Shimonoseki, Yamaguchi Prefecture Ayaragiminami cho 山口県下関市綾羅木南町1 | Traffic 交通 | | JR San-in Main Line "Ayaragi" walk 10 minutes Sanden Blue Line "Ayaragi Branch before" walk 5 minutes JR山陰本線「綾羅木」歩10分 サンデンブルーライン「綾羅木支所前」歩5分 | Related links 関連リンク | | [Related Sites of this company] 【この会社の関連サイト】 | Person in charge 担当者より | | [Regarding this property.] 2013 even in such low and taxes surface of the interest rate is the deals time. Please feel free to contact us. 【この物件について】金利の低さや税金面などでも2013年はお得な時期です。 お気軽にご相談ください。 | Contact お問い合せ先 | | British industry (stock) Detached Division TEL: 0800-603-1774 [Toll free] mobile phone ・ Also available from PHS Caller ID is not notified Please contact the "saw SUUMO (Sumo)" If it does not lead, If the real estate company 大英産業(株)戸建事業部TEL:0800-603-1774【通話料無料】携帯電話・PHSからもご利用いただけます 発信者番号は通知されません 「SUUMO(スーモ)を見た」と問い合わせください つながらない方、不動産会社の方は
| Building coverage, floor area ratio 建ぺい率・容積率 | | Kenpei rate: 40%, Volume ratio: 80% 建ペい率:40%、容積率:80% | Time residents 入居時期 | | Immediate available 即入居可 | Land of the right form 土地の権利形態 | | Ownership 所有権 | Structure and method of construction 構造・工法 | | Wooden (2 × 4 construction method) 木造(2×4工法) | Use district 用途地域 | | One low-rise 1種低層 | Overview and notices その他概要・特記事項 | | Building confirmation number: No. H25 Ken 確建 Juse issue under 0086 0087 No. 建築確認番号:第H25建確建住セ下0086号 0087号 | Company profile 会社概要 | | <Seller> Governor of Fukuoka Prefecture (1) No. 016502 (Corporation), Fukuoka Prefecture Building Lots and Buildings Transaction Business Association (One company) Kyushu Real Estate Fair Trade Council member British Industry Co., Ltd. Detached Division Yubinbango807-0075 Kitakyushu, Fukuoka Prefecture Yahatanishi-ku Shimokojaku 4-1-36 <売主>福岡県知事(1)第016502号(公社)福岡県宅地建物取引業協会会員 (一社)九州不動産公正取引協議会加盟大英産業(株)戸建事業部〒807-0075 福岡県北九州市八幡西区下上津役4-1-36 |
Local appearance photo現地外観写真  September 2013 25 days shooting No. 3 place
2013年9月25日撮影3号地
Entrance玄関  September 20, 2013 shooting No. 3 place
2013年9月20日撮影 3号地
Local appearance photo現地外観写真  September 25, 2013 shooting No. 4 place
2013年9月25日撮影 4号地
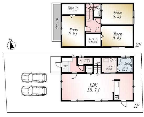
Floor plan間取り図  (No. 3 locations), Price 19,800,000 yen, 4LDK, Land area 119.34 sq m , Building area 81.98 sq m
(3号地)、価格1980万円、4LDK、土地面積119.34m2、建物面積81.98m2
 (No. 4 locations), Price 19,800,000 yen, 4LDK, Land area 115.75 sq m , Building area 81.98 sq m
(4号地)、価格1980万円、4LDK、土地面積115.75m2、建物面積81.98m2
Entrance玄関  September 20, 2013 shooting
2013年9月20日撮影
Livingリビング  September 20, 2013 shooting
2013年9月20日撮影
 September 20, 2013 shooting
2013年9月20日撮影
 September 20, 2013 shooting
2013年9月20日撮影
Kitchenキッチン  September 20, 2013 shooting
2013年9月20日撮影
 September 20, 2013 shooting
2013年9月20日撮影
 September 20, 2013 shooting
2013年9月20日撮影
Receipt収納  September 20, 2013 shooting
2013年9月20日撮影
Other introspectionその他内観  September 20, 2013 shooting
2013年9月20日撮影
Non-living roomリビング以外の居室  September 20, 2013 shooting
2013年9月20日撮影
 September 20, 2013 shooting
2013年9月20日撮影
 September 20, 2013 shooting
2013年9月20日撮影
Receipt収納  September 20, 2013 shooting
2013年9月20日撮影
Wash basin, toilet洗面台・洗面所  September 20, 2013 shooting
2013年9月20日撮影
Bathroom浴室  September 20, 2013 shooting
2013年9月20日撮影
Toiletトイレ  September 20, 2013 shooting
2013年9月20日撮影
Location
|