|
|
Shimonoseki, Yamaguchi Prefecture
山口県下関市
|
|
JR Sanyo Line "small moon" walk 44 minutes
JR山陽本線「小月」歩44分
|
|
Lighting (all rooms) + curtain (all rooms) + air-conditioned (2 units)! Parking three or more possible, LDK15 tatami mats or more, All-electric + Cute, Facing south, System kitchen, Bathroom Dryerese-style room
照明(全室)+カーテン(全室)+エアコン(2台)付き!駐車3台以上可、LDK15畳以上、オール電化+エコキュート、南向き、システムキッチン、浴室乾燥機、和室
|
|
・ A big balcony and a wood deck is glad sum modern type house ・ Outstanding storage capacity in a large walk-in closet with ・ Ordinance of the Ministry of quasi-fireproof structure
・大きなバルコニーとウッドデッキ付きが嬉しい和モダンタイプの家・大型のウォークインクローゼット付で収納力抜群・省令準耐火構造
|
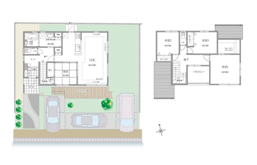
Features pickup 特徴ピックアップ | | Parking three or more possible / Energy-saving water heaters / Facing south / System kitchen / Bathroom Dryer / All room storage / LDK15 tatami mats or more / Japanese-style room / garden / Face-to-face kitchen / Barrier-free / Toilet 2 places / Bathroom 1 tsubo or more / 2-story / South balcony / Double-glazing / Zenshitsuminami direction / Otobasu / Warm water washing toilet seat / The window in the bathroom / Wood deck / Dish washing dryer / Walk-in closet / Water filter / Living stairs / Maintained sidewalk 駐車3台以上可 /省エネ給湯器 /南向き /システムキッチン /浴室乾燥機 /全居室収納 /LDK15畳以上 /和室 /庭 /対面式キッチン /バリアフリー /トイレ2ヶ所 /浴室1坪以上 /2階建 /南面バルコニー /複層ガラス /全室南向き /オートバス /温水洗浄便座 /浴室に窓 /ウッドデッキ /食器洗乾燥機 /ウォークインクロゼット /浄水器 /リビング階段 /整備された歩道 |
Price 価格 | | 26 million yen 2600万円 |
Floor plan 間取り | | 4LDK 4LDK |
Units sold 販売戸数 | | 1 units 1戸 |
Total units 総戸数 | | 1 units 1戸 |
Land area 土地面積 | | 203.79 sq m (61.64 tsubo) (Registration) 203.79m2(61.64坪)(登記) |
Building area 建物面積 | | 111.95 sq m (33.86 square meters) 111.95m2(33.86坪) |
Driveway burden-road 私道負担・道路 | | Nothing, South 6m width 無、南6m幅 |
Completion date 完成時期(築年月) | | December 2013 2013年12月 |
Address 住所 | | Shimonoseki, Yamaguchi Prefecture Ojihon cho 1-1192-8 山口県下関市王司本町1-1192-8 |
Traffic 交通 | | JR Sanyo Line "small moon" walk 44 minutes JR Sanyo Line "Chofu" walk 41 minutes Sanden "Takaiso" walk 4 minutes JR山陽本線「小月」歩44分 JR山陽本線「長府」歩41分 サンデン「高磯」歩4分 |
Related links 関連リンク | | [Related Sites of this company] 【この会社の関連サイト】 |
Contact お問い合せ先 | | (Ltd.) es trust Oh Vision Shimonoseki model room TEL: 0120-651456 [Toll free] Please contact the "saw SUUMO (Sumo)" (株)エストラストオーヴィジョン下関モデルルームTEL:0120-651456【通話料無料】「SUUMO(スーモ)を見た」と問い合わせください |
Time residents 入居時期 | | December 2013 2013年12月 |
Land of the right form 土地の権利形態 | | Ownership 所有権 |
Structure and method of construction 構造・工法 | | Wooden 2-story (framing method) 木造2階建(軸組工法) |
Overview and notices その他概要・特記事項 | | Facilities: Public Water Supply, All-electric, Building confirmation number: H25 Ken 確建 Juse under No. 0228, Parking: car space 設備:公営水道、オール電化、建築確認番号:H25建確建住セ下第0228号、駐車場:カースペース |
Company profile 会社概要 | | <Employer ・ Seller> Minister of Land, Infrastructure and Transport (2) No. 007207 (Ltd.) es trust Oh Vision Shimonoseki model room Yubinbango750-0003 Shimonoseki, Yamaguchi Prefecture Amidaji cho 6-17 <事業主・売主>国土交通大臣(2)第007207号(株)エストラストオーヴィジョン下関モデルルーム〒750-0003 山口県下関市阿弥陀寺町6-17 |