New Homes » Chugoku » Yamaguchi Prefecture » Ube
 
| | Ube City, Yamaguchi Prefecture 山口県宇部市 |
| Ube city bus "Atsuminami Nabekura" walk 3 minutes 宇部市営バス「厚南鍋倉」歩3分 |
| It will guide you at any time if you can connect! ご連絡頂ければいつでもご案内致します! |
| Also possible to the second floor to 4 room. Loft of fixed stairs must see! 2階を4部屋にすることも可能。固定階段のロフトは必見! |
Features pickup 特徴ピックアップ | | Construction housing performance with evaluation / Design house performance with evaluation / Eco-point target housing / Long-term high-quality housing / Pre-ground survey / Vibration Control ・ Seismic isolation ・ Earthquake resistant / Parking three or more possible / Immediate Available / LDK20 tatami mats or more / Land 50 square meters or more / Energy-saving water heaters / It is close to the city / System kitchen / Bathroom Dryer / All room storage / Washbasin with shower / Face-to-face kitchen / Barrier-free / Toilet 2 places / Bathroom 1 tsubo or more / 2-story / South balcony / Double-glazing / Warm water washing toilet seat / loft / Underfloor Storage / The window in the bathroom / TV monitor interphone / IH cooking heater / Dish washing dryer / Walk-in closet / Water filter / Living stairs / All-electric / All rooms are two-sided lighting / Attic storage 建設住宅性能評価付 /設計住宅性能評価付 /エコポイント対象住宅 /長期優良住宅 /地盤調査済 /制震・免震・耐震 /駐車3台以上可 /即入居可 /LDK20畳以上 /土地50坪以上 /省エネ給湯器 /市街地が近い /システムキッチン /浴室乾燥機 /全居室収納 /シャワー付洗面台 /対面式キッチン /バリアフリー /トイレ2ヶ所 /浴室1坪以上 /2階建 /南面バルコニー /複層ガラス /温水洗浄便座 /ロフト /床下収納 /浴室に窓 /TVモニタ付インターホン /IHクッキングヒーター /食器洗乾燥機 /ウォークインクロゼット /浄水器 /リビング階段 /オール電化 /全室2面採光 /屋根裏収納 | Price 価格 | | 39,800,000 yen 3980万円 | Floor plan 間取り | | 4LDK 4LDK | Units sold 販売戸数 | | 1 units 1戸 | Total units 総戸数 | | 1 units 1戸 | Land area 土地面積 | | 227.62 sq m (registration) 227.62m2(登記) | Building area 建物面積 | | 126.69 sq m (measured) 126.69m2(実測) | Driveway burden-road 私道負担・道路 | | Nothing, West 6m width (contact the road width 15m), North 5.9m width (contact the road width 13.2m) 無、西6m幅(接道幅15m)、北5.9m幅(接道幅13.2m) | Completion date 完成時期(築年月) | | June 2012 2012年6月 | Address 住所 | | Ube City, Yamaguchi Prefecture, Oaza Kiwanami 山口県宇部市大字際波 | Traffic 交通 | | Ube city bus "Atsuminami Nabekura" walk 3 minutes JR Sanyo Line "Ube" walk 19 minutes 宇部市営バス「厚南鍋倉」歩3分JR山陽本線「宇部」歩19分
| Related links 関連リンク | | [Related Sites of this company] 【この会社の関連サイト】 | Contact お問い合せ先 | | TEL: 0800-601-4711 [Toll free] mobile phone ・ Also available from PHS Caller ID is not notified Please contact the "saw SUUMO (Sumo)" If it does not lead, If the real estate company TEL:0800-601-4711【通話料無料】携帯電話・PHSからもご利用いただけます 発信者番号は通知されません 「SUUMO(スーモ)を見た」と問い合わせください つながらない方、不動産会社の方は
| Building coverage, floor area ratio 建ぺい率・容積率 | | 60% ・ 200% 60%・200% | Time residents 入居時期 | | Immediate available 即入居可 | Land of the right form 土地の権利形態 | | Ownership 所有権 | Structure and method of construction 構造・工法 | | Wooden 2-story (panel method) 木造2階建(パネル工法) | Construction 施工 | | Misawa Homes China Co., Ltd. ミサワホーム中国(株) | Use district 用途地域 | | One dwelling 1種住居 | Overview and notices その他概要・特記事項 | | Facilities: Public Water Supply, This sewage, All-electric, Building confirmation number: ERI12014714, Parking: car space 設備:公営水道、本下水、オール電化、建築確認番号:ERI12014714、駐車場:カースペース | Company profile 会社概要 | | <Seller> Minister of Land, Infrastructure and Transport (5) Article 005154 No. Misawa Homes China Co., Ltd. Yamaguchi branch Yubinbango754-0031 Yamaguchi Prefecture Yamaguchi Ogori Shinmachi 4-1-1 <売主>国土交通大臣(5)第005154号ミサワホーム中国(株)山口支店〒754-0031 山口県山口市小郡新町4-1-1 |
Local appearance photo現地外観写真  Also impetus conversation family in wood deck!
ウッドデッキで家族の会話も弾みます!
Livingリビング  Guests can relax and gather the whole family with a large living
広いリビングで家族全員集まってくつろげます
 Pat housework flow line of the wife in the circulation plan!
サーキュレーションプランで奥様の家事動線もバッチリ!
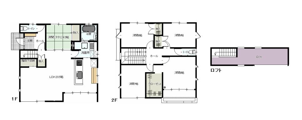
Floor plan間取り図  39,800,000 yen, 4LDK, Land area 227.62 sq m , Building area 126.69 sq m each room housed also enough
3980万円、4LDK、土地面積227.62m2、建物面積126.69m2 各居室収納も充分
Bathroom浴室  Cleaning Ease crank-less faucet
クランクレス水栓でお掃除ラクラク
Kitchenキッチン  We hide the hand of the kitchen in the kitchen shade.
キッチンシェードでキッチンの手元を隠せます。
Otherその他  Loft from the fixed staircase is easy to use
固定階段からのロフトは使いやすいです
Location
|