Investing in Japanese real estate
2014January
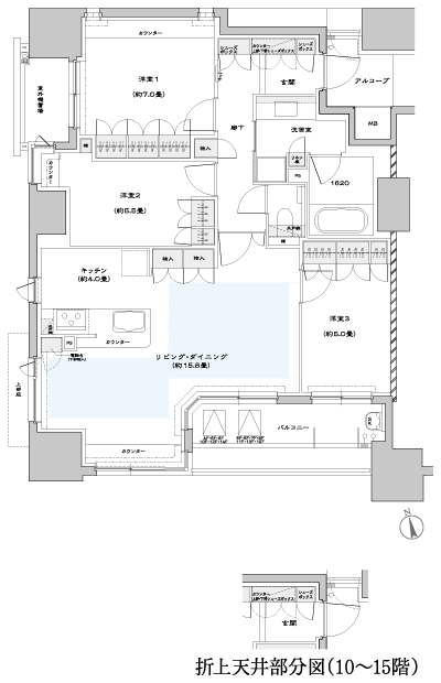
58,980,000 yen ~ 64,780,000 yen, 3LDK, 86.19 sq m
New Apartments » Chugoku » Hiroshima » Naka-ku![]() ![]()
The ・ Park House Kaminobori Residence![]() (living ・ kitchen ・ bath ・ bathroom ・ toilet ・ balcony ・ terrace ・ Private garden ・ Storage, etc.) ![]() Walk from JR Hiroshima Station 7 minutes. After enjoying shopping in front of the station area, To my home on foot as it is. ![]() Local guide map + "lifestyle convenience" facility List ![]() Located in the 920m and within walking distance to Hatchobori intersection, Closeness that within 5 minutes by bicycle. Go feel free also to the downtown area of the bustle. ![]() Noborimachi elementary school of the other, Educational environment of enhancement align all up to junior high school within a 6-minute walk from the kindergarten. Also recommended to the family that the child-rearing now. ![]() Including the Hiroshima City Hospital (1300m), Environment medical institutions there is more than one familiar. Such as a sudden fever of a child, Encouraging also the case of emergency. ![]() It has been popular as a scenic spot "Shukkeien". Occasionally Tazunere if, You can enjoy the taste of garden beauty and four seasons of up to stunning. ![]() Local guide map + "enjoy life" facilities List ![]() 1-minute walk to the spread in Riverside "Kyobashi River Riverwalk". Lush greenery and recreation office to be healed heart on the surface of the water of the River Kyobashi. ![]() Walk to Hiroshima Prefectural Museum of Art 7 minutes, Gallery G also walk 8 minutes, Close to fun Mel environment art. ![]() Walk to Kaminoboricho park 3 minutes, It is close to a 6-minute walk and the park to the Hashimoto-cho Park. Carefree child-rearing can be environment. Living![]() [living ・ dining ・ kitchen] About 24.8 tatami large space of. Enjoy beautiful views, Photos of the wide span design point (below the web is model room (C1 type menu plan 3 ・ Stately Modern ・ Premier Specifications: application deadline Yes ・ Which was free of charge) shooting (January 2013), Air conditioning ・ Fixtures furniture ・ illumination ・ Decorative accessories such as option (paid) and is also included. Also, Photo was added to the CG processing, In fact a slightly different) ![]() [living ・ dining] Including a wide span, Design full of creativity. Equipment and specifications and even more were examined. Commitment to that one by one, Portray life landscape that touches the heartstrings ![]() [living ・ dining] Commitment to livability that breathes in detail. Visual volupte. Air feeling that exude. While these are mutually resonance, Go out to create one of the world Kitchen![]() [kitchen] Not only the convenience and comfort of advanced features is telling, Also attracted the people that design taste. True quality can also be renewed even life sensitivity. High operability, Spread is fun to cook ![]() Water purifier built-in hand shower mixing faucet ![]() Low noise sink ![]() Si sensor stove ![]() Dishwasher ![]() Slide cabinet (with soft-close rails) Bathing-wash room![]() [Bathroom] Mist sauna home Este can enjoy Ya, High-performance shower head other such as an air-in shower, Adopt the equipment to enhance the usability and relaxation effect ![]() Full Otobasu remote control ![]() [Mist function with bathroom heating dryer] Not only the laundry to dry out on a rainy day or at night, With mist sauna function, Feel free to home Este mood to enjoy. Also it reduces the occurrence of airborne fungi in the bathroom ※ For more information, please contact the person in charge ![]() [Powder Room] Adopt the design of sophisticated and advanced functions in the water around the facility. Not only the convenience, Freshness and care of the ease of a feeling of use is also, You can feel as part of the life of the quality ![]() Three-sided mirror back storage ![]() Health meter space Toilet![]() [toilet] Adopt the warm water washing heating toilet seat. With hand washing counter & handrail ![]() Toilet hanging cupboard Balcony ・ terrace ・ Private garden![]() Slop sink Interior![]() [bedroom] City life swirling excitement and pleasant stimulus. Private space for disentangle the tension is, Of deep peace, Invite to its earlier. In calm fine space, Along with the great healing, Like fun rich moments infinitely ![]() (Shared facilities ・ Common utility ・ Pet facility ・ Variety of services ・ Security ・ Earthquake countermeasures ・ Disaster-prevention measures ・ Building structure ・ Such as the characteristics of the building) Shared facilities![]() [Exterior - Rendering] Which was raised to draw on the basis of the appearance design (drawing of a modern form that emphasizes the vertical line, In fact a slightly different ※ Planting and it has not been drawn on the assumption the state at the time of a particular season or tenants. Guttering, Air conditioner outdoor unit, There is equipment that has not been reproduced evacuation hatch, etc.) ![]() [Exterior - Rendering] All houses facing south and the open feeling of the location in the high lighting of the south open. In addition to the excellent lighting of "south-facing", A feeling of opening adopt a "wide span design". Also a feature of the field of view of the south side of the middle and higher floors of the dwelling unit is opened (the positional relationship between the property and the surrounding building, In an illustration that shows along with the appearance Rendering that caused draw based on the drawings, In fact a slightly different) ![]() [Entrance approach Rendering] Entrance porch to show a strikingly impressive appearance. Cosmetic Wall was luxuriously decorated with white marble with a quaint is, And gentle Earl shape, To the Entrance Hall, And grace to produce a flow line leading to the private residence. In order to welcome the people with excitement. Those that (caused draw on the basis of the drawings in order to give the living landscape rich color to the, In fact a slightly different) ![]() [Entrance porch Rendering] Entrance inside in addition to the marble of the split skin and this Shine lead from the outside, Coordinating the texture of the wood. It finished with a calm atmosphere in the chic (which was raised to draw on the basis of the drawings, In fact a slightly different) ![]() [Parking Rendering] The main entrance provided in a building east, Parking gate design to building west. Equipped with a chain gate to the parking lot entrance, Improve crime prevention is ※ Parking NO1, NO20 except ![]() [Windbreak room Rendering] The main melody of life sophisticated and elegant is played. The word sophistication semblable, That space design. Magnificent of height story its prestige to above all be eloquence, Serve with Hana named architectural aesthetic life of scene Security![]() [The new hands-free system [Rakusesu]] Improve safety, Security system to watch the living. You can pass through the entrance without removing the key. Since the ID key is automatically authenticated even if you are still put in a bag or pocket, If carrying the ID key, Auto-lock the door in the only close to the leader is released (detection distance: about 1.3m). Also auto-lock is in conjunction with the elevator, Implantation of the elevator at the same time when the auto lock is released summoned on the first floor or second floor. Smoothly Norikome the elevator (following publication of illustrations conceptual diagram) ![]() [Opening and closing sensor in conjunction with a security company] In preparation for the event of an intrusion, Entrance doors and interior windows all openings of all dwelling units (FIX window, Established the opening and closing sensor to except glass block). Doors and windows are opened in the alert mode when the sensor is catch. Is automatically reported to the security company at the same time an alarm sounds, Rapid response is taken (following publication photograph of the same specifications) ![]() [Of 24-hour surveillance security system] If an abnormality of intrusion and fire, etc. to each dwelling unit has occurred, Automatically report with the announcement in the intercom to control room and security company (Central Security Patrols). To respond quickly and accurately. TV monitor intercom, You can see the visitors in the video and audio ![]() Crime prevention thumb turn ![]() Deadbolt lock with key ![]() Double Rock Features of the building![]() [All houses standard equipment compatible Internet up to 100Mbps] ※ Speed the time zone ・ By the situation, etc., It may be different, Intending to be there is no guarantee ※ After the move, A separate request, You can deploy the NTT West Internet connection service "FLET'S Hikari" ※ The use of FLET'S Hikari, In addition to the contract of FLET'S Hikari, Need a contract with the provider. However provider fee When you select the "e-mansion" as FLET'S Hikari corresponding provider is not required ※ The use of the IP phone service, Service tie-up company "(Ltd.) connecting net Communications" require a separate agreement with ![]() [Low-E glass] Adopt a high Low-E glass insulation performance thermal barrier performance. By blocking the solar radiation heat, Air conditioning is also easy to effectiveness, Reduce the utility costs. UV rays can also be cut significantly ![]() [Eco Jaws] On the earth, Friendly household high-efficiency water heater. UP the thermal efficiency by reusing about 200 ℃ of exhaust heat to 95%. The new system also friendly to the global environment in which CO2 emissions were also reduced ![]() [Gas hot water floor heating system] Adopt an ideal heating system of Zukansokunetsu. Since the warm up the room in the far infrared effect from the floor surface, Warm to the core of the body ![]() Louver moving surface lattice Surrounding environment![]() Hiroshima Prefectural Museum of Art (6-minute walk ・ About 460m) ![]() Hatchobori intersection (a 12-minute walk ・ About 920m) ![]() JR Hiroshima Station (7 min walk ・ About 560m) ![]() Scenic spot Shukkeien (6-minute walk ・ About 430m) ![]() Fukuya Hiroshima store (Yale Yale Building A) (6-minute walk ・ About 440m) ![]() Mitsukoshi Hiroshima (a 12-minute walk ・ About 940m) ![]() Side dishes workshop Grand Tower store (7 min walk ・ About 550m) ![]() Fukuya food Museum FRED (8-minute walk ・ About 610m) ![]() Yours LIVI assay store (7 min walk ・ About 560m) ![]() Hiroshima Tatsunobori the town elementary school (about 430m) ![]() Hiroshima Tatsunobori cho, junior high school (4-minute walk ・ About 320m) ![]() Hiroshima Bank Hiroshima Station before Branch (7 min walk ・ About 540m) Floor: 3LDK, occupied area: 86.19 sq m, Price: 58,980,000 yen ~ 64,780,000 yen![]() ![]() Location | |||||||||||||||||||||||||||||||||||||||||||||||||||||||||||||||||||||||||||||||||||||||||||||||||||||||||