New Apartments » Chugoku » Hiroshima » Naka-ku


Property name
Klaas Hatchobori The ・ mark
Time residents
July 2015 in late schedule
Floor plan
2LDK + S (storeroom) ~ 4LDK
Units sold
Undecided
Occupied area
73.09 sq m ~ 91.8 sq m
Address
Hatchobori middle of Hiroshima, Hiroshima Prefecture District 4-14 ・ 4-15
Traffic
Hiroden bus "Kyoguchi Gate" walk 1 minute
Sale schedule
Sales scheduled to start 2014 mid-January ※ price ・ Units sold is undecided. Not been finalized or sale divided by the number term or whole sell, Property data for sale dwelling unit has not yet been finalized are inscribed things of all general sales target dwelling unit. Determination information will be explicit in the new sale advertising. ※ Acts that lead to secure the contract or reservation of the application and the application order to sale can not be absolutely.
Completion date
June 2015 in late schedule
Number of units
Undecided
Predetermined price
Undecided
Will most price range
Undecided
Administrative expense
An unspecified amount
Repair reserve
An unspecified amount
Repair reserve fund
An unspecified amount
Other area
Balcony area: 4.8 sq m ~ 22.21 sq m , Private porch area: 7.37 sq m , Trunk room: 0.78 sq m (use fee TBD)
Other limitations
City planning area, Urbanization promotion area, Hiroshima City parking lot maintenance district, Hiroshima City Bicycle its auxiliary obligation target zone
Property type
Mansion
Total units
73 units (of the store ・ 1 units such as Office)
Structure-storey
RC19 story
Construction area
530.41 sq m
Building floor area
7796.92 sq m
Site area
956.94 sq m (measured)
Site of the right form
Share of ownership
Use district
Commercial area
Parking lot
On-site 38 units (price TBD)
Bicycle-parking space
73 cars (fee TBD)
Management form
Consignment (working arrangements undecided)
Other overview
Building confirmation number: No. HP01-0173342 (2013 July 26 date)
About us
<Employer ・ Seller> Minister of Land, Infrastructure and Transport (1) No. 7913 (JP) Hiroshima Prefecture town planning council member, Ltd. Japan Icom Yubinbango730-0037 medium Hiroshima-ku Nakamachi 1-24
Construction
(Ltd.) Masuokagumi Hiroshima head office
Management
Nippon Hauzuingu Ltd. Hiroshima Branch


Klaas Hatchobori The ・ mark

Klaas Hatchobori The ・ mark. "Klaas Hatchobori The ・ Mark "Exterior - Rendering (in fact a somewhat different in those that caused draw on the basis of the drawings)
"Klaas Hatchobori The ・ Mark "Exterior - Rendering (in fact a somewhat different in those that caused draw on the basis of the drawings)

In fact a somewhat different in a composite of Exterior - Rendering to local peripheral photographs taken in June 2013. Exterior - Rendering is actually a little different in what caused draw based on the drawings
In fact a somewhat different in a composite of Exterior - Rendering to local peripheral photographs taken in June 2013. Exterior - Rendering is actually a little different in what caused draw based on the drawings

Fukuya Hatchobori head office to about 430m (6-minute walk)
Fukuya Hatchobori head office to about 430m (6-minute walk)

Aerial photo of me is what was taken in August 2013. In fact a somewhat different in those subjected to some CG processing. Light representing the position of the local does not represent the scale and height of the building
Aerial photo of me is what was taken in August 2013. In fact a somewhat different in those subjected to some CG processing. Light representing the position of the local does not represent the scale and height of the building

Hiroshima City Hospital about 430m (6-minute walk)
Hiroshima City Hospital about 430m (6-minute walk)

Hiroshima Parco about 590m (8 minutes walk)
Hiroshima Parco about 590m (8 minutes walk)

About 560m to Chijimikei Garden (7-minute walk)
About 560m to Chijimikei Garden (7-minute walk)

Also enhance transportation such as trams and buses. Within easy reach even farther in the city (up to about Hatchobori intersection 450m / 6-minute walk)
Also enhance transportation such as trams and buses. Within easy reach even farther in the city (up to about Hatchobori intersection 450m / 6-minute walk)

Local peripheral guide map
Local peripheral guide map

Central Park (about 840m / Walk 11 minutes) and along the Kyobashi River promenade (about 660m / While enjoying a walk or running on foot 9 minutes), A healthy life
Central Park (about 840m / Walk 11 minutes) and along the Kyobashi River promenade (about 660m / While enjoying a walk or running on foot 9 minutes), A healthy life

Shopping, of course, Movies and eating out, etc. also freely enjoy Fukuya Hatchobori head office near (about 360m / A 5-minute walk)
Shopping, of course, Movies and eating out, etc. also freely enjoy Fukuya Hatchobori head office near (about 360m / A 5-minute walk)

Rich opportunities to be exposed to the history and culture (Hiroshima about to Museum 640m / An 8-minute walk)
Rich opportunities to be exposed to the history and culture (Hiroshima about to Museum 640m / An 8-minute walk)

Surrounding environment

Surrounding environment. Fukuya Hatchobori head office (6-minute walk / About 430m)
Fukuya Hatchobori head office (6-minute walk / About 430m)

Surrounding environment. Mitsukoshi Hiroshima (8-minute walk / About 590m)
Mitsukoshi Hiroshima (8-minute walk / About 590m)

Surrounding environment. Hiroshima City Hospital (6-minute walk / About 430m)
Hiroshima City Hospital (6-minute walk / About 430m)

Surrounding environment. Hiroshima Prefectural Office (6-minute walk / About 410m)
Hiroshima Prefectural Office (6-minute walk / About 410m)

Surrounding environment. Hiroshima Jogakuin junior high school ・ High School (5 minutes walk / About 360m)
Hiroshima Jogakuin junior high school ・ High School (5 minutes walk / About 360m)

Surrounding environment. Noborimachi elementary school (a 5-minute walk / About 330m)
Noborimachi elementary school (a 5-minute walk / About 330m)

Surrounding environment. Noborimachi junior high school (a 9-minute walk / About 660m)
Noborimachi junior high school (a 9-minute walk / About 660m)

Surrounding environment. Shukkeien (7 min walk / About 560m)
Shukkeien (7 min walk / About 560m)

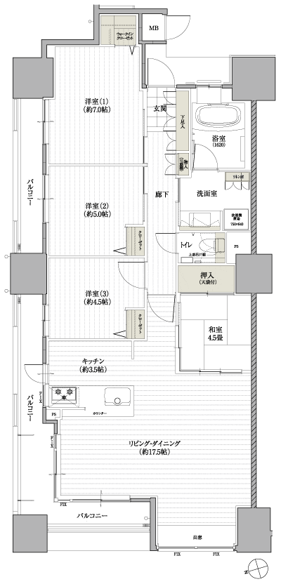
Floor: 4LDK, occupied area: 90.09 sq m, Price: TBD

Floor: 4LDK, occupied area: 90.09 sq m, Price: TBD
Floor: 4LDK, occupied area: 90.09 sq m, Price: TBD

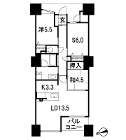
Floor: 2LDK + S, the occupied area: 73.09 sq m, Price: TBD

Floor: 2LDK + S, the occupied area: 73.09 sq m, Price: TBD
Floor: 2LDK + S, the occupied area: 73.09 sq m, Price: TBD


Location