New Apartments » Chugoku » Hiroshima » Naka-ku


Property name
Klaas Hiroshima The ・ mark
Time residents
March 2014 in late schedule
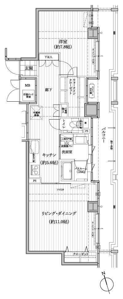
Floor plan
1LDK
Units sold
1 units
Occupied area
59.04 sq m
Address
Hiroshima, Hiroshima Prefecture, Naka-ku Motomachi 15-1
Traffic
Hiroshima Electric Railway main line "Kamiya-cho Higashi" walk 1 minute
Sale schedule
First-come-first-served basis application in the accepted time / 10:00 AM ~ 7:00 PM location / Mansion Gallery ・ Sales center regular holiday / None
Completion date
February 2014 late schedule
Number of units
1 units
Price
30,800,000 yen
Administrative expense
8300 yen / Month
Repair reserve
4100 yen / Month
Repair reserve fund
410,000 yen (lump sum)
Other area
Balcony area: 18.99 sq m
Whereabouts floor
4th floor
Direction
Southwest
Property type
Mansion
Total units
48 units
Structure-storey
Steel 14-story
Construction area
335.29 sq m
Building floor area
3961.66 sq m
Site area
433.85 sq m
Site of the right form
Share of ownership
Use district
Commercial area
Parking lot
Six on-site (fee 45,000 yen / Month)
Bicycle-parking space
48 cars (100 yen fee ・ 200 yen / Month)
Bike shelter
Nothing
Mini bike shelter
Nothing
Management form
Consignment (commuting) formed a management association in the classification owner all
Other overview
Building confirmation number: No. HP01-0147557 (June 2012 1 date)
About us
<Employer ・ Seller> Minister of Land, Infrastructure and Transport (1) No. 7913 (the company) in Hiroshima Prefecture Building Lots and Buildings Transaction Business Association (JP) Hiroshima Prefecture Mansion Association ※ China district Real Estate Fair Trade Council member Co., Ltd. Japan Icom Hiroshima medium Hiroshima-ku Nakamachi 1-24
Construction
HiroNaru Construction Co., Ltd. (Hiroshima Branch)
Management
(Ltd.) Gojinshakeikakukenkyujo Hiroshima Branch


Other

Other. Empty March 2012 shooting shooting and CG processing the synthetic appearance Rendering. In fact a slightly different.
Empty March 2012 shooting shooting and CG processing the synthetic appearance Rendering. In fact a slightly different.

Other. <Klaas Hiroshima The ・ Mark> Exterior - Rendering
<Klaas Hiroshima The ・ Mark> Exterior - Rendering

Other. Location conceptual diagram
Location conceptual diagram

Other. Local guide map
Local guide map

Other. To Sogo Hiroshima shop about 170m (3 minutes walk)
To Sogo Hiroshima shop about 170m (3 minutes walk)

Other. Hiroden "Kamiyacho east" power stop to about 20m (1 minute walk)
Hiroden "Kamiyacho east" power stop to about 20m (1 minute walk)

Other. To Kamiyachō Shareo about 20m (1 minute walk)
To Kamiyachō Shareo about 20m (1 minute walk)

Other. Astram "Kenchomae" about 250m to the station (4 minute walk)
Astram "Kenchomae" about 250m to the station (4 minute walk)

Living

Living.  [LIVING DINING] Infinitely to the rich life. Taste of the good everyday. To the new private residence to further brighten the life. (Publication photograph of which was taken the model room F type, Design changes and option equipment (paid ・ A thing of the specification, including the application deadline Yes). )
[LIVING DINING] Infinitely to the rich life. Taste of the good everyday. To the new private residence to further brighten the life. (Publication photograph of which was taken the model room F type, Design changes and option equipment (paid ・ A thing of the specification, including the application deadline Yes). )

Living.  [LIVING DINING] Also similar to the twinkling star, Cities spinning mellow drama night view. (Outside the window of view is that the CG synthesizing a photograph taken from the height of the local 14th floor equivalent, In fact a slightly different. )
[LIVING DINING] Also similar to the twinkling star, Cities spinning mellow drama night view. (Outside the window of view is that the CG synthesizing a photograph taken from the height of the local 14th floor equivalent, In fact a slightly different. )

Kitchen

Kitchen.  [KITCHEN] living ・ I was dining with total coordination, System kitchen. It is not an exaggeration be referred to as a modern furniture, It boasts interior taste. Commitment to the kitchen work, Also transmitted from the over-spec specification.
[KITCHEN] living ・ I was dining with total coordination, System kitchen. It is not an exaggeration be referred to as a modern furniture, It boasts interior taste. Commitment to the kitchen work, Also transmitted from the over-spec specification.

Kitchen.  [ECONAVI with IH cooking heater] 3-neck all IH So, Cooking is Hakadori. By light thermal sensor and horses capitalists control, Also finish delicious any menu. Cleaning is also easy to grill. Also to achieve energy saving in the ECO NAVI operation.
[ECONAVI with IH cooking heater] 3-neck all IH So, Cooking is Hakadori. By light thermal sensor and horses capitalists control, Also finish delicious any menu. Cleaning is also easy to grill. Also to achieve energy saving in the ECO NAVI operation.

Kitchen.  [ECONAVI with dishwasher] Dirty sensor and tableware amount sensor, Detecting the degree of contamination and the amount. Do water-saving and power-saving at the same time, Provides excellent energy-saving effect. In power eradication mist, Detergency also greatly improve. Top surface operation is also convenient.
[ECONAVI with dishwasher] Dirty sensor and tableware amount sensor, Detecting the degree of contamination and the amount. Do water-saving and power-saving at the same time, Provides excellent energy-saving effect. In power eradication mist, Detergency also greatly improve. Top surface operation is also convenient.

Kitchen.  [Washing-integrated water purifier] Well-designed, High-performance model. In head tip push button of, You can easily switch of three ways, such as raw water and water purification.
[Washing-integrated water purifier] Well-designed, High-performance model. In head tip push button of, You can easily switch of three ways, such as raw water and water purification.

Kitchen.  [Quiet sink] Sheet pasted on the back of the sink, Reduces the such as sound or shower of water splashing sound hits the dish. Adopt a simple stainless steel type is clean.
[Quiet sink] Sheet pasted on the back of the sink, Reduces the such as sound or shower of water splashing sound hits the dish. Adopt a simple stainless steel type is clean.

Kitchen.  [Soft closing rail specification] Gently absorb the impact when closing. Even without focusing closes smoothly. Floor unit out a simple slide-type.  ※ Except for the small drawer of cooking equipment Horizontal
[Soft closing rail specification] Gently absorb the impact when closing. Even without focusing closes smoothly. Floor unit out a simple slide-type. ※ Except for the small drawer of cooking equipment Horizontal

Bathing-wash room

Bathing-wash room.  [BATH ROOM] When you design the bathroom with ergonomic and aesthetic sensibility, It has evolved so far. Untie solve soften the mind and body, Achieve a gorgeous relaxation scene.
[BATH ROOM] When you design the bathroom with ergonomic and aesthetic sensibility, It has evolved so far. Untie solve soften the mind and body, Achieve a gorgeous relaxation scene.

Bathing-wash room.  [Bathroom ventilation heating dryer] Night also let the clothes dry out on a rainy day. It is possible to warm the bathroom before bathing, Winter comfort. Effective also in dehumidification in the bathroom, Also prevents mold and condensation.
[Bathroom ventilation heating dryer] Night also let the clothes dry out on a rainy day. It is possible to warm the bathroom before bathing, Winter comfort. Effective also in dehumidification in the bathroom, Also prevents mold and condensation.

Bathing-wash room.  [Visor counter Light Touch faucet] To widely visor counters that you can ensure the washing place, Set a well-designed thermo-faucet. Ease of use in the lever operation is intuitive.
[Visor counter Light Touch faucet] To widely visor counters that you can ensure the washing place, Set a well-designed thermo-faucet. Ease of use in the lever operation is intuitive.

Bathing-wash room.  [WASH ROOM] Appropriate to decorate the upper life scene high sensitivity design. Nor set Makeup, It begins in the always elegant atmosphere.
[WASH ROOM] Appropriate to decorate the upper life scene high sensitivity design. Nor set Makeup, It begins in the always elegant atmosphere.

Bathing-wash room.  [Swan-neck single-lever faucet] Graceful form of the image of a swan. Elegant dignity is born in the basin space. Water nor hot water temperature can be adjusted at the touch of a button.
[Swan-neck single-lever faucet] Graceful form of the image of a swan. Elegant dignity is born in the basin space. Water nor hot water temperature can be adjusted at the touch of a button.

Bathing-wash room.  [Clear proof counter] Hassui ・ It was formulated the first oil component, Adopt an organic glass-based new material. Cosmetics dirt firmly repelled, Keep the beauty of a wipe of the everyday.
[Clear proof counter] Hassui ・ It was formulated the first oil component, Adopt an organic glass-based new material. Cosmetics dirt firmly repelled, Keep the beauty of a wipe of the everyday.

Toilet

Toilet.  [TOILET] Interior resistance is improved, Toilet is renewed. Pleasant music flow, To healing space. It adheres also stylish hand washing counter.
[TOILET] Interior resistance is improved, Toilet is renewed. Pleasant music flow, To healing space. It adheres also stylish hand washing counter.

Toilet.  [easy ・ Easy clean toilet] Including electric clean lift-up of the patented, Clean toilet seat and clean nozzle, Beautiful pottery, etc., Equipped with a cleaning Easy function of advanced. (Same specifications)
[easy ・ Easy clean toilet] Including electric clean lift-up of the patented, Clean toilet seat and clean nozzle, Beautiful pottery, etc., Equipped with a cleaning Easy function of advanced. (Same specifications)

Toilet.  [Full automatic toilet seat] Open to approach, Closes and leaves. Opening and closing in the full auto without touching the hand. It is sanitary. Eliminating the Akeppanashi, Also effective in power saving. (Conceptual diagram)
[Full automatic toilet seat] Open to approach, Closes and leaves. Opening and closing in the full auto without touching the hand. It is sanitary. Eliminating the Akeppanashi, Also effective in power saving. (Conceptual diagram)

Interior

Interior. BED ROOM
BED ROOM

Interior. DEN
DEN

Interior. (Shared facilities ・ Common utility ・ Pet facility ・ Variety of services ・ Security ・ Earthquake countermeasures ・ Disaster-prevention measures ・ Building structure ・ Such as the characteristics of the building)
(Shared facilities ・ Common utility ・ Pet facility ・ Variety of services ・ Security ・ Earthquake countermeasures ・ Disaster-prevention measures ・ Building structure ・ Such as the characteristics of the building)

Shared facilities

Shared facilities.  [Sense of beauty to draw the city center in the background Shintei] A New landscape that is written to the familiar supposed to city center. It is projected vividly even in view of the coming and going people. Presence should assert precisely because mansion to be built on this land, "The Hiroshima ・ Accentuate the creative value of the mark ". (Exterior view)
[Sense of beauty to draw the city center in the background Shintei] A New landscape that is written to the familiar supposed to city center. It is projected vividly even in view of the coming and going people. Presence should assert precisely because mansion to be built on this land, "The Hiroshima ・ Accentuate the creative value of the mark ". (Exterior view)

Shared facilities.  [To Egataki value be determined, People are fascinated] Muted though the town is in breathing and integral bustle, Hallam the hot beating. Before long, dyed in the evening sun, 24 hours of urban down the curtain of the starry sky. Super wear the shine of metal and glass ・ Condos, It gives a fresh and vivid impression on the city landscape. (Exterior view)
[To Egataki value be determined, People are fascinated] Muted though the town is in breathing and integral bustle, Hallam the hot beating. Before long, dyed in the evening sun, 24 hours of urban down the curtain of the starry sky. Super wear the shine of metal and glass ・ Condos, It gives a fresh and vivid impression on the city landscape. (Exterior view)

Shared facilities.  [Aesthetics harboring in detail. Aesthetics that appears in the molding] It drew without any compromise of one point, Art of modeling. There Approaching deep in the chest in, There is a beauty of Force. Design and materials and color. These might truth of beauty begins to brew and blend together. While reflects the sparkle of the city, Emit a unique glow, It speaks the presence kind Naru rare. (Exterior view)
[Aesthetics harboring in detail. Aesthetics that appears in the molding] It drew without any compromise of one point, Art of modeling. There Approaching deep in the chest in, There is a beauty of Force. Design and materials and color. These might truth of beauty begins to brew and blend together. While reflects the sparkle of the city, Emit a unique glow, It speaks the presence kind Naru rare. (Exterior view)

Shared facilities.  [ENTRANCE] Spread to the other side of the door, Stage of excellence. Volupte taste the ultra-urban life. (Rendering)
[ENTRANCE] Spread to the other side of the door, Stage of excellence. Volupte taste the ultra-urban life. (Rendering)

Shared facilities.  [ENTRANCE HALL] I greeted the VIP, Appropriate to send, Co-star of sophistication and elegance. (Rendering)
[ENTRANCE HALL] I greeted the VIP, Appropriate to send, Co-star of sophistication and elegance. (Rendering)

Security

Security.  [Secom ・ Mansion Security Careers] Secom up a notch in order to spend in peace the city life ・ Adopt an apartment security. Auto-lock is confirmed visitors in the intercom in the dwelling unit. Rest assured that can be checked at the entrance and the entrance of a total of three locations. (Conceptual diagram + same specifications)
[Secom ・ Mansion Security Careers] Secom up a notch in order to spend in peace the city life ・ Adopt an apartment security. Auto-lock is confirmed visitors in the intercom in the dwelling unit. Rest assured that can be checked at the entrance and the entrance of a total of three locations. (Conceptual diagram + same specifications)

Security.  [surveillance camera] To monitor the suspicious person at all times in a total of 12 units of the security cameras. (Same specifications)
[surveillance camera] To monitor the suspicious person at all times in a total of 12 units of the security cameras. (Same specifications)

Security.  [Watch the day-to-day peace of mind, 24-hour disaster prevention and crime prevention system] A major feature crime prevention and disaster prevention of the height of the apartment. In the "24-hour disaster prevention and crime prevention system" of advanced, It senses an alarm when such occurs event fire, Sokuho the security company and the control room online. It deals with the speedy. (Conceptual diagram)
[Watch the day-to-day peace of mind, 24-hour disaster prevention and crime prevention system] A major feature crime prevention and disaster prevention of the height of the apartment. In the "24-hour disaster prevention and crime prevention system" of advanced, It senses an alarm when such occurs event fire, Sokuho the security company and the control room online. It deals with the speedy. (Conceptual diagram)

Security.  [Intercom with TV monitor] You can see the visitors in the image and sound. (Same specifications)
[Intercom with TV monitor] You can see the visitors in the image and sound. (Same specifications)

Security.  [Entrance door magnet sensor] Installing a magnet sensor to the entrance door of all dwelling units. Report to the security company with an alarm and security set in the illegal dwelling unit intrusion at the time occurs. (Same specifications)
[Entrance door magnet sensor] Installing a magnet sensor to the entrance door of all dwelling units. Report to the security company with an alarm and security set in the illegal dwelling unit intrusion at the time occurs. (Same specifications)

Security.  [Touch key] Check the visitors in the locked door of the two locations. It prevents suspicious person of intrusion. Residents, Carry a touch key, Only in unlocking close to the touch key reader. (Same specifications)
[Touch key] Check the visitors in the locked door of the two locations. It prevents suspicious person of intrusion. Residents, Carry a touch key, Only in unlocking close to the touch key reader. (Same specifications)

Building structure

Building structure.  [Durable piling method ・ Improving the earthquake resistance] In comfortable and safe residence, Durability of the building ・ Seismic resistance is essential. In advance to conduct an in-depth geological survey, Implement the foundation work by the site construction pile to reach the pile until the strong support ground of the ground about 26m. To achieve excellent earthquake resistance. (Conceptual diagram)
[Durable piling method ・ Improving the earthquake resistance] In comfortable and safe residence, Durability of the building ・ Seismic resistance is essential. In advance to conduct an in-depth geological survey, Implement the foundation work by the site construction pile to reach the pile until the strong support ground of the ground about 26m. To achieve excellent earthquake resistance. (Conceptual diagram)

Building structure.  [Double floor ・ To produce a comfortable living with a double ceiling] Upper and lower floors of the dwelling unit is sandwiched between the concrete and the air layer of 200mm double floor ・ It was made to double the ceiling specification. In addition to maintenance can be easily, You can also expect improvement of sound insulation. (Conceptual diagram)
[Double floor ・ To produce a comfortable living with a double ceiling] Upper and lower floors of the dwelling unit is sandwiched between the concrete and the air layer of 200mm double floor ・ It was made to double the ceiling specification. In addition to maintenance can be easily, You can also expect improvement of sound insulation. (Conceptual diagram)

Building structure.  [Thermal insulation ・ The outer wall of the excellent metal panel to the design of (south)] Outer wall by having a thickness of 100mm ALC and metal panel, Improved sound insulation and thermal insulation properties. Design shine in urban landscape is also attractive. (Conceptual diagram)
[Thermal insulation ・ The outer wall of the excellent metal panel to the design of (south)] Outer wall by having a thickness of 100mm ALC and metal panel, Improved sound insulation and thermal insulation properties. Design shine in urban landscape is also attractive. (Conceptual diagram)

Building structure.  [Full flat floor] Eliminate a step in the dwelling unit, except for the front door. To prevent in advance a fall by stumbling. (Conceptual diagram)
[Full flat floor] Eliminate a step in the dwelling unit, except for the front door. To prevent in advance a fall by stumbling. (Conceptual diagram)

Building structure.  [High thermal insulation effect, Condensation also inhibit multi-layer glass] Adopt a multi-layer glass in all the windows in the dwelling unit. Hard to the outside air temperature is transmitted to the interior, Provides excellent thermal insulation effect. In addition to heating and cooling costs can be reduced, Condensation will also be suppressed. (Conceptual diagram)
[High thermal insulation effect, Condensation also inhibit multi-layer glass] Adopt a multi-layer glass in all the windows in the dwelling unit. Hard to the outside air temperature is transmitted to the interior, Provides excellent thermal insulation effect. In addition to heating and cooling costs can be reduced, Condensation will also be suppressed. (Conceptual diagram)

Building structure.  [Peace of mind and reliability of testimony. Get the housing performance evaluation report] We have received a housing performance evaluation by the Minister of Land, Infrastructure and Transport registration of third-party evaluation institutions. Strict site inspection is carried out even at the time of or during completion construction, To ensure the safety and trust.  ※ For more information see "Housing term large Dictionary"
[Peace of mind and reliability of testimony. Get the housing performance evaluation report] We have received a housing performance evaluation by the Minister of Land, Infrastructure and Transport registration of third-party evaluation institutions. Strict site inspection is carried out even at the time of or during completion construction, To ensure the safety and trust. ※ For more information see "Housing term large Dictionary"

Other

Other.  [It is the apartment that can live with a pet] You can also enjoy in the city center apartment living to be able to live with pets. The adorable important "family", Please spend every day to be soften hearts. (The photograph is an example of a pet that can be breeding. )
[It is the apartment that can live with a pet] You can also enjoy in the city center apartment living to be able to live with pets. The adorable important "family", Please spend every day to be soften hearts. (The photograph is an example of a pet that can be breeding. )

Other.  [Delivery Box adopts a high-grade computer-controlled] Set up a home delivery box in the first floor of the Hall. Receipt of luggage, such as mail order even at the time of absence ・ You can store, It is reliable facilities in absence tend to home. (Same specifications)
[Delivery Box adopts a high-grade computer-controlled] Set up a home delivery box in the first floor of the Hall. Receipt of luggage, such as mail order even at the time of absence ・ You can store, It is reliable facilities in absence tend to home. (Same specifications)

Other.  [Floor sound insulation grade] Adopt a high soundproof effect LL-45 grade. Was considered so that life sound anxious are unlikely to be perceived. (Same specifications)
[Floor sound insulation grade] Adopt a high soundproof effect LL-45 grade. Was considered so that life sound anxious are unlikely to be perceived. (Same specifications)

Surrounding environment

Surrounding environment. Astram "Kenchomae" station (about 250m ・ 4-minute walk)
Astram "Kenchomae" station (about 250m ・ 4-minute walk)

Surrounding environment. Hiroshima Electric Railway "Kamiya-cho Higashi" Dentoma (about 20m ・ 1-minute walk)
Hiroshima Electric Railway "Kamiya-cho Higashi" Dentoma (about 20m ・ 1-minute walk)

Surrounding environment. Hiroshima prefectural office (about 230m ・ A 3-minute walk)
Hiroshima prefectural office (about 230m ・ A 3-minute walk)

Surrounding environment. Sogo Hiroshima store (about 170m ・ A 3-minute walk)
Sogo Hiroshima store (about 170m ・ A 3-minute walk)

Surrounding environment. Pacela ・ Motomachi Credo (about 280m ・ 4-minute walk)
Pacela ・ Motomachi Credo (about 280m ・ 4-minute walk)

Surrounding environment. Kamiyachō Shareo (about 20m ・ 1-minute walk)
Kamiyachō Shareo (about 20m ・ 1-minute walk)

Surrounding environment. Hiroshima City Hospital (about 370m ・ A 5-minute walk)
Hiroshima City Hospital (about 370m ・ A 5-minute walk)

Floor: 1LDK, occupied area: 59.04 sq m, Price: 30.8 million yen

Floor: 1LDK, occupied area: 59.04 sq m, Price: 30.8 million yen
Floor: 1LDK, occupied area: 59.04 sq m, Price: 30.8 million yen


Location