New Apartments » Chugoku » Okayama Prefecture » Kita-ku


Property name
Grace Mansion Nakasange park
Time residents
2015 end of March plan
Price
25,300,000 yen ~ 46,100,000 yen
Floor plan
3LDK ~ 4LDK
Units sold
18 units
Occupied area
70.25 sq m ~ 96.5 sq m , Including trunk room
Address
Okayama, Okayama Prefecture, Kita-ku, Nakasange 1-4-107
Traffic
JR Sanyo Line "Okayama" walk 13 minutes
Sale schedule
First-come-first-served basis application accepted in the application accepted location / Ryobi Mansion Gallery application acceptance time / 10:00AM ~ 6:00 PM ※ When the application is, Seal (private seal), Resident card (which was described of all the households), Income certificate (two years of the most recent), Please bring identification documents (driver's license or health insurance card).
Completion date
2015 end of February schedule
Number of units
18 units
Most price range
28 million yen ・ 32 million yen (each 2 units)
Administrative expense
4800 yen ~ 6700 yen / Month
Repair reserve
6100 yen ~ 8400 yen / Month
Repair reserve fund
485,000 yen ~ 667,000 yen (lump sum)
Other area
Balcony area: 11.43 sq m ~ 12.77 sq m , Service balcony area: 3.92 sq m ~ 5.03 sq m , Alcove area: 2.48 sq m ~ 3.31 sq m
Other limitations
Fire zones, Urbanization promotion area
Property type
Mansion
Total units
53 units (other management personnel chamber 1 units)
Structure-storey
RC14 story
Construction area
542.42 sq m
Building floor area
5532.5 sq m
Site area
925.51 sq m
Site of the right form
Share of ownership
Use district
Commercial area
Parking lot
32 units on-site (fee 11,000 yen ~ 16,000 yen / Month)
Bicycle-parking space
106 cars (100 yen fee ~ 150 yen / Month)
Bike shelter
4 cars (fee 1000 yen / Month)
Management form
Consignment (commuting)
Other overview
Building confirmation number: first ERI13037121 (2013 August 30, 2009)
About us
<Employer ・ Seller> Minister of Land, Infrastructure and Transport (2) No. 7778 (one company), Okayama Prefecture, Real Estate Association ※ China district Real Estate Fair Trade Council member Ryobi Holdings Co., Ltd. Ryobi Real Estate Company Okayama city north district Banzan cho 3-7 Ryobi Banzan cho Building 2F
Construction
(Ltd.) Ogura set
Management
Nippon Hauzuingu (Ltd.)


Surrounding environment

Surrounding environment. To all of the city center to the living area, Life filled with a sense of superiority and pride will start from here.  ※ In fact a somewhat different in those subjected to CG processing in Aerial (March 2013 shooting)
To all of the city center to the living area, Life filled with a sense of superiority and pride will start from here. ※ In fact a somewhat different in those subjected to CG processing in Aerial (March 2013 shooting)

Buildings and facilities

Buildings and facilities. Shine beautiful green scenery, Stately exterior design. In harmony with the lush beautiful downtown streets, Stylish, modern form. Its appearance to assert a certain presence is, It drifted unrivaled style, It gives you the joy and the status to live people. (Exterior view)
Shine beautiful green scenery, Stately exterior design. In harmony with the lush beautiful downtown streets, Stylish, modern form. Its appearance to assert a certain presence is, It drifted unrivaled style, It gives you the joy and the status to live people. (Exterior view)

Buildings and facilities. The lives of everyday, Production gently beautifully to. Space in pursuit of sophistication and quality. As welcoming even be your heart's content is family holiday usually, Pursuit of sophistication and quality, Beautiful attention to detail, gently. All the time to spend here, It will be elegant and bliss. (Entrance Hall Rendering)
The lives of everyday, Production gently beautifully to. Space in pursuit of sophistication and quality. As welcoming even be your heart's content is family holiday usually, Pursuit of sophistication and quality, Beautiful attention to detail, gently. All the time to spend here, It will be elegant and bliss. (Entrance Hall Rendering)

Surrounding environment

Surrounding environment. Higashinakayama under park (about 30m / 1-minute walk)
Higashinakayama under park (about 30m / 1-minute walk)

Surrounding environment. Tenmaya head office (about 280m / 4-minute walk)
Tenmaya head office (about 280m / 4-minute walk)

Surrounding environment. local ・ Mansion gallery guide map
local ・ Mansion gallery guide map

Kitchen

Kitchen.  [IH cooking heater] IH cooking heater that achieves high thermal efficiency is safe because it does not use fire ・ safety. Not only the beauty of the look, Also easy dirt care of after wiping easy to cook, such as boiling over. (All amenities are the same specification)
[IH cooking heater] IH cooking heater that achieves high thermal efficiency is safe because it does not use fire ・ safety. Not only the beauty of the look, Also easy dirt care of after wiping easy to cook, such as boiling over. (All amenities are the same specification)

Kitchen.  [Dishwasher] And set dishes in a comfortable position easy to slide drawer type. To dryness from dishwashing, It saves you the trouble of cleaning up. High water-saving effect compared to hand washing, The burden of household chores can also reduce.
[Dishwasher] And set dishes in a comfortable position easy to slide drawer type. To dryness from dishwashing, It saves you the trouble of cleaning up. High water-saving effect compared to hand washing, The burden of household chores can also reduce.

Kitchen.  [Slide storage] Drawer as far as it will go, Sliding storage that can efficiently organize, Features a soft close function to close impact on the less was smooth at the time of closing.
[Slide storage] Drawer as far as it will go, Sliding storage that can efficiently organize, Features a soft close function to close impact on the less was smooth at the time of closing.

Kitchen.  [Rectification Backed range hood] Adopt a range hood with a current plate in which the suction force becomes stronger. Since the enamel made that is easy to clean.
[Rectification Backed range hood] Adopt a range hood with a current plate in which the suction force becomes stronger. Since the enamel made that is easy to clean.

Kitchen.  [Wide sink] Wide sink frying pan or large dishes also can be washed without stress. Since the silent type, Water will reduce the I sound like.
[Wide sink] Wide sink frying pan or large dishes also can be washed without stress. Since the silent type, Water will reduce the I sound like.

Kitchen.  [Hand Shower Faucets] Telescopic hand shower faucet water is reach every corner of the sink, Also it helps to clean the sink.
[Hand Shower Faucets] Telescopic hand shower faucet water is reach every corner of the sink, Also it helps to clean the sink.

Bathing-wash room

Bathing-wash room.  [Three-sided mirror internal storage space] Interior of easy to see triple mirror in wide is plenty Maeru storage space and accessories. You can clean and organize the basin counter around.
[Three-sided mirror internal storage space] Interior of easy to see triple mirror in wide is plenty Maeru storage space and accessories. You can clean and organize the basin counter around.

Bathing-wash room.  [Single lever mixing faucet] cold ・ Smooth switching of hot water single lever type mixing faucet. Since the easy-to-use nozzle pull-out is also useful for cleaning of the bowl.
[Single lever mixing faucet] cold ・ Smooth switching of hot water single lever type mixing faucet. Since the easy-to-use nozzle pull-out is also useful for cleaning of the bowl.

Bathing-wash room.  [Bowl-integrated counter] Counter and the bowl is difficult to accumulate dirt because there is no seam shiny, Easy to clean.
[Bowl-integrated counter] Counter and the bowl is difficult to accumulate dirt because there is no seam shiny, Easy to clean.

Bathing-wash room.  [Bathroom] Everyone can relax, Bus was stuck to the ease-of-use rooms are also stuck to the safety of course functionality.
[Bathroom] Everyone can relax, Bus was stuck to the ease-of-use rooms are also stuck to the safety of course functionality.

Bathing-wash room.  [Bathroom heating dryer] The weather will not dry out the laundry without having to worry about. Also, It can increase comfort since the winter, such as can heating the entire bathroom before bathing.
[Bathroom heating dryer] The weather will not dry out the laundry without having to worry about. Also, It can increase comfort since the winter, such as can heating the entire bathroom before bathing.

Bathing-wash room.  [One-click shower ・ Slide bar] Spouting a single switch ・ Adopted water-saving shower that can stop water. A slide with a bar, which is free to change the height of the shower head.
[One-click shower ・ Slide bar] Spouting a single switch ・ Adopted water-saving shower that can stop water. A slide with a bar, which is free to change the height of the shower head.

Toilet

Toilet.  [Hanging cupboard] Such as toilet paper has provided the storage of firm Maeru enhancement.
[Hanging cupboard] Such as toilet paper has provided the storage of firm Maeru enhancement.

Toilet.  [Hand wash basin] At the top of the slim tank with a counter to feel the room and clean, We have established the wash-basin.
[Hand wash basin] At the top of the slim tank with a counter to feel the room and clean, We have established the wash-basin.

Toilet.  [Toilet remote control] Also refreshing to the eye because it is installed on the remote control to the wall, You can easily operated while sitting.
[Toilet remote control] Also refreshing to the eye because it is installed on the remote control to the wall, You can easily operated while sitting.

Other

Other.  [High thermal insulation thermal barrier multi-layer glass with UV cut function] To harmful UV rays by the mutual effect of special metal film and dry air layer, Also employs a double-glazing to enhance the heat insulation effect. Heating and cooling will also be more efficient. Excellent heat insulation to reduce the solar heat, Also prevents condensation caused by humidity difference between the indoor and outdoor, To achieve a more comfortable indoor environment.  ※ East side, North side has adopted the traditional double-glazing company. (Conceptual diagram)
[High thermal insulation thermal barrier multi-layer glass with UV cut function] To harmful UV rays by the mutual effect of special metal film and dry air layer, Also employs a double-glazing to enhance the heat insulation effect. Heating and cooling will also be more efficient. Excellent heat insulation to reduce the solar heat, Also prevents condensation caused by humidity difference between the indoor and outdoor, To achieve a more comfortable indoor environment. ※ East side, North side has adopted the traditional double-glazing company. (Conceptual diagram)

Other.  [Gas water heater (Eco Jaws)] Eco-Jaws and is, In technology to recover heat in the exhaust gas of about 200 ℃, which had been discarded prior to a secondary heat exchanger, Increase will dramatically the thermal efficiency. In previous household water heater, Although about 20 percent of the gas used was not wasted as heat dissipation and exhaust gas, About I to about 15% of the 20% loss that improved thermal efficiency of about 95% by recycling the secondary heat exchanger.
[Gas water heater (Eco Jaws)] Eco-Jaws and is, In technology to recover heat in the exhaust gas of about 200 ℃, which had been discarded prior to a secondary heat exchanger, Increase will dramatically the thermal efficiency. In previous household water heater, Although about 20 percent of the gas used was not wasted as heat dissipation and exhaust gas, About I to about 15% of the 20% loss that improved thermal efficiency of about 95% by recycling the secondary heat exchanger.

Other.  [Power collectively receiving system] Adopt a fee electricity tariff discount service "Smile Plan" using the (unit price) difference between the collective contract charge a separate subscription fee. As a result, regardless of the use of electricity, It has achieved electricity prices 10% of the equivalent discount. (Except for the common areas) like to think precisely because power liberalization era, It is a smart choice friendly advanced household.
[Power collectively receiving system] Adopt a fee electricity tariff discount service "Smile Plan" using the (unit price) difference between the collective contract charge a separate subscription fee. As a result, regardless of the use of electricity, It has achieved electricity prices 10% of the equivalent discount. (Except for the common areas) like to think precisely because power liberalization era, It is a smart choice friendly advanced household.

Shared facilities

Shared facilities.  [Gently leads from the park to the mansion, Approach of MidoriAya] Approach that beautiful green "Higashinakayama under park" was full of moisture that makes you feel as if it continued until mansion. There is, Color and the room full of passage that brings the landscape of the four seasons. Each time you Yuku street, It will be led to the peaceful comfort. (Entrance Rendering)
[Gently leads from the park to the mansion, Approach of MidoriAya] Approach that beautiful green "Higashinakayama under park" was full of moisture that makes you feel as if it continued until mansion. There is, Color and the room full of passage that brings the landscape of the four seasons. Each time you Yuku street, It will be led to the peaceful comfort. (Entrance Rendering)

Security

Security.  [24-hour automatic monitoring security system] Equipped with a fire alarm in each dwelling unit, If the event sensor detects an abnormality, Report to at the same time a security company and a warning sound is in the room. Night and is safe even when you go out. (Conceptual diagram)
[24-hour automatic monitoring security system] Equipped with a fire alarm in each dwelling unit, If the event sensor detects an abnormality, Report to at the same time a security company and a warning sound is in the room. Night and is safe even when you go out. (Conceptual diagram)

Security.  [Double auto-lock system] Adopt a double auto-lock system, which was installed an auto-lock to the entrance and elevator hall. It is the specification of urban apartment unique in consideration for security. (Conceptual diagram)
[Double auto-lock system] Adopt a double auto-lock system, which was installed an auto-lock to the entrance and elevator hall. It is the specification of urban apartment unique in consideration for security. (Conceptual diagram)

Security.  [Entrance door double lock] The entrance is provided with two of the cylinder lock, It is further double lock system with enhanced crime prevention.
[Entrance door double lock] The entrance is provided with two of the cylinder lock, It is further double lock system with enhanced crime prevention.

Security.  [Auto-lock with color monitor] Installing the intercom with color monitor in each dwelling unit. After the visitors to set entrance was confirmed by video and audio, In auto-lock system to unlocking, Annoying door-to-door sales Ya, It prevents the admission of a suspicious person.
[Auto-lock with color monitor] Installing the intercom with color monitor in each dwelling unit. After the visitors to set entrance was confirmed by video and audio, In auto-lock system to unlocking, Annoying door-to-door sales Ya, It prevents the admission of a suspicious person.

Security.  [Crime prevention thumb turn] When you state the switch is pressed in the center of the thumb you can turn the thumb-turn. In the case of unlocking operation in everyday, Since it is possible to press the switch in a natural way, You can be unlocked in the sense to manipulate the usual thumb.
[Crime prevention thumb turn] When you state the switch is pressed in the center of the thumb you can turn the thumb-turn. In the case of unlocking operation in everyday, Since it is possible to press the switch in a natural way, You can be unlocked in the sense to manipulate the usual thumb.

Security.  [Picking measures] The entrance, 100 billion ways replicated in key pattern of the difficult key, Adopted dimple cylinder lock to lock the inner cylinder to double. Prevent picking in advance, It enhances the peace of mind of living. Also, Reversible key exploitable also insert on the front and back either direction, It has adopted the W lock to further improve the security of. (Conceptual diagram)
[Picking measures] The entrance, 100 billion ways replicated in key pattern of the difficult key, Adopted dimple cylinder lock to lock the inner cylinder to double. Prevent picking in advance, It enhances the peace of mind of living. Also, Reversible key exploitable also insert on the front and back either direction, It has adopted the W lock to further improve the security of. (Conceptual diagram)

Security.  [Installing security cameras to watch the daily peace of mind] entrance, Entrance to the building, Such as in the elevator has set up a security camera. It has extended sense of security of living in consideration for the meticulous crime prevention. (All amenities of the web is the same specification)
[Installing security cameras to watch the daily peace of mind] entrance, Entrance to the building, Such as in the elevator has set up a security camera. It has extended sense of security of living in consideration for the meticulous crime prevention. (All amenities of the web is the same specification)

Security.  [Keyless entry system] To release the electric lock by holding the front door key of each dwelling unit to auto-lock the control panel, It has adopted a keyless entry system. Easy to handle for those who and children of our elderly is safe system.
[Keyless entry system] To release the electric lock by holding the front door key of each dwelling unit to auto-lock the control panel, It has adopted a keyless entry system. Easy to handle for those who and children of our elderly is safe system.

Building structure

Building structure.  [Double wall] Partition wall of the toilet and adjacent room is, The glass wool was charged between both sides plasterboard double-covered, It has extended sound insulation. I do not mind the sound of the next room, It is a comfortable structure. (Conceptual diagram)
[Double wall] Partition wall of the toilet and adjacent room is, The glass wool was charged between both sides plasterboard double-covered, It has extended sound insulation. I do not mind the sound of the next room, It is a comfortable structure. (Conceptual diagram)

Building structure.  [outer wall ・ Tosakaikabe] The wall facing to the outside, Providing a housing performance evaluation "energy-saving measures" 4 grade 40mm insulation, It has extended comfort. Tosakaikabe residential performance evaluation of the sound from the next dwelling unit "sound environment ・ Exceeds the reference of grade 3 in the transmission loss grade (Sakaikabe) "(180mm) has become a 200mm. (Conceptual diagram)
[outer wall ・ Tosakaikabe] The wall facing to the outside, Providing a housing performance evaluation "energy-saving measures" 4 grade 40mm insulation, It has extended comfort. Tosakaikabe residential performance evaluation of the sound from the next dwelling unit "sound environment ・ Exceeds the reference of grade 3 in the transmission loss grade (Sakaikabe) "(180mm) has become a 200mm. (Conceptual diagram)

Building structure.  [Sound insulation performance T-1 sash] To ensure the privacy of a quiet living environment and living, The window, The external sound has adopted a sash of sound insulation performance T-1 grade to mitigate 25 db. This, Housing Performance Evaluation "sound environment ・ Transmission loss grade (outer wall opening) "has acquired a 2 grade. (Conceptual diagram)
[Sound insulation performance T-1 sash] To ensure the privacy of a quiet living environment and living, The window, The external sound has adopted a sash of sound insulation performance T-1 grade to mitigate 25 db. This, Housing Performance Evaluation "sound environment ・ Transmission loss grade (outer wall opening) "has acquired a 2 grade. (Conceptual diagram)

Building structure.  [Substructure ・ Supporting soil] Basis to support the building is driving the support piles to a very stable support layer of underground, Firmly support a robust building of reinforced concrete. Further adopt a welding closed shear reinforcement to the shear reinforcement of columns and beams. It has a strong structure to sway at the time of the earthquake, It boasts a high level of earthquake resistance. (Conceptual diagram)
[Substructure ・ Supporting soil] Basis to support the building is driving the support piles to a very stable support layer of underground, Firmly support a robust building of reinforced concrete. Further adopt a welding closed shear reinforcement to the shear reinforcement of columns and beams. It has a strong structure to sway at the time of the earthquake, It boasts a high level of earthquake resistance. (Conceptual diagram)

Building structure.  [Double reinforcement] Rebar has adopted a double reinforcement to assemble in double assembled in a grid pattern in the reinforcement of all of the wall. (Conceptual diagram)
[Double reinforcement] Rebar has adopted a double reinforcement to assemble in double assembled in a grid pattern in the reinforcement of all of the wall. (Conceptual diagram)

Building structure.  [Sheath tube header method] Water supply pipe adopts header method. kitchen ・ Water supply in the bathroom, such as water around ・ Because the hot water supply pipe has been piping separately from the header (centralized branch), Change of water around has become easier at the time of future maintenance and renovation. further, It has extended workability in the sheath tube method. (Conceptual diagram)
[Sheath tube header method] Water supply pipe adopts header method. kitchen ・ Water supply in the bathroom, such as water around ・ Because the hot water supply pipe has been piping separately from the header (centralized branch), Change of water around has become easier at the time of future maintenance and renovation. further, It has extended workability in the sheath tube method. (Conceptual diagram)

Building structure.  [Hollow void slabs floor] Floor structure is sound insulation, Excellent thermal insulation, Not Deppara further small beams on the ceiling, Adopted Void Slab structure to achieve a neat space. Slab thickness is 250 ~ We have to have a 300mm and a sufficient strength and durability. (Conceptual diagram)
[Hollow void slabs floor] Floor structure is sound insulation, Excellent thermal insulation, Not Deppara further small beams on the ceiling, Adopted Void Slab structure to achieve a neat space. Slab thickness is 250 ~ We have to have a 300mm and a sufficient strength and durability. (Conceptual diagram)

Other

Other.  [Clean station (first floor)] On the first floor east side, Installing a clean station which can be a 24-hour full-time garbage disposal. Trash that was brought in from each dwelling unit is, Attendant is out ・ Since the processes, Time also to achieve a clean living environment to.
[Clean station (first floor)] On the first floor east side, Installing a clean station which can be a 24-hour full-time garbage disposal. Trash that was brought in from each dwelling unit is, Attendant is out ・ Since the processes, Time also to achieve a clean living environment to.

Other.  [Delivery Box] Set up a home delivery box that can be received courier even when you go out. Able to confirm the presence or absence of the delivery at the intercom, Eliminate the hassle of time of absence. It is safe even in the absence tend to geek.
[Delivery Box] Set up a home delivery box that can be received courier even when you go out. Able to confirm the presence or absence of the delivery at the intercom, Eliminate the hassle of time of absence. It is safe even in the absence tend to geek.

Other.  [Pet Friendly] Installing a pet foot washing facilities that are available, such as after the pet walk. Also, It is in the elevator equipped with facilities such as pet announcement button, And finely consideration to other your tenants by the management contract.  ※ In the breeding, There are a number and types such as certain rules. For more information, please contact the person in charge. (Example: one dwelling unit per, Rearing a small dog cat rabbit class until two dogs possible) ※ Published photograph of is an example of a pet that can be breeding.
[Pet Friendly] Installing a pet foot washing facilities that are available, such as after the pet walk. Also, It is in the elevator equipped with facilities such as pet announcement button, And finely consideration to other your tenants by the management contract. ※ In the breeding, There are a number and types such as certain rules. For more information, please contact the person in charge. (Example: one dwelling unit per, Rearing a small dog cat rabbit class until two dogs possible) ※ Published photograph of is an example of a pet that can be breeding.

Surrounding environment

Surrounding environment. JR Okayama Station (about 1000m / Walk 13 minutes)
JR Okayama Station (about 1000m / Walk 13 minutes)

Surrounding environment. "Castle" Dentoma (about 240m / A 3-minute walk)
"Castle" Dentoma (about 240m / A 3-minute walk)

Surrounding environment. Okayama Charlottesville (about 140m / A 2-minute walk)
Okayama Charlottesville (about 140m / A 2-minute walk)

Surrounding environment. Okayama Central Junior High School (about 420m / 6-minute walk)
Okayama Central Junior High School (about 420m / 6-minute walk)

Surrounding environment. Okayama Central Elementary School (about 680m / A 9-minute walk)
Okayama Central Elementary School (about 680m / A 9-minute walk)

Surrounding environment. Fuka抵 nursery school (about 580m / An 8-minute walk)
Fuka抵 nursery school (about 580m / An 8-minute walk)

Surrounding environment. Kawasaki hospital (about 480m / 6-minute walk)
Kawasaki hospital (about 480m / 6-minute walk)

Surrounding environment. Okayama Central Post Office (about 360m / A 5-minute walk)
Okayama Central Post Office (about 360m / A 5-minute walk)

Surrounding environment. Okayama Prefectural Library (about 750m / A 10-minute walk)
Okayama Prefectural Library (about 750m / A 10-minute walk)

Surrounding environment. Hayashibara Museum of Art (about 680m / A 9-minute walk)
Hayashibara Museum of Art (about 680m / A 9-minute walk)

Floor: 4LDK + Wic, the occupied area: 87.46 sq m, Price: 32,900,000 yen ~ 40,300,000 yen

Floor: 4LDK + Wic, the occupied area: 87.46 sq m, Price: 32,900,000 yen ~ 40,300,000 yen
Floor: 4LDK + Wic, the occupied area: 87.46 sq m, Price: 32,900,000 yen ~ 40,300,000 yen

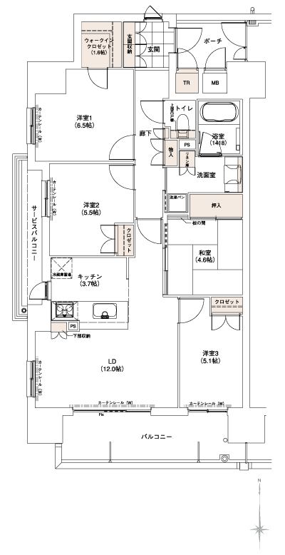
Floor: 3LDK + Wic + MC, occupied area: 87.46 sq m, Price: 32,900,000 yen ~ 40,300,000 yen

Floor: 3LDK + Wic + MC, occupied area: 87.46 sq m, Price: 32,900,000 yen ~ 40,300,000 yen
Floor: 3LDK + Wic + MC, occupied area: 87.46 sq m, Price: 32,900,000 yen ~ 40,300,000 yen

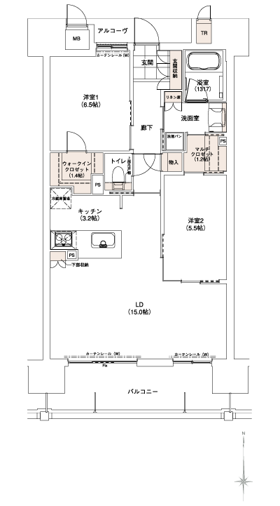
Floor: 3LDK + Wic, the occupied area: 70.25 sq m, Price: 25,300,000 yen ~ 29,700,000 yen

Floor: 3LDK + Wic, the occupied area: 70.25 sq m, Price: 25,300,000 yen ~ 29,700,000 yen
Floor: 3LDK + Wic, the occupied area: 70.25 sq m, Price: 25,300,000 yen ~ 29,700,000 yen

Floor: 2LDK + Wic + MC, occupied area: 70.25 sq m, Price: 25,300,000 yen ~ 29,700,000 yen

Floor: 2LDK + Wic + MC, occupied area: 70.25 sq m, Price: 25,300,000 yen ~ 29,700,000 yen
Floor: 2LDK + Wic + MC, occupied area: 70.25 sq m, Price: 25,300,000 yen ~ 29,700,000 yen

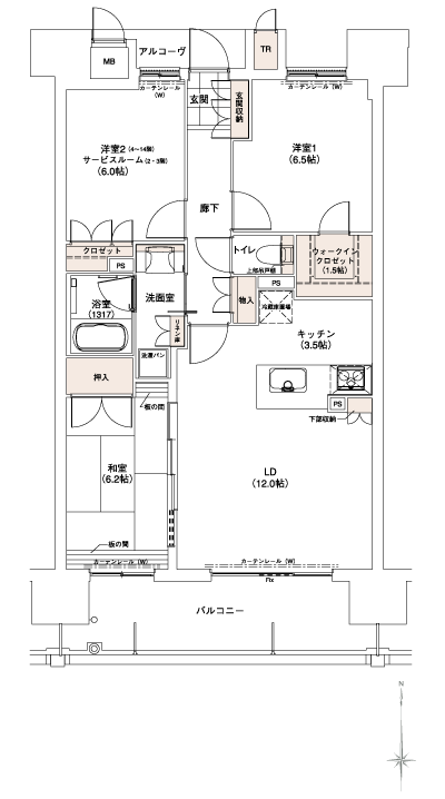
Floor: 3LDK + Wic (2 ・ 3 floor 2LDK + SR + Wic), occupied area: 75.79 sq m, Price: 28.8 million yen ~ 32,400,000 yen

Floor: 3LDK + Wic (2 ・ 3 floor 2LDK + SR + Wic), occupied area: 75.79 sq m, Price: 28.8 million yen ~ 32,400,000 yen
Floor: 3LDK + Wic (2 ・ 3 floor 2LDK + SR + Wic), occupied area: 75.79 sq m, Price: 28.8 million yen ~ 32,400,000 yen

Floor: 2LDK + Wic + S (2 ・ 3 floor 1LDK + SR + Wic + S), the occupied area: 75.79 sq m, Price: 28.8 million yen ~ 32,400,000 yen

Floor: 2LDK + Wic + S (2 ・ 3 floor 1LDK + SR + Wic + S), the occupied area: 75.79 sq m, Price: 28.8 million yen ~ 32,400,000 yen
Floor: 2LDK + Wic + S (2 ・ 3 floor 1LDK + SR + Wic + S), the occupied area: 75.79 sq m, Price: 28.8 million yen ~ 32,400,000 yen

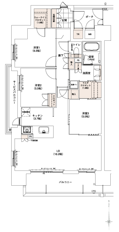
Floor: 4LDK + Wic + Sic, the area occupied: 96.5 sq m, Price: 39,300,000 yen ~ 46,100,000 yen

Floor: 4LDK + Wic + Sic, the area occupied: 96.5 sq m, Price: 39,300,000 yen ~ 46,100,000 yen
Floor: 4LDK + Wic + Sic, the area occupied: 96.5 sq m, Price: 39,300,000 yen ~ 46,100,000 yen

Floor: 3LDK + Wic + Sic, the area occupied: 96.5 sq m, Price: 39,300,000 yen ~ 46,100,000 yen

Floor: 3LDK + Wic + Sic, the area occupied: 96.5 sq m, Price: 39,300,000 yen ~ 46,100,000 yen
Floor: 3LDK + Wic + Sic, the area occupied: 96.5 sq m, Price: 39,300,000 yen ~ 46,100,000 yen

Floor: 3LDK + Wic + MC + Sic, the area occupied: 96.5 sq m, Price: 39,300,000 yen ~ 46,100,000 yen

Floor: 3LDK + Wic + MC + Sic, the area occupied: 96.5 sq m, Price: 39,300,000 yen ~ 46,100,000 yen
Floor: 3LDK + Wic + MC + Sic, the area occupied: 96.5 sq m, Price: 39,300,000 yen ~ 46,100,000 yen

Floor: 2LDK + Wic + Sic + D, the area occupied: 96.5 sq m, Price: 39,300,000 yen ~ 46,100,000 yen

Floor: 2LDK + Wic + Sic + D, the area occupied: 96.5 sq m, Price: 39,300,000 yen ~ 46,100,000 yen
Floor: 2LDK + Wic + Sic + D, the area occupied: 96.5 sq m, Price: 39,300,000 yen ~ 46,100,000 yen


Location