New Apartments » Kansai » Osaka prefecture » Kita-ku


Property name
Dio Umeda
Time residents
March 2014 in late schedule
Floor plan
2LDK ・ 3LDK
Units sold
Undecided
Occupied area
54.15 sq m ~ 70.71 sq m
Address
Osaka-shi, Osaka, Kita-ku, Nakazakinishi 2-chome, 32 No. 9 ・ 32 No. 18
Traffic
Subway Midosuji Line "Umeda" walk 8 minutes
Subway Tanimachi Line "Nakazakicho" walk 2 minutes
Hankyu Kobe Line "Umeda" walk 7 minutes
Sale schedule
Sales scheduled to begin in early January ※ price ・ Units sold is undecided. Property data for sale dwelling unit has not yet been finalized in the third trimester are inscribed thing of all sales target dwelling unit of the third stage and later. Determination information is explicitly in the new sale advertising. Application of the contract or reservation to sales start, And actions that lead to ensure the application order can not be absolutely
Completion date
February 2014 late schedule
Number of units
Undecided
Predetermined price
Undecided
Will most price range
Undecided
Administrative expense
An unspecified amount
Management reserve
An unspecified amount
Repair reserve
An unspecified amount
Repair reserve fund
An unspecified amount
Other area
Balcony area: 7.05 sq m ~ 10.54 sq m , Alcove area: 2.17 sq m ~ 6.92 sq m
Other
※ Because the property is capable of delivery by the end of March, Price is applied to 5% consumption tax rate. Additional information is available at the clerk
Price
28.6 million yen ~ 45,500,000 yen
Property type
Mansion
Total units
56 units
Structure-storey
RC15 story
Construction area
381.59 sq m
Building floor area
4106.93 sq m
Site area
574.11 sq m
Site of the right form
Share of ownership
Use district
Commercial area
Parking lot
10 cars on-site (fee 20,000 yen ~ 25,000 yen / Month, Mechanical)
Bicycle-parking space
56 cars (100 yen fee ~ 300 yen / Month)
Bike shelter
2 cars (fee 2000 yen / Month)
Mini bike shelter
7 cars (fee 800 yen ・ 1000 yen / Month)
Management form
Consignment (commuting)
Other overview
Building confirmation number: No. KKK01203999 (2012 October 30, 2008)
About us
<Employer ・ Seller> Minister of Land, Infrastructure and Transport (1) No. 8213 Construction license number Governor of Osaka (JP -23) No. 45721 (company) Osaka Building Lots and Buildings Transaction Business Association (Corporation) Kinki district Real Estate Fair Trade Council member (One company) Osaka Housing Industry Association Ltd. Sanyu urban development Head office Yubinbango590-0950 Sakai, Osaka Sakai-ku, Kainochonishi 1 chome No. 1 No. 31 <employer ・ Seller> governor of Osaka (1) No. 56012, Ltd. S & T Holdings Yubinbango541-0051 Chuo-ku, Osaka-shi, Bingo-cho 3-chome No. 3 No. 3 <marketing alliance (agency)> governor of Osaka (7) No. 30141 (company) Osaka Building Lots and Buildings Transaction Business Association (Corporation) Kinki district Real Estate Fair Trade Council member (Corporation) National realty business guarantee Association Ltd. Holmes Yubinbango540-0037 Chuo-ku, Osaka Uchihirano-cho 2-chome, 3-14 Lions building Otemae 6F
Construction
Ltd. Jinshan builders
Management
Kintetsu Housing Management Co., Ltd.


Birth to a premium position with hidden all the charm and convenience. Empty around local shooting CG process, such as local to the (July 2012 shooting) (actual and slightly different)
Birth to a premium position with hidden all the charm and convenience. Empty around local shooting CG process, such as local to the (July 2012 shooting) (actual and slightly different)

Grand Front Osaka ・ Osaka Station City (JR Osaka Station). shopping, Restaurant, Topic of the spot cinema and various facilities are concentrated. Also go out to feel free event to be held at the Grand Front Osaka
Grand Front Osaka ・ Osaka Station City (JR Osaka Station). shopping, Restaurant, Topic of the spot cinema and various facilities are concentrated. Also go out to feel free event to be held at the Grand Front Osaka

Umeda is life stages. Living environment with this much of the high level of convenience. Relocation and marriage, Future, such as living with parents, It may lend as no longer rent to live, It seems possible to appeal to the location (local guide map)
Umeda is life stages. Living environment with this much of the high level of convenience. Relocation and marriage, Future, such as living with parents, It may lend as no longer rent to live, It seems possible to appeal to the location (local guide map)

shopping, Meal, cinema, Anything set in the immediate vicinity, You can polish the sensibility while touching on the latest trend information (CG processing local to Heppunabio (about 360m) side of the photo, In fact a slightly different)
shopping, Meal, cinema, Anything set in the immediate vicinity, You can polish the sensibility while touching on the latest trend information (CG processing local to Heppunabio (about 360m) side of the photo, In fact a slightly different)

Including "Hankyu Department Store", Hanshin Department Store, Daimaru department store, Near the JR Osaka Mitsukoshi Isetan department store and four department store. According to the characteristics of each store you can choose the store to enjoy shopping (all JR Osaka Station)
Including "Hankyu Department Store", Hanshin Department Store, Daimaru department store, Near the JR Osaka Mitsukoshi Isetan department store and four department store. According to the characteristics of each store you can choose the store to enjoy shopping (all JR Osaka Station)

The proximity of the 8-minute walk to Umeda. Umeda landscape will spread to reach such proximity of the hand (view photo (October 2012 shooting of the 15-floor local equivalent to the E-type balcony) CG synthesizing, You actual and vary)
The proximity of the 8-minute walk to Umeda. Umeda landscape will spread to reach such proximity of the hand (view photo (October 2012 shooting of the 15-floor local equivalent to the E-type balcony) CG synthesizing, You actual and vary)

Heavy at the door of the modern attire is, As well as a residence of the face, Also it represents the sensibility of the people who live. Sophisticated design is, Return home of people who live, Magnificent and welcomed high guests to visit
Heavy at the door of the modern attire is, As well as a residence of the face, Also it represents the sensibility of the people who live. Sophisticated design is, Return home of people who live, Magnificent and welcomed high guests to visit

Spend a relaxed private time in the middle of the colorful and exciting city center, Fine and relaxed living ・ Dining (all indoor photo E-type model room ・ Some Includes optional)
Spend a relaxed private time in the middle of the colorful and exciting city center, Fine and relaxed living ・ Dining (all indoor photo E-type model room ・ Some Includes optional)

Heavy at the door of the modern attire is, As well as a residence of the face, Also it represents the sensibility of the people who live. Sophisticated design is, Return home of people who live, Magnificent and welcomed high guests to visit
Heavy at the door of the modern attire is, As well as a residence of the face, Also it represents the sensibility of the people who live. Sophisticated design is, Return home of people who live, Magnificent and welcomed high guests to visit

The main bedroom to incorporate plenty of light and wind in the two sides opening. Will be it will support the bliss of time corresponding to the various situations private space
The main bedroom to incorporate plenty of light and wind in the two sides opening. Will be it will support the bliss of time corresponding to the various situations private space

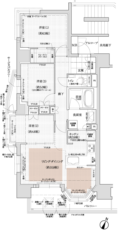
Facing south ・ 3 face lighting of the corner dwelling unit, 2WAY kitchen, Such as two-sided opening LD and the living room, Grant a comfortable life. E type ・ 3LDK Mato Illustration (occupied area 70.71 sq m  Balcony area 8.64 sq m)
Facing south ・ 3 face lighting of the corner dwelling unit, 2WAY kitchen, Such as two-sided opening LD and the living room, Grant a comfortable life. E type ・ 3LDK Mato Illustration (occupied area 70.71 sq m Balcony area 8.64 sq m)

Not only kept clean, Immersed in warm water, It will be important relax time to unwind and relax. Healing gently tired, Can also relaxation in the beauty sense adopt a "micro bubble Tornado"
Not only kept clean, Immersed in warm water, It will be important relax time to unwind and relax. Healing gently tired, Can also relaxation in the beauty sense adopt a "micro bubble Tornado"

The dining adopted the Earl of sash, Living incorporating the specification and attention to detail to the spread of relaxed space ・ dining. Home party also enjoy (all photos E-type model room ・ Some include a paid option)
The dining adopted the Earl of sash, Living incorporating the specification and attention to detail to the spread of relaxed space ・ dining. Home party also enjoy (all photos E-type model room ・ Some include a paid option)

Such as adopting the Motoishi tone counter top to enhance the interior of, Without removing the hand also in the space of water around, Kitchen in pursuit of comfort of the beautiful design and advanced. Low noise, Energy saving, Standard adopted clean dry dishwasher
Such as adopting the Motoishi tone counter top to enhance the interior of, Without removing the hand also in the space of water around, Kitchen in pursuit of comfort of the beautiful design and advanced. Low noise, Energy saving, Standard adopted clean dry dishwasher

Buildings and facilities

Buildings and facilities. To stimulate the downtown sensibility, Art of beauty is impressive (Exterior view)
To stimulate the downtown sensibility, Art of beauty is impressive (Exterior view)

Surrounding environment

Surrounding environment. Vibrant, Gather the latest trend, Live in the Umeda area. Hankyu taking advantage of the potential that a 7-minute walk to the "Umeda" station, Just follow obediently to the sensibility of "Some of my" in "among the Umeda", Working, play, Relax joy. Residence fulfill a style of living that only unobtainable in this place, "Dio Umeda". "Umenaka", It will be Hokorashiki words that connect you and Umeda (local guide map) ※ This map is an excerpt facility, Also we omit some road
Vibrant, Gather the latest trend, Live in the Umeda area. Hankyu taking advantage of the potential that a 7-minute walk to the "Umeda" station, Just follow obediently to the sensibility of "Some of my" in "among the Umeda", Working, play, Relax joy. Residence fulfill a style of living that only unobtainable in this place, "Dio Umeda". "Umenaka", It will be Hokorashiki words that connect you and Umeda (local guide map) ※ This map is an excerpt facility, Also we omit some road

Surrounding environment. Osaka Station City (JR Osaka Station). Attention of the spot, which opened in "Umekita" area ・ Grand Front Osaka (JR "Osaka" station directly connected)
Osaka Station City (JR Osaka Station). Attention of the spot, which opened in "Umekita" area ・ Grand Front Osaka (JR "Osaka" station directly connected)

Room and equipment

Room and equipment. Without removing the hand also in the water around space also said the basic performance of the dwelling, Pursuing the comfort of the advanced. Quality space, which pulled even sticking to the functional facilities and beauty, The day-to-day to smart, It gives you the beautiful fun-free joy (E type model room)
Without removing the hand also in the water around space also said the basic performance of the dwelling, Pursuing the comfort of the advanced. Quality space, which pulled even sticking to the functional facilities and beauty, The day-to-day to smart, It gives you the beautiful fun-free joy (E type model room)

Room and equipment. Greet the guest. Talk with partners. To support a variety of time to visit for day-to-day dynamism is, Tansei space where aesthetics of hospitality is lurking. Profound and modern attire entrance spoke the "case" of the people and the life that live, Chic look is beautiful entrance hall in which the black and the keynote is, Nestled of Yingbin is fragrant design (E type model room)
Greet the guest. Talk with partners. To support a variety of time to visit for day-to-day dynamism is, Tansei space where aesthetics of hospitality is lurking. Profound and modern attire entrance spoke the "case" of the people and the life that live, Chic look is beautiful entrance hall in which the black and the keynote is, Nestled of Yingbin is fragrant design (E type model room)

Buildings and facilities

Buildings and facilities. Entrance without removing remains were placed in a pocket or bag ・ Can unlock the elevator door "Tebra key" has been adopted (same specifications)
Entrance without removing remains were placed in a pocket or bag ・ Can unlock the elevator door "Tebra key" has been adopted (same specifications)

Living

Living.  [living ・ dining] Often said goodbye to the colorful and exciting city center time, Private space to change into my time. There is, Anyone without being disturbed as well, Place to express his own style and way of life at will. Also fun free time the heart quietly unwind, Also lively time for friends and family gather, Hope always want to be myself Rashiku, Mansion of sophistication that give the stylist our town. It is "Dio Umeda" (E type model room)
[living ・ dining] Often said goodbye to the colorful and exciting city center time, Private space to change into my time. There is, Anyone without being disturbed as well, Place to express his own style and way of life at will. Also fun free time the heart quietly unwind, Also lively time for friends and family gather, Hope always want to be myself Rashiku, Mansion of sophistication that give the stylist our town. It is "Dio Umeda" (E type model room)

Kitchen

Kitchen.  [Water purifier integrated single lever mixing faucet] Water purification supplies the delicious water at any time in the water purification cartridge only to regularly exchange-integrated single-lever mixing faucet (same specifications)
[Water purifier integrated single lever mixing faucet] Water purification supplies the delicious water at any time in the water purification cartridge only to regularly exchange-integrated single-lever mixing faucet (same specifications)

Kitchen.  [Wide sink] In quiet design to reduce such as water splashing sound, Large tableware and pot also loose washable wide silent sink of large size. Convenient dedicated draining plate is also equipped (same specifications)
[Wide sink] In quiet design to reduce such as water splashing sound, Large tableware and pot also loose washable wide silent sink of large size. Convenient dedicated draining plate is also equipped (same specifications)

Kitchen.  [3-neck glass top stove] Easy to care, Glass top stove convenient 3-neck type to enhance the cooking efficiency. With temperature sensor function on all burner  ※ C type is available with two-burner stove top enamel (same specifications)
[3-neck glass top stove] Easy to care, Glass top stove convenient 3-neck type to enhance the cooking efficiency. With temperature sensor function on all burner ※ C type is available with two-burner stove top enamel (same specifications)

Kitchen.  [Dishwasher] Standard equipped with a convenient dishwasher to the rear clean up. And out is easy to slide type (same specifications)
[Dishwasher] Standard equipped with a convenient dishwasher to the rear clean up. And out is easy to slide type (same specifications)

Kitchen.  [Stainless steel range hood] Stylish and excellent design of stainless steel range hood. By providing the easy-care rectifying plate in the intake port, Increase the suction efficiency, To quickly evacuate the smoke and smell (same specifications)
[Stainless steel range hood] Stylish and excellent design of stainless steel range hood. By providing the easy-care rectifying plate in the intake port, Increase the suction efficiency, To quickly evacuate the smoke and smell (same specifications)

Kitchen.  [Motoishi tone counter] Counter tops Motoishi tone to enhance the kitchen of the interior resistance has been adopted in the fine texture. Durable, It is easy to clean (same specifications)
[Motoishi tone counter] Counter tops Motoishi tone to enhance the kitchen of the interior resistance has been adopted in the fine texture. Durable, It is easy to clean (same specifications)

Kitchen.  [Soft-close type All slide storage] Take a brake just before the close, In then slowly closing soft-close function with (except for some), Reduce the impact when closing. You can also store plenty to Habaki part (same specifications)
[Soft-close type All slide storage] Take a brake just before the close, In then slowly closing soft-close function with (except for some), Reduce the impact when closing. You can also store plenty to Habaki part (same specifications)

Bathing-wash room

Bathing-wash room.  [One-stop 1WAY head] Since it is switched on and off by hand switch, It will save every day of the water bill and the gas bill (same specifications)
[One-stop 1WAY head] Since it is switched on and off by hand switch, It will save every day of the water bill and the gas bill (same specifications)

Bathing-wash room.  [Bathroom heating dryer "mist Kawakku"] Mist sauna function with bathroom heating dryer for Families. As a healing space to relax both physically and mentally, We spend leisurely (same specifications)
[Bathroom heating dryer "mist Kawakku"] Mist sauna function with bathroom heating dryer for Families. As a healing space to relax both physically and mentally, We spend leisurely (same specifications)

Bathing-wash room.  [Hot water supply remote control] Hot water-covered, Warm again, You can, such as water temperature adjustment. The bath informs by voice if divided (same specifications)
[Hot water supply remote control] Hot water-covered, Warm again, You can, such as water temperature adjustment. The bath informs by voice if divided (same specifications)

Bathing-wash room.  [Bathroom] E-type model room
[Bathroom] E-type model room

Bathing-wash room.  [Three-sided mirror back storage] It can be stored and cosmetics class and accessories you use every day, Convenient Kagamiura storage. Also, Also provided space to clean house the tissue box (same specifications)
[Three-sided mirror back storage] It can be stored and cosmetics class and accessories you use every day, Convenient Kagamiura storage. Also, Also provided space to clean house the tissue box (same specifications)

Toilet

Toilet.  [6L water-saving toilet bowl] The amount of water used at a time, Adopt a water-saving toilet 6L type that was reduced to about 60% in comparison with the company's conventional types. In addition to heating toilet seat of the cleaning function, Deodorization function is a multi-function type and the like (E type model room)
[6L water-saving toilet bowl] The amount of water used at a time, Adopt a water-saving toilet 6L type that was reduced to about 60% in comparison with the company's conventional types. In addition to heating toilet seat of the cleaning function, Deodorization function is a multi-function type and the like (E type model room)

Balcony ・ terrace ・ Private garden

balcony ・ terrace ・ Private garden.  [balcony] Balcony to capture the beautiful night view of the city on a daily sparkling is, Open space to change the living and to the drama. Well-honed magnificent of high design and functionality provided Good private residence to meet the sense of urbanites is, In fact a somewhat different firm will continue to lead a life that has the style to a more heights (has been CG synthesizing the sky ・ E type model room)
[balcony] Balcony to capture the beautiful night view of the city on a daily sparkling is, Open space to change the living and to the drama. Well-honed magnificent of high design and functionality provided Good private residence to meet the sense of urbanites is, In fact a somewhat different firm will continue to lead a life that has the style to a more heights (has been CG synthesizing the sky ・ E type model room)

Interior

Interior.  [Master bedroom] Both play work, In always a pleasure son-in-law do not forget the active, For sensitive urban life, Private rooms, Not there just for the sake of rest to welcome the end of the day. While tilting the glass, Moments of relaxation immersed in your favorite books and music Ya, Bliss of time to immerse yourself in anyone in the way is not my hobby, And sometimes I brought back was a work time to do a job, It will be the space surrounding the colorful scenes of everyday (E type model room)
[Master bedroom] Both play work, In always a pleasure son-in-law do not forget the active, For sensitive urban life, Private rooms, Not there just for the sake of rest to welcome the end of the day. While tilting the glass, Moments of relaxation immersed in your favorite books and music Ya, Bliss of time to immerse yourself in anyone in the way is not my hobby, And sometimes I brought back was a work time to do a job, It will be the space surrounding the colorful scenes of everyday (E type model room)

Other

Other.  [Hands-free electric lock system "Tebra" adopted] Hands-free electric lock system "Tebra" is, The "Tebra key" is still in its bag or pocket, Simply press the button of the proprietary part reader, You can lock and unlock the front door. Also, The first floor of the entrance and elevator door, Furthermore home delivery locker in hands-free without removing the key, Locked from authentication ・ You can unlock (same specifications)
[Hands-free electric lock system "Tebra" adopted] Hands-free electric lock system "Tebra" is, The "Tebra key" is still in its bag or pocket, Simply press the button of the proprietary part reader, You can lock and unlock the front door. Also, The first floor of the entrance and elevator door, Furthermore home delivery locker in hands-free without removing the key, Locked from authentication ・ You can unlock (same specifications)

Other. (Shared facilities ・ Common utility ・ Pet facility ・ Variety of services ・ Security ・ Earthquake countermeasures ・ Disaster-prevention measures ・ Building structure ・ Such as the characteristics of the building)
(Shared facilities ・ Common utility ・ Pet facility ・ Variety of services ・ Security ・ Earthquake countermeasures ・ Disaster-prevention measures ・ Building structure ・ Such as the characteristics of the building)

Security

Security.  [Intercom with the entrance before the camera] Shared entrance, of course, Since the camera is installed in front of the entrance, It is safe and can check the visitor twice in the video and audio (same specifications)
[Intercom with the entrance before the camera] Shared entrance, of course, Since the camera is installed in front of the entrance, It is safe and can check the visitor twice in the video and audio (same specifications)

Security.  [Security magnet sensor] Entrance door in the absence, balcony ・ When the service balcony window is opened sensor is automatically reported to the abnormal inform at the same time tie-up security company at the operating and alarm sound  ※ Window with a surface grid, Except for the FIX window (same specifications)
[Security magnet sensor] Entrance door in the absence, balcony ・ When the service balcony window is opened sensor is automatically reported to the abnormal inform at the same time tie-up security company at the operating and alarm sound ※ Window with a surface grid, Except for the FIX window (same specifications)

Security.  [Double lock adoption] It is up a crime prevention in the double lock to provide bar a sickle with a dead bolt to prevent prying due in two places. further, Thumb turn with a thumb turning prevention feature has been adopted (same specifications)
[Double lock adoption] It is up a crime prevention in the double lock to provide bar a sickle with a dead bolt to prevent prying due in two places. further, Thumb turn with a thumb turning prevention feature has been adopted (same specifications)

Security.  [Advanced home security] 365 days ・ Watch 24 hours a day, Inform. Internet security "Isles" and advanced home security "Kintetsu Safety 24-S" has been adopted  ※ 1: about errors that have sensed in the apartment shared part, We do not notify you by e-mail. You must register in advance the e-mail address of the tenants for the e-mail notification (conceptual diagram)
[Advanced home security] 365 days ・ Watch 24 hours a day, Inform. Internet security "Isles" and advanced home security "Kintetsu Safety 24-S" has been adopted ※ 1: about errors that have sensed in the apartment shared part, We do not notify you by e-mail. You must register in advance the e-mail address of the tenants for the e-mail notification (conceptual diagram)

Security.  [4 stage security line of] From the outside through each dwelling unit, 4 build a stage security line of. First, Mansion main entrance of the guard in the auto-lock system. next, To prevent the intrusion of a suspicious person, etc. that does not have a dwelling unit key into the elevator. further, Each dwelling unit is encased in such entrance before cameras and double lock, Dwelling units within leverages security magnet sensors, etc., Safety in the Internet security "Isles" ・ It supports the peace of mind (conceptual diagram)
[4 stage security line of] From the outside through each dwelling unit, 4 build a stage security line of. First, Mansion main entrance of the guard in the auto-lock system. next, To prevent the intrusion of a suspicious person, etc. that does not have a dwelling unit key into the elevator. further, Each dwelling unit is encased in such entrance before cameras and double lock, Dwelling units within leverages security magnet sensors, etc., Safety in the Internet security "Isles" ・ It supports the peace of mind (conceptual diagram)

Security.  [Digital apartment intercom "Wynn Deer"] Digital apartment intercom that can be confirmed by the image and the voice of the visitor at the two locations of the shared entrance and dwelling unit entrance "Wynn Deer" has been adopted (illustration)
[Digital apartment intercom "Wynn Deer"] Digital apartment intercom that can be confirmed by the image and the voice of the visitor at the two locations of the shared entrance and dwelling unit entrance "Wynn Deer" has been adopted (illustration)

Features of the building

Features of the building.  [Entrance approach] Life that was full of bustle and colorful the "Umeda" and habitat. For high-quality space to meet the style, In the "Dio Umeda", Design that I put a commitment also to the entrance should be called the face of the residence have is pursuing (Rendering)
[Entrance approach] Life that was full of bustle and colorful the "Umeda" and habitat. For high-quality space to meet the style, In the "Dio Umeda", Design that I put a commitment also to the entrance should be called the face of the residence have is pursuing (Rendering)

Features of the building.  [Entrance hall] Beautiful artistic is rhythmic curve entrance hall, Nestled high space itself is a design, such as the monument. Mosaic tiles glittering in response to the light is, It is glossy attire colors may vary depending on the viewing angle. Such as a glass of light wall is also provided on the front, Has been finished to the glamorous and luxurious space (Rendering)
[Entrance hall] Beautiful artistic is rhythmic curve entrance hall, Nestled high space itself is a design, such as the monument. Mosaic tiles glittering in response to the light is, It is glossy attire colors may vary depending on the viewing angle. Such as a glass of light wall is also provided on the front, Has been finished to the glamorous and luxurious space (Rendering)

Features of the building.  [Land Plan] Planning which has been subjected to consideration for live the city comfortable throughout the, While providing excellent functionality, Achieve a space well-designed to fulfill a smarter lifestyle. Ya home delivery locker come in handy for those slow return home, Hobby room that can be immersed in a hobby, such as care of the road bike, Convenient grooming space to prepare the pet grooming, etc., Common space of enhancement ・ Facilities to support the active lifestyles  ※ Home delivery locker (free of charge), Hobby Room (free of charge), Grooming space (free of charge ・ Available only Pet Club subscribers) (site layout)
[Land Plan] Planning which has been subjected to consideration for live the city comfortable throughout the, While providing excellent functionality, Achieve a space well-designed to fulfill a smarter lifestyle. Ya home delivery locker come in handy for those slow return home, Hobby room that can be immersed in a hobby, such as care of the road bike, Convenient grooming space to prepare the pet grooming, etc., Common space of enhancement ・ Facilities to support the active lifestyles ※ Home delivery locker (free of charge), Hobby Room (free of charge), Grooming space (free of charge ・ Available only Pet Club subscribers) (site layout)

Features of the building.  [Hobby Room] And care, such as a road bike and snowboarding, Fun Mel hobby room has provided a time of difficult hobby in his room ※ Free of charge (Rendering Illustration)
[Hobby Room] And care, such as a road bike and snowboarding, Fun Mel hobby room has provided a time of difficult hobby in his room ※ Free of charge (Rendering Illustration)

Features of the building.  [Grooming space] Set up a grooming space to fulfill a comfortable pet life. It comes in handy when you prepare the pet grooming ※ Free of charge ・ Pet Club subscribers only accessible (Rendering Illustration)
[Grooming space] Set up a grooming space to fulfill a comfortable pet life. It comes in handy when you prepare the pet grooming ※ Free of charge ・ Pet Club subscribers only accessible (Rendering Illustration)

Building structure

Building structure.  [Pillar structure] In reinforced concrete meshwork muscle, Adopt a welding closed hoop muscle with a welded seam portion. To prevent the bending of the main reinforcement during an earthquake, This is quite useful to the restraint of the concrete (conceptual diagram)
[Pillar structure] In reinforced concrete meshwork muscle, Adopt a welding closed hoop muscle with a welded seam portion. To prevent the bending of the main reinforcement during an earthquake, This is quite useful to the restraint of the concrete (conceptual diagram)

Building structure.  [ceiling ・ Floor structure] A thickness of about 250mm (water around is about 200mm ・ Entrance Void Slab construction method with a hollow structure has been adopted in the slab of about 220mm). Because of a large single slab, Difficult vibration is generated, By combining with ΔLL (I) -4 grade of flooring, Furthermore sound insulation has been increased. Also plays the role of the beam across the floor, And ceiling becomes a plane, Since the small beams of the dwelling unit to support the slab no, There is space to achieve a spacious and airy (conceptual diagram)
[ceiling ・ Floor structure] A thickness of about 250mm (water around is about 200mm ・ Entrance Void Slab construction method with a hollow structure has been adopted in the slab of about 220mm). Because of a large single slab, Difficult vibration is generated, By combining with ΔLL (I) -4 grade of flooring, Furthermore sound insulation has been increased. Also plays the role of the beam across the floor, And ceiling becomes a plane, Since the small beams of the dwelling unit to support the slab no, There is space to achieve a spacious and airy (conceptual diagram)

Building structure.  [Tosakaikabe structure] TosakaikabeAtsu of the adjacent dwelling units is about 180mm ~ To ensure about 250mm, Assembling a rebar double have been made "double reinforcement". Also increased thickness as compared to the single reinforcement, It will be more high strength can be obtained (conceptual diagram)
[Tosakaikabe structure] TosakaikabeAtsu of the adjacent dwelling units is about 180mm ~ To ensure about 250mm, Assembling a rebar double have been made "double reinforcement". Also increased thickness as compared to the single reinforcement, It will be more high strength can be obtained (conceptual diagram)

Building structure.  [Sound insulation sash] North ・ West ・ To the east is, T-3 sound insulation sash to about 35db reduce the external sound has been adopted ※ South will be the T-2 sound insulation sash (conceptual diagram)
[Sound insulation sash] North ・ West ・ To the east is, T-3 sound insulation sash to about 35db reduce the external sound has been adopted ※ South will be the T-2 sound insulation sash (conceptual diagram)

Building structure.  [Osaka City building environmental performance display system] In building a comprehensive environment plan that building owners to submit to Osaka, We evaluated at each five levels a comprehensive evaluation of the environmental performance of buildings by the effort degree and CASBEE for three key items that Osaka stipulated
[Osaka City building environmental performance display system] In building a comprehensive environment plan that building owners to submit to Osaka, We evaluated at each five levels a comprehensive evaluation of the environmental performance of buildings by the effort degree and CASBEE for three key items that Osaka stipulated

Other

Other.  [Apartment to be able to live with pets] Of course, that you can live with precious pet, In order to support a comfortable pet life, A pet grooming dedicated space has been set up on the first floor  ※ For pet breeding you will be asked to observe the "pet breeding detailed rules" set forth in the management contract. Please contact the clerk for more information (an example of a frog pets)
[Apartment to be able to live with pets] Of course, that you can live with precious pet, In order to support a comfortable pet life, A pet grooming dedicated space has been set up on the first floor ※ For pet breeding you will be asked to observe the "pet breeding detailed rules" set forth in the management contract. Please contact the clerk for more information (an example of a frog pets)

Other.  [Fiber-optic Internet "UCOM All Giga type"] Movie In the "UCOM light" ・ music ・ 100,000 or more diverse content, such as sports. You can enjoy your favorite programs whenever you want  ※ Number of contents of the web is, It is based on the 2012 12-year current information. This service is a service of a best-effort basis. Speed ​​is the highest value on the theory, Effective communication speed, Line communication speed, We do not guarantee the line quality  ※ Monthly fee "complete any subscription plan." / 2520 yen (including tax) (logo)
[Fiber-optic Internet "UCOM All Giga type"] Movie In the "UCOM light" ・ music ・ 100,000 or more diverse content, such as sports. You can enjoy your favorite programs whenever you want ※ Number of contents of the web is, It is based on the 2012 12-year current information. This service is a service of a best-effort basis. Speed ​​is the highest value on the theory, Effective communication speed, Line communication speed, We do not guarantee the line quality ※ Monthly fee "complete any subscription plan." / 2520 yen (including tax) (logo)

Other.  [24 hours garbage out OK] Without having to worry about the day of the week for sorting garbage disposal, Put out garbage at any time 24 hours  ※ Based on the management contract (PICT)
[24 hours garbage out OK] Without having to worry about the day of the week for sorting garbage disposal, Put out garbage at any time 24 hours ※ Based on the management contract (PICT)

Surrounding environment

Surrounding environment. Grand Front Osaka (JR "Osaka" station directly connected)
Grand Front Osaka (JR "Osaka" station directly connected)

Surrounding environment. HEP Five (5-minute walk ・ About 330m)
HEP Five (5-minute walk ・ About 330m)

Surrounding environment. Hankyu Department Store Hankyu Umeda head office (7 minute walk ・ About 500m)
Hankyu Department Store Hankyu Umeda head office (7 minute walk ・ About 500m)

Surrounding environment. NU Chayamachi (7 min walk ・ About 510m)
NU Chayamachi (7 min walk ・ About 510m)

Surrounding environment. Est (4-minute walk ・ About 280m)
Est (4-minute walk ・ About 280m)

Surrounding environment. Umeda Loft (7 min walk ・ About 560m)
Umeda Loft (7 min walk ・ About 560m)

Surrounding environment. Life Taiyuji store (a 10-minute walk ・ About 790m)
Life Taiyuji store (a 10-minute walk ・ About 790m)

Surrounding environment. common cafe (3-minute walk ・ About 200m)
common cafe (3-minute walk ・ About 200m)

Surrounding environment. Olivier ・ Le ・ Francois (3-minute walk ・ About 240m)
Olivier ・ Le ・ Francois (3-minute walk ・ About 240m)

Surrounding environment. cafe parabola (5-minute walk ・ About 340m)
cafe parabola (5-minute walk ・ About 340m)

Surrounding environment. AIDA Umeda (a 5-minute walk ・ About 390m)
AIDA Umeda (a 5-minute walk ・ About 390m)

Surrounding environment. BARBARA market place (5-minute walk ・ About 350m)
BARBARA market place (5-minute walk ・ About 350m)

Surrounding environment. Hilton Plaza (13 mins ・ About 970m)
Hilton Plaza (13 mins ・ About 970m)

Surrounding environment. Kitano Hospital (5 minutes walk ・ About 330m)
Kitano Hospital (5 minutes walk ・ About 330m)

Floor: 2LDK, occupied area: 58 sq m, Price: 31.6 million yen

Floor: 2LDK, occupied area: 58 sq m, Price: 31.6 million yen
Floor: 2LDK, occupied area: 58 sq m, Price: 31.6 million yen

Floor: 2LDK, occupied area: 54.15 sq m, Price: 28.6 million yen ~ 31,900,000 yen

Floor: 2LDK, occupied area: 54.15 sq m, Price: 28.6 million yen ~ 31,900,000 yen
Floor: 2LDK, occupied area: 54.15 sq m, Price: 28.6 million yen ~ 31,900,000 yen

Floor: 3LDK, occupied area: 68.75 sq m, Price: 39,900,000 yen ・ 41,300,000 yen

Floor: 3LDK, occupied area: 68.75 sq m, Price: 39,900,000 yen ・ 41,300,000 yen
Floor: 3LDK, occupied area: 68.75 sq m, Price: 39,900,000 yen ・ 41,300,000 yen

Floor: 3LDK, occupied area: 70.71 sq m, Price: 45.5 million yen

Floor: 3LDK, occupied area: 70.71 sq m, Price: 45.5 million yen
Floor: 3LDK, occupied area: 70.71 sq m, Price: 45.5 million yen


Location